Размещено на портале Архи.ру (www.archi.ru)

23.03.2023

Совместный досуг

Объект:
Детский центр «Поле»
Адрес:
Россия, Москва. Лесная улица, дом 19 к. 4
Мастерская:
Студия дизайна D
Авторский коллектив:
Илья Плотников, со-основатель студии, ведущий менеджер проектов
Надя Торшина, со-основатель студии, интерьерный архитектор

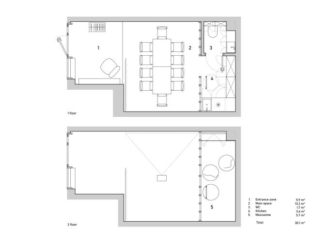
Центр «Поле» выполняет роль третьего места в спальном районе Москвы. На площади меньше 30 квадратных метров студия дизайна D создала пространство, где дети и взрослые могут проводить время вместе: играть, работать, встречаться с друзьями, заниматься спортом и творчеством.

Описание предоставлено архитекторами

Детский центр и коворкинг «Поле» находится в одном из спальных районов Москвы, где практически нет инфраструктуры для детского досуга и внешкольного образования. Заказчица поставила задачу создать многофункциональное пространство для детей и взрослых, своего рода «третье место» для работы, встреч и групповых занятий.
Детский центр «Поле»
Детский центр «Поле»
Фотография © Инна Каблукова / предоставлена Студия дизайна D

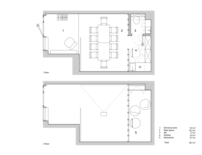
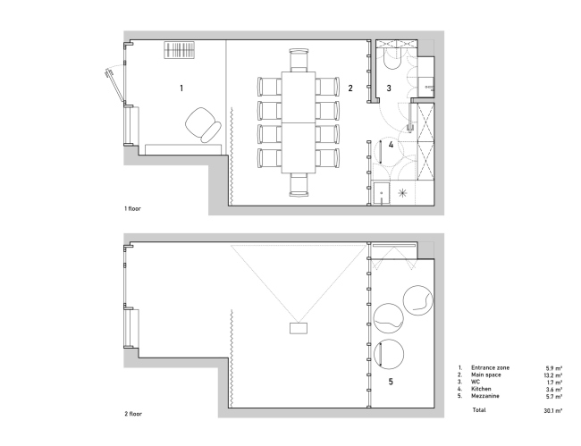
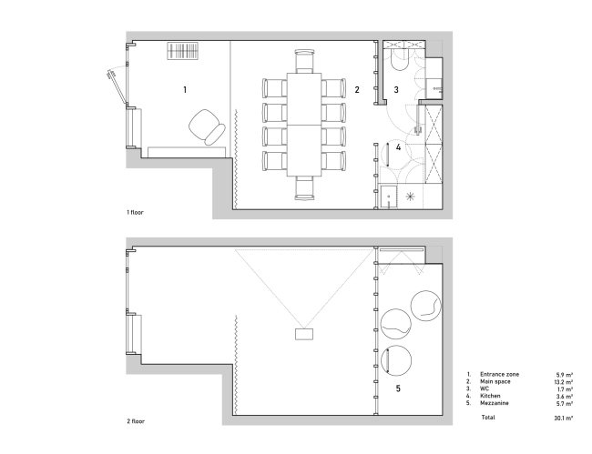
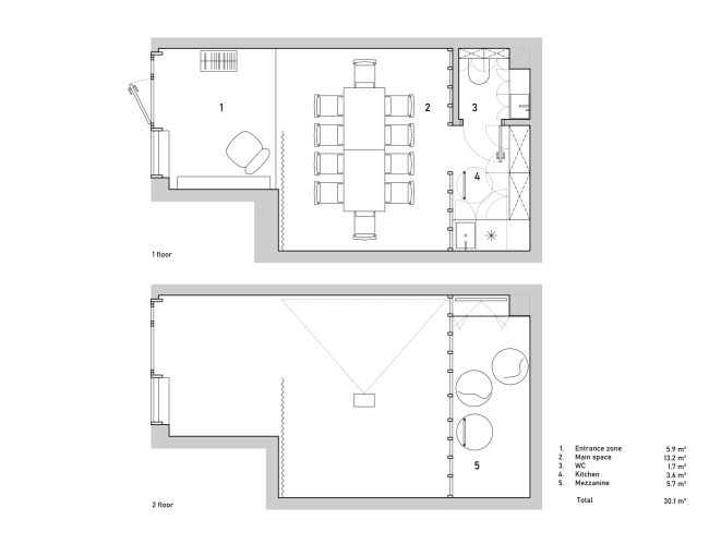
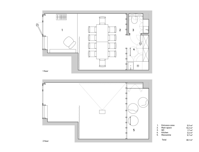
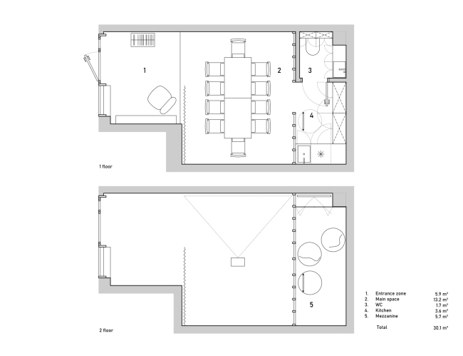
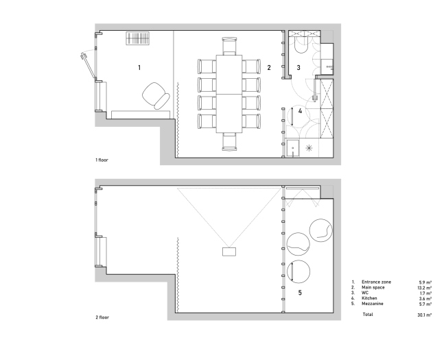
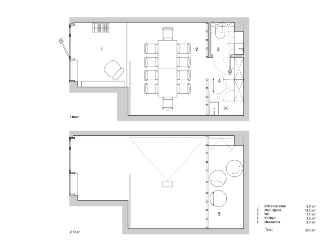
В помещении площадью всего 27 м2 удалось уместить входную зону с библиотекой и удобным креслом, место для занятий и лекций, а четырехметровые потолки позволили сделать антресоль, под которой расположилась небольшая кухня с хранением и санузел.
Детский центр «Поле»
Детский центр «Поле»
© Студия дизайна D
Детский центр «Поле» © Студия дизайна D
Детский центр «Поле»
© Студия дизайна D
Детский центр «Поле» © Студия дизайна D
Детский центр «Поле»
© Студия дизайна D

Библиотеку и зону для занятий разделяет полупрозрачный тюль и блокирующая свет штора, благодаря которой можно в любое время дня можно использовать проектор или создавать полумрак для медитации и занятий йогой. В основном зале располагаются два больших раскладных стола и штабелируемые стулья – так помещение можно приспособить практически под любые задачи. За белой светопропускающей перегородкой из перфорированного металла причутся подсобные помещения с лестницей на антресольный этаж, где находится игровая зона с телевизором и пуфиками.
Детский центр «Поле» Фотография © Инна Каблукова / предоставлена Студия дизайна D
Детский центр «Поле»
Фотография © Инна Каблукова / предоставлена Студия дизайна D
Детский центр «Поле» Фотография © Инна Каблукова / предоставлена Студия дизайна D
Детский центр «Поле»
Фотография © Инна Каблукова / предоставлена Студия дизайна D

Поскольку дети часто играют на полу и бегают босиком, особое внимание архитекторы уделили отделочным материалам. Полы на первом этаже выполнены из приятного на ощупь микроцемента с подогревом, а на антресоли – из мягкой пробки натурального цвета. Стены окрашены матовой белой краской c легкой фактурой кожи.
Детский центр «Поле» Фотография © Инна Каблукова / предоставлена Студия дизайна D
Детский центр «Поле»
Фотография © Инна Каблукова / предоставлена Студия дизайна D
Детский центр «Поле» Фотография © Инна Каблукова / предоставлена Студия дизайна D
Детский центр «Поле»
Фотография © Инна Каблукова / предоставлена Студия дизайна D

Светлая цветовая гамма притягивает дневной свет, а большое количество сценариев теплого функционального освещения позволяет создавать уютную или активную и яркую атмосферу. Чтобы спрятать систему приточно-вытяжной вентиляции, архитекторы опустили потолок. В получившемся зазоре располагается мягкая теплая подсветка.
Детский центр «Поле» Фотография © Инна Каблукова / предоставлена Студия дизайна D
Детский центр «Поле»
Фотография © Инна Каблукова / предоставлена Студия дизайна D
Детский центр «Поле» Фотография © Инна Каблукова / предоставлена Студия дизайна D
Детский центр «Поле»
Фотография © Инна Каблукова / предоставлена Студия дизайна D