Размещено на портале Архи.ру (www.archi.ru)

16.03.2023

Многоликий

Объект:
Гастробар CULT
Адрес:
Россия, Калининград. Советский пр-т, 8
Мастерская:
Beletskaya bureau
Авторский коллектив:
Главный дизайнер: Дарья Белецкая
Дизайнер-техник: Кристина Музалькова

В интерьере ресторана Cult в Калининграде архитектор Дарья Белецкая разворачивает историю, родившуюся из размышлений о тревожности. Ощутить равновесие и спокойствие помогает созерцание полуторатонного валуна, мерцание воды, маски, отсылающие к «Тысячеликому герою» Джозефа Кэмпбелла и общая атмосфера полумрака и тишины.

Описание предоставлено архитекторами

В начале было пространство и желание заказчика открыть что-то принципиально новое. Проектирование стало поиском формы для выражения внутреннего ощущения: Дарья Белецкая размышляла о всеобщей повышенной тревожности и о тех местах, где мы находим успокоение. Целью стало создать интерьер, который смог бы уравновесить и дать ощущение спокойствия.
Гастробар CULT
Гастробар CULT
Фотография © Сергей Мельников / предоставлена Beletskaya bureau

На эти ощущения работает всё: от планировки и камня в центре стола, до музыкального сопровождения и проекций на полотнах, гипнотическое мерцание которых создается с помощью пучка света и линз.
Гастробар CULT
Гастробар CULT
Фотография © Сергей Мельников / предоставлена Beletskaya bureau

Размышления о покое привели архитектора к архаичным образам. Идею их воплощения подсказали работы художника под псевдонимом @_negodiai_, который размещает скульптурные маски в разных местах города. Одну из таких масок Дарья случайно увидела во время прогулки и посчитала идеальной деталью будущего интерьера: ручная работа с явными отсылками ко временам первого творчества. Так на стене появилось 50 абстрактных масок, которые стали также метафорой одной из моих любимых книг архитектора – «Тысячеликого героя» Джозефа Кэмпбелла.
Гастробар CULT
Гастробар CULT
Фотография © Сергей Мельников / предоставлена Beletskaya bureau

В отделке материалы используются нестандартным образом: стены и пол облицованы тротуарной плиткой, поскольку только в ней удалось найти нужную форму, текстуру, цвет и ощущение монументальности.
Гастробар CULT Фотография © Сергей Мельников / предоставлена Beletskaya bureau
Гастробар CULT
Фотография © Сергей Мельников / предоставлена Beletskaya bureau
Гастробар CULT Фотография © Сергей Мельников / предоставлена Beletskaya bureau
Гастробар CULT
Фотография © Сергей Мельников / предоставлена Beletskaya bureau

Поскольку Дарье было важно использовать работы локальных мастеров, в нише появились вазы местной керамистки, а на окнах – ставни, которые делятся на четыре части: их можно открывать в разное время суток и тем самым регулировать освещенность.
Гастробар CULT Фотография © Сергей Мельников / предоставлена Beletskaya bureau
Гастробар CULT
Фотография © Сергей Мельников / предоставлена Beletskaya bureau
Гастробар CULT Фотография © Сергей Мельников / предоставлена Beletskaya bureau
Гастробар CULT
Фотография © Сергей Мельников / предоставлена Beletskaya bureau

Центральным элементом пространства является стол, переходящий в бар, его цель – сократить дистанцию между гостем и персоналом. Из центра стола «прорастает» камень – символ устойчивости и силы. Его вес составляет полторы тонны, в проекте он появился по воле случая: когда Дарья приехала на производство изделий из балтийского камня, на входе стоял большой валун, который и стал отправной точкой для переговоров об установке подобного в интерьер.​​​​​​​
Гастробар CULT
Гастробар CULT
Фотография © Сергей Мельников / предоставлена Beletskaya bureau

Мебель и декор тактильные, неяркие, в природных оттенках: всё направлено на то, чтобы взывать к чувствам, которые мы испытываем, находясь в согласии с собой. Название ресторана родилось уже на этапе строительства, когда авторы искали подходящее слово для описания интерьера и созданного в нем ощущения жилища шамана или древнего храма. 
Гастробар CULT Фотография © Сергей Мельников / предоставлена Beletskaya bureau
Гастробар CULT
Фотография © Сергей Мельников / предоставлена Beletskaya bureau
Гастробар CULT Фотография © Сергей Мельников / предоставлена Beletskaya bureau
Гастробар CULT
Фотография © Сергей Мельников / предоставлена Beletskaya bureau
Гастробар CULT Фотография © Сергей Мельников / предоставлена Beletskaya bureau
Гастробар CULT
Фотография © Сергей Мельников / предоставлена Beletskaya bureau
Гастробар CULT Фотография © Сергей Мельников / предоставлена Beletskaya bureau
Гастробар CULT
Фотография © Сергей Мельников / предоставлена Beletskaya bureau
Гастробар CULT Фотография © Сергей Мельников / предоставлена Beletskaya bureau
Гастробар CULT
Фотография © Сергей Мельников / предоставлена Beletskaya bureau
Гастробар CULT Фотография © Сергей Мельников / предоставлена Beletskaya bureau
Гастробар CULT
Фотография © Сергей Мельников / предоставлена Beletskaya bureau
Гастробар CULT Фотография © Сергей Мельников / предоставлена Beletskaya bureau
Гастробар CULT
Фотография © Сергей Мельников / предоставлена Beletskaya bureau

 
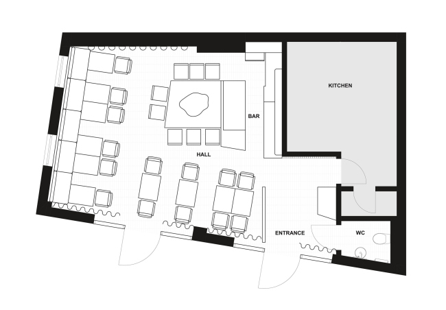
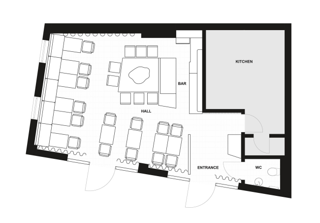
Гастробар CULT
Гастробар CULT
© Beletskaya bureau