Размещено на портале Архи.ру (www.archi.ru)

09.03.2023

Дом с видом

Объект:
SWIDOM модель SW4
Адрес:
Россия, Домодедово. с. Битягово
Быстровозводимые дома SWIDOM
Адрес:
Россия, Москва.
Быстровозводимый авторский модульный дом SWIDOM SW 3
Адрес:
Россия, Московская область, деревня Битягово
Мастерская:
MAParchitects
Авторский коллектив:
Главный архитектор: Александр Порошкин
Архитекторы: Кристина Павлова, Ксения Карпова, Таисия Карпова

Новый модульный дом из линейки SWIDOM, разработанной бюро MAParchitects, по-прежнему ставит в приоритет окружающие виды, но отличается большой площадью и улучшенной технологией производства и сборки.

Описание предоставлено архитекторами

SW4 в линейке модульных домов, разработанных бюро MAParchitects, – самый большой. Как и у предшественников, его устройство исходит из того, чтобы обеспечить визуальную связь дома с местом, в котором он находится, и позволить обитателям сполна насладиться видами на лес, реку, озеро, овраг или сад. 
SWIDOM модель SW4
SWIDOM модель SW4
Фотография © Бадулин Максим / предоставлена MAParchitects
SWIDOM модель SW4
SWIDOM модель SW4
Фотография © Бадулин Максим / предоставлена MAParchitects

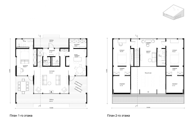
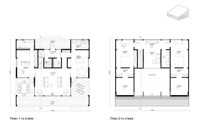
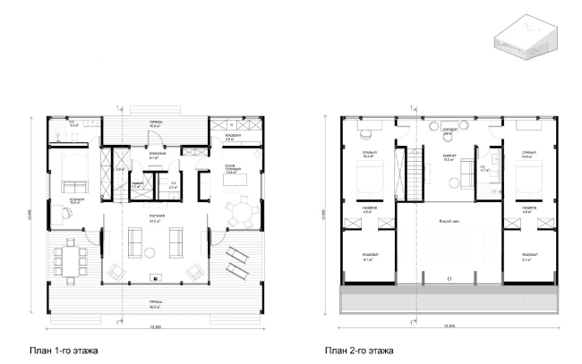
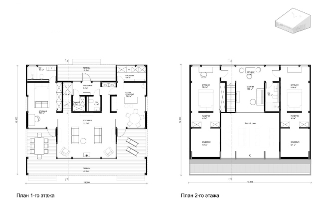
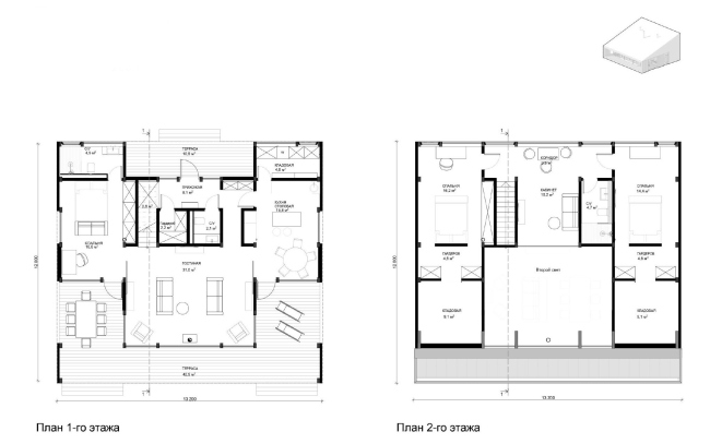
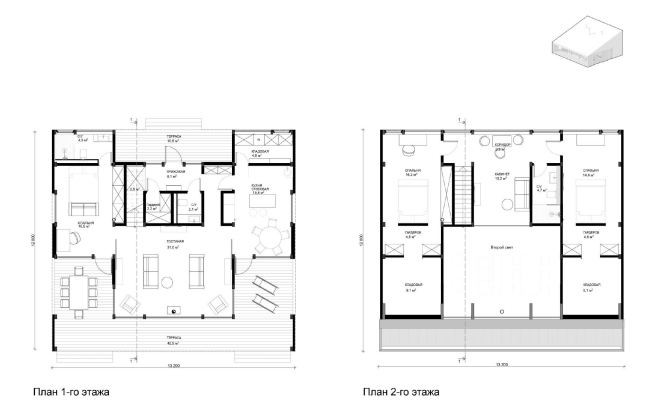
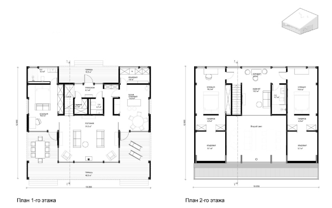
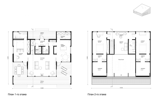
Площадь дома – 215 м2. Односкатная кровля позволяет разместить в высокой части дома полноценный второй этаж с двумя спальнями, кабинетом и санузлом. Под низкой частью кровли размещаются технические антресоли для инженерного оборудования. Из холла второго этажа открывается вид на двусветное пространство гостиной.
SWIDOM модель SW4 Фотография © Бадулин Максим / предоставлена MAParchitects
SWIDOM модель SW4
Фотография © Бадулин Максим / предоставлена MAParchitects
SWIDOM модель SW4 Фотография © Бадулин Максим / предоставлена MAParchitects
SWIDOM модель SW4
Фотография © Бадулин Максим / предоставлена MAParchitects
SWIDOM модель SW4 Фотография © Бадулин Максим / предоставлена MAParchitects
SWIDOM модель SW4
Фотография © Бадулин Максим / предоставлена MAParchitects
SWIDOM модель SW4 Фотография © Бадулин Максим / предоставлена MAParchitects
SWIDOM модель SW4
Фотография © Бадулин Максим / предоставлена MAParchitects
SWIDOM модель SW4 Фотография © Бадулин Максим / предоставлена MAParchitects
SWIDOM модель SW4
Фотография © Бадулин Максим / предоставлена MAParchitects
SWIDOM модель SW4 Фотография © Бадулин Максим / предоставлена MAParchitects
SWIDOM модель SW4
Фотография © Бадулин Максим / предоставлена MAParchitects
SWIDOM модель SW4 Фотография © Бадулин Максим / предоставлена MAParchitects
SWIDOM модель SW4
Фотография © Бадулин Максим / предоставлена MAParchitects
SWIDOM модель SW4 Фотография © Бадулин Максим / предоставлена MAParchitects
SWIDOM модель SW4
Фотография © Бадулин Максим / предоставлена MAParchitects

Элементы собираются на заводе и доставляются на участок в виде «домокомплекта», в который входит конструктив из клееного бруса, с заполнением ПИР-панелями, окнами и дверьми. Сборка занимает 2-3 месяца, возведение дома «под ключ» – около полугода. В SW4 Александр Порошкин учел опыт жизни в SW3, была улучшена технология производства и сборки, изменились и планировки.

Подробнее об этом рассказывает сам архитектор:


SWIDOM модель SW4 Фотография © Бадулин Максим / предоставлена MAParchitects
SWIDOM модель SW4
Фотография © Бадулин Максим / предоставлена MAParchitects
SWIDOM модель SW4 Фотография © Бадулин Максим / предоставлена MAParchitects
SWIDOM модель SW4
Фотография © Бадулин Максим / предоставлена MAParchitects
SWIDOM модель SW4 Фотография © Бадулин Максим / предоставлена MAParchitects
SWIDOM модель SW4
Фотография © Бадулин Максим / предоставлена MAParchitects
SWIDOM модель SW4 Фотография © Бадулин Максим / предоставлена MAParchitects
SWIDOM модель SW4
Фотография © Бадулин Максим / предоставлена MAParchitects
SWIDOM модель SW4 Фотография © Бадулин Максим / предоставлена MAParchitects
SWIDOM модель SW4
Фотография © Бадулин Максим / предоставлена MAParchitects
SWIDOM модель SW4 Фотография © Бадулин Максим / предоставлена MAParchitects
SWIDOM модель SW4
Фотография © Бадулин Максим / предоставлена MAParchitects

Проект победил в конкурсе ARCHIWOOD-2022 как лучший деревянный дом по версии жюри. 
SWIDOM модель SW4. Разрез
SWIDOM модель SW4. Разрез
© MAParchitects
SWIDOM модель SW4. План 1 и 2 этажа
SWIDOM модель SW4. План 1 и 2 этажа
© MAParchitects