Размещено на портале Архи.ру (www.archi.ru)

13.03.2023

Дело четвертое

Объект:
Delo House 4
Адрес:
Россия, Ленинградская область, деревня Семашко
Delo House 3
Адрес:
Россия, Ленинградская область , поселок Приветнинское
The Cabin
Адрес:
Россия, Ленинградская область, Поселок Приветнинское
Мастерская:
Delo Design

Мастерская Delo представила новую модель в линейке типовых каркасных домов: четыре спальни, теплые полы-террацо и минималистичный интерьер с мебелью собственного производства, а также отделкой из кедра.

Описание предоставлено архитекторами

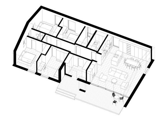
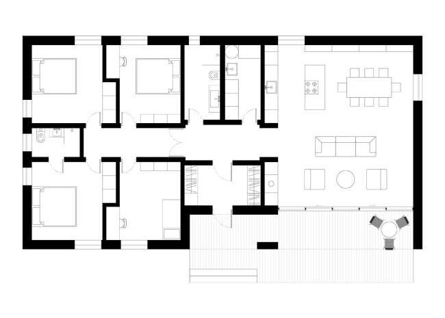
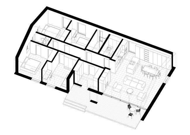
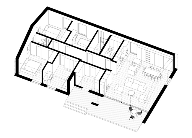
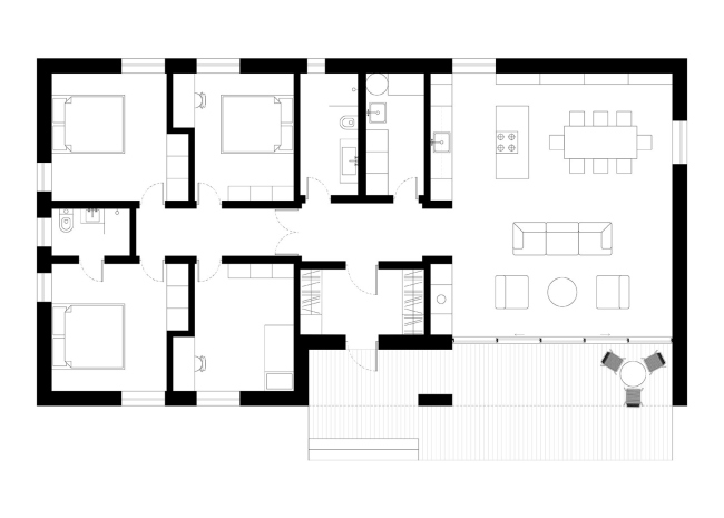
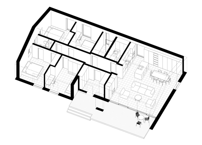
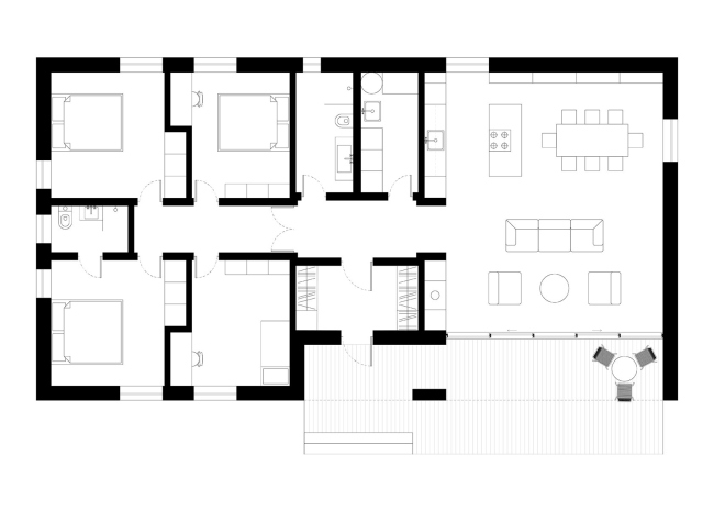
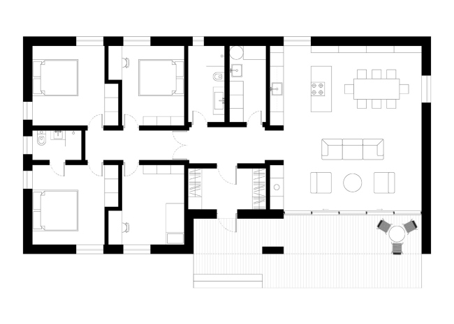
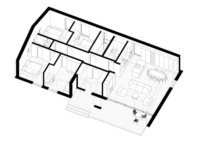
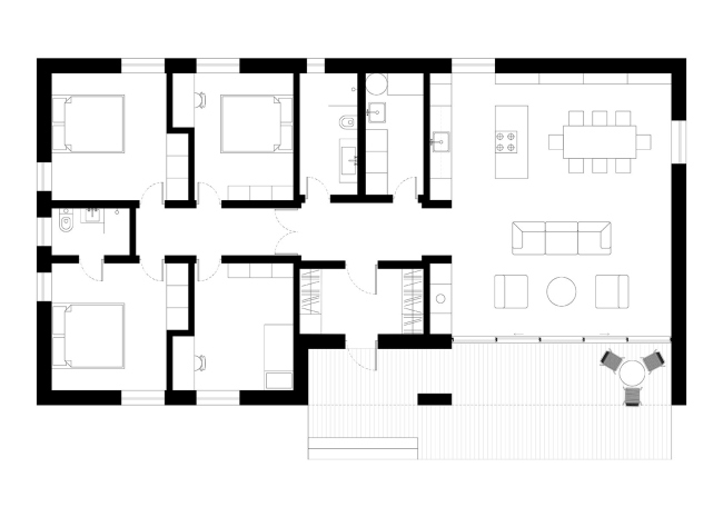
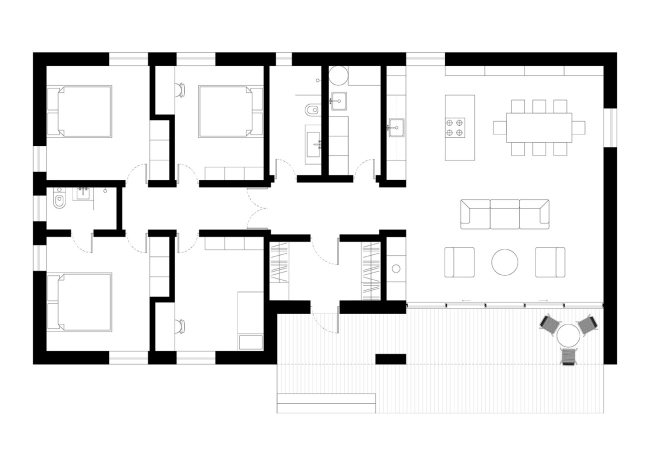
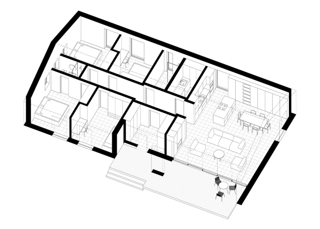
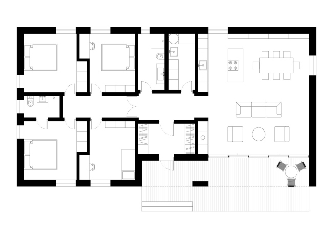
Delo House 4 площадью 125 м2– самый большой из типовых каркасных домов мастерской Delo. Он вмещает четыре спальни, просторную кухню-гостиную, две ванные комнаты, котельную, прихожую и холл с окном в крыше.
Delo House 4
Delo House 4
Фотография © Виктор Юльев / предоставлена Delo Design
Delo House 4
Delo House 4
Фотография © Виктор Юльев / предоставлена Delo Design

Планировка дома симметрична: его части сгруппированы вокруг холла и могут быть зеркально отражены в соответствии с генпланом. В каждом помещении предусмотрены места для хранения – встроенные шкафы и антресоль над коридором спален. Последние изолированы от остальных зон, чтобы в них было тихо.
Delo House 4
Delo House 4
© Delo Design
Delo House 4
Delo House 4
© Delo Design

Delo House 4 возводится на участке по каркасной технологии. Некоторые элементы дома изготавливаются заранее, а сам процесс строительства занимает около четырех месяцев. Для каркаса используется сухая строганая доска хвойных пород, для внешней и внутренней отделки – планкен из кедра со специальным профилем. Доска производится индивидуально и обрабатывается по технологии Delo. При проектировании учитываются стандартные размеры материалов, что позволяет сократить количество строительных отходов.
Delo House 4
Delo House 4
Фотография © Виктор Юльев / предоставлена Delo Design
Delo House 4
Delo House 4
Фотография © Виктор Юльев / предоставлена Delo Design

Фундаментом служит железобетонная плита со встроенными инженерными коммуникациями. В проект заложены все сети и оборудование, включая вентиляцию и отопление водяным теплым полом – это самое комфортное и энергоэффективное решение для каркасных домов. За счет облицовки плиткой терраццо пол эффективно прогревается и долго остывает. Внешние стены и крыша также имеют контрутепление, а толщина ограждающих конструкций рассчитана на холодный климат. Внутренние перегородки укреплены фанерой, но уже с целью шумоизоляции.
Delo House 4
Delo House 4
Фотография © Виктор Юльев / предоставлена Delo Design
Delo House 4
Delo House 4
Фотография © Виктор Юльев / предоставлена Delo Design

Интерьер дома продуман и оборудован всем необходимым – мебелью и аксессуарами Delo, а также бытовой техникой. Кухня и шкафы произведены специально для проекта. Для освещения использованы светодиодные светильники. Стекла окон и двери в алюминиевых рамах защищены бронированной ударопрочной пленкой. Панорамное окно в гостиной состоит из раздвижных сегментов и связывает внутреннее пространство дома с его открытой террасой.
Delo House 4 Фотография © Арсений Бродач / предоставлена Delo Design
Delo House 4
Фотография © Арсений Бродач / предоставлена Delo Design
Delo House 4 Фотография © Арсений Бродач / предоставлена Delo Design
Delo House 4
Фотография © Арсений Бродач / предоставлена Delo Design
Delo House 4 Фотография © Арсений Бродач / предоставлена Delo Design
Delo House 4
Фотография © Арсений Бродач / предоставлена Delo Design
Delo House 4 Фотография © Арсений Бродач / предоставлена Delo Design
Delo House 4
Фотография © Арсений Бродач / предоставлена Delo Design
Delo House 4 Фотография © Виктор Юльев / предоставлена Delo Design
Delo House 4
Фотография © Виктор Юльев / предоставлена Delo Design
Delo House 4 Фотография © Арсений Бродач / предоставлена Delo Design
Delo House 4
Фотография © Арсений Бродач / предоставлена Delo Design