Размещено на портале Архи.ру (www.archi.ru)

08.02.2023

Путешествие героя

Объект:
Балабанов. Выставка – путешествие
Адрес:
Россия, Санкт-Петербург. Кожевенная линия, 40Б Общественное культурно – деловое пространство Севкабель Порт, Здание «Цех»
Мастерская:
Planet9
Авторский коллектив:
Автор идеи и куратор: Татьяна Гетман
Художник – постановщик: Агния Стерлигова
Продюсер: Александр Кармаев
Креативный продюсер: Ирина Фадина
Руководитель проекта: Георгий Кутелия
Архитектура: Евгений Зимин; Надежда Егерева; Анна Чулкова; Виктория Косарева

Интерактивная выставка «Балабанов» в Севкабель порту погружает зрителей в пространство культовых кинокартин, знакомит с полной фильмографией режиссера, помогает разобраться в художественных кодах и проследить влияние личной жизни художника на его творчество.

Описание предоставлено архитекторами

Выставка «Балабанов», которая открылась в петербургском Севкабель порту в октябре прошлого года и недавно была продлена, проводит посетителя через творческое наследие режиссера, по пути предлагая подробнее знакомиться с фильмами. Созданное в бывшем цеху пространство позволяет почувствовать, как идея той или иной киноленты полностью захватывала жизнь Алексея Балабанова, и как затем трансформировала мир, в котором он жил.
Балабанов. Выставка – путешествие
Балабанов. Выставка – путешествие
Фотография © Василий Буланов / предоставлена Planet9
 
Татьяна Гетман, автор идеи проекта и куратор выставки
Этот проект задумывался как выставка-путешествие по художественной вселенной выдающегося режиссера. Творчеству и фильмографии Балабанова посвящаются фильмы, критические статьи, научные конференции, но попыток создания междисциплинарной, интерактивной выставки для знакомства с Алексеем Октябриновичем и переосмысления его кинематографических заветов пока не предпринималось.

Подобный комплексный, многоуровневый опыт позволит зрителям проекта не только изучить полную фильмографию режиссера, разобраться в художественных кодах, зашифрованных в его картинах, но и проследить влияние личной жизни художника на его творчество.

​Мне кажется, мы создаем очень эмоциональную историю. На этом проекте не будет застывших декораций или безличных аннотаций. Зрители попадут внутрь многогранного и сложного произведения искусства. Сценография и драматургия позволят им «настроить оптику», почувствовать себя героями кинолент Алексея Балабанова. Вместе с художником мы пройдем сложный, но увлекательный путь: от первых режиссерских проб и экспериментов в кино до момента всенародного признания и успеха.

Балабанов. Выставка – путешествие
Балабанов. Выставка – путешествие
Фотография © Василий Буланов / предоставлена Planet9
Балабанов. Выставка – путешествие
Балабанов. Выставка – путешествие
Фотография © Василий Буланов / предоставлена Planet9

Выставка создавалась при поддержке кинокомпании СТВ, основанной Сергеем Сельяновым и Алексеем Балабановым – она владеет правами на все фильмы режиссера. «Проводниками» стали братья Петр и Федор Балабановы, чьи тексты помогают посетителю нащупать почву под ногами и выбрать верную «тропу».  Сценографией занималось бюро Planet9.
 
Агния Стерлигова, генеральный директор Planet9, художник-постановщик выставки
Севкабель порт, вид на большую воду и фильмы Алексея Октябриновича как будто сложились в один пазл-ландшафт. Балабанов очень любил Россию и снимал про нее свое кино, отсюда родилась такая моя художественная амбиция – попробовать создать образ бесконечной территории, воображаемой местами страны режиссера.

Для усиления образа я взяла тему дорожных указателей: они, как камни в русских сказках, предлагающие герою нелегкий выбор, вспыхивают знаковыми цитатами из фильмов Балабанова. Сам ландшафт – сложный, металлический, меняющийся, как лабиринт – захватывает зрителя и проводит сквозь повествование, где-то превращаясь в фон, а где-то становясь полноправным участником рассказа.

Мне хотелось определенной тотальности и бескомпромиссности в решении, и, кажется, все получилось.

Балабанов. Выставка – путешествие Фотография © Василий Буланов / предоставлена Planet9
Балабанов. Выставка – путешествие
Фотография © Василий Буланов / предоставлена Planet9
Балабанов. Выставка – путешествие Фотография © Василий Буланов / предоставлена Planet9
Балабанов. Выставка – путешествие
Фотография © Василий Буланов / предоставлена Planet9
Балабанов. Выставка – путешествие Фотография © Василий Буланов / предоставлена Planet9
Балабанов. Выставка – путешествие
Фотография © Василий Буланов / предоставлена Planet9
Балабанов. Выставка – путешествие Фотография © Василий Буланов / предоставлена Planet9
Балабанов. Выставка – путешествие
Фотография © Василий Буланов / предоставлена Planet9
Балабанов. Выставка – путешествие Фотография © Василий Буланов / предоставлена Planet9
Балабанов. Выставка – путешествие
Фотография © Василий Буланов / предоставлена Planet9
Балабанов. Выставка – путешествие Фотография © Василий Буланов / предоставлена Planet9
Балабанов. Выставка – путешествие
Фотография © Василий Буланов / предоставлена Planet9
Балабанов. Выставка – путешествие Фотография © Василий Буланов / предоставлена Planet9
Балабанов. Выставка – путешествие
Фотография © Василий Буланов / предоставлена Planet9
Балабанов. Выставка – путешествие Фотография © Василий Буланов / предоставлена Planet9
Балабанов. Выставка – путешествие
Фотография © Василий Буланов / предоставлена Planet9

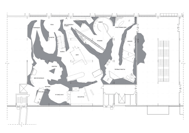
​Выставка не только рассказывает о том, как создавались фильмы, ставшие отражением эпохи, но и предлагает зрителю оказаться внутри этих фильмов. В каждом зале есть «остановки» с интерактивными объектами – всего таких тематических зон 16. Посетитель может забраться в трамвай из фильма «Брат», заплутать на подступах к «Замку» Кафки или очутиться в комиксе по фильму «Жмурки». Кульминация выставки – раздел, посвященный дилогии «Брат». В пространстве нашлось место не только культовым фильмам режиссера, но и его ученическим работам, короткометражкам, черновикам сценариев, наброскам идей, не снятым картинам. 
Балабанов. Выставка – путешествие Фотография © Василий Буланов / предоставлена Planet9
Балабанов. Выставка – путешествие
Фотография © Василий Буланов / предоставлена Planet9
Балабанов. Выставка – путешествие Фотография © Василий Буланов / предоставлена Planet9
Балабанов. Выставка – путешествие
Фотография © Василий Буланов / предоставлена Planet9
Балабанов. Выставка – путешествие Фотография © Василий Буланов / предоставлена Planet9
Балабанов. Выставка – путешествие
Фотография © Василий Буланов / предоставлена Planet9
Балабанов. Выставка – путешествие Фотография © Василий Буланов / предоставлена Planet9
Балабанов. Выставка – путешествие
Фотография © Василий Буланов / предоставлена Planet9
Балабанов. Выставка – путешествие Фотография © Василий Буланов / предоставлена Planet9
Балабанов. Выставка – путешествие
Фотография © Василий Буланов / предоставлена Planet9
Балабанов. Выставка – путешествие Фотография © Василий Буланов / предоставлена Planet9
Балабанов. Выставка – путешествие
Фотография © Василий Буланов / предоставлена Planet9
Балабанов. Выставка – путешествие Фотография © Василий Буланов / предоставлена Planet9
Балабанов. Выставка – путешествие
Фотография © Василий Буланов / предоставлена Planet9
Балабанов. Выставка – путешествие Фотография © Василий Буланов / предоставлена Planet9
Балабанов. Выставка – путешествие
Фотография © Василий Буланов / предоставлена Planet9

Выставка продлится до 15 февраля, билеты и расписание здесь.
 
Балабанов. Выставка – путешествие
Балабанов. Выставка – путешествие
© Planet9