Размещено на портале Архи.ру (www.archi.ru)

01.02.2023

«Альтернативное образование»

Нина Фролова
Объект:
Детский сад района Ветрник
Адрес:
Чехия, None, Ржичаны.
Мастерская:
Architektura

Детский сад в Ржичанах недалеко от Праги по проекту бюро Architektura.

Новый детский сад расположен на окраине города Ржичаны, на территории нового района Ветрник. Он составляет половину пока не воплощенного проекта: к нему в будущем добавится спортивный зал для местных жителей. Вокруг обеих построек разобьют сад.
 

Детский сад района Ветрник
Детский сад района Ветрник
Фото © Filip Šlapal. Предоставлено агентством Linka

Пока же возведено только здание «детского дошкольного учреждения», причем не без некоторых потерь по сравнению с проектом, как признаются архитекторы. Они как обычно вызваны сокращением бюджета, который в итоге составил 2,64 млн евро. Заказчиком выступил муниципалитет Ржичан.
 
Детский сад района Ветрник
Детский сад района Ветрник
Фото © Filip Šlapal. Предоставлено агентством Linka

К улице детский сад обращен регулярным фасадом, к которому примыкают холл, административные и подсобные помещения. Этот фасад украшен вертикальным озеленением, которое надеются в будущем еще расширить.
 
Детский сад района Ветрник
Детский сад района Ветрник
Фото © Filip Šlapal. Предоставлено агентством Linka

Прямоугольный объем – символ функциональности и прагматизма, «системы», для которой готовит ребенка система образования, как объясняют архитекторы. Но им важно дать маленькому человеку и «альтернативное образование», а не только основу для превращения в послушного и эффективного члена общества.
 
Детский сад района Ветрник Фото © Filip Šlapal. Предоставлено агентством Linka
Детский сад района Ветрник
Фото © Filip Šlapal. Предоставлено агентством Linka
Детский сад района Ветрник Фото © Filip Šlapal. Предоставлено агентством Linka
Детский сад района Ветрник
Фото © Filip Šlapal. Предоставлено агентством Linka
Детский сад района Ветрник Фото © Filip Šlapal. Предоставлено агентством Linka
Детский сад района Ветрник
Фото © Filip Šlapal. Предоставлено агентством Linka

Для того чтобы развить детский оптимизм, свободу мышления, непредсказуемость, спонтанность и пусть даже неорганизованность, архитекторы добавили к классным комнатам яркие объемы, покрытые снаружи металлочерепицей. Это и архетипические жилища, и укрытия, и вигвамы, и пагоды с интригующими треугольными окошками. Атриум также задуман как пространство для игр и физического развития: там размещены веревочные аттракционы, закрепленные с помощью стволов деревьев.
Детский сад района Ветрник
Детский сад района Ветрник
Фото © Filip Šlapal. Предоставлено агентством Linka
Детский сад района Ветрник
Детский сад района Ветрник
Фото © Filip Šlapal. Предоставлено агентством Linka
Детский сад района Ветрник Фото © Filip Šlapal. Предоставлено агентством Linka
Детский сад района Ветрник
Фото © Filip Šlapal. Предоставлено агентством Linka
Детский сад района Ветрник Фото © Filip Šlapal. Предоставлено агентством Linka
Детский сад района Ветрник
Фото © Filip Šlapal. Предоставлено агентством Linka
Детский сад района Ветрник Фото © Filip Šlapal. Предоставлено агентством Linka
Детский сад района Ветрник
Фото © Filip Šlapal. Предоставлено агентством Linka
Детский сад района Ветрник Фото © Filip Šlapal. Предоставлено агентством Linka
Детский сад района Ветрник
Фото © Filip Šlapal. Предоставлено агентством Linka
Детский сад района Ветрник
Детский сад района Ветрник
Фото © Filip Šlapal. Предоставлено агентством Linka
Детский сад района Ветрник
Детский сад района Ветрник
Фото © Filip Šlapal. Предоставлено агентством Linka
Детский сад района Ветрник Фото © Filip Šlapal. Предоставлено агентством Linka
Детский сад района Ветрник
Фото © Filip Šlapal. Предоставлено агентством Linka
Детский сад района Ветрник Фото © Filip Šlapal. Предоставлено агентством Linka
Детский сад района Ветрник
Фото © Filip Šlapal. Предоставлено агентством Linka
Детский сад района Ветрник Фото © Filip Šlapal. Предоставлено агентством Linka
Детский сад района Ветрник
Фото © Filip Šlapal. Предоставлено агентством Linka
Детский сад района Ветрник Фото © Filip Šlapal. Предоставлено агентством Linka
Детский сад района Ветрник
Фото © Filip Šlapal. Предоставлено агентством Linka
Детский сад района Ветрник Фото © Filip Šlapal. Предоставлено агентством Linka
Детский сад района Ветрник
Фото © Filip Šlapal. Предоставлено агентством Linka
Детский сад района Ветрник
Детский сад района Ветрник
Фото © Filip Šlapal. Предоставлено агентством Linka
Детский сад района Ветрник
Детский сад района Ветрник
Фото © Filip Šlapal. Предоставлено агентством Linka
Детский сад района Ветрник
Детский сад района Ветрник
Фото © Filip Šlapal. Предоставлено агентством Linka
Детский сад района Ветрник
Детский сад района Ветрник
Фото © Filip Šlapal. Предоставлено агентством Linka
Детский сад района Ветрник
Детский сад района Ветрник
Фото © Filip Šlapal. Предоставлено агентством Linka
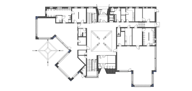
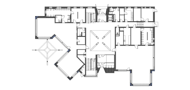
Детский сад района Ветрник
Детский сад района Ветрник
© Architektura
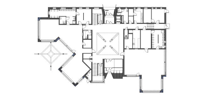
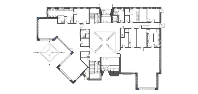
Детский сад района Ветрник
Детский сад района Ветрник
© Architektura
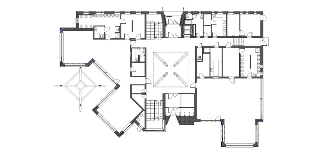
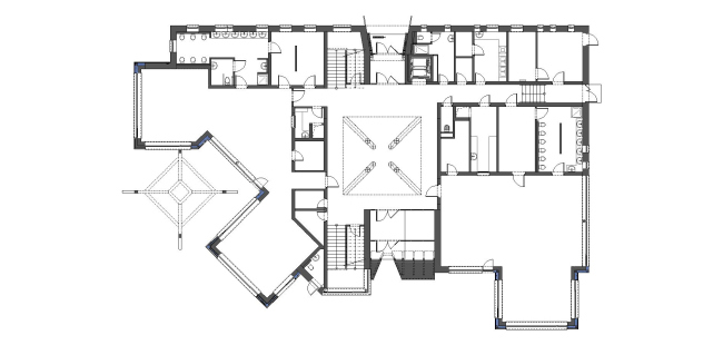
Детский сад района Ветрник
Детский сад района Ветрник
© Architektura
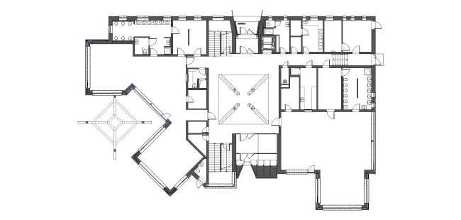
Детский сад района Ветрник
Детский сад района Ветрник
© Architektura
Детский сад района Ветрник
Детский сад района Ветрник
© Architektura
Детский сад района Ветрник
Детский сад района Ветрник
© Architektura
Детский сад района Ветрник
Детский сад района Ветрник
© Architektura
Детский сад района Ветрник
Детский сад района Ветрник
© Architektura