Размещено на портале Архи.ру (www.archi.ru)

01.02.2023

Ларец самоцветов

Объект:
Дача архитекторов в поселке Таптыково
Адрес:
Россия, Уфа.
Мастерская:
PRSPKT.Architects
Авторский коллектив:
Архитекторы: ​Юлия Мусина, Александр Сафаров
 

За лаконичными фасадами загородного дома семьи архитекторов из Уфы прячется личный «музей»: насыщенное по цвету и фактурам пространство, в котором каждый предмет и дизайнерское решение несет отпечаток индивидуальности хозяев.

Описание предоставлено архитекторами

Авторы проекта и хозяева дома – семейная пара, архитекторы Александр Сафаров и Юлия Мусина из Уфы, основатели Prspkt.Architects. Деревянный дом в селе Таптыково, куда они приезжают в выходные дни, строился и обустраивался несколько лет, меняясь вместе с подрастающими детьми и мастерской. 
Дача архитекторов в поселке Таптыково
Дача архитекторов в поселке Таптыково
Фотография © Наталья Горбунова / предоставлена PRSPKT.Architects

Дом каркасный, с лаконичными фасадами, которые украшают большие окна: уфимский климат и долгие уральские зимы нечасто радуют солнечными днями, поэтому было важно впустить в комнаты как можно больше света. Дерево преобладает снаружи и внутри: стены обшиты вагонкой, полы, мебель и аксессуары тоже деревянные. 
Дача архитекторов в поселке Таптыково Фотография © Наталья Горбунова / предоставлена PRSPKT.Architects
Дача архитекторов в поселке Таптыково
Фотография © Наталья Горбунова / предоставлена PRSPKT.Architects
Дача архитекторов в поселке Таптыково Фотография © Наталья Горбунова / предоставлена PRSPKT.Architects
Дача архитекторов в поселке Таптыково
Фотография © Наталья Горбунова / предоставлена PRSPKT.Architects

«Сердцем» дома стала двусветная гостиная с обеденным столом и зоной отдыха: отсюда просматриваются все уголки дома и двор. На первом этаже также располагается спальня родителей и небольшая кухня, на втором – детские комнаты и кабинет в антресоли. Тон всем пространствам задают натуральные материалы: дерево, керамика, металл, стекло, текстиль.
Дача архитекторов в поселке Таптыково Фотография © Наталья Горбунова / предоставлена PRSPKT.Architects
Дача архитекторов в поселке Таптыково
Фотография © Наталья Горбунова / предоставлена PRSPKT.Architects
Дача архитекторов в поселке Таптыково Фотография © Наталья Горбунова / предоставлена PRSPKT.Architects
Дача архитекторов в поселке Таптыково
Фотография © Наталья Горбунова / предоставлена PRSPKT.Architects
Дача архитекторов в поселке Таптыково Фотография © Наталья Горбунова / предоставлена PRSPKT.Architects
Дача архитекторов в поселке Таптыково
Фотография © Наталья Горбунова / предоставлена PRSPKT.Architects
Дача архитекторов в поселке Таптыково Фотография © Наталья Горбунова / предоставлена PRSPKT.Architects
Дача архитекторов в поселке Таптыково
Фотография © Наталья Горбунова / предоставлена PRSPKT.Architects
Дача архитекторов в поселке Таптыково Фотография © Наталья Горбунова / предоставлена PRSPKT.Architects
Дача архитекторов в поселке Таптыково
Фотография © Наталья Горбунова / предоставлена PRSPKT.Architects
Дача архитекторов в поселке Таптыково Фотография © Наталья Горбунова / предоставлена PRSPKT.Architects
Дача архитекторов в поселке Таптыково
Фотография © Наталья Горбунова / предоставлена PRSPKT.Architects
Дача архитекторов в поселке Таптыково Фотография © Наталья Горбунова / предоставлена PRSPKT.Architects
Дача архитекторов в поселке Таптыково
Фотография © Наталья Горбунова / предоставлена PRSPKT.Architects

Каждый предмет и решение индивидуально и что-то сообщает о хозяевах дома: ковры привезены из путешествий, картины написаны Юлией, посуда найдена в антикварных лавках, старинная мебель отреставрирована. Новые изделия мастера проектировали в соавторстве с Александром и Юлией. Поскольку хозяева считают народную культуру важным ресурсом для развития архитектуры, ее мотивы присутствуют во всех комнатах.
Дача архитекторов в поселке Таптыково Фотография © Наталья Горбунова / предоставлена PRSPKT.Architects
Дача архитекторов в поселке Таптыково
Фотография © Наталья Горбунова / предоставлена PRSPKT.Architects
Дача архитекторов в поселке Таптыково Фотография © Наталья Горбунова / предоставлена PRSPKT.Architects
Дача архитекторов в поселке Таптыково
Фотография © Наталья Горбунова / предоставлена PRSPKT.Architects
Дача архитекторов в поселке Таптыково Фотография © Наталья Горбунова / предоставлена PRSPKT.Architects
Дача архитекторов в поселке Таптыково
Фотография © Наталья Горбунова / предоставлена PRSPKT.Architects
Дача архитекторов в поселке Таптыково Фотография © Наталья Горбунова / предоставлена PRSPKT.Architects
Дача архитекторов в поселке Таптыково
Фотография © Наталья Горбунова / предоставлена PRSPKT.Architects
Дача архитекторов в поселке Таптыково Фотография © Наталья Горбунова / предоставлена PRSPKT.Architects
Дача архитекторов в поселке Таптыково
Фотография © Наталья Горбунова / предоставлена PRSPKT.Architects
Дача архитекторов в поселке Таптыково Фотография © Наталья Горбунова / предоставлена PRSPKT.Architects
Дача архитекторов в поселке Таптыково
Фотография © Наталья Горбунова / предоставлена PRSPKT.Architects
Дача архитекторов в поселке Таптыково Фотография © Наталья Горбунова / предоставлена PRSPKT.Architects
Дача архитекторов в поселке Таптыково
Фотография © Наталья Горбунова / предоставлена PRSPKT.Architects
Дача архитекторов в поселке Таптыково Фотография © Наталья Горбунова / предоставлена PRSPKT.Architects
Дача архитекторов в поселке Таптыково
Фотография © Наталья Горбунова / предоставлена PRSPKT.Architects
Дача архитекторов в поселке Таптыково
Дача архитекторов в поселке Таптыково
© Изображение предоставлено PRSPKT.Architects
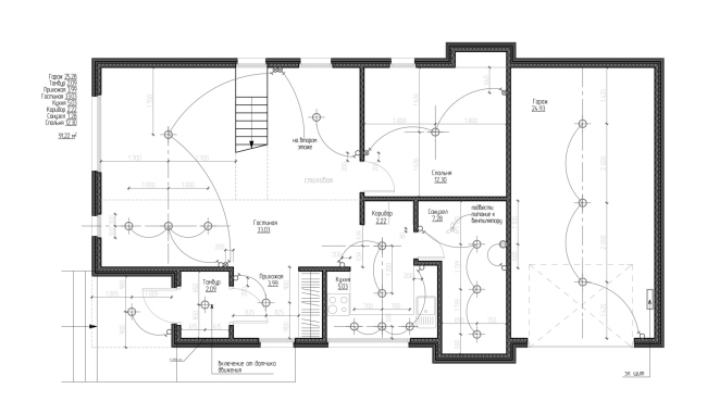
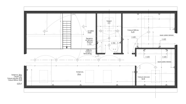
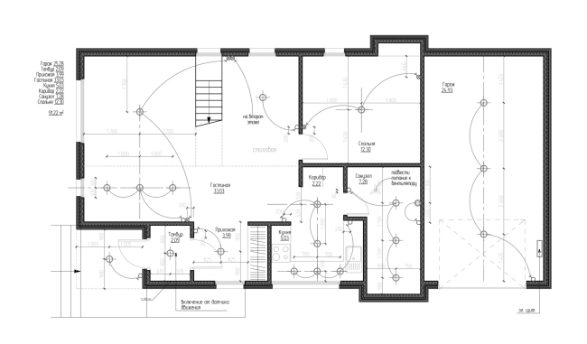
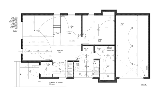
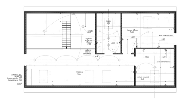
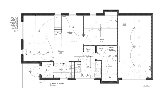
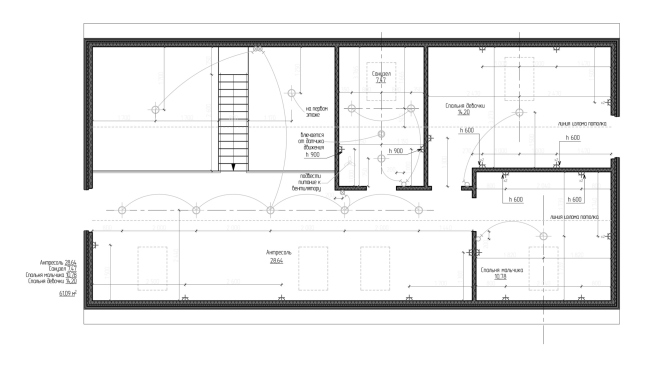
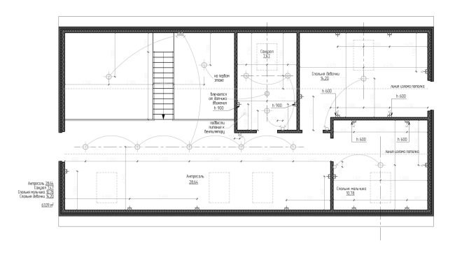
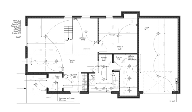
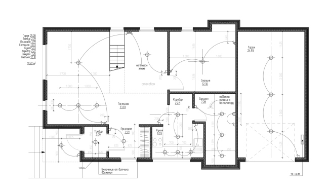
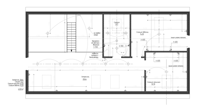
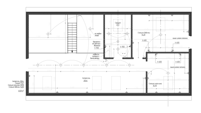
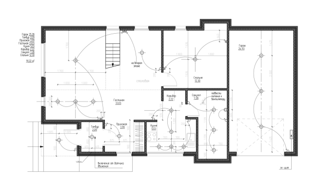
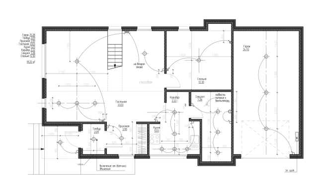
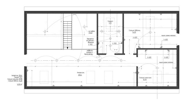
Дача архитекторов в поселке Таптыково
Дача архитекторов в поселке Таптыково
© Изображение предоставлено PRSPKT.Architects