Размещено на портале Архи.ру (www.archi.ru)

23.01.2023

В небе над «Бункером»

Нина Фролова
Объект:
Жилой дом Bunker Tower
Адрес:
Нидерланды, None, Эйндховен.
Мастерская:
Powerhouse Company

Студенческий центр в стиле брутализма стал «базой» для жилой башни Bunker Tower по проекту Powerhouse Company в Эйндховене.

Студенческий центр De Bunker, одновременно типичное и очень выразительное бруталистское сооружение по проекту Хёйга Арта Маасканта, служил учащимся Технического университета Эйндховена с 1969 по 2016/2017 год. Здание ценили и любили, но в XXI веке оно уже обветшало и требовало реконструкции.
 

Жилой дом Bunker Tower
Жилой дом Bunker Tower
Фото © Sebastian van Damme

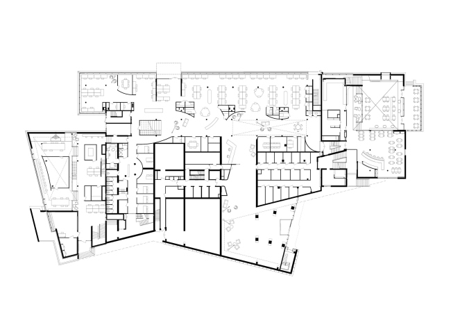
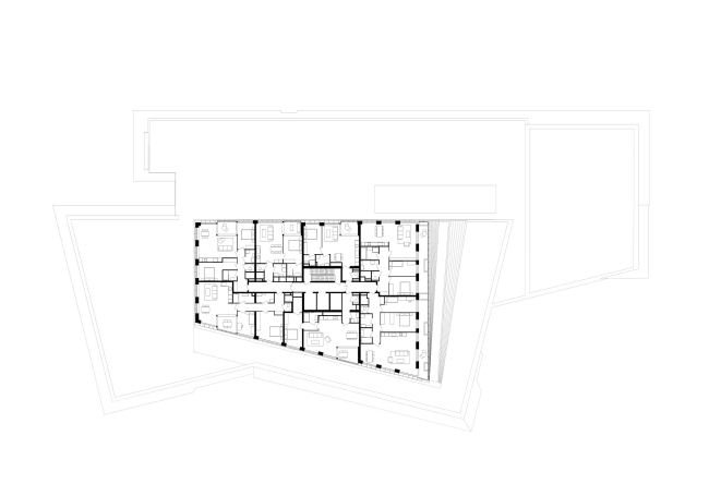
Эта реконструкция пришла вместе со сменой функции: тщательно отреставрированный «Бункер» стал подиумом для 32-этажного многоквартирного дома (100 м). Башня пристроена рядом, но как будто вырастает из бетонной постройки с ее характерными трапециевидными очертаниями.
 
Жилой дом Bunker Tower
Жилой дом Bunker Tower
Фото © Sebastian van Damme

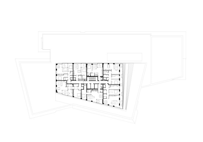
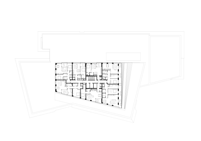
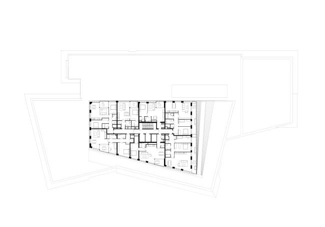
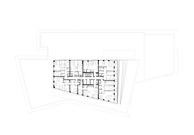
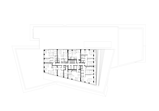
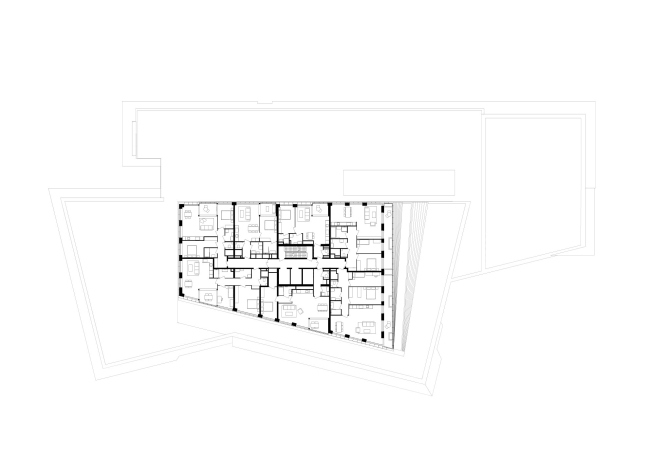
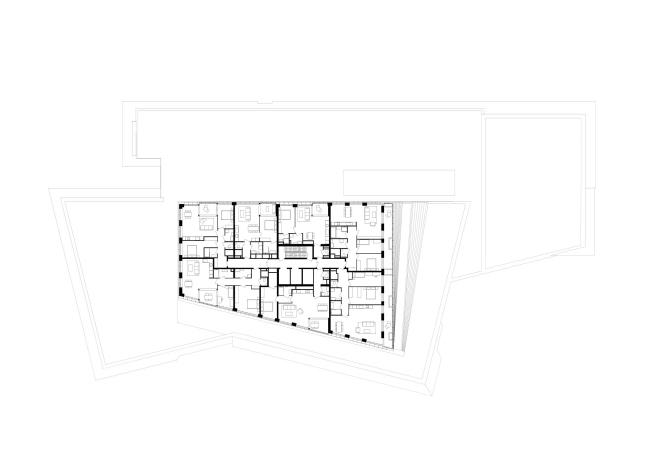
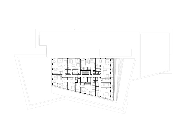
Фасад дома выполнен из дерева и природного камня, чтобы дать иную трактовку монументальности по сравнению с «Бункером». На площади около 30 тыс. м2 расположили 210 премиальных квартир: как для сдачи в аренду, так и на продажу.
 
Жилой дом Bunker Tower
Жилой дом Bunker Tower
Фото © Sebastian van Damme

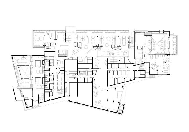
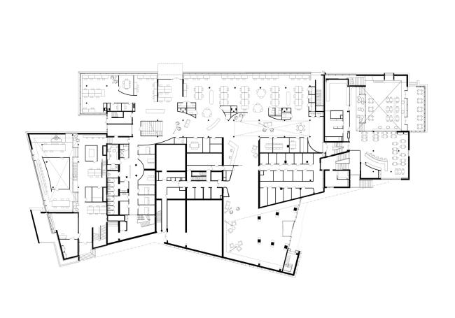
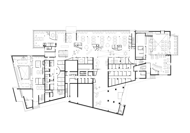
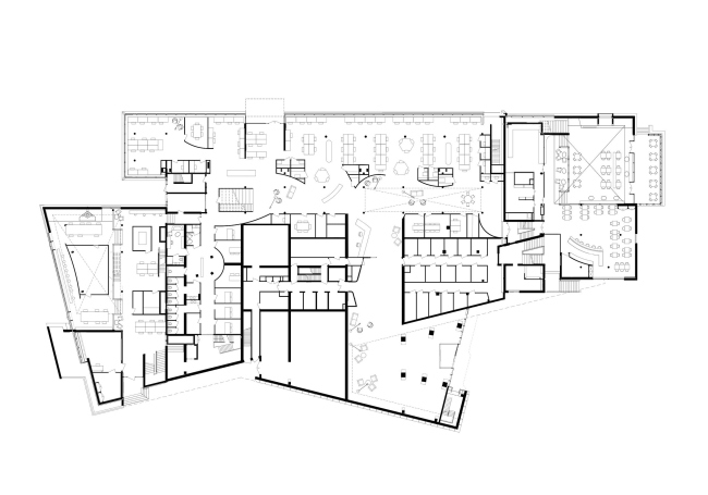
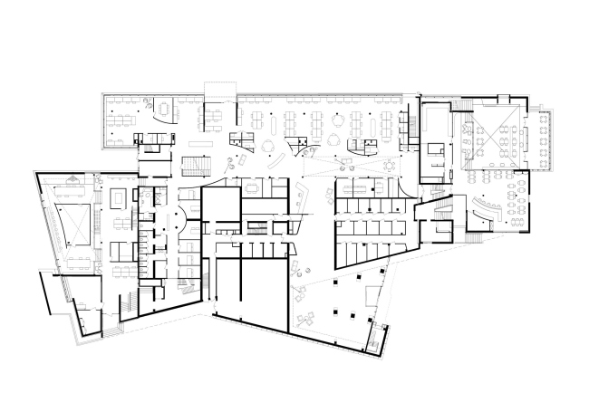
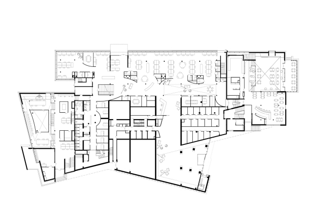
«Бункер» тщательно отреставрировали: для приведения в порядок его бетонных фасадов потребовалось 8 месяцев и 20 «подходов к снаряду». Внутри теперь офисы образовательной компании Goodhabitz и кафе-ресторан.
 
Жилой дом Bunker Tower
Жилой дом Bunker Tower
Фото © Sebastian van Damme

Свою роль в проекте сыграли ландшафтные архитекторы DELVA Landscape Architecture & Urbanism: вместо наземной парковки они создали парк, который поможет управлять дождевой водой всему прилегающему району. Такое использование территории стало возможным благодаря устройству под башней подземного гаража. Кроме того, в самой Bunker Tower вплоть до 18-го этажа балконы и лоджии озеленены.
Жилой дом Bunker Tower
Жилой дом Bunker Tower
Фото © Sebastian van Damme
Жилой дом Bunker Tower
Жилой дом Bunker Tower
Фото © Sebastian van Damme
Жилой дом Bunker Tower
Жилой дом Bunker Tower
Фото © Sebastian van Damme
Жилой дом Bunker Tower
Жилой дом Bunker Tower
Фото © Sebastian van Damme
Жилой дом Bunker Tower
Жилой дом Bunker Tower
Фото © Sebastian van Damme
Жилой дом Bunker Tower
Жилой дом Bunker Tower
Фото © Sebastian van Damme
Жилой дом Bunker Tower
Жилой дом Bunker Tower
Фото © Sebastian van Damme
Жилой дом Bunker Tower
Жилой дом Bunker Tower
Фото © Sebastian van Damme
Жилой дом Bunker Tower
Жилой дом Bunker Tower
Фото © Sebastian van Damme
Жилой дом Bunker Tower
Жилой дом Bunker Tower
Фото © Sebastian van Damme
Жилой дом Bunker Tower
Жилой дом Bunker Tower
Фото © Sebastian van Damme
Жилой дом Bunker Tower
Жилой дом Bunker Tower
Фото © Sebastian van Damme
Жилой дом Bunker Tower
Жилой дом Bunker Tower
Фото © Sebastian van Damme
Жилой дом Bunker Tower
Жилой дом Bunker Tower
Фото © Sebastian van Damme
Жилой дом Bunker Tower
Жилой дом Bunker Tower
Фото © Sebastian van Damme
Жилой дом Bunker Tower
Жилой дом Bunker Tower
Фото © Sebastian van Damme
Жилой дом Bunker Tower
Жилой дом Bunker Tower
© Powerhouse Company
Жилой дом Bunker Tower
Жилой дом Bunker Tower
© Powerhouse Company
Жилой дом Bunker Tower
Жилой дом Bunker Tower
© Powerhouse Company