Размещено на портале Архи.ру (www.archi.ru)

18.01.2023

Круги на воде

Нина Фролова
Объект:
Морской центр в Эсбьерге
Адрес:
Дания, None, Эсбьерг.
Мастерская:
Snøhetta
Авторский коллектив:
WERK Arkitekter и Snøhetta

В Эсбьерге открылся клуб водных видов спорта по проекту бюро WERK и Snøhetta.

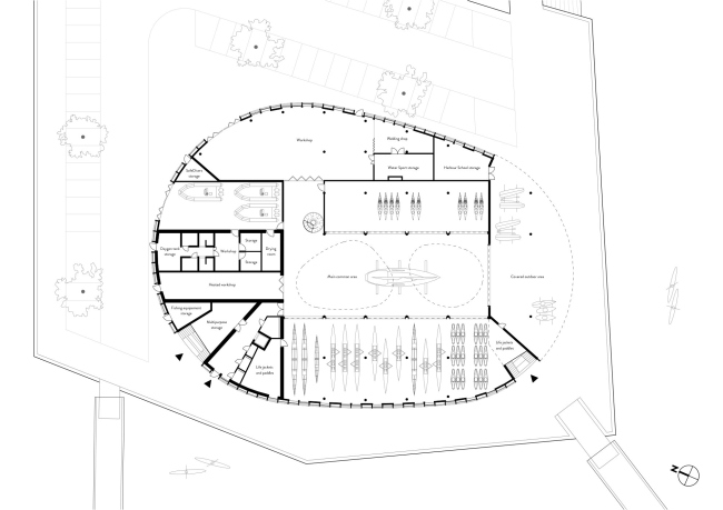
Здание в гавани датского города вместило различные спортивные клубы (гребли, парусного спорта, байдарочный, дайвинга, троеборья), образовательный центр, пространства для тренировок, эллинг и мастерские (общая площадь – 3800 м2). Оно одновременно служит общественным центром, открытым всем желающим. Большие окна позволяют поддерживать в интерьере визуальную связь с морем, но также и дают прохожим возможность заглянуть внутрь. Кроме того, в сумерки Морской центр светится изнутри, что позволило назвать его «Фонарь».
 

Морской центр в Эсбьерге
Морской центр в Эсбьерге
Фото © wichmann+bendtsen photography

Округлый объем с несколькими точками входа и ведущими на открытую террасу второго этажа лестницами-трибунами делают постройку по-настоящему открытой, «инклюзивной». Форма здания и трактовка фасада позаимствованы в деревянном судостроении, что актуально для портового Эсбьерга. Ритм фасада также должен напоминать расходящиеся от брошенного камешка круги на воде.
 
Морской центр в Эсбьерге
Морской центр в Эсбьерге
Фото © wichmann+bendtsen photography

Большинство функций собраны на втором этаже, а на первом размещены мастерские и эллинг: они соединены с водой специальным мостиком. Все части постройки, от монолитного бетона конструкции до деревянной обшивки, рассчитаны на шторма и даже наводнение. В случае серьезной непогоды или даже бедствия посетители или прохожие смогут укрыться на малых террасах второго этажа, защищенных от ветра, а также на основной, крупной.
 
Морской центр в Эсбьерге
Морской центр в Эсбьерге
Фото © wichmann+bendtsen photography

При реализации проекта была использована только эко-сертифицированная европейская древесина. Среди «зеленых» компонентов проекта – солнечные батареи, кольцом охватывающие кровлю.
Морской центр в Эсбьерге
Морской центр в Эсбьерге
Фото © wichmann+bendtsen photography
Морской центр в Эсбьерге
Морской центр в Эсбьерге
Фото © wichmann+bendtsen photography
Морской центр в Эсбьерге
Морской центр в Эсбьерге
Фото © wichmann+bendtsen photography
Морской центр в Эсбьерге
Морской центр в Эсбьерге
Фото © wichmann+bendtsen photography
Морской центр в Эсбьерге
Морской центр в Эсбьерге
Фото © wichmann+bendtsen photography
Морской центр в Эсбьерге Фото © wichmann+bendtsen photography
Морской центр в Эсбьерге
Фото © wichmann+bendtsen photography
Морской центр в Эсбьерге Фото © wichmann+bendtsen photography
Морской центр в Эсбьерге
Фото © wichmann+bendtsen photography
Морской центр в Эсбьерге
Морской центр в Эсбьерге
Фото © wichmann+bendtsen photography
Морской центр в Эсбьерге
Морской центр в Эсбьерге
Фото © wichmann+bendtsen photography
Морской центр в Эсбьерге
Морской центр в Эсбьерге
Фото © wichmann+bendtsen photography
Морской центр в Эсбьерге
Морской центр в Эсбьерге
Фото © wichmann+bendtsen photography
Морской центр в Эсбьерге
Морской центр в Эсбьерге
Фото © wichmann+bendtsen photography
Морской центр в Эсбьерге
Морской центр в Эсбьерге
Фото © wichmann+bendtsen photography
Морской центр в Эсбьерге
Морской центр в Эсбьерге
© WERK Arkitekter
Морской центр в Эсбьерге
Морской центр в Эсбьерге
© WERK Arkitekter
Морской центр в Эсбьерге
Морской центр в Эсбьерге
© WERK Arkitekter
Морской центр в Эсбьерге
Морской центр в Эсбьерге
© WERK Arkitekter