|
Детский центр в Екатеринбурге, где архитекторам мастерской «Образ жизни» удалось выдержать стиль во всем: от праздничной и игровой зоны до классов, кабинета директора и даже формы педагогов.
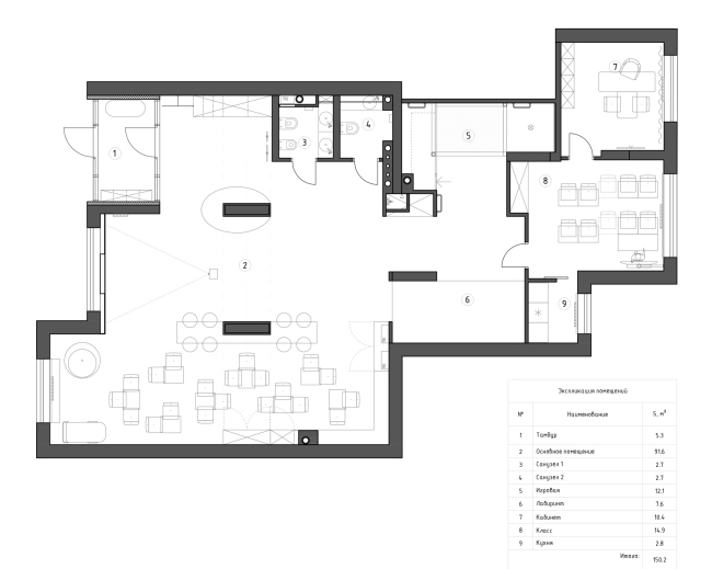
Описание предоставлено архитекторами Детский центр Mamarada располагается на первом этаже нового жилого комплекса, построенного недалеко от центра города. Несмотря на компактную планировку, пространство удалось наполнить функциями и простором: центр включает зону для праздников, игровую комнату, классы, кабинет директора и системы хранения.
Детский центр Mamarada© Образ жизни
Входная группа с тамбуром – часть общего пространства, отделенная колонной. Даже если гость не идет дальше, здесь он все равно чувствует стилистику и составляет впечатление о месте. Напротив входа располагаются зеркала овальной формы и пуф на фоне рельефной стены с логотипом.
Детский центр MamaradaФотография © Наталья Горбунова / предоставлена Образ жизниДетский центр MamaradaФотография © Наталья Горбунова / предоставлена Образ жизни Авторам проекта было важно сохранить чистоту пространства. Поэтому для гостей, которые всегда приходят на мероприятия с подарками, сменной обувью и одеждой есть большой шкаф со множеством индивидуальных ячеек. Открытую вешалку используют дети, приходя с прогулки.
Детский центр MamaradaФотография © Наталья Горбунова / предоставлена Образ жизни
Пространство для праздника разделено барной стойкой на две зоны: сцену и место для угощения. Во время учебного процесса оно легко превращается в творческую лабораторию, где ребята рисуют и лепят. Системы для хранения вмещают все необходимое для обоих процессов: и посуду, и канцелярию. В одном из шкафов скрыты противопожарное и звуковое оборудование.
Детский центр MamaradaФотография © Наталья Горбунова / предоставлена Образ жизни
Мягкую зону в углу между двух шкафов изначально предусматривали для гостей и родителей, однако дети тоже полюбили туда забираться. Мягкий пуф у окна, переходящий в подоконник и кресло-пузырь, часто служит фотозоной. Кэнди-бар на колесиках, неотъемлемая часть современных детских праздников, также выдержан в стилистике пространства.
 Анастасия Кутовая, Образ жизни Пространство – архитектурно. Каждая линия не случайна, формы потолка переходят в объемы мебели и наоборот. Мне очень нравятся как в общую композицию вписались арки – они выделяют зону для активностей и праздников – сцену. Общую композицию дополняют графичные обводки, задавая некую стилизацию.
Детский центр MamaradaФотография © Наталья Горбунова / предоставлена Образ жизниДетский центр MamaradaФотография © Наталья Горбунова / предоставлена Образ жизниДетский центр MamaradaФотография © Наталья Горбунова / предоставлена Образ жизниДетский центр MamaradaФотография © Наталья Горбунова / предоставлена Образ жизниДетский центр MamaradaФотография © Наталья Горбунова / предоставлена Образ жизниДетский центр MamaradaФотография © Наталья Горбунова / предоставлена Образ жизни Игровая комната состоит из двух частей – лабиринта с полосой препятствий и активной зоны со скалодромом, канатом, ступенями, бизибордом и игрушками. Интересную, безопасную и одновременно эстетичную игровую комнату сделать оказалось не так просто: например, детский комплекс в нейтральных нежных цветах авторы попросту не нашли, поэтому он белый.
Детский центр MamaradaФотография © Наталья Горбунова / предоставлена Образ жизниДетский центр MamaradaФотография © Наталья Горбунова / предоставлена Образ жизниДетский центр MamaradaФотография © Наталья Горбунова / предоставлена Образ жизниДетский центр MamaradaФотография © Наталья Горбунова / предоставлена Образ жизниДетский центр MamaradaФотография © Наталья Горбунова / предоставлена Образ жизниДетский центр MamaradaФотография © Наталья Горбунова / предоставлена Образ жизни Класс отделен от основной зоны. Он компактный, но светлый и уютный. Во всю стену расположилась маркерная доска, незаметная, но при этом максимально функциональная: она подходит для записей и размещения учебных материалов или выставок. При необходимости сюда можно принести столы и стулья из основного пространства.
Детский центр MamaradaФотография © Наталья Горбунова / предоставлена Образ жизниДетский центр MamaradaФотография © Наталья Горбунова / предоставлена Образ жизни Кабинет директора строгий и графичный. Арочные элементы у шкафов выполнены в виде графики, стол с островком для посетителей изготовлен по чертежам архитекторов.
Детский центр MamaradaФотография © Наталья Горбунова / предоставлена Образ жизни
Большинство элементов интерьера – авторские, изготовленные по чертежам Анастасии Кутовой. Форму столов разрабатывали так, чтобы во время праздников или учебного процесса их можно было составлять в различные композиции. Черно-белые полосы на полу из гомогенного винила, который оказался единственно возможным материалом для реализации идеи по зонированию, – ювелирная работа мастеров. Завершающий штрих – брендированная форма для педагогов и воспитанников.
Детский центр MamaradaФотография © Наталья Горбунова / предоставлена Образ жизниДетский центр MamaradaФотография © Наталья Горбунова / предоставлена Образ жизниДетский центр MamaradaФотография © Наталья Горбунова / предоставлена Образ жизни
|