|
Архсовет рассмотрел офисную башню у моста Багратион. Авторы Сергей Чобан и СПИЧ. Высота – 398.1 м (регламент разрешал 400 м). По словам Сергея Кузнецова, идея доминанты на этом месте возникла недавно, ранее здесь ничего не планировалось.
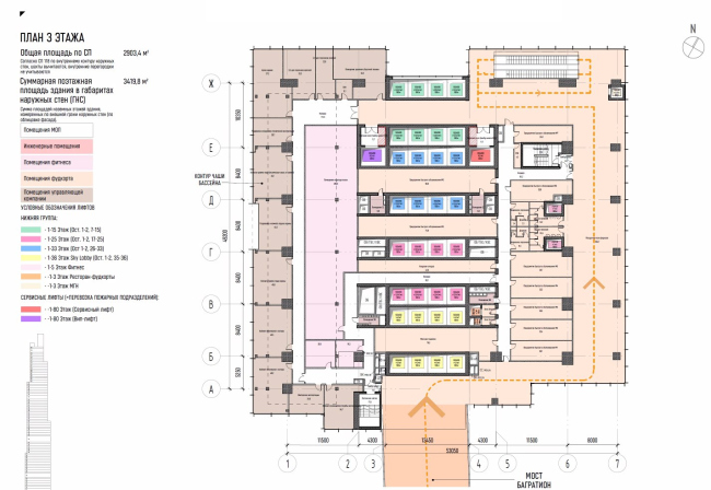
Сергей Чобан сравнил композицию с архитектоном. На оси моста – 6 лифтов, по всей высоте распределены атриумы, в самом верху ресторан с террасой на его кровле. Развитая общественная функция «пронизывает» объем насквозь, «поднимаясь» до самого верха. В 4-5 этажах – фитнес с двусветным бассейном. Фасады стеклянные, с множеством тонких ламелей, они должны сделать башню более светлой, чем соседние. Вечерняя подсветка – прохладного оттенка.
Совет горячо поддержал проект. Коллеги поздравляли Сергея Чобана с блестящим докладом и высококлассной архитектурой. Н. Ляшенко осторожно усомнился в масштабе, П. Кудрявцев предложил еще больше развить общественную функцию, А. Асадов – подумать о связи с Сити со стороны лестниц.
Вскоре расскажем подробности.
 Башня у моста Багратион© СПИЧ / увидено на архитектурном совете 07.12.2022
Башня у моста Багратион© СПИЧ / увидено на архитектурном совете 07.12.2022
Башня у моста Багратион© СПИЧ / увидено на архитектурном совете 07.12.2022
Башня у моста Багратион© СПИЧ / увидено на архитектурном совете 07.12.2022
Башня у моста Багратион© СПИЧ / увидено на архитектурном совете 07.12.2022
Башня у моста Багратион© СПИЧ / увидено на архитектурном совете 07.12.2022
Башня у моста Багратион© СПИЧ / увидено на архитектурном совете 07.12.2022
Башня у моста Багратион© СПИЧ / увидено на архитектурном совете 07.12.2022
Башня у моста Багратион© СПИЧ / увидено на архитектурном совете 07.12.2022
Башня у моста Багратион© СПИЧ / увидено на архитектурном совете 07.12.2022
|