Размещено на портале Архи.ру (www.archi.ru)

03.11.2022

Перевоспитание интроверта

Анна Старостина
Объект:
Торговый центр La Part-Dieu
Адрес:
Франция, None, Лион.
Мастерская:
MVRDV

Бюро MVRDV завершило проект трансформации громоздкого торгового центра 1970-х годов La Part-Dieu в центре Лиона. Сохранив идентичность здания, архитекторы сделали его важной частью городского пространства.

Гигантский торговый центр, построенный в 1970-х в деловом и коммерческом районе Лиона Ла Пар-Дье не отвечал ни функциональным, ни градостроительным, ни эстетическим требованиям нашего времени. Тем не менее, просто снос более 130 000 м2 торговых площадей, занимающих примерно 12 кварталов, нанес бы окружающей среде и городу серьезный вред и потребовал бы слишком больших финансовых, временных и людских ресурсов.

Торговый центр La Part-Dieu в Лионе
Торговый центр La Part-Dieu в Лионе
Фотография © Ossip van Duivenbode / предоставлена MVRDV
Торговый центр La Part-Dieu в Лионе
Торговый центр La Part-Dieu в Лионе
Фотография © Ossip van Duivenbode / предоставлена MVRDV
Торговый центр La Part-Dieu в Лионе
Торговый центр La Part-Dieu в Лионе
Фотография © Ossip van Duivenbode / предоставлена MVRDV

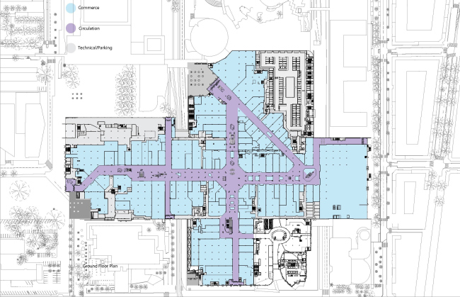
Сам устаревший объект нидерландское бюро MVRDV, разрабатывавшее проект реконструкции, сравнивают с неповоротливым исполином-интровертом, а его возвращение городу называют «ресоциализацией». Им удалось, максимально использовав возможности уже имеющихся строений и сохранив узнаваемую эстетику комплекса, увеличить площади до 180 000 м2, восстановить утраченные внутренние связи между кварталами района, создать комфортные общественные пространства и визуально привлекательный образ.
Торговый центр La Part-Dieu в Лионе
Торговый центр La Part-Dieu в Лионе
Фотография © Ossip van Duivenbode / предоставлена MVRDV
Торговый центр La Part-Dieu в Лионе
Торговый центр La Part-Dieu в Лионе
Фотография © Ossip van Duivenbode / предоставлена MVRDV

Для начала избавились от большой наземной парковки, освободив место для новых объемов, и в целом переориентировали инфраструктуру с частного автотранспорта на общественный и на пешеходов. Затем организовали дополнительные входы, перераспределили и перенаправили потоки посетителей, связав внутренние пространства с соседними улицами так, чтобы ТЦ перестал быть непроходимым препятствием, намертво разделяющим фрагменты городской ткани. На крыше создали многоуровневое общественное пространство с кафе, детскими площадками и зелеными зонами. Благодаря торжественным, монументальным лестницам, ведущим от основных входов, оно становится неотъемлемой частью прихотливого и совсем нескучного городского рельефа, организуя новые пешеходные маршруты.
Торговый центр La Part-Dieu в Лионе
Торговый центр La Part-Dieu в Лионе
Фотография © Ossip van Duivenbode / предоставлена MVRDV
Торговый центр La Part-Dieu в Лионе
Торговый центр La Part-Dieu в Лионе
Фотография © Ossip van Duivenbode / предоставлена MVRDV
Торговый центр La Part-Dieu в Лионе
Торговый центр La Part-Dieu в Лионе
Фотография © Ossip van Duivenbode / предоставлена MVRDV
Торговый центр La Part-Dieu в Лионе Фотография © Ossip van Duivenbode / предоставлена MVRDV
Торговый центр La Part-Dieu в Лионе
Фотография © Ossip van Duivenbode / предоставлена MVRDV
Торговый центр La Part-Dieu в Лионе Фотография © Ossip van Duivenbode / предоставлена MVRDV
Торговый центр La Part-Dieu в Лионе
Фотография © Ossip van Duivenbode / предоставлена MVRDV
Торговый центр La Part-Dieu в Лионе Фотография © Ossip van Duivenbode / предоставлена MVRDV
Торговый центр La Part-Dieu в Лионе
Фотография © Ossip van Duivenbode / предоставлена MVRDV
Торговый центр La Part-Dieu в Лионе Фотография © Ossip van Duivenbode / предоставлена MVRDV
Торговый центр La Part-Dieu в Лионе
Фотография © Ossip van Duivenbode / предоставлена MVRDV

Наконец, что-то необходимо было сделать с глухим фасадом, который изначально был закрыт бежевыми бетонными панелями. Отделку и все панели полностью сохранили, отдав тем самым дань уважения прошлому. Сохранили и характерный рисунок из наложенных друг на друга прямоугольников, подчеркнув идентичность здания. Утомительный и невзрачный бежевый при этом заменили на ярко-белый, а у входов и на других открытых городу фрагментах фасадов кладка была разрежена, уступив место панорамному остеклению. Сооснователь и партнер MVRDV Вини Маас, курировавший проект, видит плюс такого решения еще и во множестве возможных ассоциаций: от кружева с обожженными краями до тающего сахара или снега.
Торговый центр La Part-Dieu в Лионе
Торговый центр La Part-Dieu в Лионе
Фотография © Ossip van Duivenbode / предоставлена MVRDV
Торговый центр La Part-Dieu в Лионе
Торговый центр La Part-Dieu в Лионе
Фотография © Ossip van Duivenbode / предоставлена MVRDV

Собственно, все архитектурно-планировочные решения были продиктованы еще и очевидной мыслью, что развитие интернет-торговли заставляет владельцев подобных центров менять подходы к организации и управлению объектами. Чтобы привлечь покупателей, необходимо создавать новые, все более изощренные точки притяжения.
Торговый центр La Part-Dieu в Лионе
Торговый центр La Part-Dieu в Лионе
Фотография © Ossip van Duivenbode / предоставлена MVRDV
Торговый центр La Part-Dieu в Лионе Фотография © Ossip van Duivenbode / предоставлена MVRDV
Торговый центр La Part-Dieu в Лионе
Фотография © Ossip van Duivenbode / предоставлена MVRDV
Торговый центр La Part-Dieu в Лионе Фотография © Ossip van Duivenbode / предоставлена MVRDV
Торговый центр La Part-Dieu в Лионе
Фотография © Ossip van Duivenbode / предоставлена MVRDV
Торговый центр La Part-Dieu в Лионе Фотография © Ossip van Duivenbode / предоставлена MVRDV
Торговый центр La Part-Dieu в Лионе
Фотография © Ossip van Duivenbode / предоставлена MVRDV
Торговый центр La Part-Dieu в Лионе
Торговый центр La Part-Dieu в Лионе
© MVRDV
Торговый центр La Part-Dieu в Лионе
Торговый центр La Part-Dieu в Лионе
© MVRDV
Торговый центр La Part-Dieu в Лионе © MVRDV
Торговый центр La Part-Dieu в Лионе
© MVRDV
Торговый центр La Part-Dieu в Лионе © MVRDV
Торговый центр La Part-Dieu в Лионе
© MVRDV
Торговый центр La Part-Dieu в Лионе © MVRDV
Торговый центр La Part-Dieu в Лионе
© MVRDV
Торговый центр La Part-Dieu в Лионе © MVRDV
Торговый центр La Part-Dieu в Лионе
© MVRDV
Торговый центр La Part-Dieu в Лионе © MVRDV
Торговый центр La Part-Dieu в Лионе
© MVRDV
Торговый центр La Part-Dieu в Лионе © MVRDV
Торговый центр La Part-Dieu в Лионе
© MVRDV
Торговый центр La Part-Dieu в Лионе © MVRDV
Торговый центр La Part-Dieu в Лионе
© MVRDV
Торговый центр La Part-Dieu в Лионе
Торговый центр La Part-Dieu в Лионе
© MVRDV
Торговый центр La Part-Dieu в Лионе
Торговый центр La Part-Dieu в Лионе
© MVRDV