Размещено на портале Архи.ру (www.archi.ru)

28.10.2022

Белый сэндвич

Анна Старостина
Объект:
Сестринское общежитие Мемориального госпиталя короля Чулалонгкорна
Адрес:
Таиланд, None, Бангкок.
Мастерская:
Plan Architect

Тайское бюро Plan Architect составило здание общежития медицинских сестер в Бангкоке из двух высотных пластин, соединенных атриумом, который служит «вытяжной трубой» для качественной естественной вентиляции.

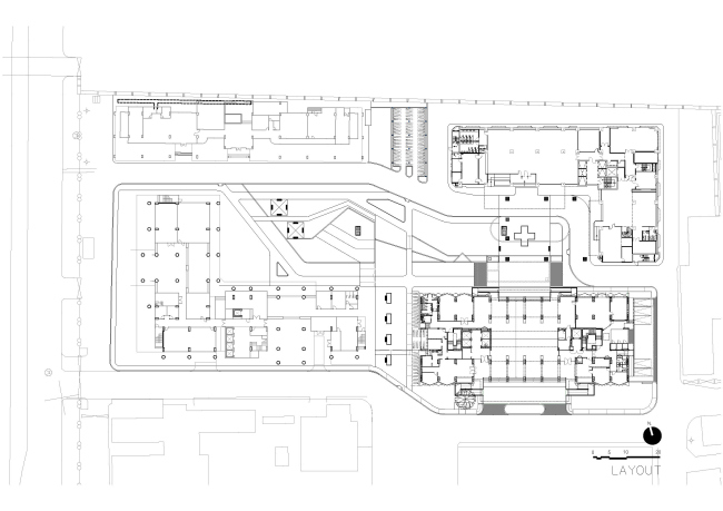
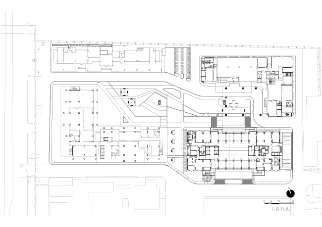
Комплекс построек Мемориального госпиталя короля Чулалонгкорна в Бангкоке расположен по соседству с историческим ипподромом, национальным парком и университетом. Отведенный под строительство участок при этом находится в квартале плотной высотной застройки, доминантами в котором являются три уже работающих общежития для врачей и медсестер.

Сестринское общежитие при Мемориальном госпитале короля Чулалонгкорна в Бангкоке
Сестринское общежитие при Мемориальном госпитале короля Чулалонгкорна в Бангкоке
Фотография © Panoramic Studio / предоставлена Plan Architect
Сестринское общежитие при Мемориальном госпитале короля Чулалонгкорна в Бангкоке
Сестринское общежитие при Мемориальном госпитале короля Чулалонгкорна в Бангкоке
Фотография © Panoramic Studio / предоставлена Plan Architect
Сестринское общежитие при Мемориальном госпитале короля Чулалонгкорна в Бангкоке Фотография © Panoramic Studio / предоставлена Plan Architect
Сестринское общежитие при Мемориальном госпитале короля Чулалонгкорна в Бангкоке
Фотография © Panoramic Studio / предоставлена Plan Architect
Сестринское общежитие при Мемориальном госпитале короля Чулалонгкорна в Бангкоке Фотография © Panoramic Studio / предоставлена Plan Architect
Сестринское общежитие при Мемориальном госпитале короля Чулалонгкорна в Бангкоке
Фотография © Panoramic Studio / предоставлена Plan Architect
Сестринское общежитие при Мемориальном госпитале короля Чулалонгкорна в Бангкоке Фотография © Panoramic Studio / предоставлена Plan Architect
Сестринское общежитие при Мемориальном госпитале короля Чулалонгкорна в Бангкоке
Фотография © Panoramic Studio / предоставлена Plan Architect
Сестринское общежитие при Мемориальном госпитале короля Чулалонгкорна в Бангкоке Фотография © Panoramic Studio / предоставлена Plan Architect
Сестринское общежитие при Мемориальном госпитале короля Чулалонгкорна в Бангкоке
Фотография © Panoramic Studio / предоставлена Plan Architect

Новое 26-этажное здание таким образом позволило закрыть периметр, связав все корпуса и образовав внутреннее безопасное пространство для жильцов. Его первый, проницаемый этаж служит воротами в этот двор (вход даже дополнительно выделен цветом) и обеспечивает связь с окружающим городом и территорией госпиталя.
Сестринское общежитие при Мемориальном госпитале короля Чулалонгкорна в Бангкоке
Сестринское общежитие при Мемориальном госпитале короля Чулалонгкорна в Бангкоке
Фотография © Panoramic Studio / предоставлена Plan Architect
Сестринское общежитие при Мемориальном госпитале короля Чулалонгкорна в Бангкоке
Сестринское общежитие при Мемориальном госпитале короля Чулалонгкорна в Бангкоке
Фотография © Panoramic Studio / предоставлена Plan Architect
Сестринское общежитие при Мемориальном госпитале короля Чулалонгкорна в Бангкоке Фотография © Panoramic Studio / предоставлена Plan Architect
Сестринское общежитие при Мемориальном госпитале короля Чулалонгкорна в Бангкоке
Фотография © Panoramic Studio / предоставлена Plan Architect
Сестринское общежитие при Мемориальном госпитале короля Чулалонгкорна в Бангкоке Фотография © Panoramic Studio / предоставлена Plan Architect
Сестринское общежитие при Мемориальном госпитале короля Чулалонгкорна в Бангкоке
Фотография © Panoramic Studio / предоставлена Plan Architect
Сестринское общежитие при Мемориальном госпитале короля Чулалонгкорна в Бангкоке Фотография © Panoramic Studio / предоставлена Plan Architect
Сестринское общежитие при Мемориальном госпитале короля Чулалонгкорна в Бангкоке
Фотография © Panoramic Studio / предоставлена Plan Architect

Изучив представления будущих жительниц о комфорте, архитекторы выяснили, что большинство из них предпочитают естественную вентиляцию центральной системе кондиционирования и хотят обустроить собственную зеленую зону на балкончике. Пытаясь ответить на запросы, решили отказаться от стандартной для общежитий планировочной схемы с протяженным коридором и комнатами по обе стороны от него.
Сестринское общежитие при Мемориальном госпитале короля Чулалонгкорна в Бангкоке
Сестринское общежитие при Мемориальном госпитале короля Чулалонгкорна в Бангкоке
Фотография © Panoramic Studio / предоставлена Plan Architect
Сестринское общежитие при Мемориальном госпитале короля Чулалонгкорна в Бангкоке
Сестринское общежитие при Мемориальном госпитале короля Чулалонгкорна в Бангкоке
Фотография © Panoramic Studio / предоставлена Plan Architect
Сестринское общежитие при Мемориальном госпитале короля Чулалонгкорна в Бангкоке
Сестринское общежитие при Мемориальном госпитале короля Чулалонгкорна в Бангкоке
Фотография © Panoramic Studio / предоставлена Plan Architect

В результате возникли две самостоятельные жилые пластины, каждая со своим коридором и рядом комнат с внешней стороны. Между собой они соединены свободным пространством, в котором размещены все коммуникации и атриум. Оно и выполняет роль вытяжной трубы, отводящей застоявшийся воздух через крышу, а также позволяет доставить естественный свет во внутренние зоны.  Дополнительно в систему естественной вентиляции включен неожиданный проем в центральной части полностью белого фасада, обнажающий конструкции, отделка которых имитирует темное дерево. В его напоминающей бриллиантовую огранку форме обыгран логотип Общества Красного Креста Таиланда, которое управляет госпиталем.
Сестринское общежитие при Мемориальном госпитале короля Чулалонгкорна в Бангкоке
Сестринское общежитие при Мемориальном госпитале короля Чулалонгкорна в Бангкоке
Фотография © Panoramic Studio / предоставлена Plan Architect
Сестринское общежитие при Мемориальном госпитале короля Чулалонгкорна в Бангкоке Фотография © Panoramic Studio / предоставлена Plan Architect
Сестринское общежитие при Мемориальном госпитале короля Чулалонгкорна в Бангкоке
Фотография © Panoramic Studio / предоставлена Plan Architect
Сестринское общежитие при Мемориальном госпитале короля Чулалонгкорна в Бангкоке Фотография © Panoramic Studio / предоставлена Plan Architect
Сестринское общежитие при Мемориальном госпитале короля Чулалонгкорна в Бангкоке
Фотография © Panoramic Studio / предоставлена Plan Architect
Сестринское общежитие при Мемориальном госпитале короля Чулалонгкорна в Бангкоке Фотография © Panoramic Studio / предоставлена Plan Architect
Сестринское общежитие при Мемориальном госпитале короля Чулалонгкорна в Бангкоке
Фотография © Panoramic Studio / предоставлена Plan Architect

Всего в здании 523 комнаты, и почти все они рассчитаны на двух человек. Каждая имеет общую гостиную зону с кладовкой и отделенную от нее раздвижными дверями спальню с двумя разделенными проходом кроватями и рабочими местами, а также с выходом на балкон. Входная дверь в жилое пространство при этом оборудована дополнительным экраном от насекомых, что позволяет оставлять ее открытой для максимально эффективной вентиляции.
Сестринское общежитие при Мемориальном госпитале короля Чулалонгкорна в Бангкоке
Сестринское общежитие при Мемориальном госпитале короля Чулалонгкорна в Бангкоке
Фотография © Panoramic Studio / предоставлена Plan Architect
Сестринское общежитие при Мемориальном госпитале короля Чулалонгкорна в Бангкоке Фотография © Panoramic Studio / предоставлена Plan Architect
Сестринское общежитие при Мемориальном госпитале короля Чулалонгкорна в Бангкоке
Фотография © Panoramic Studio / предоставлена Plan Architect
Сестринское общежитие при Мемориальном госпитале короля Чулалонгкорна в Бангкоке Фотография © Panoramic Studio / предоставлена Plan Architect
Сестринское общежитие при Мемориальном госпитале короля Чулалонгкорна в Бангкоке
Фотография © Panoramic Studio / предоставлена Plan Architect
Сестринское общежитие при Мемориальном госпитале короля Чулалонгкорна в Бангкоке Фотография © Panoramic Studio / предоставлена Plan Architect
Сестринское общежитие при Мемориальном госпитале короля Чулалонгкорна в Бангкоке
Фотография © Panoramic Studio / предоставлена Plan Architect

Из-за слишком близкого расположения соседних зданий небольшие балконы развернуты под углом, формируя зигзагообразную, немного эшеровскую поверхность объемного фасада. Решетки из выкрашенного в белый цвет алюминия дополнительно защищают от перегрева и лишних взглядов, создавая комфортное пространство для растений и одновременно скрывая все бытовые детали вроде сохнущего белья, выносного блока кондиционера и стиральной машины. Кроме этого, в общежитии работают библиотека, столовая, отдельная прачечная и предусмотрены различные зоны коммуникации и совместного времяпрепровождения.
Сестринское общежитие при Мемориальном госпитале короля Чулалонгкорна в Бангкоке
Сестринское общежитие при Мемориальном госпитале короля Чулалонгкорна в Бангкоке
Фотография © Panoramic Studio / предоставлена Plan Architect
Сестринское общежитие при Мемориальном госпитале короля Чулалонгкорна в Бангкоке
Сестринское общежитие при Мемориальном госпитале короля Чулалонгкорна в Бангкоке
Фотография © Panoramic Studio / предоставлена Plan Architect
Сестринское общежитие при Мемориальном госпитале короля Чулалонгкорна в Бангкоке
Сестринское общежитие при Мемориальном госпитале короля Чулалонгкорна в Бангкоке
© Plan Architect
Сестринское общежитие при Мемориальном госпитале короля Чулалонгкорна в Бангкоке © Plan Architect
Сестринское общежитие при Мемориальном госпитале короля Чулалонгкорна в Бангкоке
© Plan Architect
Сестринское общежитие при Мемориальном госпитале короля Чулалонгкорна в Бангкоке © Plan Architect
Сестринское общежитие при Мемориальном госпитале короля Чулалонгкорна в Бангкоке
© Plan Architect
Сестринское общежитие при Мемориальном госпитале короля Чулалонгкорна в Бангкоке © Plan Architect
Сестринское общежитие при Мемориальном госпитале короля Чулалонгкорна в Бангкоке
© Plan Architect
Сестринское общежитие при Мемориальном госпитале короля Чулалонгкорна в Бангкоке © Plan Architect
Сестринское общежитие при Мемориальном госпитале короля Чулалонгкорна в Бангкоке
© Plan Architect
Сестринское общежитие при Мемориальном госпитале короля Чулалонгкорна в Бангкоке
Сестринское общежитие при Мемориальном госпитале короля Чулалонгкорна в Бангкоке
© Plan Architect
Сестринское общежитие при Мемориальном госпитале короля Чулалонгкорна в Бангкоке
Сестринское общежитие при Мемориальном госпитале короля Чулалонгкорна в Бангкоке
© Plan Architect
Сестринское общежитие при Мемориальном госпитале короля Чулалонгкорна в Бангкоке
Сестринское общежитие при Мемориальном госпитале короля Чулалонгкорна в Бангкоке
© Plan Architect
Сестринское общежитие при Мемориальном госпитале короля Чулалонгкорна в Бангкоке
Сестринское общежитие при Мемориальном госпитале короля Чулалонгкорна в Бангкоке
© Plan Architect