Размещено на портале Архи.ру (www.archi.ru)

19.10.2022

Фасад «по косой»

Нина Фролова
Объект:
Башня Jushi
Адрес:
Китай, None, Цзясин.
Мастерская:
GN Architects

Здание компании Jushi Group по проекту GN Architects – часть процветающей в восточнокитайском городе Тунсян «экономики штаб-квартир».

Тунсян – промышленный центр, входящий в городской округ Цзясин на востоке Китая. В наши дни он переходит от индустрии к сервисной экономике, в основе которой – схема «экономики штаб-квартир». Она подразумевает, что города, где много головных офисов крупных компаний, достигают процветания благодаря одному этому фактору.
 

Башня Jushi
Башня Jushi
Фото © Liang Wenjun

В случае Тунсяна для привлечения таких компаний с 2011 создается привлекательный деловой район вокруг озера Фэнхуан (озеро Феникса), где среди парков расположились представительства уже 11 компаний. Сочетание живописного пейзажа и транспортной доступности обеспечили плану успех.
 
Башня Jushi
Башня Jushi
Фото © Liang Wenjun

GN Architects спроектировали расположенную здесь башню Zhenshi Holding Group, самую высокую в городе (182 м). Теперь же пришла очередь Jushi Group, ведущего мирового производителя стекловолокна. Его производственные мощности расположены в том числе и в Тунсяне.
 
Башня Jushi
Башня Jushi
Фото © Liang Wenjun

Для этого заказчика архитекторы предложили неожиданный ход: навесной фасад не перпендикулярен земле, а отклоняется от вертикали на 12 градусов. Идею подхватывают и расположенные «по косой» профили. Такие же острые углы использованы и в других частях здания, например, в алюминиевом навесе над главным входом: это решение сначала смутило заказчика своей оригинальностью, но потом он все же решил довериться проектировщикам.
 
Башня Jushi
Башня Jushi
Фото © Liang Wenjun

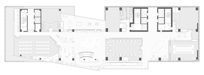
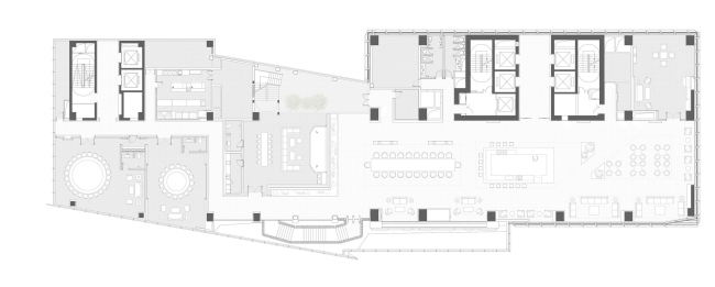
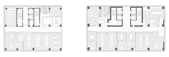
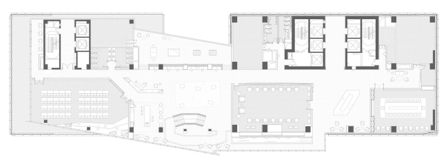
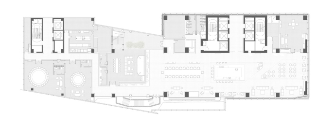
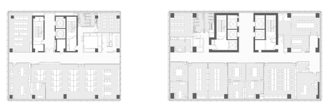
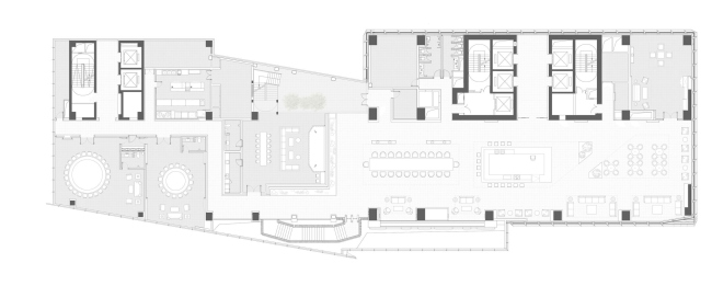
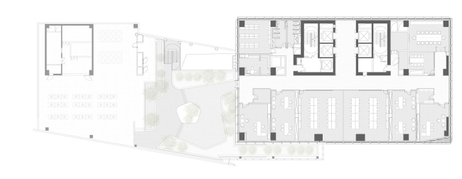
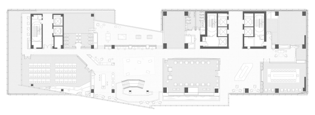
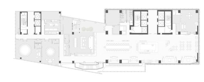
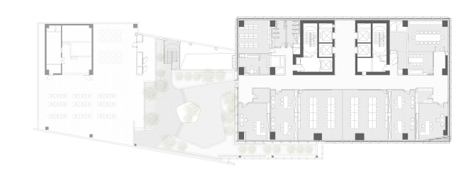
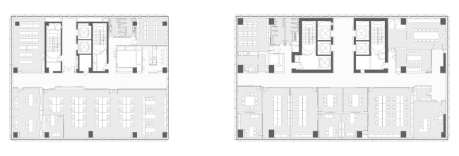
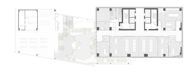
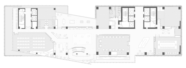
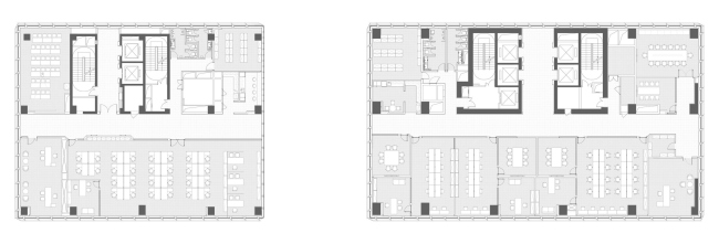
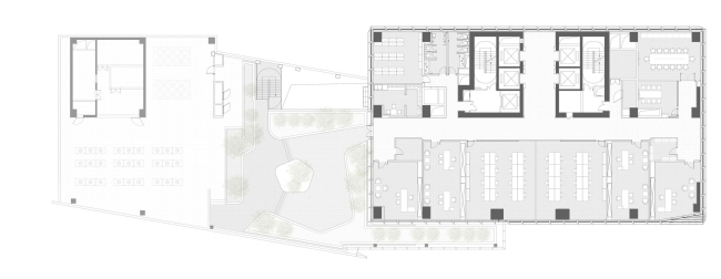
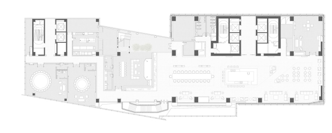
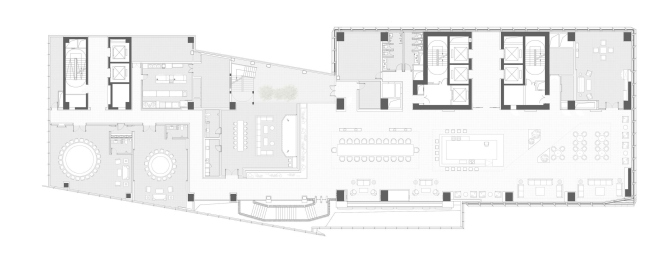
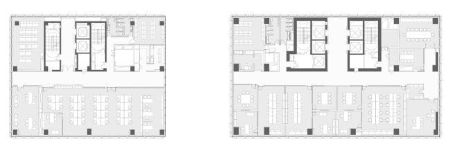
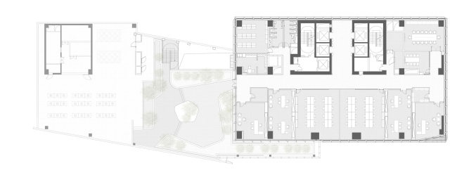
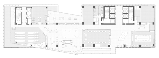
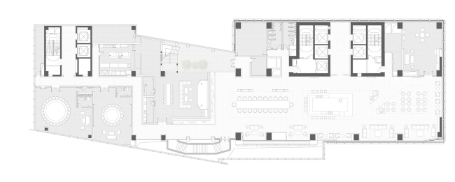
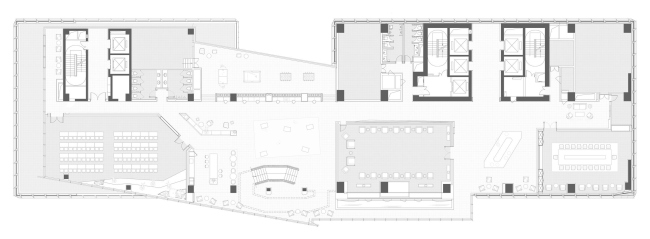
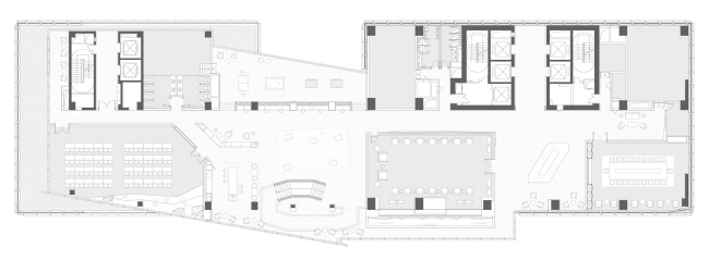
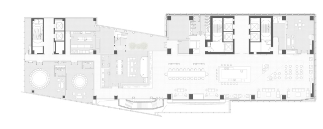
Общая композиция тоже достаточно необычна: это две башни, 120 м и 60 м, соединенные на уровне кровли нижней из них «центром активности» в форме неправильного пятигранника. В нем собраны выставочные пространства, конференц-залы, образовательный центр для персонала, бар и фитнес-центр. На его кровле устроен сад для сотрудников.
 
Башня Jushi
Башня Jushi
Фото © Liang Wenjun

Кроме того, в комплекс входят два низких корпуса, играющих роль подиума. Там находятся вестибюль со стойками администраторов, большая аудитория, столовая, бассейн. На уровне земли между ними и башнями устроен водный сад, окруженный галереями.
 
Башня Jushi
Башня Jushi
Фото © Liang Wenjun
Башня Jushi
Башня Jushi
Фото © Liang Wenjun
Башня Jushi
Башня Jushi
Фото © Liang Wenjun
Башня Jushi
Башня Jushi
Фото © Liang Wenjun
Башня Jushi
Башня Jushi
Фото © Liang Wenjun
Башня Jushi
Башня Jushi
Фото © Liang Wenjun
Башня Jushi
Башня Jushi
Фото © Liang Wenjun
Башня Jushi
Башня Jushi
Фото © Liang Wenjun
Башня Jushi
Башня Jushi
Фото © Liang Wenjun
Башня Jushi
Башня Jushi
Фото © Liang Wenjun
Башня Jushi
Башня Jushi
Фото © Liang Wenjun
Башня Jushi
Башня Jushi
Фото © Liang Wenjun
Башня Jushi
Башня Jushi
Фото © Liang Wenjun
Башня Jushi
Башня Jushi
Фото © Liang Wenjun
Башня Jushi
Башня Jushi
Фото © Liang Wenjun
Башня Jushi
Башня Jushi
© GN Architects
Башня Jushi
Башня Jushi
© GN Architects
Башня Jushi
Башня Jushi
© GN Architects
Башня Jushi
Башня Jushi
© GN Architects
Башня Jushi
Башня Jushi
© GN Architects
Башня Jushi
Башня Jushi
© GN Architects
Башня Jushi
Башня Jushi
© GN Architects
Башня Jushi
Башня Jushi
© GN Architects
Башня Jushi
Башня Jushi
© GN Architects
Башня Jushi
Башня Jushi
© GN Architects
Башня Jushi
Башня Jushi
© GN Architects
Башня Jushi
Башня Jushi
© GN Architects
Башня Jushi
Башня Jushi
© GN Architects