Размещено на портале Архи.ру (www.archi.ru)

12.10.2022

Бетонные балконы

Нина Фролова
Объект:
Landmark Hotel
Адрес:
Колумбия, None, Медельин.
Мастерская:
Plan:b arquitectos

Отель Landmark в Медельине по проекту Plan:b arquitectos использует типичные для этого города материалы с функциональным и стильным результатом.

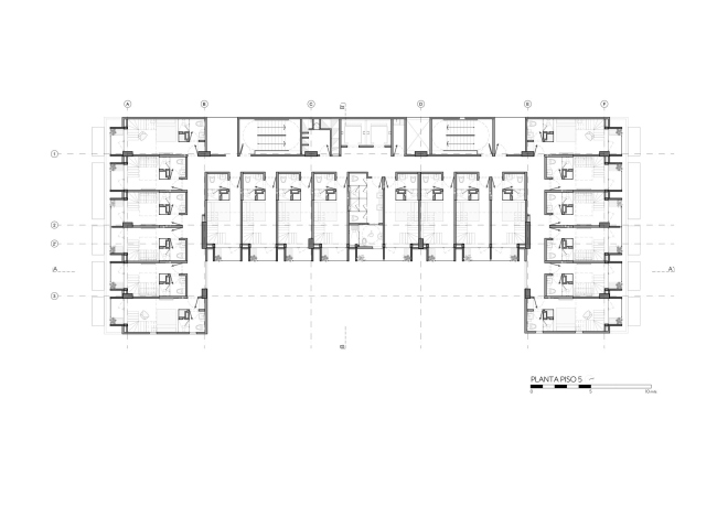
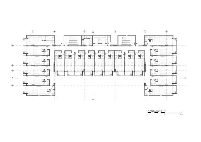
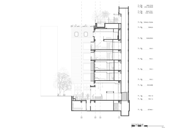
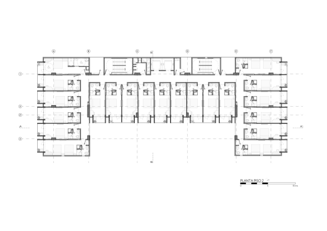
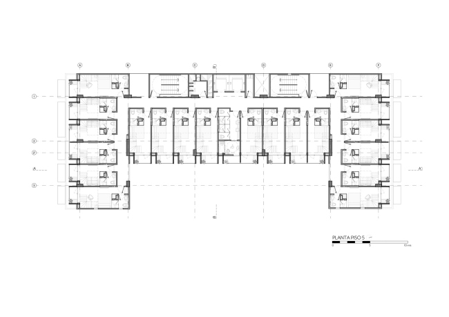
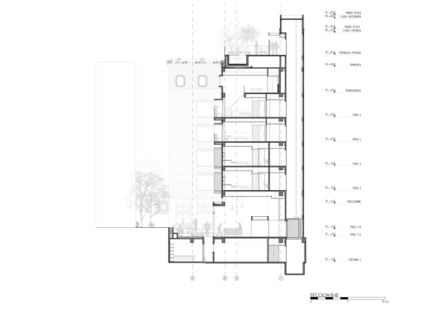
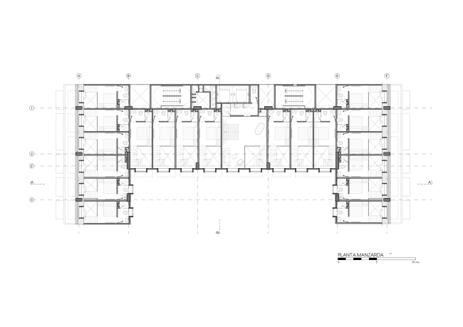
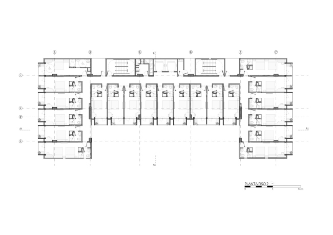
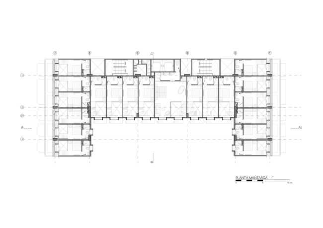
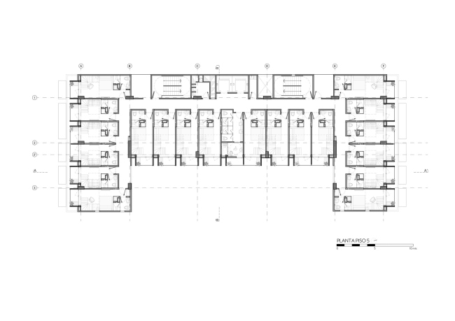
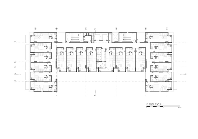
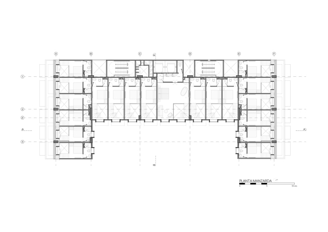
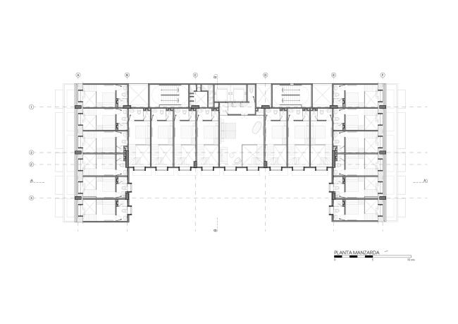
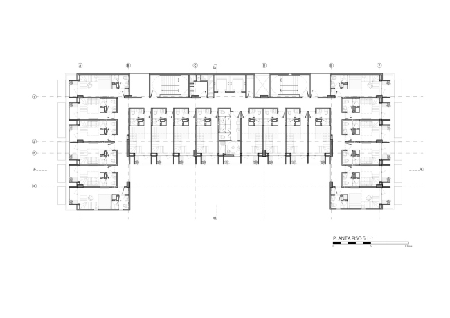
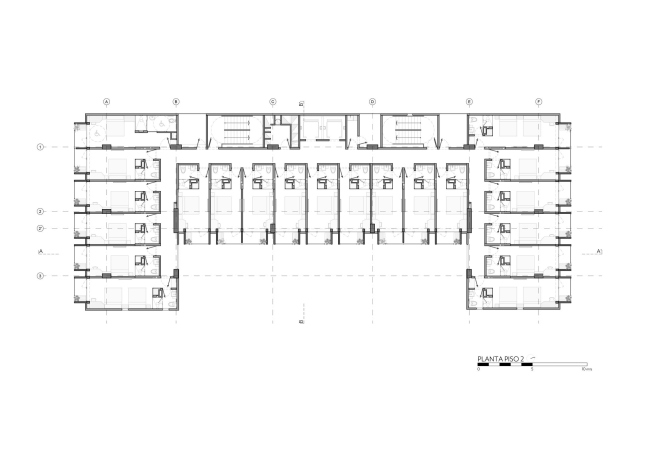
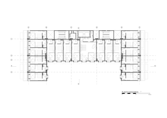
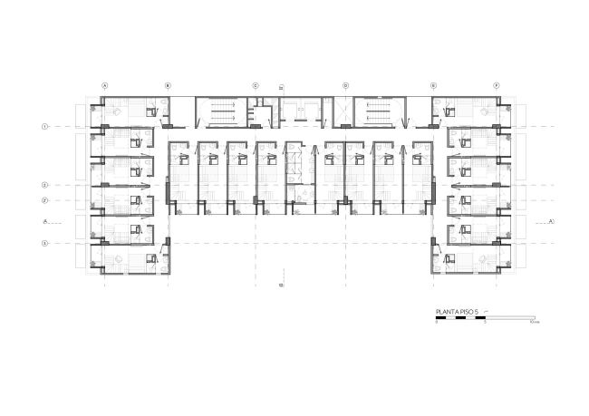
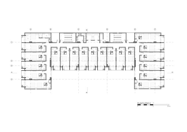
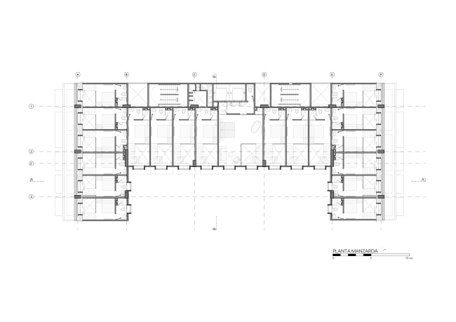
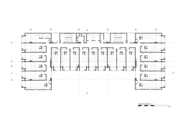
Landmark на 82 номера расположен на узком участке, типичном для района Манила в модном округе Эль-Побладо. На улицу он обращен лишь одним торцом, поэтому задачей архитекторов было обеспечить каждого постояльца удобным балконом несмотря на это обстоятельство.
 

Landmark Hotel
Landmark Hotel
Фото © Alejandro Arango

Выходом стала планировка в форме П: перекладина «буквы» внешней стороной обращена на восток, где к границе участка вплотную подступают соседние здания. Поэтому и отель с этой стороны получил глухую стену наподобие брандмауэра. Здесь сосредоточены лестнично-лифтовые узлы, технические помещения. Такое решение также позволило защитить интерьер от самого жаркого солнца.
 
Landmark Hotel
Landmark Hotel
Фото © Alejandro Arango

Торцевые южный и северный фасады, а также западный фасад, то есть внутренняя поверхность перекладины в П, облицованы кирпичом и покрыты рядами бетонных балконов – их отлили на заводе, а на стройплощадке просто укрепили на нужные места. Выступающие крупные балконы затеняют фасады и защищают номера от тропического солнца.
Landmark Hotel
Landmark Hotel
Фото © Alejandro Arango

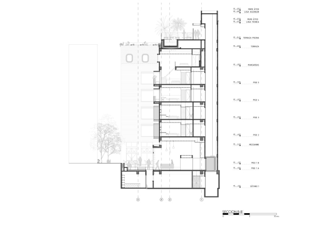
Верхние этажи отступают от красной линии, и в «точке перепада» созданы зеленые террасы – альтернатива балконам. Туда выходят часть номеров.
Landmark Hotel Фото © Alejandro Arango
Landmark Hotel
Фото © Alejandro Arango
Landmark Hotel Фото © Alejandro Arango
Landmark Hotel
Фото © Alejandro Arango
Landmark Hotel Фото © Alejandro Arango
Landmark Hotel
Фото © Alejandro Arango

Бетон и кирпич – самые распространенные в Медельине материалы, поэтому их использование одновременно сделало Landmark контекстуальным и упростило реализацию в принципе.
 
Landmark Hotel
Landmark Hotel
Фото © Alejandro Arango

Первый этаж занимает двухсветный вестибюль и рестораны, выше идут три этажа обычных номеров и два – дуплексов. На кровле устроена терраса с плавательным бассейном.
Landmark Hotel Фото © Alejandro Arango
Landmark Hotel
Фото © Alejandro Arango
Landmark Hotel Фото © Alejandro Arango
Landmark Hotel
Фото © Alejandro Arango
Landmark Hotel Фото © Alejandro Arango
Landmark Hotel
Фото © Alejandro Arango
Landmark Hotel Фото © Alejandro Arango
Landmark Hotel
Фото © Alejandro Arango
Landmark Hotel
Landmark Hotel
Фото © Alejandro Arango
Landmark Hotel
Landmark Hotel
Фото © Alejandro Arango
Landmark Hotel Фото © Alejandro Arango
Landmark Hotel
Фото © Alejandro Arango
Landmark Hotel Фото © Alejandro Arango
Landmark Hotel
Фото © Alejandro Arango
Landmark Hotel Фото © Alejandro Arango
Landmark Hotel
Фото © Alejandro Arango
Landmark Hotel Фото © Alejandro Arango
Landmark Hotel
Фото © Alejandro Arango
Landmark Hotel Фото © Alejandro Arango
Landmark Hotel
Фото © Alejandro Arango
Landmark Hotel
Landmark Hotel
Фото © Alejandro Arango
Landmark Hotel
Landmark Hotel
© Plan:b arquitectos
Landmark Hotel
Landmark Hotel
© Plan:b arquitectos
Landmark Hotel
Landmark Hotel
© Plan:b arquitectos
Landmark Hotel
Landmark Hotel
© Plan:b arquitectos
Landmark Hotel
Landmark Hotel
© Plan:b arquitectos
Landmark Hotel
Landmark Hotel
© Plan:b arquitectos
Landmark Hotel
Landmark Hotel
© Plan:b arquitectos
Landmark Hotel
Landmark Hotel
© Plan:b arquitectos