Размещено на портале Архи.ру (www.archi.ru)

10.10.2022

Среди рапсовых полей

Нина Фролова
Объект:
Музей культуры и истории Цинси
Адрес:
Китай, None, Нинбо.
Мастерская:
Архитектурный проектно-исследовательский институт Чжэцзянского университета (UAD)

Музей культуры и истории Цинси в Нинбо искусно вписан в природную и аграрную среду.

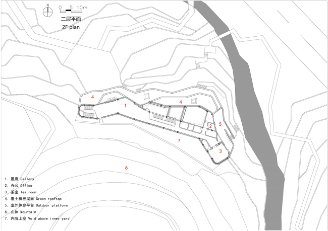
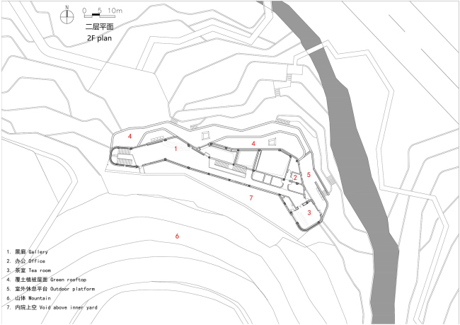
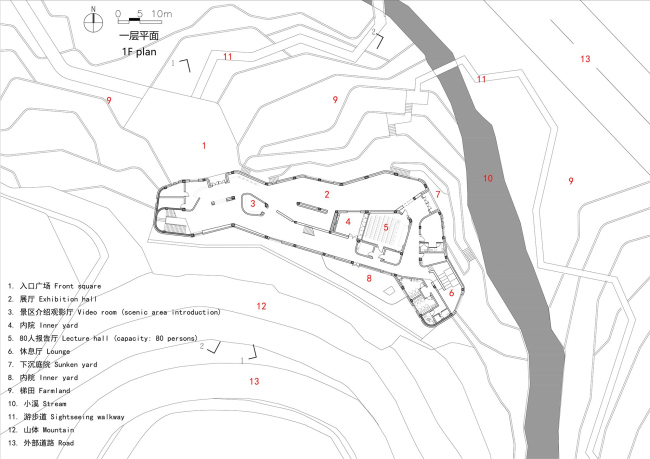
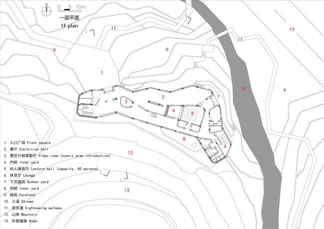
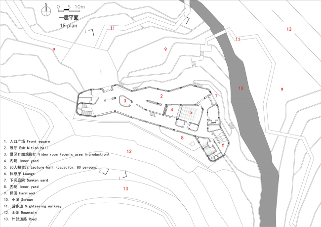
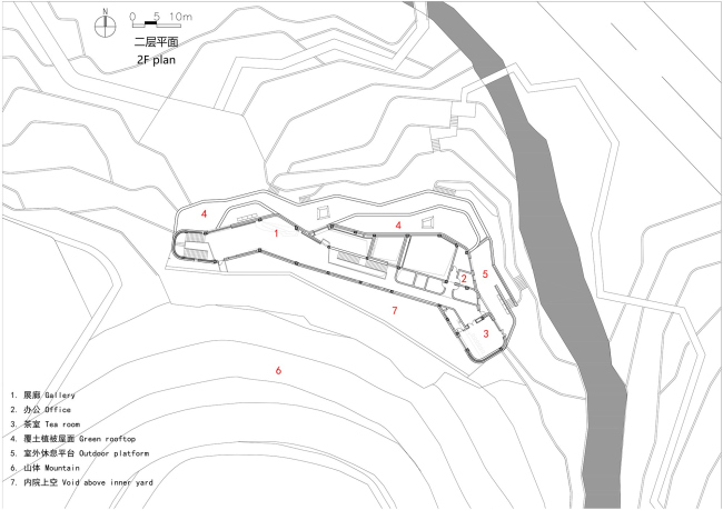
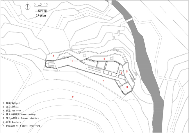
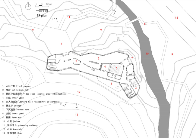
Музей по проекту Архитектурного проектно-исследовательского института Чжэцзянского университета (UAD) возведен среди холмистого рельефа недалеко от города Нинбо. Рядом террасами поднимаются вверх по склонам поля, в том числе засаженные рапсом, и сам музей тоже расположился уровнями – чтобы использовать перепады рельефа.
 

Музей культуры и истории Цинси
Музей культуры и истории Цинси
Фото © ZYStudio
Музей культуры и истории Цинси
Музей культуры и истории Цинси
Фото © Ding Junhao
Музей культуры и истории Цинси
Музей культуры и истории Цинси
Фото © ZYStudio

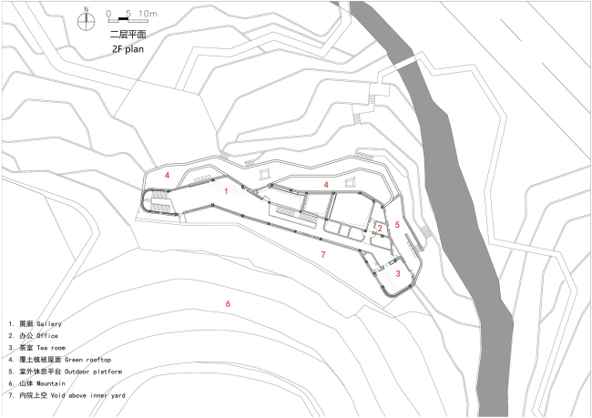
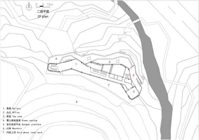
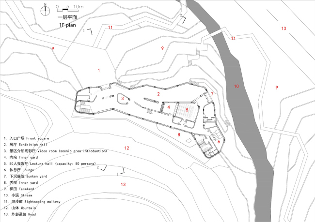
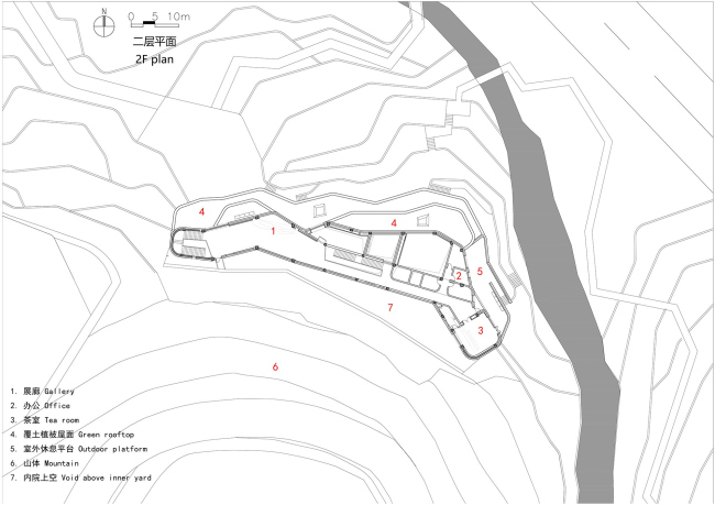
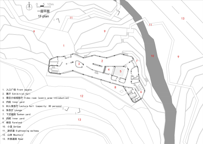
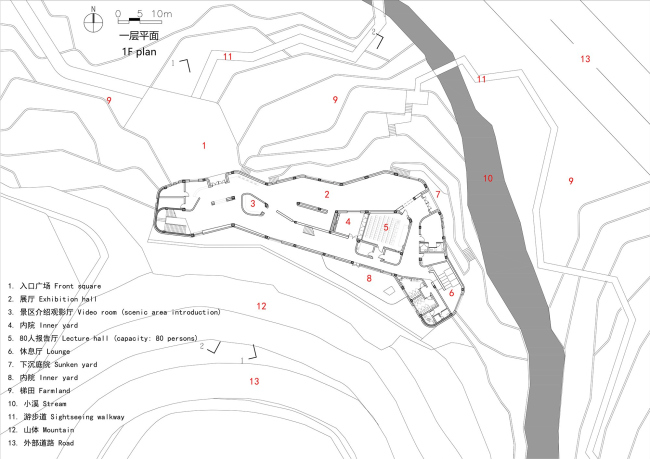
Программа охватывает экспозицию, посвященную местной истории и культуре, а также туристический центр.
 
Музей культуры и истории Цинси
Музей культуры и истории Цинси
Фото © ZYStudio
Музей культуры и истории Цинси
Музей культуры и истории Цинси
Фото © Ding Junhao
Музей культуры и истории Цинси
Музей культуры и истории Цинси
Фото © Zhao Qiang

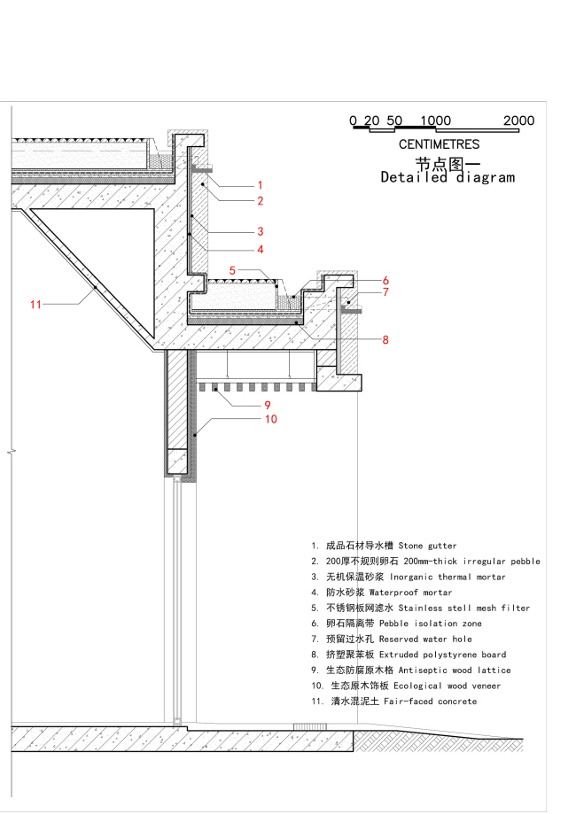
Для здания выбрали местные материалы и методы строительства. Деревенские каменщики выложили фасады из крупной гальки, выполнили каменные наличники и водостоки. Благодаря этому музей как будто растворяется среди окружающих гор и рек.
 
Музей культуры и истории Цинси
Музей культуры и истории Цинси
Фото © ZYStudio
Музей культуры и истории Цинси
Музей культуры и истории Цинси
Фото © Zhao Qiang
Музей культуры и истории Цинси
Музей культуры и истории Цинси
Фото © Ding Junhao

В интерьере использованы галька, диатомовая штукатурка и эффектные бетонные потолки со следами опалубки. Кровля засажена рапсом, чтобы музей почти не отличался от окружающих полей.
Музей культуры и истории Цинси
Музей культуры и истории Цинси
Фото © Ding Junhao
Музей культуры и истории Цинси
Музей культуры и истории Цинси
Фото © Ding Junhao
Музей культуры и истории Цинси
Музей культуры и истории Цинси
Фото © Ding Junhao
Музей культуры и истории Цинси
Музей культуры и истории Цинси
Фото © ZYStudio
Музей культуры и истории Цинси
Музей культуры и истории Цинси
Фото © Zhao Qiang
Музей культуры и истории Цинси
Музей культуры и истории Цинси
Фото © Zhao Qiang
Музей культуры и истории Цинси
Музей культуры и истории Цинси
Фото © ZYStudio
Музей культуры и истории Цинси
Музей культуры и истории Цинси
Фото © ZYStudio
Музей культуры и истории Цинси
Музей культуры и истории Цинси
Фото © ZYStudio
Музей культуры и истории Цинси
Музей культуры и истории Цинси
© UAD
Музей культуры и истории Цинси
Музей культуры и истории Цинси
© UAD
Музей культуры и истории Цинси
Музей культуры и истории Цинси
© UAD
Музей культуры и истории Цинси
Музей культуры и истории Цинси
© UAD
Музей культуры и истории Цинси
Музей культуры и истории Цинси
© UAD
Музей культуры и истории Цинси
Музей культуры и истории Цинси
© UAD
Музей культуры и истории Цинси
Музей культуры и истории Цинси
© UAD