Размещено на портале Архи.ру (www.archi.ru)

06.10.2022

Белые кровли

Нина Фролова
Объект:
Офис продаж и детский сад
Адрес:
Китай, None, Ухань.
Мастерская:
Atelier Xi

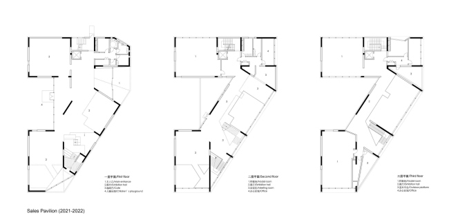
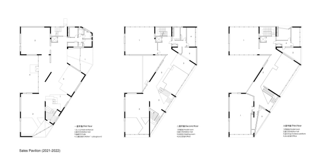
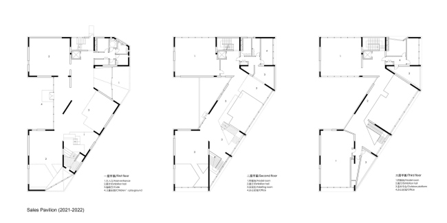
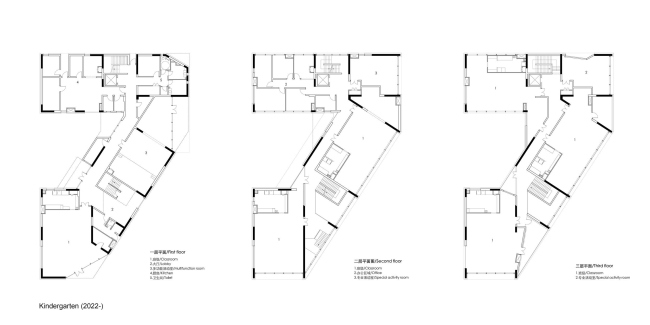
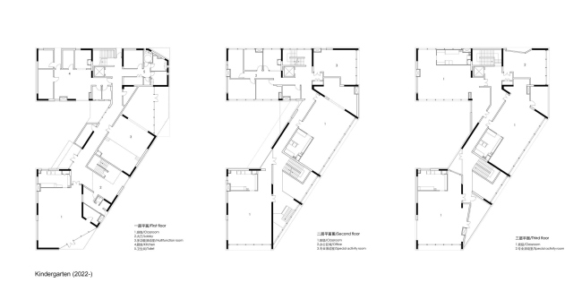
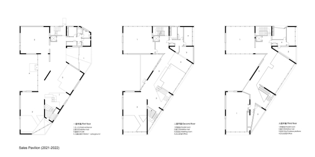
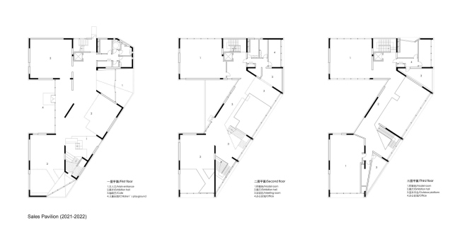
Офис продаж для жилого комплекса в Ухани в будущем превратится в детский сад для его обитателей. Архитекторы Atelier Xi заложили в свой проект оба варианта использования, чтобы не тратить ресурсы на снос и новое строительство.

Жилой комплекс в Ухани расположен всего в 1 км от рынка Хуанань, который считается источником распространения COVID-19, и проектирование офиса продаж пришлось на сложное время пандемии, что частично повлияло и на функцию здания.
 

Офис продаж и детский сад
Офис продаж и детский сад
Фото © Arch-Exist Photography
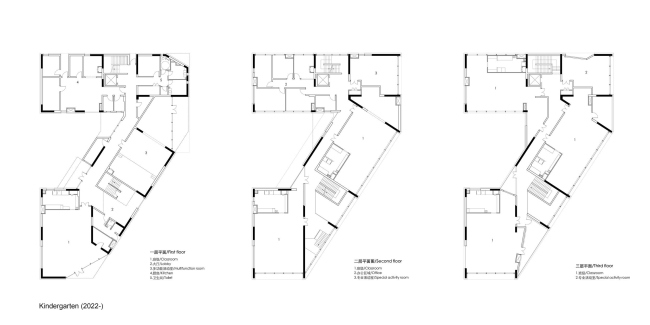
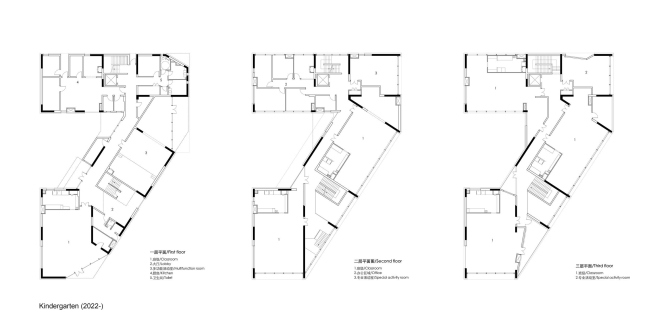
Офис продаж и детский сад. Рендер здания после превращения в детский сад
Офис продаж и детский сад. Рендер здания после превращения в детский сад
© Atelier Xi

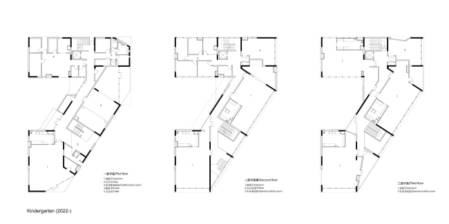
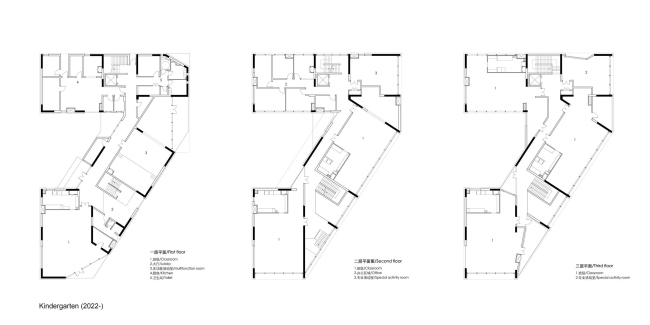
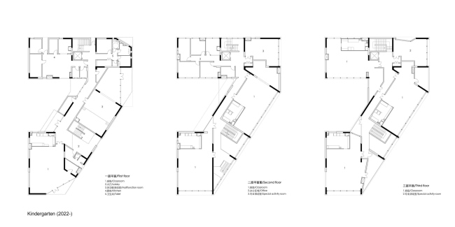
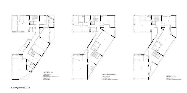
Однако его суть «трансформера» была задумана в бюро Atelier Xi изначально. Обычно офисы продаж демонтируются, когда все квартиры раскуплены, и в жилой комплекс въезжают жильцы. Но такой подход финансово неудачен и не экологичен. Поэтому идея превращения офиса в детский сад, который в любом случае нужен обитателям ЖК, оказалась удачным решением.
 
Офис продаж и детский сад
Офис продаж и детский сад
Фото © Arch-Exist Photography
Офис продаж и детский сад
Офис продаж и детский сад
Фото © Arch-Exist Photography

В роли офиса здание обращает на себя внимание своей облицовкой из белого гранита и характерными двускатными кровлями, напоминающие миниатюрный город, символ жилья и жилища. Образ мини-города прекрасно подходит и детскому саду. При смене функции панорамное остекление превратится в открывающиеся окна, двухсветные помещения будут разделены по высоте на классы обычного размера, сад станет детской площадкой.
 
Офис продаж и детский сад
Офис продаж и детский сад
Фото © Zhang Chao
Офис продаж и детский сад
Офис продаж и детский сад
Фото © Zhang Chao

Кроме трансформируемости, здание выгодно отличается от типичного для КНР офиса продаж связанностью экстерьера и внутреннего пространства (обычно это типовой интерьер и чрезмерно декорированный фасад): здесь можно найти эффектные помещения с видами сада, которые созданы именно необычной композицией здания. Помимо привычных макетов и демонстрационной квартиры, здесь можно найти выставочный зал для местных жителей, посвященный «разведке» в сфере здравоохранения и экологичному образу жизни: эта экспозиция была организована в связи с пандемией.
Офис продаж и детский сад
Офис продаж и детский сад
Фото © Arch-Exist Photography
Офис продаж и детский сад
Офис продаж и детский сад
Фото © Arch-Exist Photography
Офис продаж и детский сад
Офис продаж и детский сад
Фото © Zhang Chao
Офис продаж и детский сад
Офис продаж и детский сад
Фото © Zhang Chao
Офис продаж и детский сад
Офис продаж и детский сад
Фото © Zhang Chao
Офис продаж и детский сад
Офис продаж и детский сад
Фото © Zhang Chao
Офис продаж и детский сад
Офис продаж и детский сад
Фото © Arch-Exist Photography
Офис продаж и детский сад
Офис продаж и детский сад
Фото © Arch-Exist Photography
Офис продаж и детский сад
Офис продаж и детский сад
Фото © Arch-Exist Photography
Офис продаж и детский сад
Офис продаж и детский сад
Фото © Arch-Exist Photography
Офис продаж и детский сад
Офис продаж и детский сад
Фото © Arch-Exist Photography
Офис продаж и детский сад
Офис продаж и детский сад
Фото © Zhang Chao
Офис продаж и детский сад
Офис продаж и детский сад
Фото © Arch-Exist Photography
Офис продаж и детский сад
Офис продаж и детский сад
Фото © Zhang Chao
Офис продаж и детский сад
Офис продаж и детский сад
Фото © Zhang Chao
Офис продаж и детский сад
Офис продаж и детский сад
Фото © Zhang Chao
Офис продаж и детский сад
Офис продаж и детский сад
Фото © Arch-Exist Photography
Офис продаж и детский сад
Офис продаж и детский сад
Фото © Zhang Chao
Офис продаж и детский сад
Офис продаж и детский сад
© Atelier Xi
Офис продаж и детский сад
Офис продаж и детский сад
© Atelier Xi
Офис продаж и детский сад
Офис продаж и детский сад
© Atelier Xi
Офис продаж и детский сад
Офис продаж и детский сад
© Atelier Xi
Офис продаж и детский сад
Офис продаж и детский сад
© Atelier Xi
Офис продаж и детский сад
Офис продаж и детский сад
© Atelier Xi