Размещено на портале Архи.ру (www.archi.ru)

21.09.2022

Лекции отменяются

Нина Фролова
Объект:
Корпус Jakoba Mulderhuis Амстердамского университета прикладных наук
Адрес:
Нидерланды, None, Амстердам.
Мастерская:
de Architekten Cie.
Powerhouse Company

Новый корпус Амстердамского университета прикладных наук рассчитан на новый тип образования: меньше лекций, больше проектной работы.

Авторы проекта – Marc Koehler Architects, Powerhouse Company (основатели обоих бюро окончили как раз Амстердамский университет прикладных наук) и приглашенные ими к сотрудничеству de Architekten Cie. Новый корпус, названный в честь более 40 лет проработавшей в муниципалитете Амстердама архитектора Якобы Мюлдер, вместил факультет технологии. Аудитории, мастерские, лаборатории и т. д. занимают в общей сложности 25 тыс. м2.
 

Корпус Jakoba Mulderhuis Амстердамского университета прикладных наук
Корпус Jakoba Mulderhuis Амстердамского университета прикладных наук
Фото © Sebastian van Damme

Корпус расположен на заметном месте: на канале Сингелграхт при въезде в центр города. 54-метровая башня вместе с историческим зданием напротив (там теперь размещен факультет медиа) образуют своего рода монументальные ворота.
 
Корпус Jakoba Mulderhuis Амстердамского университета прикладных наук
Корпус Jakoba Mulderhuis Амстердамского университета прикладных наук
Фото © Marcel IJzeman

Постройка состоит из двух объемов, упомянутой 13-этажной башни и вытянутой части (6 этажей, 33 метра). Их фасады облицованы известняком, составляющим сложный узор из более плотных и разреженных участков; закрытость и открытость определили показатели освещенности и нагрева солнцем, виды из окон и т.д. Внутри максимально гибкая планировка позволит менять назначение отдельных помещений и постройки в целом, если это будет необходимо.
 
Корпус Jakoba Mulderhuis Амстердамского университета прикладных наук
Корпус Jakoba Mulderhuis Амстердамского университета прикладных наук
Фото © Sebastian van Damme

Основные пространства отданы для проектной и командной работы, включая набор высокотехнологичных лабораторий. Традиционное желание – создать среду для случайных встреч и обмена идеями для студентов и преподавателей разных специальностей – реализовано в виде террас вокруг атриума, где есть места для индивидуальной работы. Через эти террасы проложен маршрут с лестницами с этажа на этаж, поэтому попутное знакомство с чужими проектами вполне возможно.
 
Корпус Jakoba Mulderhuis Амстердамского университета прикладных наук
Корпус Jakoba Mulderhuis Амстердамского университета прикладных наук
Фото © Sebastian van Damme

Башня занята «сообществом учащихся» (1–2 курсы), шестиэтажная часть – «сообществом практиков» (3–4 курсы): их планировка учитывает более теоретическое обучение младшекурсников и более самостоятельное – готовящихся к выпуску студентов. Конкретные преподавательские мастерские можно по желанию профессоров обставить по-разному, сочетая элементы групповой работы, лаборатории, обычного класса и т. д. – по схеме комбинированного обучения (blended learning), которое уже внедряется в вузе при обучении архитекторов и получило положительные отзывы от студентов. Интерьерами занимались бюро Ex Interiors и Studio Groen+Schild.
 
Корпус Jakoba Mulderhuis Амстердамского университета прикладных наук
Корпус Jakoba Mulderhuis Амстердамского университета прикладных наук
Фото © Sebastian van Damme

Проект уделил большое внимание использованию естественного освещения (в том числе с помощью атриума); светодиодные лампы саморегулируются с помощью датчиков освещенности и движения. Кровля частью озеленена, частью несет солнечные батареи общей мощностью 34 тыс. кВт⋅ч, а также домики для стрижей и летучих мышей. Используются подземное хранилище тепла и прогрессивная система счетчиков электричества. Эффективные санузлы потребляют на 30% меньше воды, чем обычные. Почти четверть «движимой» мебели использована вторично.
 
Корпус Jakoba Mulderhuis Амстердамского университета прикладных наук
Корпус Jakoba Mulderhuis Амстердамского университета прикладных наук
Фото © Sebastian van Damme

Проект изначально разрабатывался в формате BIM, включая стадию тендера, когда задание было представлено в виде цифровой модели.
Корпус Jakoba Mulderhuis Амстердамского университета прикладных наук
Корпус Jakoba Mulderhuis Амстердамского университета прикладных наук
Фото © Sebastian van Damme
Корпус Jakoba Mulderhuis Амстердамского университета прикладных наук
Корпус Jakoba Mulderhuis Амстердамского университета прикладных наук
Фото © Marcel IJzeman
Корпус Jakoba Mulderhuis Амстердамского университета прикладных наук
Корпус Jakoba Mulderhuis Амстердамского университета прикладных наук
Фото © Sebastian van Damme
Корпус Jakoba Mulderhuis Амстердамского университета прикладных наук
Корпус Jakoba Mulderhuis Амстердамского университета прикладных наук
Фото © Sebastian van Damme
Корпус Jakoba Mulderhuis Амстердамского университета прикладных наук
Корпус Jakoba Mulderhuis Амстердамского университета прикладных наук
Фото © Sebastian van Damme
Корпус Jakoba Mulderhuis Амстердамского университета прикладных наук
Корпус Jakoba Mulderhuis Амстердамского университета прикладных наук
Фото © Sebastian van Damme
Корпус Jakoba Mulderhuis Амстердамского университета прикладных наук
Корпус Jakoba Mulderhuis Амстердамского университета прикладных наук
Фото © Sebastian van Damme
Корпус Jakoba Mulderhuis Амстердамского университета прикладных наук
Корпус Jakoba Mulderhuis Амстердамского университета прикладных наук
Фото © Sebastian van Damme
Корпус Jakoba Mulderhuis Амстердамского университета прикладных наук
Корпус Jakoba Mulderhuis Амстердамского университета прикладных наук
Фото © Sebastian van Damme
Корпус Jakoba Mulderhuis Амстердамского университета прикладных наук
Корпус Jakoba Mulderhuis Амстердамского университета прикладных наук
Фото © Sebastian van Damme
Корпус Jakoba Mulderhuis Амстердамского университета прикладных наук
Корпус Jakoba Mulderhuis Амстердамского университета прикладных наук
Фото © Sebastian van Damme
Корпус Jakoba Mulderhuis Амстердамского университета прикладных наук
Корпус Jakoba Mulderhuis Амстердамского университета прикладных наук
Фото © Sebastian van Damme
Корпус Jakoba Mulderhuis Амстердамского университета прикладных наук
Корпус Jakoba Mulderhuis Амстердамского университета прикладных наук
Фото © Marcel IJzeman
Корпус Jakoba Mulderhuis Амстердамского университета прикладных наук
Корпус Jakoba Mulderhuis Амстердамского университета прикладных наук
Фото © Sebastian van Damme
Корпус Jakoba Mulderhuis Амстердамского университета прикладных наук
Корпус Jakoba Mulderhuis Амстердамского университета прикладных наук
Фото © Sebastian van Damme
Корпус Jakoba Mulderhuis Амстердамского университета прикладных наук
Корпус Jakoba Mulderhuis Амстердамского университета прикладных наук
Фото © Sebastian van Damme
Корпус Jakoba Mulderhuis Амстердамского университета прикладных наук
Корпус Jakoba Mulderhuis Амстердамского университета прикладных наук
Фото © Sebastian van Damme
Корпус Jakoba Mulderhuis Амстердамского университета прикладных наук
Корпус Jakoba Mulderhuis Амстердамского университета прикладных наук
Фото © Sebastian van Damme
Корпус Jakoba Mulderhuis Амстердамского университета прикладных наук
Корпус Jakoba Mulderhuis Амстердамского университета прикладных наук
Фото © Sebastian van Damme
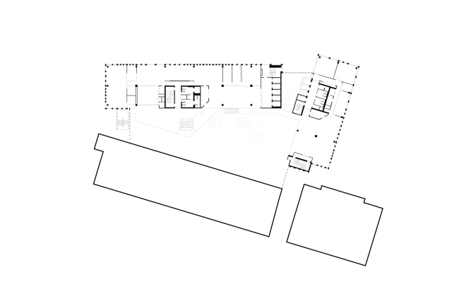
Корпус Jakoba Mulderhuis Амстердамского университета прикладных наук
Корпус Jakoba Mulderhuis Амстердамского университета прикладных наук
Предоставлено Powerhouse Company
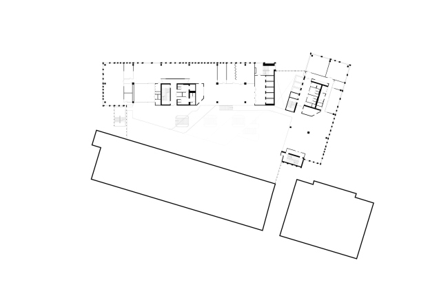
Корпус Jakoba Mulderhuis Амстердамского университета прикладных наук
Корпус Jakoba Mulderhuis Амстердамского университета прикладных наук
Предоставлено Powerhouse Company
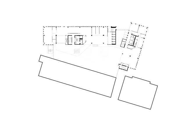
Корпус Jakoba Mulderhuis Амстердамского университета прикладных наук
Корпус Jakoba Mulderhuis Амстердамского университета прикладных наук
Предоставлено Powerhouse Company
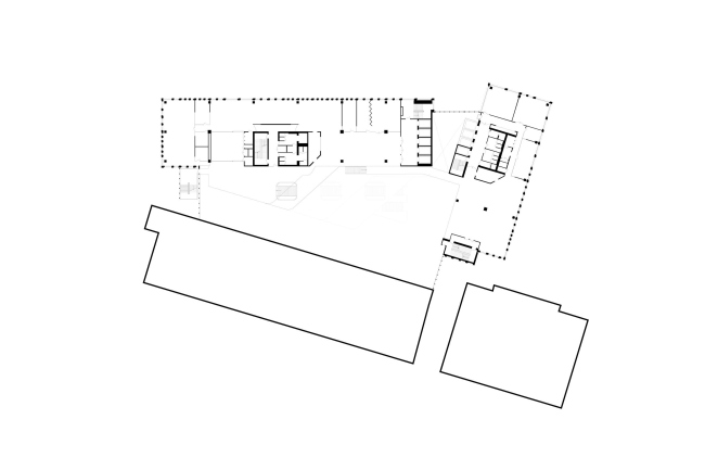
Корпус Jakoba Mulderhuis Амстердамского университета прикладных наук
Корпус Jakoba Mulderhuis Амстердамского университета прикладных наук
Предоставлено Powerhouse Company