Размещено на портале Архи.ру (www.archi.ru)

19.09.2022

Каньон для городской жизни

Нина Фролова
Объект:
Комплекс Valley
Адрес:
Нидерланды, None, Амстердам.
Мастерская:
MVRDV

В Амстердаме открылся комплекс Valley по проекту MVRDV: архитекторы соединили офисы, жилье, развлекательные заведения и даже «инкубатор» для исследователей с многоуровневым зеленым общественным пространством.

Valley – первый из ряда схожих проектов MVRDV: уже привычная «пикселизация» формирует между башнями род долины, псевдоприродного пространства, открытого для всех горожан. Озеленение там сочетается с магазинами и ресторанами, то есть это разновидность частного, коммерческого «общественного пространства». Однако Valley располагается в деловом районе Зёйдас, где есть и жилье, и рестораны, но с общественным пространством и разнообразием ландшафта дела обстоят хуже. На этом фоне новое сооружение выглядит вполне уместно и удачно.
 

Комплекс Valley
Комплекс Valley
Фото © Ossip van Duivenbode

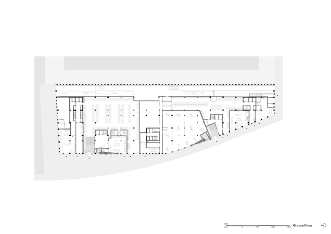
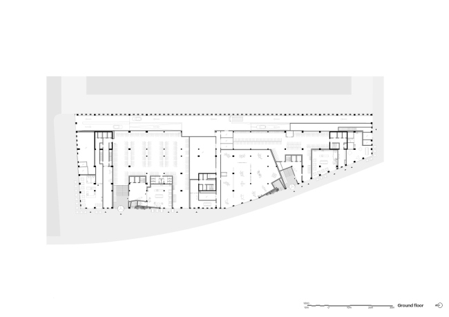
Три башни высотой 67, 81 и 100 метров до седьмого этажа включительно заняты офисами, выше размещено дорогое арендное жилье, под землей – трехуровневый гараж. Но видами Амстердама смогут насладиться не только квартиросъемщики: на вершине 100-метрового здания работает бар. Публике также открыта собственно «долина», лестницы и террасы которой поднимаются до высоты 4–5 этажей, «Грот» – крытая улица с «инкубатором» Sapiens Lab и т.д.
 
Комплекс Valley
Комплекс Valley
Фото © Ossip van Duivenbode

Ортогональные фасады облицованы зеркальным стеклом, «геологические» – натуральным камнем. Озеленение, охватывающее и частные балконы, продумано знаменитым Питом Аудолфом. Он разработал матрицу, согласно которой растения (всего 220 видов) высажены с учетом силы ветра, освещенности, удобства работы садовников. В комплексе растут 271 экземпляр деревьев и кустов (в основном, на нижних ярусах) и 13 500 менее крупных растений в каменных вазонах. Ради биоразнообразия предусмотрены домики для птиц и летучих мышей, «гостиницы» для пчел и других насекомых. Есть и автоматическая система полива.
 
Комплекс Valley
Комплекс Valley
Фото © Ossip van Duivenbode

Каждая из 198 квартир получила свой план: его рассчитали специальные программы, учитывающие критерии освещенности, панорамных видов и т. д. Таким же образом создали «хаотичную» схему облицовки из натурального камня: 40 тысяч плит соединяются по принципу головоломки. К бетонной конструкции комплекса прикреплены 11 стальных консолей, которые придают его облику динамизм.
 
Комплекс Valley
Комплекс Valley
Фото © Ossip van Duivenbode

Valley на 30% более энергоэффективен, чем требуют нормы района Зёйдас; в нем есть «умная» система управления с сенсорами, которые согласуют потребление с реальными пользовательскими запросами.
Комплекс Valley
Комплекс Valley
Фото © Ossip van Duivenbode
Комплекс Valley
Комплекс Valley
Фото © Ossip van Duivenbode
Комплекс Valley Фото © Ossip van Duivenbode
Комплекс Valley
Фото © Ossip van Duivenbode
Комплекс Valley Фото © Ossip van Duivenbode
Комплекс Valley
Фото © Ossip van Duivenbode
Комплекс Valley Фото © Ossip van Duivenbode
Комплекс Valley
Фото © Ossip van Duivenbode
Комплекс Valley Фото © Ossip van Duivenbode
Комплекс Valley
Фото © Ossip van Duivenbode
Комплекс Valley Фото © Ossip van Duivenbode
Комплекс Valley
Фото © Ossip van Duivenbode
Комплекс Valley Фото © Ossip van Duivenbode
Комплекс Valley
Фото © Ossip van Duivenbode
Комплекс Valley
Комплекс Valley
Фото © Ossip van Duivenbode
Комплекс Valley
Комплекс Valley
Фото © Ossip van Duivenbode
Комплекс Valley
Комплекс Valley
Фото © Ossip van Duivenbode
Комплекс Valley Фото © Ossip van Duivenbode
Комплекс Valley
Фото © Ossip van Duivenbode
Комплекс Valley Фото © Ossip van Duivenbode
Комплекс Valley
Фото © Ossip van Duivenbode
Комплекс Valley Фото © Ossip van Duivenbode
Комплекс Valley
Фото © Ossip van Duivenbode
Комплекс Valley Фото © Ossip van Duivenbode
Комплекс Valley
Фото © Ossip van Duivenbode
Комплекс Valley Фото © Ossip van Duivenbode
Комплекс Valley
Фото © Ossip van Duivenbode
Комплекс Valley Фото © Ossip van Duivenbode
Комплекс Valley
Фото © Ossip van Duivenbode
Комплекс Valley Фото © Ossip van Duivenbode
Комплекс Valley
Фото © Ossip van Duivenbode
Комплекс Valley Фото © Ossip van Duivenbode
Комплекс Valley
Фото © Ossip van Duivenbode
Комплекс Valley Фото © Ossip van Duivenbode
Комплекс Valley
Фото © Ossip van Duivenbode
Комплекс Valley
Комплекс Valley
Фото © Ossip van Duivenbode
Комплекс Valley Фото © Ossip van Duivenbode
Комплекс Valley
Фото © Ossip van Duivenbode
Комплекс Valley Фото © Ossip van Duivenbode
Комплекс Valley
Фото © Ossip van Duivenbode
Комплекс Valley Фото © Ossip van Duivenbode
Комплекс Valley
Фото © Ossip van Duivenbode
Комплекс Valley Фото © Ossip van Duivenbode
Комплекс Valley
Фото © Ossip van Duivenbode
Комплекс Valley Фото © Ossip van Duivenbode
Комплекс Valley
Фото © Ossip van Duivenbode
Комплекс Valley
Комплекс Valley
Фото © Ossip van Duivenbode
Комплекс Valley
Комплекс Valley
Фото © Ossip van Duivenbode
Комплекс Valley
Комплекс Valley
Фото © Ossip van Duivenbode
Комплекс Valley
Комплекс Valley
Фото © Ossip van Duivenbode
Комплекс Valley Фото © Ossip van Duivenbode
Комплекс Valley
Фото © Ossip van Duivenbode
Комплекс Valley Фото © Ossip van Duivenbode
Комплекс Valley
Фото © Ossip van Duivenbode
Комплекс Valley Фото © Ossip van Duivenbode
Комплекс Valley
Фото © Ossip van Duivenbode
Комплекс Valley Фото © Ossip van Duivenbode
Комплекс Valley
Фото © Ossip van Duivenbode
Комплекс Valley Фото © Ossip van Duivenbode
Комплекс Valley
Фото © Ossip van Duivenbode
Комплекс Valley
Комплекс Valley
Фото © Ossip van Duivenbode
Комплекс Valley
Комплекс Valley
Фото © Ossip van Duivenbode
Комплекс Valley
Комплекс Valley
Фото © Ossip van Duivenbode
Комплекс Valley
Комплекс Valley
Фото © Ossip van Duivenbode
Комплекс Valley
Комплекс Valley
Фото © Ossip van Duivenbode
Комплекс Valley @ MVRDV
Комплекс Valley
@ MVRDV
Комплекс Valley @ MVRDV
Комплекс Valley
@ MVRDV
Комплекс Valley © MVRDV
Комплекс Valley
© MVRDV
Комплекс Valley @ MVRDV
Комплекс Valley
@ MVRDV
Комплекс Valley @ MVRDV
Комплекс Valley
@ MVRDV
Комплекс Valley @ MVRDV
Комплекс Valley
@ MVRDV
Комплекс Valley @ MVRDV
Комплекс Valley
@ MVRDV
Комплекс Valley @ MVRDV
Комплекс Valley
@ MVRDV
Комплекс Valley
Комплекс Valley
© MVRDV
Комплекс Valley
Комплекс Valley
© MVRDV
Комплекс Valley
Комплекс Valley
© MVRDV
Комплекс Valley
Комплекс Valley
© MVRDV
Комплекс Valley
Комплекс Valley
© MVRDV
Комплекс Valley
Комплекс Valley
© MVRDV
Комплекс Valley
Комплекс Valley
© MVRDV
Комплекс Valley
Комплекс Valley
© MVRDV
Комплекс Valley
Комплекс Valley
© MVRDV
Комплекс Valley
Комплекс Valley
© MVRDV
Комплекс Valley
Комплекс Valley
© MVRDV