Размещено на портале Архи.ру (www.archi.ru)

16.09.2022

Обучающее пространство

Нина Фролова
Объект:
Начальная школа Фуцян
Адрес:
Китай, None, Шэньчжэнь.
Мастерская:
People’s Architecture Office

Начальная школа Фуцян в Шэньчжэне по проекту People’s Architecture Office.

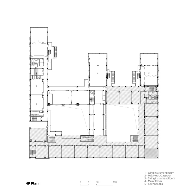
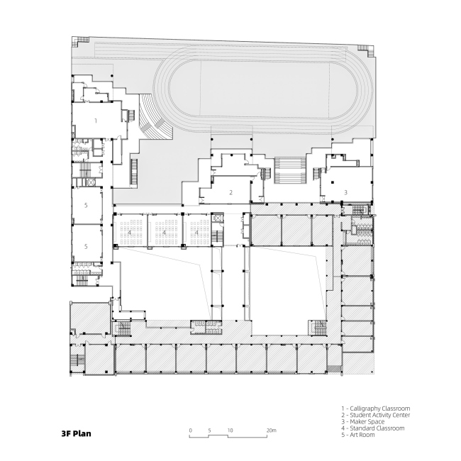
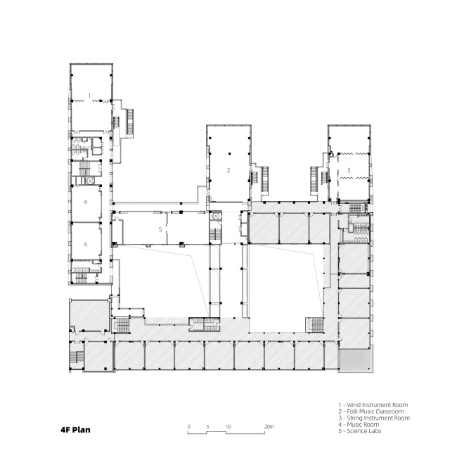
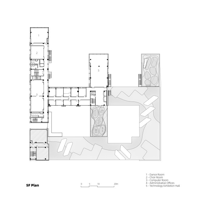
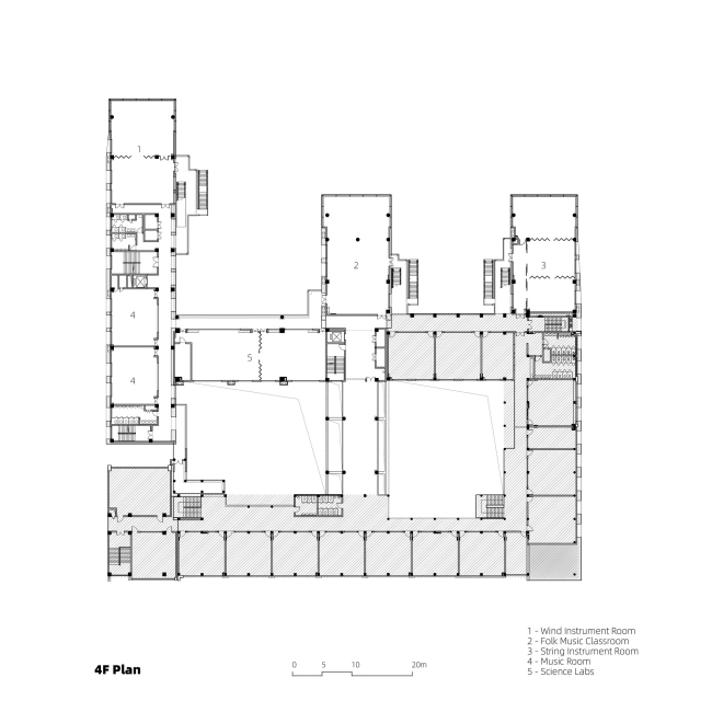
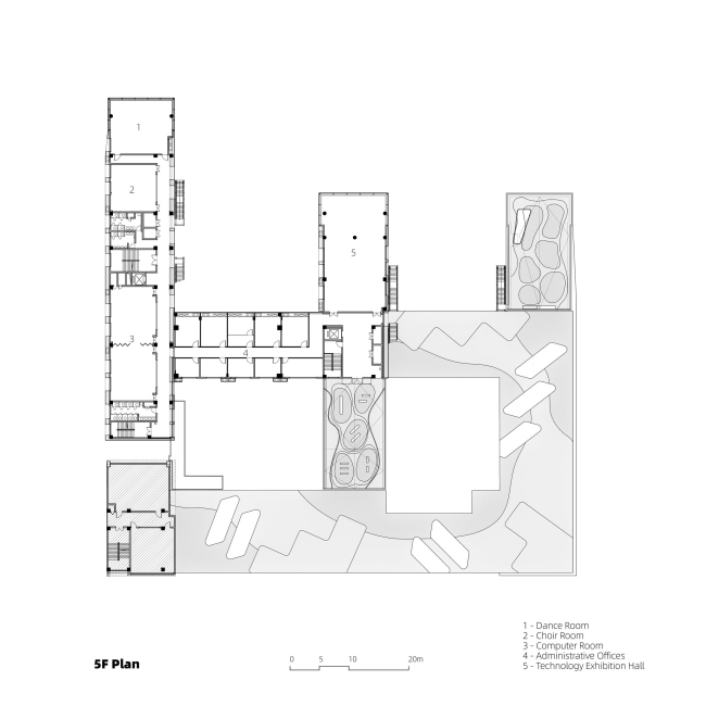
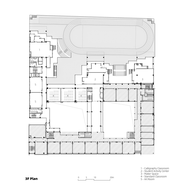
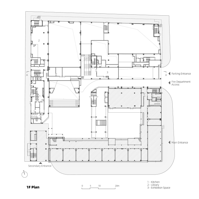
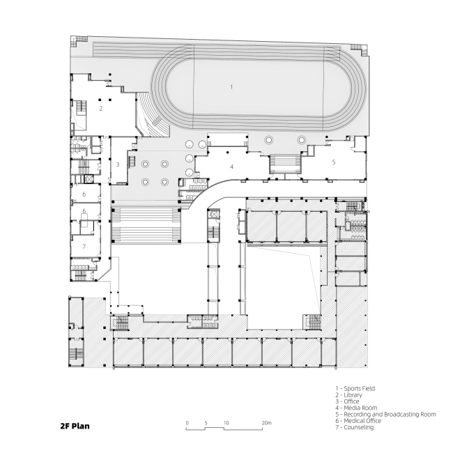
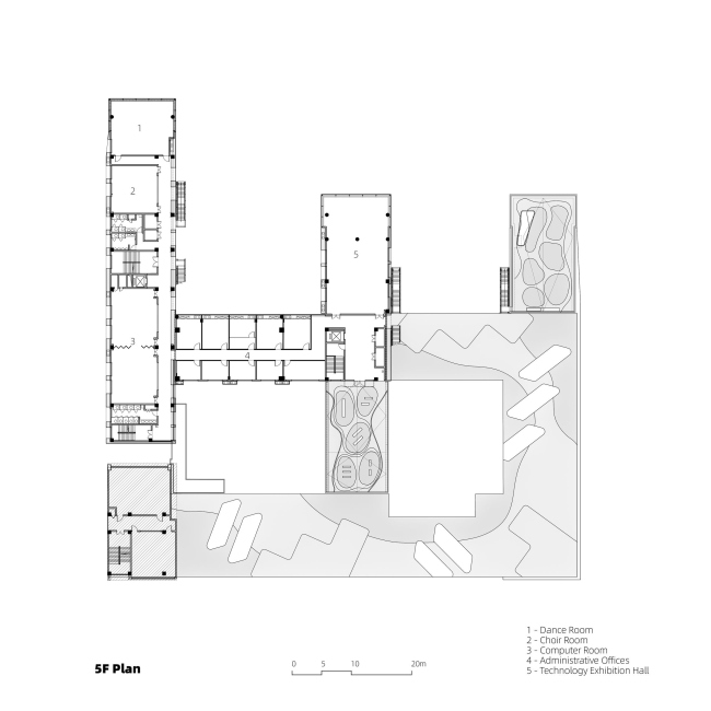
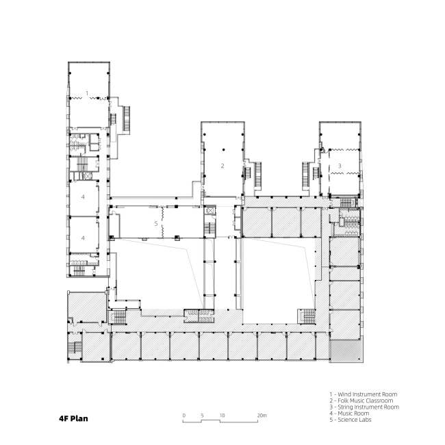
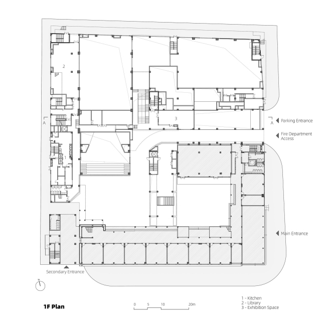
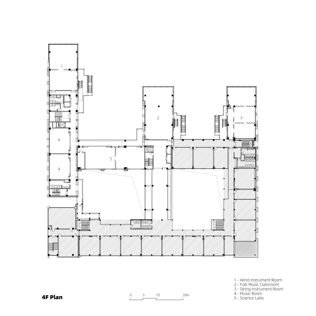
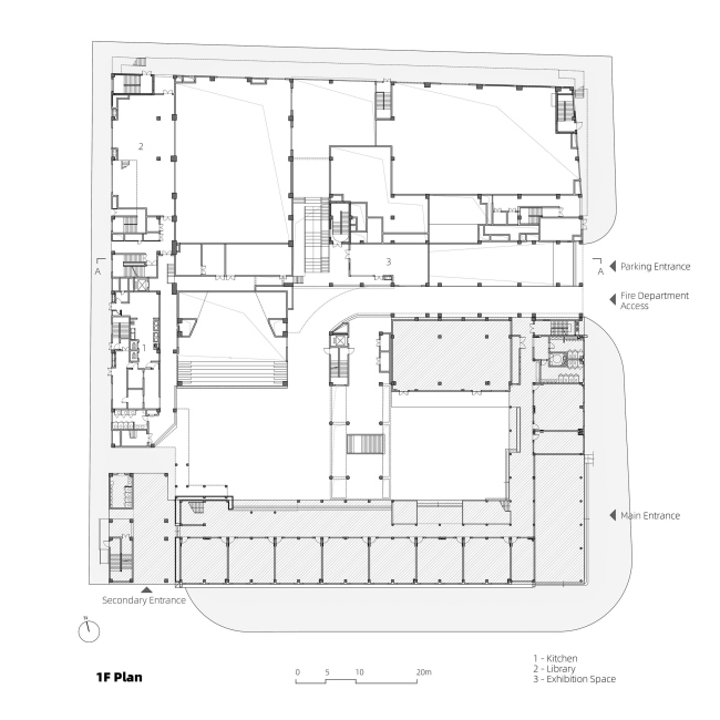
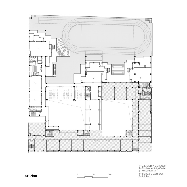
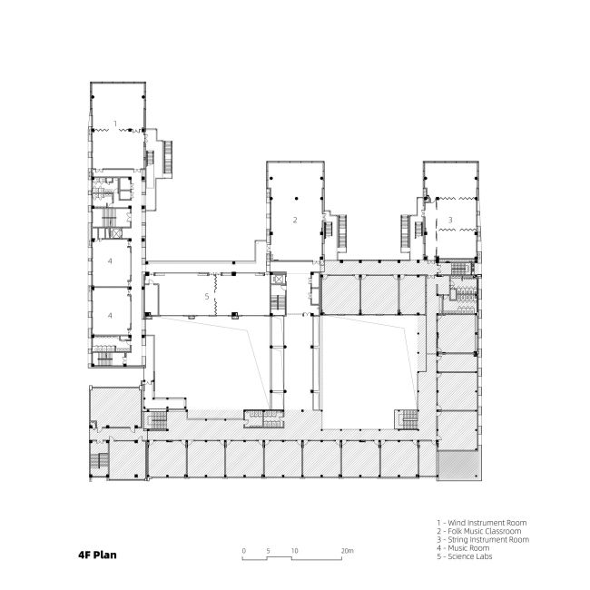
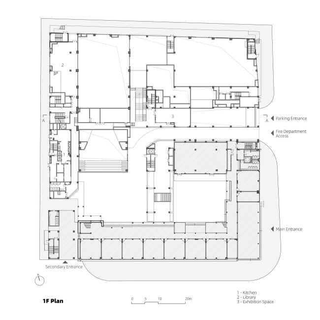
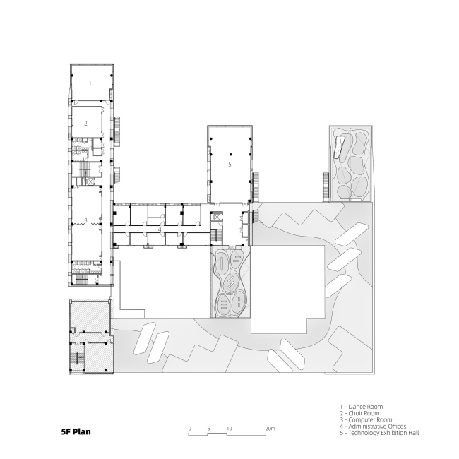
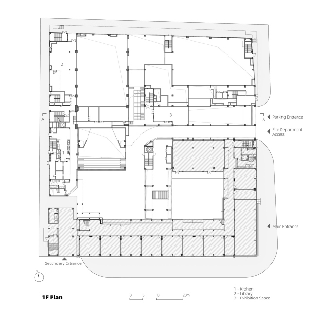
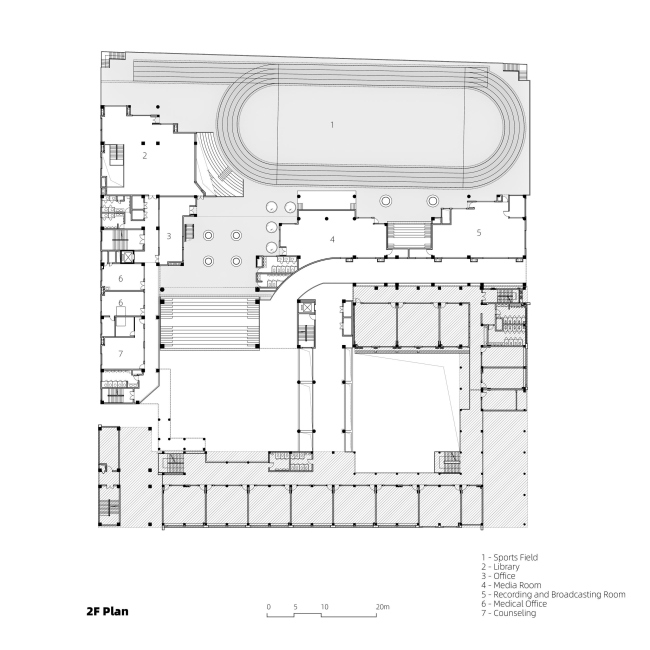
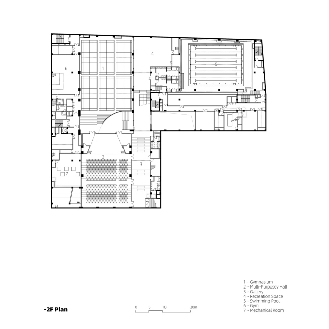
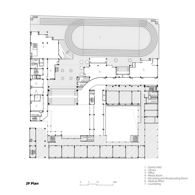
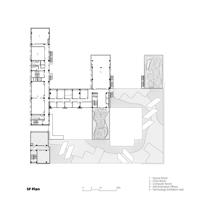
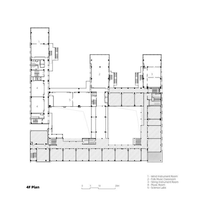
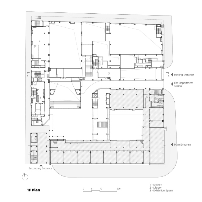
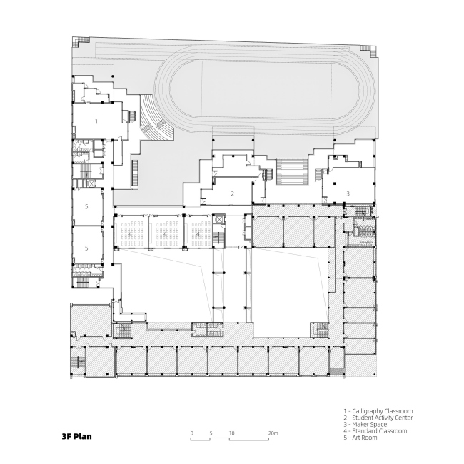
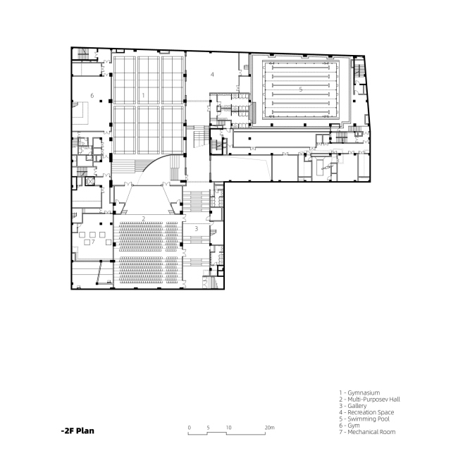
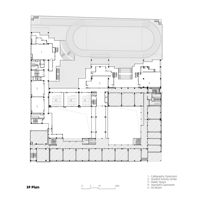
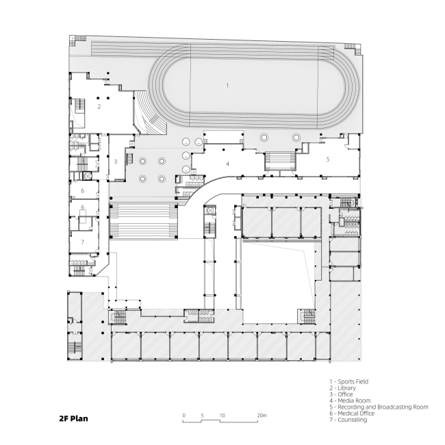
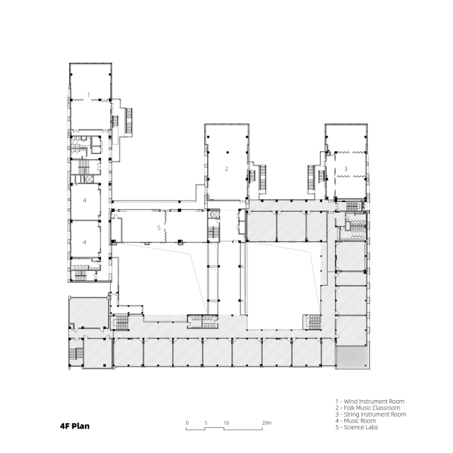
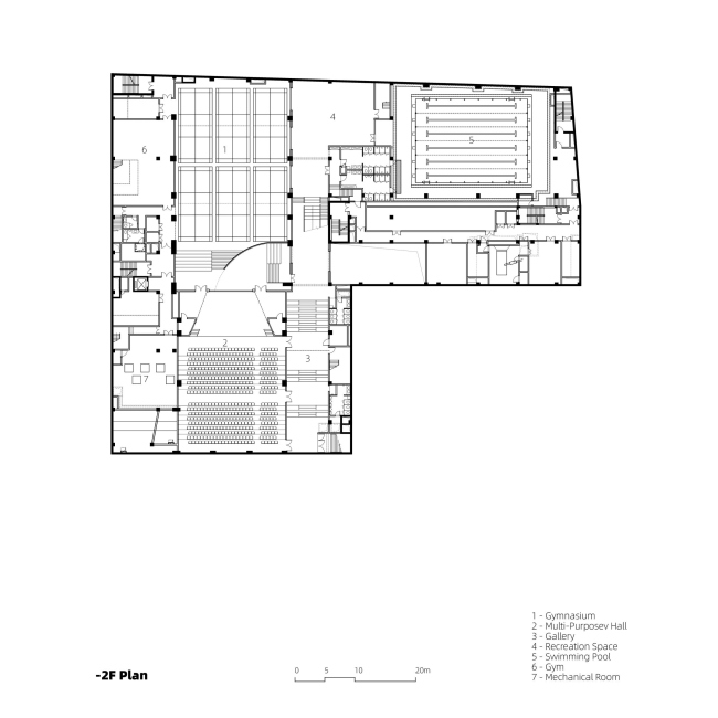
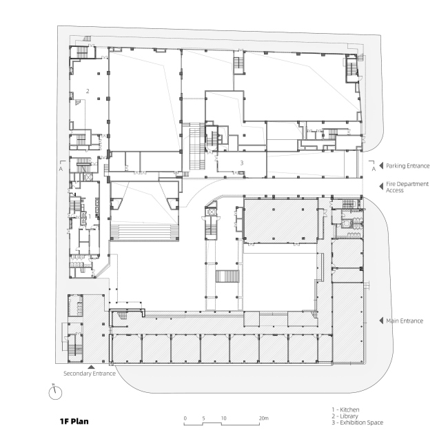
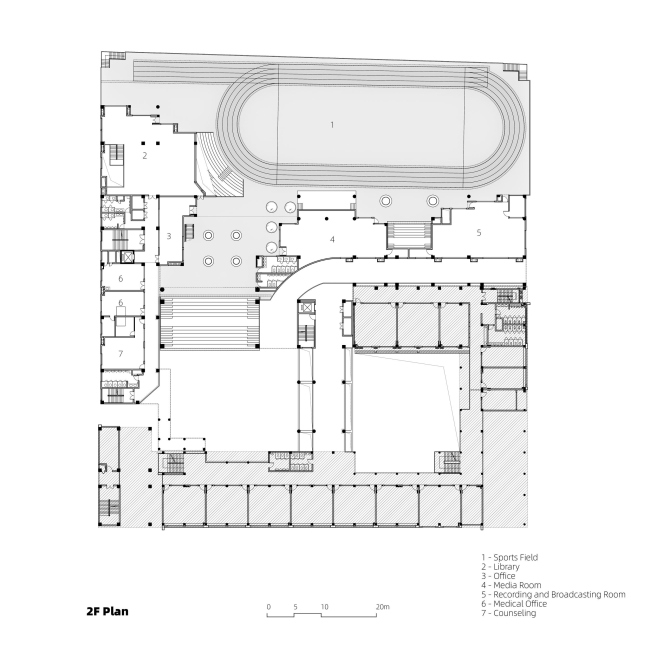
Проект школы Фуцян его авторы называют «Образовательные террасы», а пространство здания – одним из учителей. Они спланировали школу так, чтобы разбудить в детях любопытство и тягу к познанию нового. Поэтому помещения для разных занятий расположены рядом, и ученики в спортзале могут видеть своих сверстников на занятиях музыкой, а за теми и другими сверху наблюдают школьники, сидящие в библиотеке. Таким же образом рядом расположены обычные и специализированные классы и спортивное поле.
 

Начальная школа Фуцян
Начальная школа Фуцян
Фото © Zhu Yumeng
Начальная школа Фуцян
Начальная школа Фуцян
Фото © Zhu Yumeng
Начальная школа Фуцян
Начальная школа Фуцян
Фото © ACF

 

В проекте охвачены и менее формальные пространства: сады на крышах, дворы и террасы могут служить для уроков и собраний на свежем воздухе в группах разного размера. Для отдыха и индивидуальных занятий подходят широкие ступени и сидения в «иллюминаторах» фасада.
 
Начальная школа Фуцян
Начальная школа Фуцян
Фото © Zhu Yumeng
Начальная школа Фуцян
Начальная школа Фуцян
Фото © Zhu Yumeng
Начальная школа Фуцян
Начальная школа Фуцян
Фото © Zhu Yumeng

Благодаря широкому использованию стекла в консольных объемах, занятия музыкой, балетом, изобразительным искусством хорошо видны из разных точек школы, а также извне: рядом проходит оживленное Фуцянское шоссе.
 
Начальная школа Фуцян
Начальная школа Фуцян
Фото © Zhu Yumeng
Начальная школа Фуцян
Начальная школа Фуцян
Фото © Zhu Yumeng
Начальная школа Фуцян
Начальная школа Фуцян
Фото © Zhu Yumeng

Проект представляет собой реконструкцию и расширение школьного комплекса. Его общая площадь достигла после перестройки 28,5 тыс. м2.
Начальная школа Фуцян
Начальная школа Фуцян
Фото © Zhu Yumeng
Начальная школа Фуцян Фото © Zhu Yumeng
Начальная школа Фуцян
Фото © Zhu Yumeng
Начальная школа Фуцян Фото © Zhu Yumeng
Начальная школа Фуцян
Фото © Zhu Yumeng
Начальная школа Фуцян Фото © Zhu Yumeng
Начальная школа Фуцян
Фото © Zhu Yumeng
Начальная школа Фуцян Фото © Zhu Yumeng
Начальная школа Фуцян
Фото © Zhu Yumeng
Начальная школа Фуцян Фото © Zhu Yumeng
Начальная школа Фуцян
Фото © Zhu Yumeng
Начальная школа Фуцян
Начальная школа Фуцян
Фото © Zhu Yumeng
Начальная школа Фуцян
Начальная школа Фуцян
Фото © Zhu Yumeng
Начальная школа Фуцян
Начальная школа Фуцян
Фото © Zhu Yumeng
Начальная школа Фуцян Фото © Zhu Yumeng
Начальная школа Фуцян
Фото © Zhu Yumeng
Начальная школа Фуцян Фото © Zhu Yumeng
Начальная школа Фуцян
Фото © Zhu Yumeng
Начальная школа Фуцян Фото © Zhu Yumeng
Начальная школа Фуцян
Фото © Zhu Yumeng
Начальная школа Фуцян Фото © Zhu Yumeng
Начальная школа Фуцян
Фото © Zhu Yumeng
Начальная школа Фуцян
Начальная школа Фуцян
Фото © Zhu Yumeng
Начальная школа Фуцян
Начальная школа Фуцян
Фото © Zhu Yumeng
Начальная школа Фуцян
Начальная школа Фуцян
Фото © Zhu Yumeng
Начальная школа Фуцян
Начальная школа Фуцян
Фото © Zhu Yumeng
Начальная школа Фуцян
Начальная школа Фуцян
Фото © Zhu Yumeng
Начальная школа Фуцян
Начальная школа Фуцян
Фото © Zhu Yumeng
Начальная школа Фуцян
Начальная школа Фуцян
Фото © Zhu Yumeng
Начальная школа Фуцян
Начальная школа Фуцян
Фото © Zhu Yumeng
Начальная школа Фуцян
Начальная школа Фуцян
Фото © Zhu Yumeng
Начальная школа Фуцян
Начальная школа Фуцян
Фото © Zhu Yumeng
Начальная школа Фуцян
Начальная школа Фуцян
Фото © Zhu Yumeng
Начальная школа Фуцян
Начальная школа Фуцян
Фото © Zhu Yumeng
Начальная школа Фуцян
Начальная школа Фуцян
© People’s Architecture Office
Начальная школа Фуцян
Начальная школа Фуцян
© People’s Architecture Office
Начальная школа Фуцян
Начальная школа Фуцян
© People’s Architecture Office
Начальная школа Фуцян
Начальная школа Фуцян
© People’s Architecture Office
Начальная школа Фуцян
Начальная школа Фуцян
© People’s Architecture Office
Начальная школа Фуцян
Начальная школа Фуцян
© People’s Architecture Office
Начальная школа Фуцян
Начальная школа Фуцян
© People’s Architecture Office
Начальная школа Фуцян
Начальная школа Фуцян
© People’s Architecture Office
Начальная школа Фуцян
Начальная школа Фуцян
© People’s Architecture Office
Начальная школа Фуцян
Начальная школа Фуцян
© People’s Architecture Office
Начальная школа Фуцян
Начальная школа Фуцян
© People’s Architecture Office
Начальная школа Фуцян
Начальная школа Фуцян
© People’s Architecture Office
Начальная школа Фуцян
Начальная школа Фуцян
© People’s Architecture Office
Начальная школа Фуцян
Начальная школа Фуцян
© People’s Architecture Office
Начальная школа Фуцян
Начальная школа Фуцян
© People’s Architecture Office
Начальная школа Фуцян
Начальная школа Фуцян
© People’s Architecture Office
Начальная школа Фуцян
Начальная школа Фуцян
© People’s Architecture Office
Начальная школа Фуцян
Начальная школа Фуцян
© People’s Architecture Office
Начальная школа Фуцян
Начальная школа Фуцян
© People’s Architecture Office
Начальная школа Фуцян
Начальная школа Фуцян
© People’s Architecture Office
Начальная школа Фуцян
Начальная школа Фуцян
© People’s Architecture Office
Начальная школа Фуцян
Начальная школа Фуцян
© People’s Architecture Office