Размещено на портале Архи.ру (www.archi.ru)

13.09.2022

«Отшлифованный образ»

Нина Фролова
Объект:
Завод по переработке овса Harivenasa
Адрес:
Испания, None, Аракиль.
Мастерская:
IDOM

Завод по переработке овса по проекту бюро IDOM стоит среди живописного пейзажа Наварры и потому получил «отполированный» облик, не нарушающий окружение.

Завод компании Harivenasa расположен на севере Испании, в муниципалитете Аракиль недалеко от Памплоны, на границе Наварры и Страны басков. Вокруг – зеленые луга, влажные леса и предгорья Альп.
 

Завод по переработке овса Harivenasa
Завод по переработке овса Harivenasa
Фото © Aitor Ortiz
Завод по переработке овса Harivenasa
Завод по переработке овса Harivenasa
Фото © Aitor Ortiz

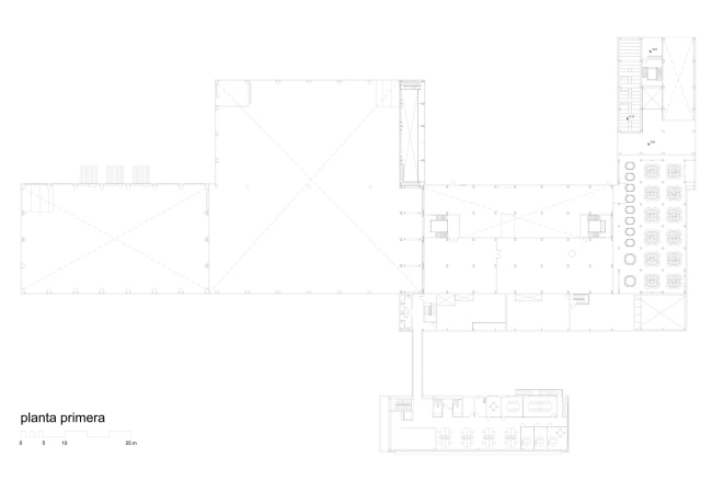
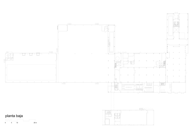
Учитывая значительный размер комплекса (почти 19 тыс. м2), проектировщики IDOM решили, что он должен «исчезнуть» с помощью чисто архитектурных средств. Они заключили все производственные и складские площади в лаконичные объемы с продуманными пропорциями, которые скорее напоминают общественное или коммерческое, в крайнем случае сервисное здание, а не индустриальное сооружение. Сходство усиливает сплошная обшивка сандвич-панелями с темно-серой металлизированной поверхностью: этот глубокий цвет поглощает, а не отражает свет, поэтому заметность крупного сооружения намного снизилась.
 
Завод по переработке овса Harivenasa
Завод по переработке овса Harivenasa
Фото © Aitor Ortiz
Завод по переработке овса Harivenasa
Завод по переработке овса Harivenasa
Фото © Aitor Ortiz

В целом, постройка не нарушает, а подчеркивает естественную красоту ландшафта благодаря неизбежному контрасту с ней контрасту.
 
Завод по переработке овса Harivenasa
Завод по переработке овса Harivenasa
Фото © Aitor Ortiz
Завод по переработке овса Harivenasa
Завод по переработке овса Harivenasa
Фото © Aitor Ortiz

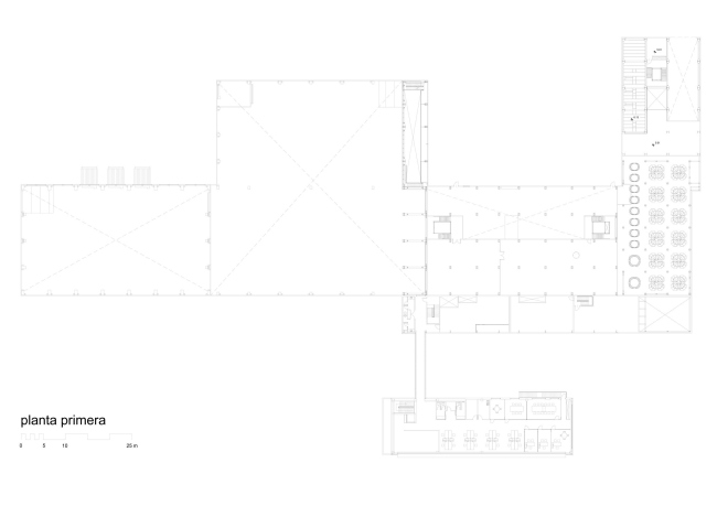
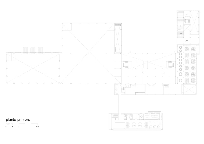
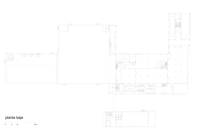
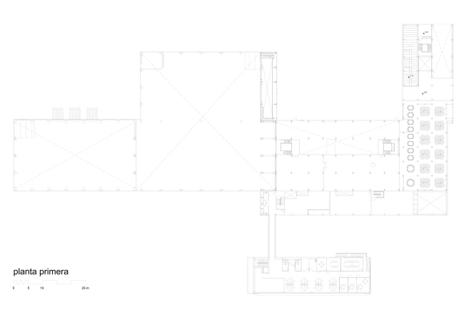
Внутри размещена современная производственная линия полного цикла, от поступающего с агроферм овса до выпуска готовых к реализации упаковок хлопьев, крупы и т. д. В среднем, невысоком корпусе расположен автоматизированный склад, где хранится готовая продукция (его вместимость 4000 паллет). В комплексе есть и элеватор для сырья. Административный корпус выделен в самостоятельный объем, связанный с заводом остекленным мостом.

Завод по переработке овса Harivenasa
Завод по переработке овса Harivenasa
Фото © Aitor Ortiz
Завод по переработке овса Harivenasa Фото © Aitor Ortiz
Завод по переработке овса Harivenasa
Фото © Aitor Ortiz
Завод по переработке овса Harivenasa Фото © Aitor Ortiz
Завод по переработке овса Harivenasa
Фото © Aitor Ortiz
Завод по переработке овса Harivenasa Фото © Aitor Ortiz
Завод по переработке овса Harivenasa
Фото © Aitor Ortiz
Завод по переработке овса Harivenasa Фото © Aitor Ortiz
Завод по переработке овса Harivenasa
Фото © Aitor Ortiz
Завод по переработке овса Harivenasa Фото © Aitor Ortiz
Завод по переработке овса Harivenasa
Фото © Aitor Ortiz
Завод по переработке овса Harivenasa Фото © Aitor Ortiz
Завод по переработке овса Harivenasa
Фото © Aitor Ortiz
Завод по переработке овса Harivenasa Фото © Aitor Ortiz
Завод по переработке овса Harivenasa
Фото © Aitor Ortiz
Завод по переработке овса Harivenasa Фото © Aitor Ortiz
Завод по переработке овса Harivenasa
Фото © Aitor Ortiz
Завод по переработке овса Harivenasa Фото © Aitor Ortiz
Завод по переработке овса Harivenasa
Фото © Aitor Ortiz
Завод по переработке овса Harivenasa
Завод по переработке овса Harivenasa
Фото © Aitor Ortiz
Завод по переработке овса Harivenasa
Завод по переработке овса Harivenasa
Фото © Aitor Ortiz
Завод по переработке овса Harivenasa
Завод по переработке овса Harivenasa
Фото © Aitor Ortiz
Завод по переработке овса Harivenasa
Завод по переработке овса Harivenasa
Фото © Aitor Ortiz
Завод по переработке овса Harivenasa
Завод по переработке овса Harivenasa
Фото © Aitor Ortiz
Завод по переработке овса Harivenasa
Завод по переработке овса Harivenasa
Фото © Aitor Ortiz
Завод по переработке овса Harivenasa
Завод по переработке овса Harivenasa
Фото © Aitor Ortiz
Завод по переработке овса Harivenasa
Завод по переработке овса Harivenasa
Фото © Aitor Ortiz
Завод по переработке овса Harivenasa Фото © Aitor Ortiz
Завод по переработке овса Harivenasa
Фото © Aitor Ortiz
Завод по переработке овса Harivenasa Фото © Aitor Ortiz
Завод по переработке овса Harivenasa
Фото © Aitor Ortiz
Завод по переработке овса Harivenasa Фото © Aitor Ortiz
Завод по переработке овса Harivenasa
Фото © Aitor Ortiz
Завод по переработке овса Harivenasa Фото © Aitor Ortiz
Завод по переработке овса Harivenasa
Фото © Aitor Ortiz
Завод по переработке овса Harivenasa Фото © Aitor Ortiz
Завод по переработке овса Harivenasa
Фото © Aitor Ortiz
Завод по переработке овса Harivenasa Фото © Aitor Ortiz
Завод по переработке овса Harivenasa
Фото © Aitor Ortiz
Завод по переработке овса Harivenasa Фото © Aitor Ortiz
Завод по переработке овса Harivenasa
Фото © Aitor Ortiz
Завод по переработке овса Harivenasa Фото © Aitor Ortiz
Завод по переработке овса Harivenasa
Фото © Aitor Ortiz
Завод по переработке овса Harivenasa
Завод по переработке овса Harivenasa
Фото © Aitor Ortiz
Завод по переработке овса Harivenasa
Завод по переработке овса Harivenasa
© IDOM
Завод по переработке овса Harivenasa
Завод по переработке овса Harivenasa
© IDOM
Завод по переработке овса Harivenasa
Завод по переработке овса Harivenasa
© IDOM
Завод по переработке овса Harivenasa
Завод по переработке овса Harivenasa
© IDOM
Завод по переработке овса Harivenasa
Завод по переработке овса Harivenasa
© IDOM
Завод по переработке овса Harivenasa
Завод по переработке овса Harivenasa
© IDOM
Завод по переработке овса Harivenasa
Завод по переработке овса Harivenasa
© IDOM
Завод по переработке овса Harivenasa
Завод по переработке овса Harivenasa
© IDOM