Размещено на портале Архи.ру (www.archi.ru)

09.09.2022

Культура каменной кладки

Анна Старостина
Объект:
Вилла Casa Fly
Адрес:
Испания, None, Пальма-де-Мальорка.
Мастерская:
BEEF Architekti

Словацкое бюро BEEF Architekti попробовало переосмыслить типологию классической средиземноморской виллы, основываясь на исторических строительных технологиях и традиционных материалах.

Приехав на Мальорку, архитекторы из Братиславы почувствовали себя в непривычной, малознакомой ситуации и начали свою работу над проектом с изучения местности и особенностей строительства в регионе. Больше всего их вдохновила местная технология сухой каменной кладки pedra en sec, которая в 2018 была даже включена список нематериального культурного наследия ЮНЕСКО, а также фасады традиционных деревянных домов.

Вилла Casa Fly на Мальорке
Вилла Casa Fly на Мальорке
Фотография © Tomeu Canyellas / предоставлена LINKA agency
Вилла Casa Fly на Мальорке
Вилла Casa Fly на Мальорке
Фотография © Tomeu Canyellas / предоставлена LINKA agency
Вилла Casa Fly на Мальорке Фотография © Tomeu Canyellas / предоставлена LINKA agency
Вилла Casa Fly на Мальорке
Фотография © Tomeu Canyellas / предоставлена LINKA agency
Вилла Casa Fly на Мальорке Фотография © Tomeu Canyellas / предоставлена LINKA agency
Вилла Casa Fly на Мальорке
Фотография © Tomeu Canyellas / предоставлена LINKA agency
Вилла Casa Fly на Мальорке Фотография © Tomeu Canyellas / предоставлена LINKA agency
Вилла Casa Fly на Мальорке
Фотография © Tomeu Canyellas / предоставлена LINKA agency
Вилла Casa Fly на Мальорке Фотография © Tomeu Canyellas / предоставлена LINKA agency
Вилла Casa Fly на Мальорке
Фотография © Tomeu Canyellas / предоставлена LINKA agency
Вилла Casa Fly на Мальорке Фотография © Tomeu Canyellas / предоставлена LINKA agency
Вилла Casa Fly на Мальорке
Фотография © Tomeu Canyellas / предоставлена LINKA agency
Вилла Casa Fly на Мальорке Фотография © Tomeu Canyellas / предоставлена LINKA agency
Вилла Casa Fly на Мальорке
Фотография © Tomeu Canyellas / предоставлена LINKA agency
Вилла Casa Fly на Мальорке
Вилла Casa Fly на Мальорке
Фотография © Tomeu Canyellas / предоставлена LINKA agency

Вилла Casa Fly расположена на берегу, недалеко от самого крупного города острова Пальма-де-Мальорки. Архитекторы оставили открытым бетонный конструктив дома, в частности плиты перекрытий, а проемы, отдав дань традициям, заполнили фактурной кладкой из местного камня. Обязательное для жанра курортной виллы остекление установили при этом глубоко и закрыли большими складными ставнями из деревянных ламелей, установленных с заметными зазорами. Они создают контрастную игру светотени и при этом пропускают потоки воздуха даже когда ставни закрыты.
Вилла Casa Fly на Мальорке
Вилла Casa Fly на Мальорке
Фотография © Tomeu Canyellas / предоставлена LINKA agency
Вилла Casa Fly на Мальорке Фотография © Tomeu Canyellas / предоставлена LINKA agency
Вилла Casa Fly на Мальорке
Фотография © Tomeu Canyellas / предоставлена LINKA agency
Вилла Casa Fly на Мальорке Фотография © Tomeu Canyellas / предоставлена LINKA agency
Вилла Casa Fly на Мальорке
Фотография © Tomeu Canyellas / предоставлена LINKA agency
Вилла Casa Fly на Мальорке Фотография © Tomeu Canyellas / предоставлена LINKA agency
Вилла Casa Fly на Мальорке
Фотография © Tomeu Canyellas / предоставлена LINKA agency
Вилла Casa Fly на Мальорке
Вилла Casa Fly на Мальорке
Фотография © Tomeu Canyellas / предоставлена LINKA agency
Вилла Casa Fly на Мальорке Фотография © Tomeu Canyellas / предоставлена LINKA agency
Вилла Casa Fly на Мальорке
Фотография © Tomeu Canyellas / предоставлена LINKA agency
Вилла Casa Fly на Мальорке Фотография © Tomeu Canyellas / предоставлена LINKA agency
Вилла Casa Fly на Мальорке
Фотография © Tomeu Canyellas / предоставлена LINKA agency
Вилла Casa Fly на Мальорке Фотография © Tomeu Canyellas / предоставлена LINKA agency
Вилла Casa Fly на Мальорке
Фотография © Tomeu Canyellas / предоставлена LINKA agency
Вилла Casa Fly на Мальорке Фотография © Tomeu Canyellas / предоставлена LINKA agency
Вилла Casa Fly на Мальорке
Фотография © Tomeu Canyellas / предоставлена LINKA agency
Вилла Casa Fly на Мальорке Фотография © Tomeu Canyellas / предоставлена LINKA agency
Вилла Casa Fly на Мальорке
Фотография © Tomeu Canyellas / предоставлена LINKA agency
Вилла Casa Fly на Мальорке Фотография © Tomeu Canyellas / предоставлена LINKA agency
Вилла Casa Fly на Мальорке
Фотография © Tomeu Canyellas / предоставлена LINKA agency

Получившийся фасад оказался не только эффектным, но и эффективным в условиях жаркого климата. Уже за счет глубокого остекления помещения перегреваются гораздо меньше. Деревянные жалюзи создают дополнительную защиту, при этом оставляя возможность естественной вентиляции. Выступающие же фрагменты каменной кладки принимают на себя гораздо больше солнечных лучей и заметно нагреваются. В результате перепада температур возникает небольшое движение воздуха, помогающее рассеивать лишнее тепло.
Вилла Casa Fly на Мальорке
Вилла Casa Fly на Мальорке
Фотография © Tomeu Canyellas / предоставлена LINKA agency
Вилла Casa Fly на Мальорке
Вилла Casa Fly на Мальорке
Фотография © Tomeu Canyellas / предоставлена LINKA agency
Вилла Casa Fly на Мальорке
Вилла Casa Fly на Мальорке
Фотография © Tomeu Canyellas / предоставлена LINKA agency
Вилла Casa Fly на Мальорке Фотография © Tomeu Canyellas / предоставлена LINKA agency
Вилла Casa Fly на Мальорке
Фотография © Tomeu Canyellas / предоставлена LINKA agency
Вилла Casa Fly на Мальорке Фотография © Tomeu Canyellas / предоставлена LINKA agency
Вилла Casa Fly на Мальорке
Фотография © Tomeu Canyellas / предоставлена LINKA agency
Вилла Casa Fly на Мальорке Фотография © Tomeu Canyellas / предоставлена LINKA agency
Вилла Casa Fly на Мальорке
Фотография © Tomeu Canyellas / предоставлена LINKA agency
Вилла Casa Fly на Мальорке Фотография © Tomeu Canyellas / предоставлена LINKA agency
Вилла Casa Fly на Мальорке
Фотография © Tomeu Canyellas / предоставлена LINKA agency
Вилла Casa Fly на Мальорке Фотография © Tomeu Canyellas / предоставлена LINKA agency
Вилла Casa Fly на Мальорке
Фотография © Tomeu Canyellas / предоставлена LINKA agency
Вилла Casa Fly на Мальорке Фотография © Tomeu Canyellas / предоставлена LINKA agency
Вилла Casa Fly на Мальорке
Фотография © Tomeu Canyellas / предоставлена LINKA agency
Вилла Casa Fly на Мальорке Фотография © Tomeu Canyellas / предоставлена LINKA agency
Вилла Casa Fly на Мальорке
Фотография © Tomeu Canyellas / предоставлена LINKA agency
Вилла Casa Fly на Мальорке Фотография © Tomeu Canyellas / предоставлена LINKA agency
Вилла Casa Fly на Мальорке
Фотография © Tomeu Canyellas / предоставлена LINKA agency
Вилла Casa Fly на Мальорке Фотография © Tomeu Canyellas / предоставлена LINKA agency
Вилла Casa Fly на Мальорке
Фотография © Tomeu Canyellas / предоставлена LINKA agency

Очень важно было также соблюсти единство внешних и внутренних решений. Поэтому все заявленные на фасадах материалы работают и в интерьерах: открытая каменная кладка и деревянные ламели сочетаются с гладкими белыми стенами, покрытыми местной известковой штукатуркой estuco de cal. Все плоскости архитекторы рассматривали при этом как нейтральный фон, который позволяет вывести на первый план авторскую деревянную мебель. Нужное настроение в интерьерах помогают создавать керамический светильник ручной работы над обеденным столом и  бронзовая скульптура ангела в холле.
Вилла Casa Fly на Мальорке
Вилла Casa Fly на Мальорке
Фотография © Tomeu Canyellas / предоставлена LINKA agency
Вилла Casa Fly на Мальорке
Вилла Casa Fly на Мальорке
Фотография © Tomeu Canyellas / предоставлена LINKA agency
Вилла Casa Fly на Мальорке Фотография © Tomeu Canyellas / предоставлена LINKA agency
Вилла Casa Fly на Мальорке
Фотография © Tomeu Canyellas / предоставлена LINKA agency
Вилла Casa Fly на Мальорке Фотография © Tomeu Canyellas / предоставлена LINKA agency
Вилла Casa Fly на Мальорке
Фотография © Tomeu Canyellas / предоставлена LINKA agency
Вилла Casa Fly на Мальорке Фотография © Tomeu Canyellas / предоставлена LINKA agency
Вилла Casa Fly на Мальорке
Фотография © Tomeu Canyellas / предоставлена LINKA agency
Вилла Casa Fly на Мальорке Фотография © Tomeu Canyellas / предоставлена LINKA agency
Вилла Casa Fly на Мальорке
Фотография © Tomeu Canyellas / предоставлена LINKA agency
Вилла Casa Fly на Мальорке Фотография © Tomeu Canyellas / предоставлена LINKA agency
Вилла Casa Fly на Мальорке
Фотография © Tomeu Canyellas / предоставлена LINKA agency

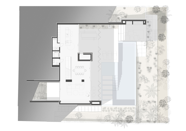
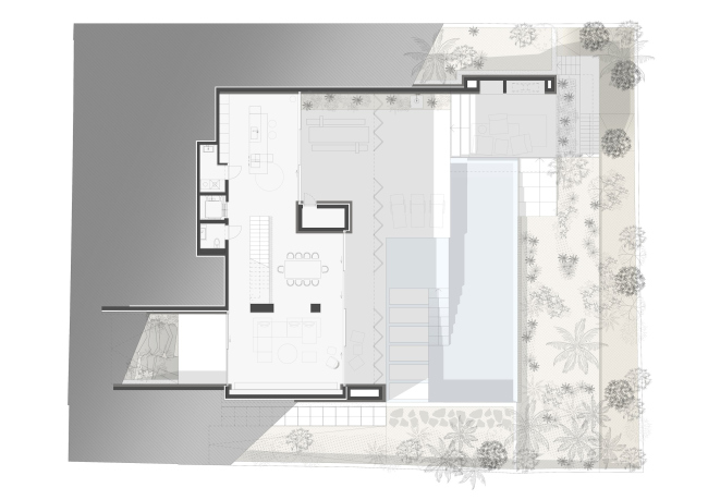
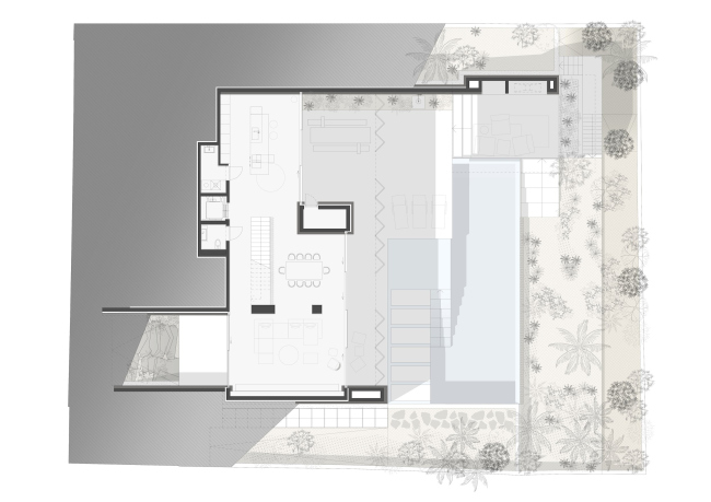
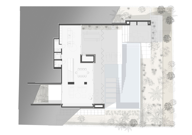
Ну и конечно, запоминающиеся виды из окон стали неотъемлемой частью архитектурного решения – из спален и ванной на верхнем этаже открываются лес и город, а из общественной зоны на нижнем уровне и панорамного бассейна можно бесконечно наблюдать за морем.
Вилла Casa Fly на Мальорке
Вилла Casa Fly на Мальорке
Фотография © Tomeu Canyellas / предоставлена LINKA agency
Вилла Casa Fly на Мальорке
Вилла Casa Fly на Мальорке
Фотография © Tomeu Canyellas / предоставлена LINKA agency
Вилла Casa Fly на Мальорке
Вилла Casa Fly на Мальорке
Фотография © Tomeu Canyellas / предоставлена LINKA agency
Вилла Casa Fly на Мальорке
Вилла Casa Fly на Мальорке
© BEEF Architekti / предоставлено LINKA agency
Вилла Casa Fly на Мальорке
Вилла Casa Fly на Мальорке
© BEEF Architekti / предоставлено LINKA agency
Вилла Casa Fly на Мальорке
Вилла Casa Fly на Мальорке
© BEEF Architekti / предоставлено LINKA agency
Вилла Casa Fly на Мальорке © BEEF Architekti / предоставлено LINKA agency
Вилла Casa Fly на Мальорке
© BEEF Architekti / предоставлено LINKA agency
Вилла Casa Fly на Мальорке © BEEF Architekti / предоставлено LINKA agency
Вилла Casa Fly на Мальорке
© BEEF Architekti / предоставлено LINKA agency
Вилла Casa Fly на Мальорке © BEEF Architekti / предоставлено LINKA agency
Вилла Casa Fly на Мальорке
© BEEF Architekti / предоставлено LINKA agency
Вилла Casa Fly на Мальорке © BEEF Architekti / предоставлено LINKA agency
Вилла Casa Fly на Мальорке
© BEEF Architekti / предоставлено LINKA agency
Вилла Casa Fly на Мальорке
Вилла Casa Fly на Мальорке
© BEEF Architekti / предоставлено LINKA agency