Размещено на портале Архи.ру (www.archi.ru)

02.09.2022

На стыке двух миров

Анна Старостина
Объект:
Муниципальный бассейн в Лоуни
Адрес:
Чехия, None, Лоуни.
Мастерская:
dkarchitekti

Небольшое здание муниципального бассейна в чешском Лоуни бюро dkarchitekti представило как «живую рекламную витрину» водных видов спорта и отдыха.

Собственное здание нового бассейна в небольшом промышленном центре Лоуни dkarchitekti сравнивают с кристаллом. Это сходство возникает благодаря черным алюминиевым панелям на закрытых фасадах, расчерченным резкими, смелыми линиями. Открытая общественная зона между бассейном и соседними административными зданиями органично вписывает объем в городскую ткань, а высокая внешняя горка с лестницей делает его хорошо заметным практически из любой точки города.

Муниципальный бассейн в Лоуни
Муниципальный бассейн в Лоуни
Фотография © BoysPlayNice / предоставлена LINKA agency
Муниципальный бассейн в Лоуни
Муниципальный бассейн в Лоуни
Фотография © BoysPlayNice / предоставлена LINKA agency
Муниципальный бассейн в Лоуни Фотография © BoysPlayNice / предоставлена LINKA agency
Муниципальный бассейн в Лоуни
Фотография © BoysPlayNice / предоставлена LINKA agency
Муниципальный бассейн в Лоуни Фотография © BoysPlayNice / предоставлена LINKA agency
Муниципальный бассейн в Лоуни
Фотография © BoysPlayNice / предоставлена LINKA agency

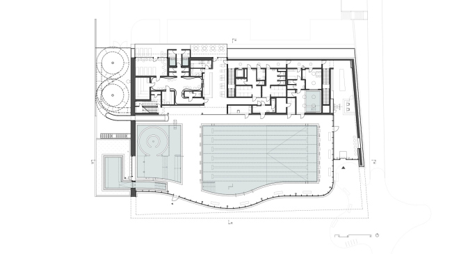
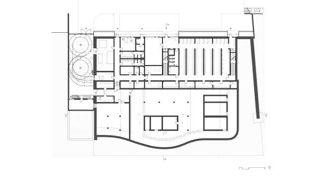
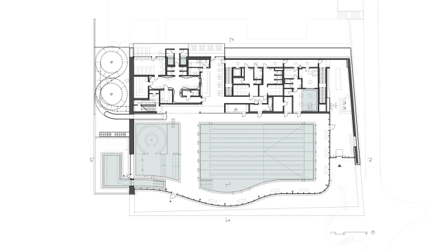
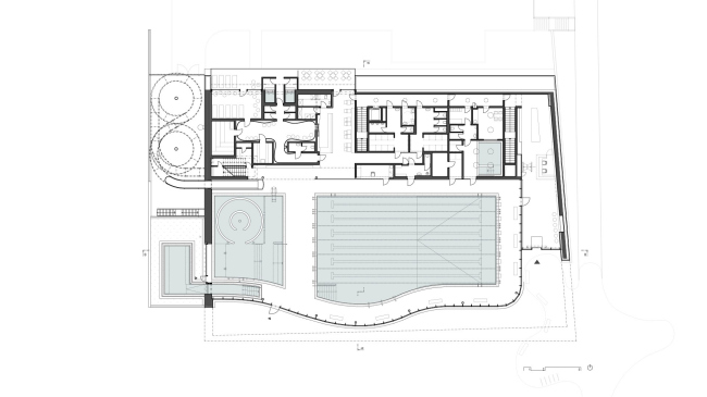
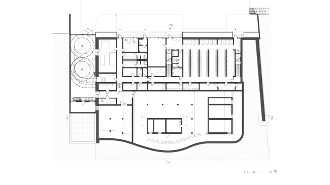
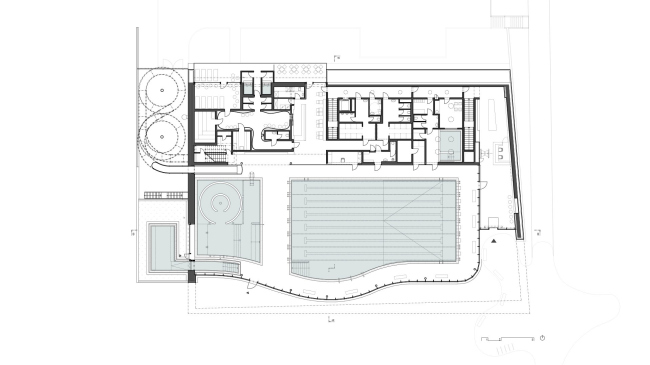
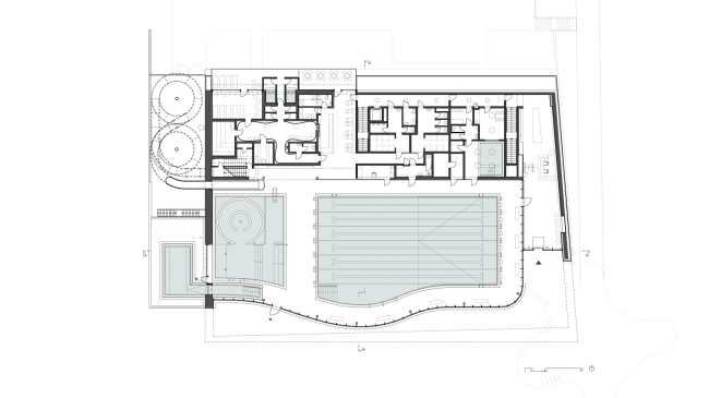
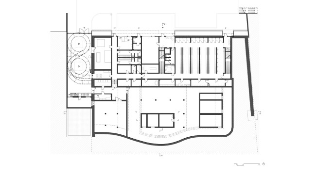
Бассейн расположен на участке с сильным перепадом высот и архитекторы максимально использовали эту особенность. Его покатая кровля неожиданно поднимается вместе с повышением рельефа, и взлетающий объем раскрывается в южную сторону, уступая место волнистому полностью застекленному фасаду.
Муниципальный бассейн в Лоуни
Муниципальный бассейн в Лоуни
Фотография © BoysPlayNice / предоставлена LINKA agency
Муниципальный бассейн в Лоуни
Муниципальный бассейн в Лоуни
Фотография © BoysPlayNice / предоставлена LINKA agency
Муниципальный бассейн в Лоуни Фотография © BoysPlayNice / предоставлена LINKA agency
Муниципальный бассейн в Лоуни
Фотография © BoysPlayNice / предоставлена LINKA agency
Муниципальный бассейн в Лоуни Фотография © BoysPlayNice / предоставлена LINKA agency
Муниципальный бассейн в Лоуни
Фотография © BoysPlayNice / предоставлена LINKA agency
Муниципальный бассейн в Лоуни Фотография © BoysPlayNice / предоставлена LINKA agency
Муниципальный бассейн в Лоуни
Фотография © BoysPlayNice / предоставлена LINKA agency

Внутренняя поверхность его острых граней как бы продолжает интерьер и покрыта клееными панелями из лиственницы. Такие же панели и такие же волнистые формы повторены в решении зоны саун. Острый нависающий козырек при этом защищает летом от избыточного солнца и перегрева, а в зимний период, наоборот, позволяет поймать все, такие необходимые, лучи низкого солнца.
Муниципальный бассейн в Лоуни
Муниципальный бассейн в Лоуни
Фотография © BoysPlayNice / предоставлена LINKA agency
Муниципальный бассейн в Лоуни
Муниципальный бассейн в Лоуни
Фотография © BoysPlayNice / предоставлена LINKA agency
Муниципальный бассейн в Лоуни Фотография © BoysPlayNice / предоставлена LINKA agency
Муниципальный бассейн в Лоуни
Фотография © BoysPlayNice / предоставлена LINKA agency
Муниципальный бассейн в Лоуни Фотография © BoysPlayNice / предоставлена LINKA agency
Муниципальный бассейн в Лоуни
Фотография © BoysPlayNice / предоставлена LINKA agency
Муниципальный бассейн в Лоуни Фотография © BoysPlayNice / предоставлена LINKA agency
Муниципальный бассейн в Лоуни
Фотография © BoysPlayNice / предоставлена LINKA agency

Полностью застекленный фасад вместе с небольшим открытым бассейном раскрывают таким образом внутреннее пространство городу и создают некоторую зону коммуникации между закутанными в теплые шарфы и куртки горожанами и расслабленными отдыхающими, попивающими коктейль в водном баре или тренирующимися в чаше бассейна. И заказчики, и архитекторы очень надеются, что такой не часто встречающийся открытый подход станет живой рекламой спорта и здорового образа жизни.
Муниципальный бассейн в Лоуни
Муниципальный бассейн в Лоуни
Фотография © BoysPlayNice / предоставлена LINKA agency
Муниципальный бассейн в Лоуни Фотография © BoysPlayNice / предоставлена LINKA agency
Муниципальный бассейн в Лоуни
Фотография © BoysPlayNice / предоставлена LINKA agency
Муниципальный бассейн в Лоуни Фотография © BoysPlayNice / предоставлена LINKA agency
Муниципальный бассейн в Лоуни
Фотография © BoysPlayNice / предоставлена LINKA agency
Муниципальный бассейн в Лоуни Фотография © BoysPlayNice / предоставлена LINKA agency
Муниципальный бассейн в Лоуни
Фотография © BoysPlayNice / предоставлена LINKA agency

В низкой северной части сосредоточены раздевалки, душевые, зона саун и бар. Задний фасад в целом закрыт, но имеет остекленный балкон, на который можно вынести столики и любоваться красивыми видами на Среднечешское нагорье. В подземной части размещены все инженерные коммуникации, места хранения и технические зоны. Перепад рельефа в этом случае позволил свести к минимуму необходимые экскавационные работы.
Муниципальный бассейн в Лоуни
Муниципальный бассейн в Лоуни
Фотография © BoysPlayNice / предоставлена LINKA agency
Муниципальный бассейн в Лоуни
Муниципальный бассейн в Лоуни
Фотография © BoysPlayNice / предоставлена LINKA agency
Муниципальный бассейн в Лоуни
Муниципальный бассейн в Лоуни
© dkarchitekti / предоставлено LINKA agency
Муниципальный бассейн в Лоуни
Муниципальный бассейн в Лоуни
© dkarchitekti / предоставлено LINKA agency
Муниципальный бассейн в Лоуни
Муниципальный бассейн в Лоуни
© dkarchitekti / предоставлено LINKA agency
Муниципальный бассейн в Лоуни
Муниципальный бассейн в Лоуни
© dkarchitekti / предоставлено LINKA agency
Муниципальный бассейн в Лоуни
Муниципальный бассейн в Лоуни
© dkarchitekti / предоставлено LINKA agency
Муниципальный бассейн в Лоуни © dkarchitekti / предоставлено LINKA agency
Муниципальный бассейн в Лоуни
© dkarchitekti / предоставлено LINKA agency
Муниципальный бассейн в Лоуни © dkarchitekti / предоставлено LINKA agency
Муниципальный бассейн в Лоуни
© dkarchitekti / предоставлено LINKA agency
Муниципальный бассейн в Лоуни © dkarchitekti / предоставлено LINKA agency
Муниципальный бассейн в Лоуни
© dkarchitekti / предоставлено LINKA agency
Муниципальный бассейн в Лоуни © dkarchitekti / предоставлено LINKA agency
Муниципальный бассейн в Лоуни
© dkarchitekti / предоставлено LINKA agency