Размещено на портале Архи.ру (www.archi.ru)

16.09.2022

Законченный образ

Объект:
Delo House 3
Адрес:
Россия, Ленинградская область , поселок Приветнинское
Мастерская:
Delo Design
Авторский коллектив:
Арсений Бродач, Иван Новиков
 

Каркасный дом с тремя спальнями и террасой, для которого архитекторы продумали не только технологию строительства, но и обстановку – вся мебель и предметы быта также созданы мастерской Delo.

Описание предоставлено архитекторами

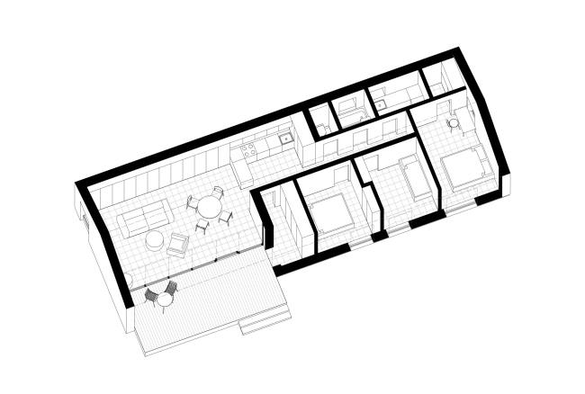
Delo House 3 – новая модель в линейке типовых домов бренда Delo, среди которых есть как небольшой кэбин площадью всего 11 м2, так и полноценный семейный дом на четыре спальни. Delo House 3 занимает промежуточную позицию: его внутренняя площадь составляет 87 м² и может быть увеличена за счет открытой террасы. Дом строится на участке по каркасной технологии с использованием заранее заготовленных элементов.
Delo House 3
Delo House 3
Фотография © Арсений Бродач / предоставлена Delo Design

Дом вмещает три спальни со встроенными шкафами, кухню, гостиную, туалет, ванную, гардеробную и прихожую. Планировку можно зеркально отразить в любом направлении, а окна расположить в зависимости от сторон света, желаемого вида и подъезда к дому.
Delo House 3
Delo House 3
© Delo Design

У дома простая и при этом надежная конструкция, которую можно возводить на любом фундаменте. При строительстве используются качественные и экологичные материалы. Дом спроектирован с учетом их стандартных размеров, а при строительстве почти не остается отходов, что оптимизирует стоимость дома и экономит природные ресурсы.
Delo House 3
Delo House 3
Фотография © Арсений Бродач / предоставлена Delo Design
Delo House 3
Delo House 3
Фотография © Арсений Бродач / предоставлена Delo Design

Проект продуман не только с точки зрения строительства: архитекторы уделили особое внимание дизайну и инженерному оснащению. За счет предусмотренного отопления (теплый пол, электрический или газовый котел), вентиляции и электрики Delo House 3 энергоэффективен и рассчитан на проживание зимой. Дом полностью оборудован предметами быта и мебелью Delo, а некоторые модели изготовлены специально для проекта. 
Delo House 3 Фотография © Арсений Бродач / предоставлена Delo Design
Delo House 3
Фотография © Арсений Бродач / предоставлена Delo Design
Delo House 3 Фотография © Арсений Бродач / предоставлена Delo Design
Delo House 3
Фотография © Арсений Бродач / предоставлена Delo Design
Delo House 3 Фотография © Арсений Бродач / предоставлена Delo Design
Delo House 3
Фотография © Арсений Бродач / предоставлена Delo Design
Delo House 3 Фотография © Арсений Бродач / предоставлена Delo Design
Delo House 3
Фотография © Арсений Бродач / предоставлена Delo Design