Размещено на портале Архи.ру (www.archi.ru)

25.08.2022

Рыжие арки

Нина Фролова
Объект:
«Дом арок Мирай»
Адрес:
Индия, None, Бхилвара.
Мастерская:
Sanjay Puri Architects

Проект виллы в индийском штате Раджастан по проекту Sanjay Puri Architects учитывает крайне жаркий и сухой местный климат.

«Дом арок Мирай» (920 м2) расположен в городе Бхилвара, где температура выше 40 градусов по Цельсию может наблюдаться большую часть года. Поэтому крайне важным было охладить интерьер пассивными средствами, что позволило бы сэкономить ресурсы.
 

«Дом арок Мирай»
«Дом арок Мирай»
Фото © Dinesh Mehta

Наиболее уязвимые в аспекте перегрева фасады, южный и восточный, получили минимум проемов: такое решение удачно еще и потому, что они обращены к границам соседних участков, где скоро тоже появятся дома. Так одновременно решен вопрос сохранения своей – и чужой – приватности.
 
«Дом арок Мирай»
«Дом арок Мирай»
Фото © Dinesh Mehta

Северный и западный фасады выходят на тихую улицу, от которой они закрыты зеленью. Обширные арочные проемы и устроенные под ними террасы обеспечивают затенение интерьера, при этом пропуская внутрь достаточно непрямого солнечного света.
 
«Дом арок Мирай»
«Дом арок Мирай»
Фото © Dinesh Mehta

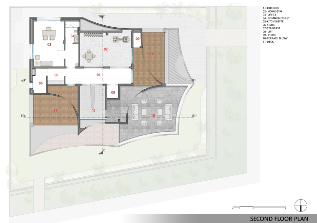
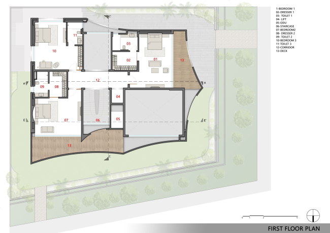
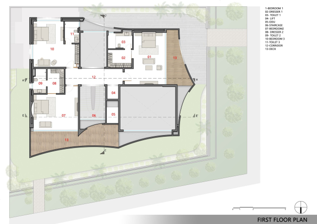
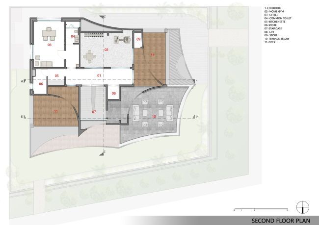
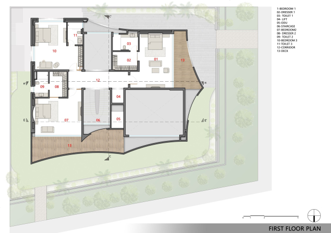
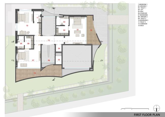
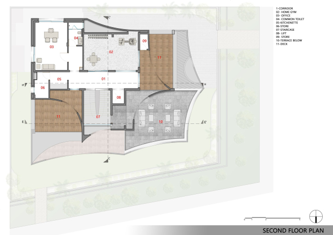
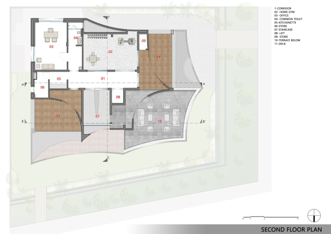
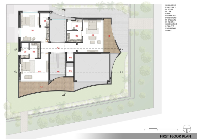
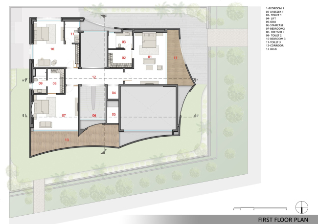
На трех этажах виллы живет семья из трех поколений. Здесь есть четыре спальни (одноуровневые, примерно одинаковой площади), двухсветная столовая и две общие комнаты / гостиные «полуторной» высоты.
 
«Дом арок Мирай»
«Дом арок Мирай»
Фото © Dinesh Mehta

Вилла выстроена из местного кирпича, в интерьере широко использован местный же песчаник, на фасадах – известковая штукатурка. Проект предусматривает вторичную очистку воды, сбор дождевой воды, использование солнечных батарей.
«Дом арок Мирай»
«Дом арок Мирай»
Фото © Dinesh Mehta
«Дом арок Мирай» Фото © Dinesh Mehta
«Дом арок Мирай»
Фото © Dinesh Mehta
«Дом арок Мирай» Фото © Dinesh Mehta
«Дом арок Мирай»
Фото © Dinesh Mehta
«Дом арок Мирай» Фото © Dinesh Mehta
«Дом арок Мирай»
Фото © Dinesh Mehta
«Дом арок Мирай» Фото © Dinesh Mehta
«Дом арок Мирай»
Фото © Dinesh Mehta
«Дом арок Мирай»
«Дом арок Мирай»
Фото © Dinesh Mehta
«Дом арок Мирай»
«Дом арок Мирай»
Фото © Dinesh Mehta
«Дом арок Мирай» Фото © Dinesh Mehta
«Дом арок Мирай»
Фото © Dinesh Mehta
«Дом арок Мирай» Фото © Dinesh Mehta
«Дом арок Мирай»
Фото © Dinesh Mehta
«Дом арок Мирай» Фото © Dinesh Mehta
«Дом арок Мирай»
Фото © Dinesh Mehta
«Дом арок Мирай» Фото © Dinesh Mehta
«Дом арок Мирай»
Фото © Dinesh Mehta
«Дом арок Мирай» Фото © Dinesh Mehta
«Дом арок Мирай»
Фото © Dinesh Mehta
«Дом арок Мирай» Фото © Dinesh Mehta
«Дом арок Мирай»
Фото © Dinesh Mehta
«Дом арок Мирай»
«Дом арок Мирай»
Фото © Dinesh Mehta
«Дом арок Мирай»
«Дом арок Мирай»
Фото © Dinesh Mehta
«Дом арок Мирай»
«Дом арок Мирай»
Фото © Dinesh Mehta
«Дом арок Мирай»
«Дом арок Мирай»
Фото © Dinesh Mehta
«Дом арок Мирай»
«Дом арок Мирай»
Фото © Dinesh Mehta
«Дом арок Мирай»
«Дом арок Мирай»
Фото © Dinesh Mehta
«Дом арок Мирай»
«Дом арок Мирай»
Фото © Dinesh Mehta
«Дом арок Мирай»
«Дом арок Мирай»
Фото © Dinesh Mehta
«Дом арок Мирай»
«Дом арок Мирай»
© Sanjay Puri Architects
«Дом арок Мирай»
«Дом арок Мирай»
© Sanjay Puri Architects
«Дом арок Мирай»
«Дом арок Мирай»
© Sanjay Puri Architects
«Дом арок Мирай»
«Дом арок Мирай»
© Sanjay Puri Architects
«Дом арок Мирай»
«Дом арок Мирай»
© Sanjay Puri Architects
«Дом арок Мирай»
«Дом арок Мирай»
© Sanjay Puri Architects
«Дом арок Мирай»
«Дом арок Мирай»
© Sanjay Puri Architects