Размещено на портале Архи.ру (www.archi.ru)

23.08.2022

Игра с восприятием

Нина Фролова
Объект:
Детский сад Northstar Nest
Адрес:
Индия, None, Раджкот.
Мастерская:
Shanmugam Associates

Детский сад на западе Индии по проекту Shanmugam Associates кажется крупнее благодаря продуманно расположенным «карнизам», которые также помогают затенять фасад.

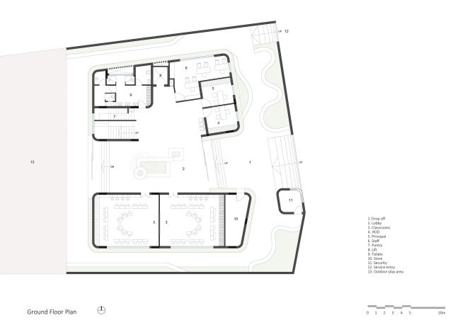
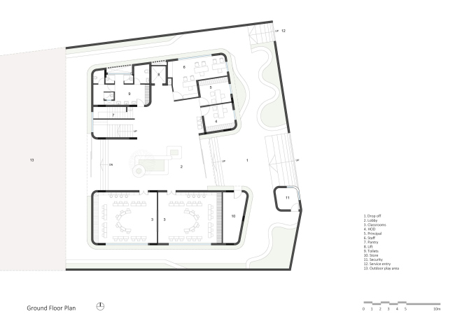
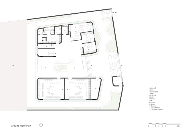
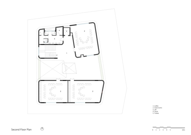
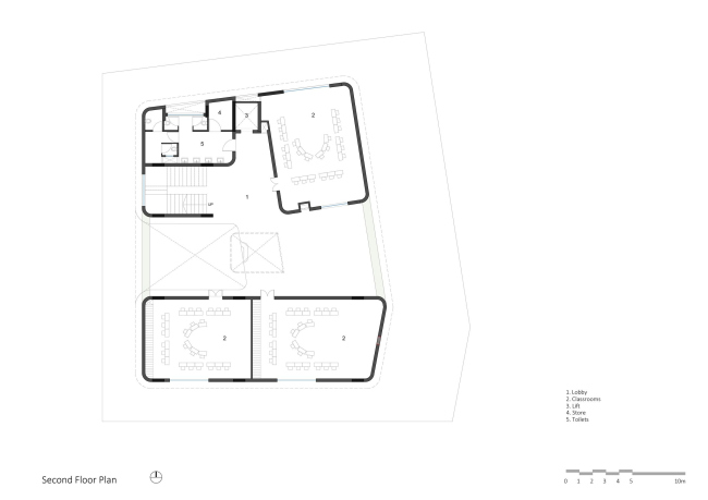
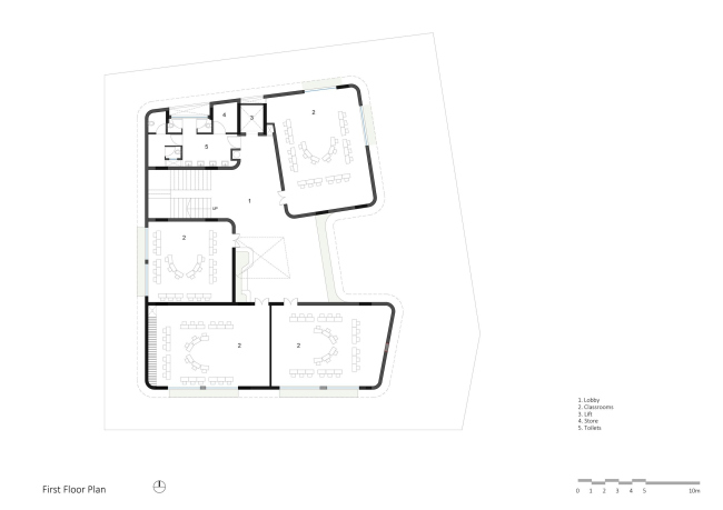
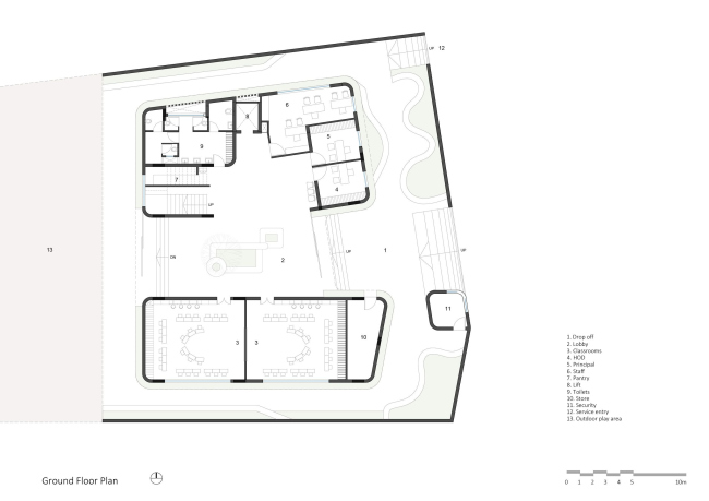
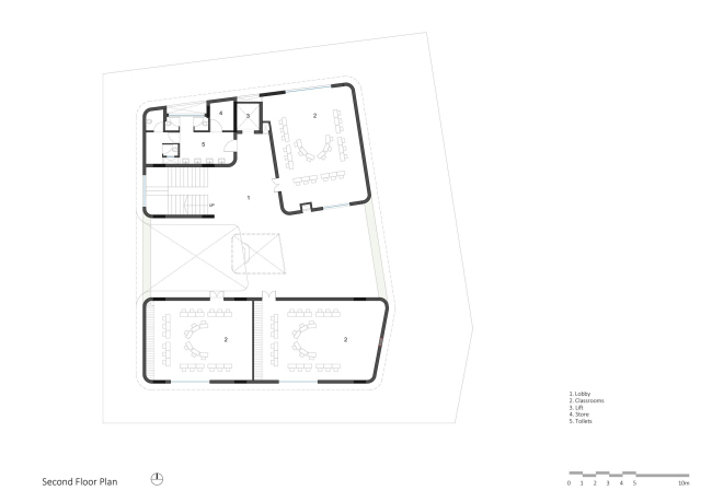
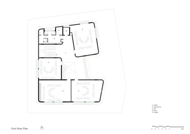
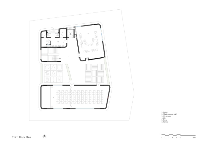
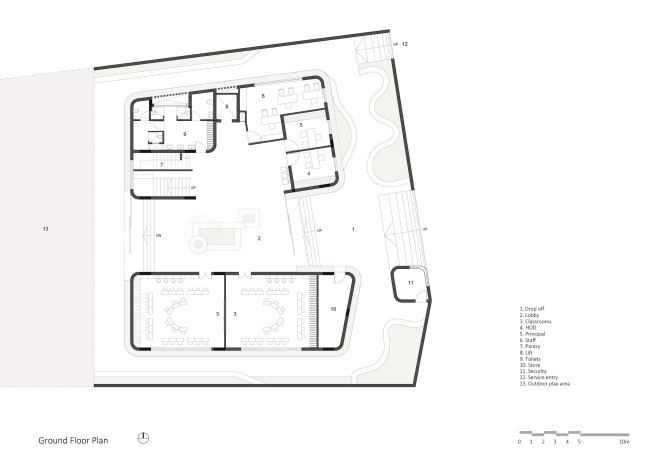
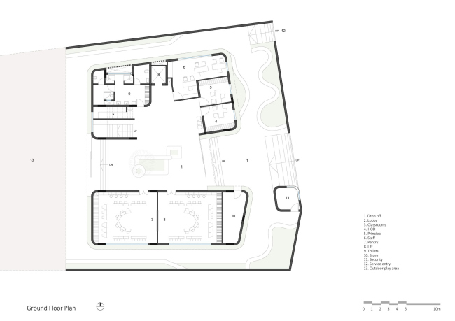
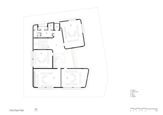
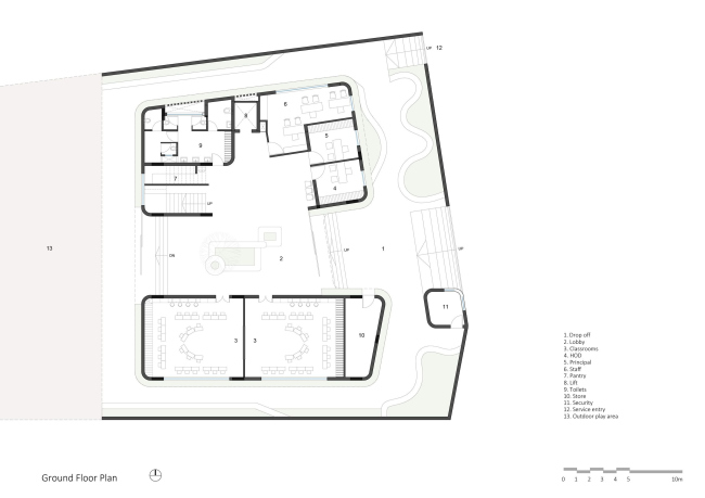
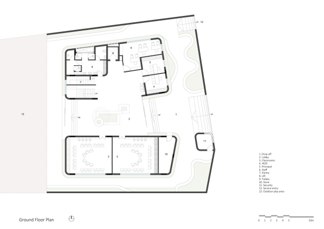
Детский сад Northstar Nest построен на узком участке, вытянутом в направлении запад – восток. Здание заняло обращенный к улице восточный край, западная часть превращена в сад. Из-за ограничений участка постройка достаточно компактна. Кроме того, речь о совсем новом районе, поэтому вокруг пока нет зданий и создаваемой ими тени, поэтому защита от солнца была крайне важна.
 

Детский сад Northstar Nest
Детский сад Northstar Nest
Фото © Ishita Sitwala

Обе эти проблемы, сравнительно небольшой размер и опасность перегрева фасадов, архитекторы решили с помощью горизонтальных выступов, своего рода карнизов, которые визуально сбивают масштаб здания, и оно кажется крупнее своих четырех этажей.
 
Детский сад Northstar Nest
Детский сад Northstar Nest
Фото © Ishita Sitwala

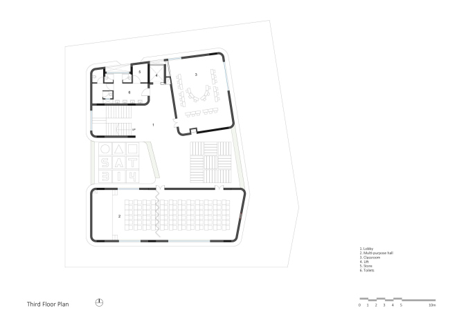
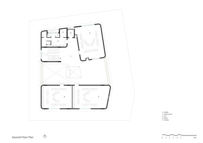
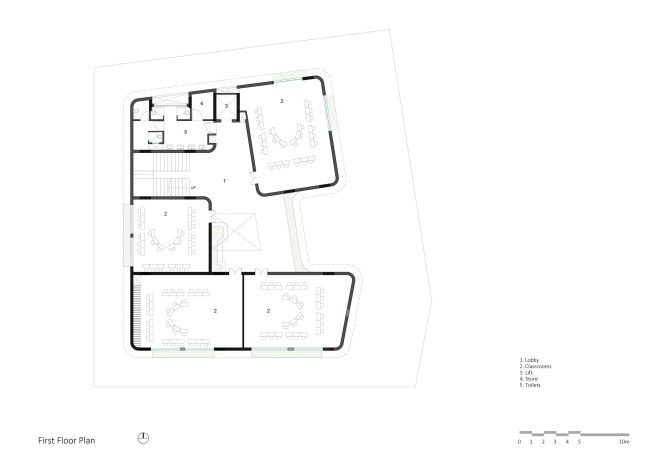
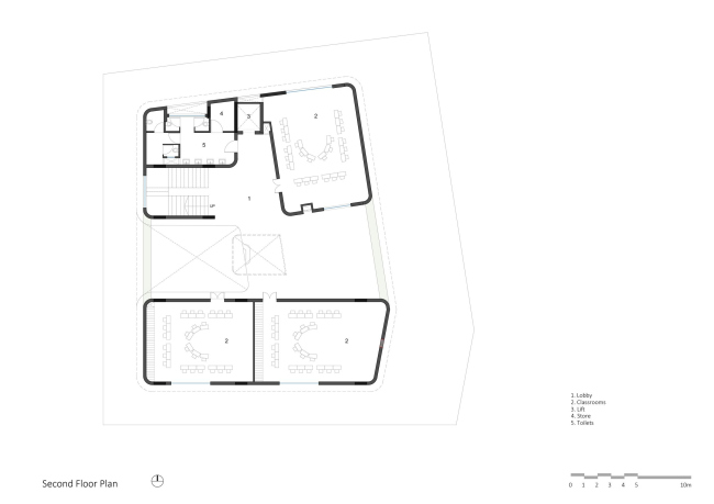
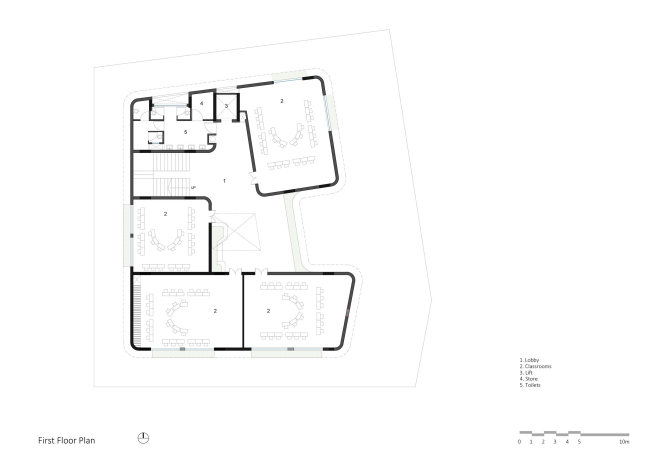
«Карнизы» располагаются по три на каждом этаже, включая позицию над окнами. Под окнами они расширяются до «эркеров», куда высажены растения. И «карнизы», и сами углы здания скруглены, чтобы сделать образ постройки более дружелюбным с точки зрения детей.
 
Детский сад Northstar Nest
Детский сад Northstar Nest
Фото © Ishita Sitwala

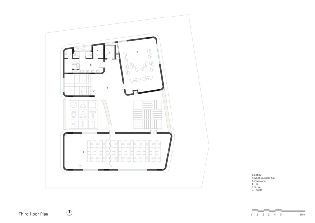
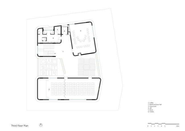
В интерьере использованы двухсветные помещения: они расположены ступенчато, чтобы создать визуальную «лестницу» между нижним и верхним уровнями здания. В перекрытиях самого верхнего такого помещения вырезаны буквы алфавита: получающаяся игра теней должна развлекать малышей.
 
Детский сад Northstar Nest
Детский сад Northstar Nest
Фото © Ishita Sitwala

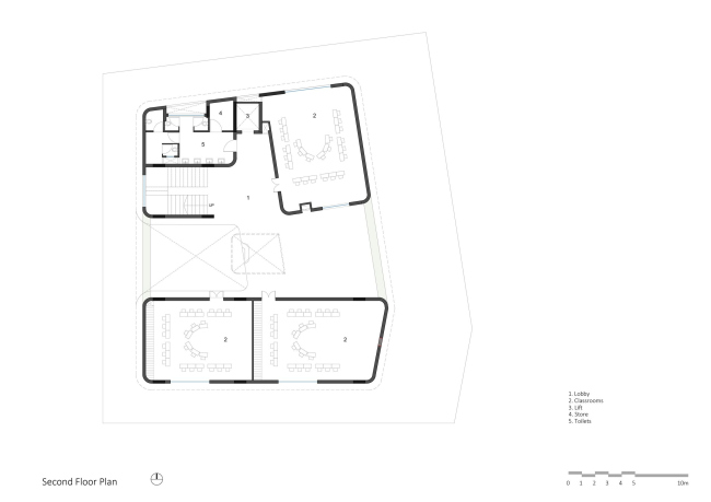
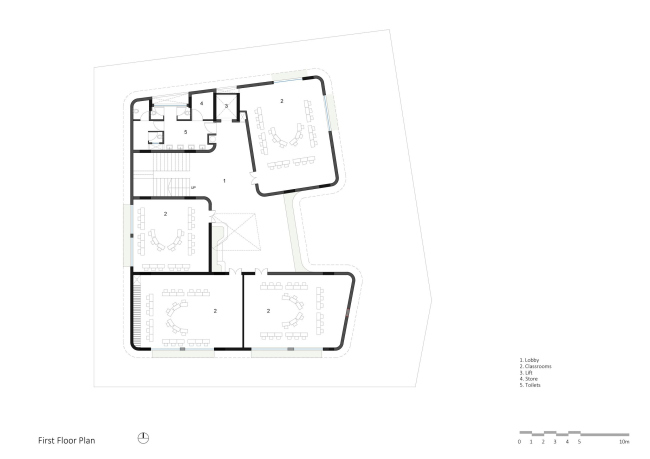
В этих пространствах размещены клумбы, фонтанчики и сидения, здесь дети могут играть или заниматься чем-то менее «формальным», чем в классных комнатах, которые размещены по три на этаже. Двухсветные помещения также играют роль «вытяжки», выводящей нагревшийся воздух.
 
Детский сад Northstar Nest
Детский сад Northstar Nest
Фото © Ishita Sitwala

Большое внимание уделено деталям. Пол покрыт цементной плиткой ручной работы разных естественных тонов, дверные коробки выполнены из гранита.
Детский сад Northstar Nest
Детский сад Northstar Nest
Фото © Ishita Sitwala
Детский сад Northstar Nest
Детский сад Northstar Nest
Фото © Ishita Sitwala
Детский сад Northstar Nest
Детский сад Northstar Nest
Фото © Ishita Sitwala
Детский сад Northstar Nest
Детский сад Northstar Nest
Фото © Ishita Sitwala
Детский сад Northstar Nest
Детский сад Northstar Nest
Фото © Ishita Sitwala
Детский сад Northstar Nest
Детский сад Northstar Nest
Фото © Ishita Sitwala
Детский сад Northstar Nest
Детский сад Northstar Nest
Фото © Ishita Sitwala
Детский сад Northstar Nest
Детский сад Northstar Nest
Фото © Ishita Sitwala
Детский сад Northstar Nest
Детский сад Northstar Nest
© Shanmugam Associates
Детский сад Northstar Nest
Детский сад Northstar Nest
© Shanmugam Associates
Детский сад Northstar Nest
Детский сад Northstar Nest
© Shanmugam Associates
Детский сад Northstar Nest
Детский сад Northstar Nest
© Shanmugam Associates
Детский сад Northstar Nest
Детский сад Northstar Nest
© Shanmugam Associates
Детский сад Northstar Nest
Детский сад Northstar Nest
© Shanmugam Associates
Детский сад Northstar Nest
Детский сад Northstar Nest
© Shanmugam Associates