Бюро А4 разработало концепцию коттеджного поселка, рассчитанного на людей с активной позицией и предпринимательской жилкой. Проект предусматривает систему общественных пространств, которые жильцы смогут использовать, менять и развивать, исходя из своих собственных проектов.
Участок, на котором планируется строить поселок, располагается недалеко от Истринского водохранилища, между деревнями Миронцево и Похлебайки, и представляет собой обширную территорию, поросшую лесом. Архитекторы предлагают сохранить все здоровые деревья, поэтому дома будут окружать взрослые березы, осины и тополя.
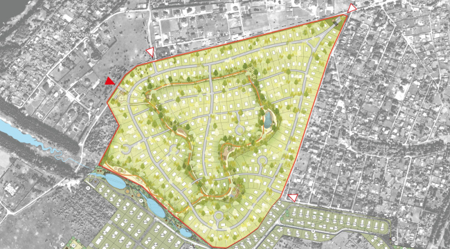
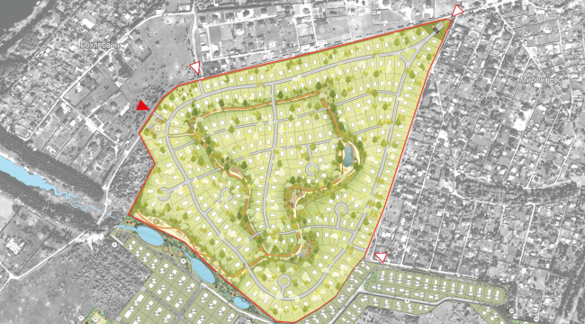
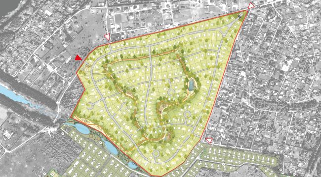
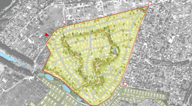
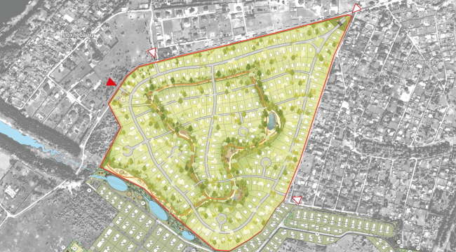
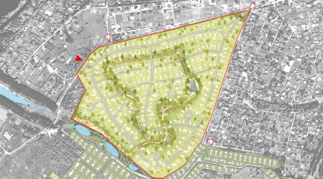
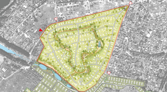
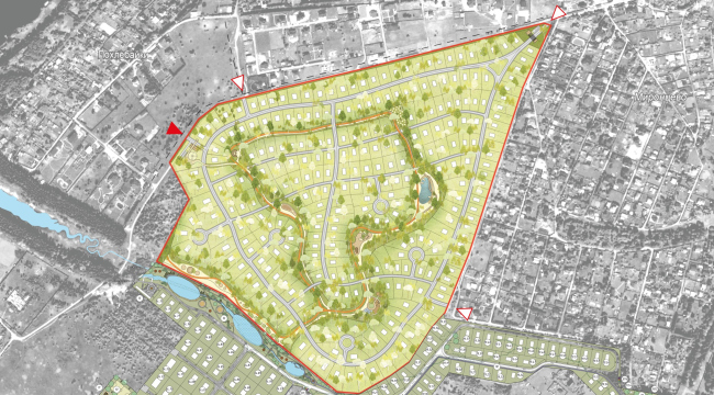
Миронцево – поселок для предпринимателей. Мастер-план территории поселка Миронцево
© Бюро А4
Миронцево – поселок для предпринимателей. «Зеленое кольцо» поселка Миронцево
© Бюро А4
Перед стартом работ команда Бюро А4 провела глубинный предпроектный анализ и составила портреты потенциальных покупателей – людей с активной предпринимательской позицией, на которых и рассчитано Миронцево.
Миронцево – поселок для предпринимателей. Въездная группа. Мост
© Бюро А4
Концепция, разработанная бюро А4 совместно с заказчиком, не ограничивается градостроительными решениями: предполагается, что будущие жильцы смогут самостоятельно программировать пространство и реализовывать свои предпринимательские проекты, формируя внутреннее комьюнити и способствуя развитию территории.
Миронцево – поселок для предпринимателей. Общий план поселка
© Бюро А4
Дома в поселке построены в едином модуле по семи типоразмерам. Во всех юнитах есть террасы, в средних типологиях – дополнительные балконы. В отделке применяются только натуральные материалы. Таким образом сохраняется единая природная тематика, в то же время застройка формирует свою идентичность и выглядит разнообразной.
Миронцево – поселок для предпринимателей. Схема формообразования юнитов
© Бюро А4
Миронцево – поселок для предпринимателей. Типология домов. Юнит Эко
© Бюро А4
Миронцево – поселок для предпринимателей. Типология домов. Юнит Бэйсик
© Бюро А4
Миронцево – поселок для предпринимателей. Отделка Эко. Юнит 4
© Бюро А4
Миронцево – поселок для предпринимателей. Отделка Премиум. Юнит 4.
© Бюро А4
Миронцево – поселок для предпринимателей. Отделка Нормал. Юнит 4
© Бюро А4
Миронцево – поселок для предпринимателей. Отделка Бэйсик. Юнит 2
© Бюро А4
Чтобы соседи могли знакомиться и общаться, все социальные функции и общественные пространства поселка включены в «зеленое кольцо»: круговую территорию с несколькими ответвлениями. Непрерывный пешеходный маршрут начинается от въездной группы и площади, а к воде выходит через зону барбекю и небольшую марину, соединяясь с эко-тропой, идущей вдоль Истры.
Миронцево – поселок для предпринимателей. Общественные зоны. Генплан
© Бюро А4
Миронцево – поселок для предпринимателей. Эко-тропа
© Бюро А4
Миронцево – поселок для предпринимателей. Эко-тропа
© Бюро А4
«Зеленое кольцо» – это место, где формируется комьюнити поселка, территория для общения и взаимодействия жителей и гостей Миронцево. Здесь запроектированы общественные пространства, которые жители поселка смогут менять под свои нужды: ландшафтный уличный амфитеатр, подходящий для собраний, просмотров кино и спектаклей, коворкинг для работы на природе, пруд с мостом для отдыха и рыбалки, детский клуб с открытой площадкой, яблонево-вишневый сад. На ферме жители смогут выращивать в теплицах овощи и корнеплоды – для своего стола или ресторанчика.
Миронцево – поселок для предпринимателей. Эко-ферма
© Бюро А4
Миронцево – поселок для предпринимателей. Эко-ферма
© Бюро А4
Миронцево – поселок для предпринимателей. Амфитеатр
© Бюро А4
Миронцево – поселок для предпринимателей. Ландшафтный уличный амфитеатр
© Бюро А4
Миронцево – поселок для предпринимателей. Зона детской площадки
© Бюро А4
Миронцево – поселок для предпринимателей. Детский клуб с открытой площадкой
© Бюро А4
Миронцево – поселок для предпринимателей. Пруд
© Бюро А4
Миронцево – поселок для предпринимателей. Пруд с мостом для рыбалки и отдыха
© Бюро А4
Миронцево – поселок для предпринимателей. Зона коворкинга
© Бюро А4
Миронцево – поселок для предпринимателей. Коворкинг
© Бюро А4
Миронцево – поселок для предпринимателей. Въездная группа
© Бюро А4
Миронцево – поселок для предпринимателей. Въездная группа
© Бюро А4

Сергей Марков, партнер Бюро А4
Работать над принципиально новым для загородной недвижимости продуктом было увлекательным вызовом. Этот рынок сегодня представляется консервативным и отчасти архаичным. Нам было важно предложить людям не только квадратные метры, но и продвинуть новый формат жизни, создать комьюнити и донести наши ценности: баланс между работой и отдыхом, семья, благополучие, уважение друг к другу, активный образ жизни на природе. Мы не строим высокие глухие ограждения, мы создаем проницаемую среду.
Миронцево – поселок для предпринимателей. Велодорожка рядом с коворкингом
© Бюро А4