Размещено на портале Архи.ру (www.archi.ru)

16.08.2022

Торжество балконов

Нина Фролова
Объект:
Жилой комплекс на улице Три-Посталь
Адрес:
Франция, None, Париж.
Мастерская:
CoBe Architecture et Paysage

Жилой комплекс из обычных и социальных квартир по проекту CoBe Architecture et Paysage появился на месте центра сортировки почты в Бордо.

Комплекс возведен на улице Три-Посталь, название которой как раз и означает «сортировка почты». Это территория бывшей промзоны у вокзала Сен-Жан, которая теперь превращается в район смешанной застройки.
 

Жилой комплекс на улице Три-Посталь
Жилой комплекс на улице Три-Посталь
Фото © Luc Boegly

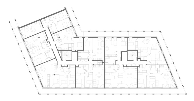
Два жилых корпуса авторства CoBe Architecture et Paysage вошли в более крупный комплекс с офисным зданием: у них всех общие два нижних этажа (коммерческие площади и гараж) и задуманная бюро ECDM, автором мастерплана и офисной части, схема – широкая нижняя часть с галереями-лоджиями (4 этажа) и выступающие над ней самостоятельные объемы с большими балконами.
 
Жилой комплекс на улице Три-Посталь
Жилой комплекс на улице Три-Посталь
Фото © Luc Boegly

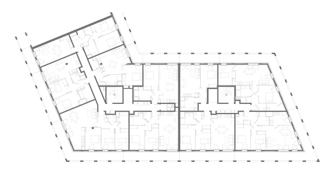
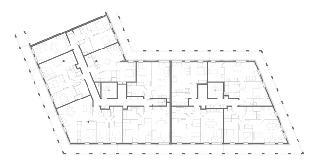
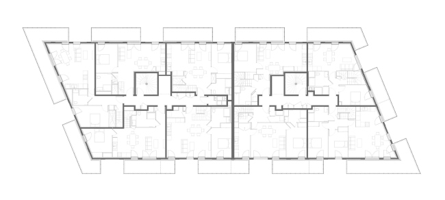
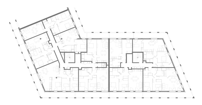
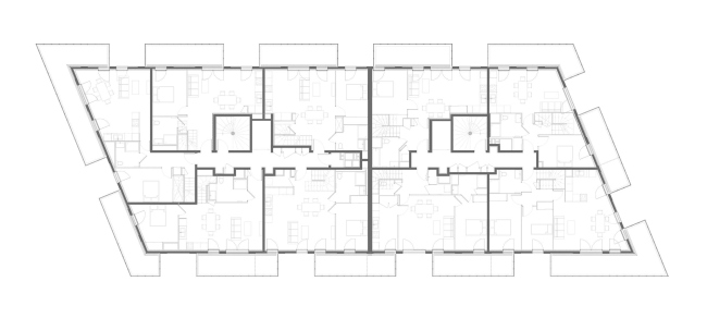
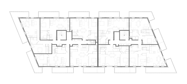
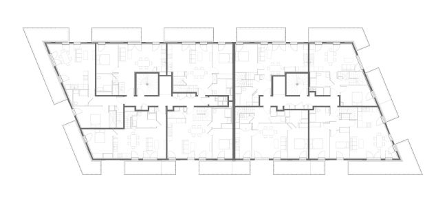
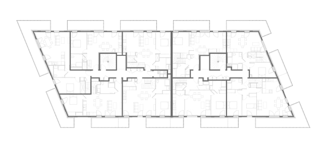
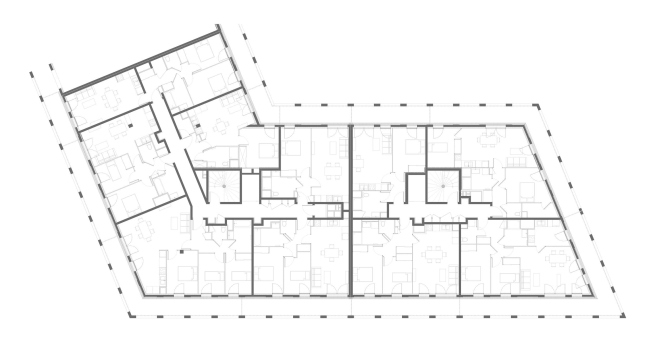
В одном из корпусов CoBe собраны 33 квартиры социального найма (2360 м2), в другом – 44 единицы «рыночного» жилья (3267 м2). У них одинаковая планировка с вестибюлем внизу и квартирами с двухсветной гостиной наверху, а также высота в 10 этажей. Размеры квартир варьируются от одной до пяти спален.
 
Жилой комплекс на улице Три-Посталь
Жилой комплекс на улице Три-Посталь
Фото © Luc Boegly

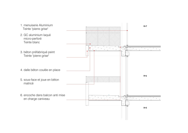
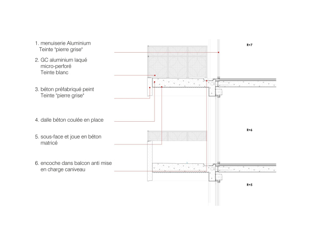
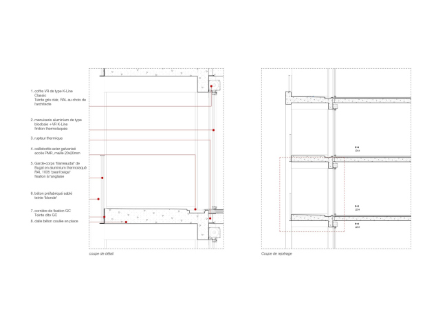
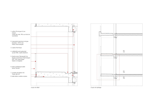
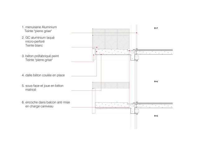
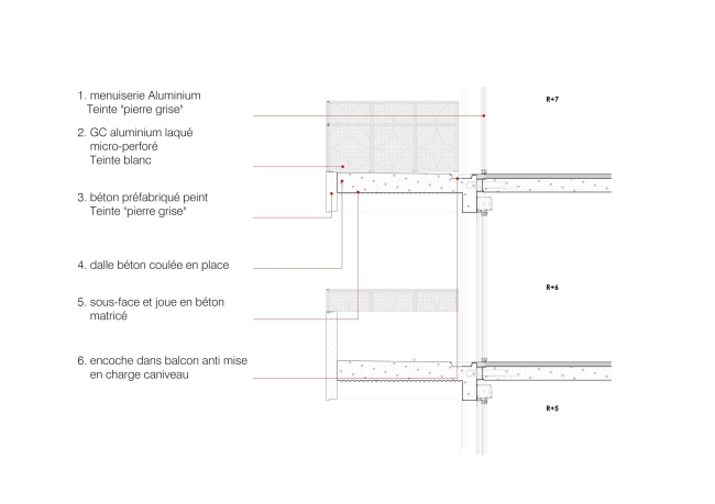
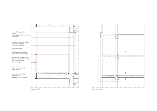
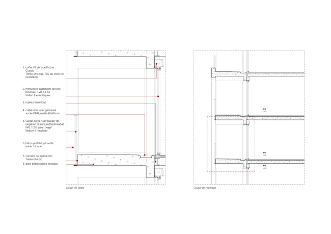
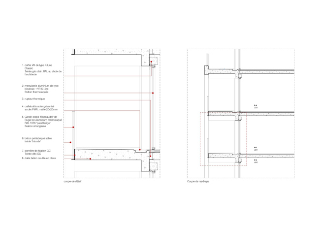
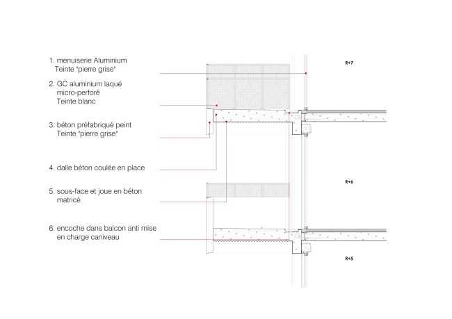
Так как комплекс стоит на краю участка, у него нет своих общественных пространств, что архитекторы компенсировали десятком «открытых» квадратных метров для каждой квартиры: просторными лоджиями и балконами. Ограда балконов несет в преобразованном виде орнамент, типичный для кованых ограждений у балконов Старого Бордо, а их нижняя поверхность («дно») покрыта золотым лаком.
 
Жилой комплекс на улице Три-Посталь
Жилой комплекс на улице Три-Посталь
Фото © Luc Boegly

Для четырех нижних этажей выбрали золотистый бетон, напоминающий о каменных фасадах исторической части города, наверху использован серебристо-серый бетон. Бюджет проекта – 7 млн евро.
Жилой комплекс на улице Три-Посталь
Жилой комплекс на улице Три-Посталь
Фото © Luc Boegly
Жилой комплекс на улице Три-Посталь
Жилой комплекс на улице Три-Посталь
Фото © Luc Boegly
Жилой комплекс на улице Три-Посталь
Жилой комплекс на улице Три-Посталь
Фото © Luc Boegly
Жилой комплекс на улице Три-Посталь
Жилой комплекс на улице Три-Посталь
Фото © Luc Boegly
Жилой комплекс на улице Три-Посталь
Жилой комплекс на улице Три-Посталь
Фото © Luc Boegly
Жилой комплекс на улице Три-Посталь
Жилой комплекс на улице Три-Посталь
Фото © Luc Boegly
Жилой комплекс на улице Три-Посталь
Жилой комплекс на улице Три-Посталь
Фото © Luc Boegly
Жилой комплекс на улице Три-Посталь
Жилой комплекс на улице Три-Посталь
Фото © Luc Boegly
Жилой комплекс на улице Три-Посталь
Жилой комплекс на улице Три-Посталь
Фото © Luc Boegly
Жилой комплекс на улице Три-Посталь
Жилой комплекс на улице Три-Посталь
Фото © Luc Boegly
Жилой комплекс на улице Три-Посталь
Жилой комплекс на улице Три-Посталь
Фото © Luc Boegly
Жилой комплекс на улице Три-Посталь
Жилой комплекс на улице Три-Посталь
Фото © Luc Boegly
Жилой комплекс на улице Три-Посталь
Жилой комплекс на улице Три-Посталь
Фото © Luc Boegly
Жилой комплекс на улице Три-Посталь
Жилой комплекс на улице Три-Посталь
Фото © Luc Boegly
Жилой комплекс на улице Три-Посталь
Жилой комплекс на улице Три-Посталь
Фото © Luc Boegly
Жилой комплекс на улице Три-Посталь
Жилой комплекс на улице Три-Посталь
© CoBe Architecture et Paysage
Жилой комплекс на улице Три-Посталь
Жилой комплекс на улице Три-Посталь
© CoBe Architecture et Paysage
Жилой комплекс на улице Три-Посталь
Жилой комплекс на улице Три-Посталь
© CoBe Architecture et Paysage
Жилой комплекс на улице Три-Посталь
Жилой комплекс на улице Три-Посталь
© CoBe Architecture et Paysage
Жилой комплекс на улице Три-Посталь
Жилой комплекс на улице Три-Посталь
© CoBe Architecture et Paysage
Жилой комплекс на улице Три-Посталь
Жилой комплекс на улице Три-Посталь
© CoBe Architecture et Paysage
Жилой комплекс на улице Три-Посталь
Жилой комплекс на улице Три-Посталь
© CoBe Architecture et Paysage