Размещено на портале Архи.ру (www.archi.ru)

12.08.2022

Квартиры вместо контор

Нина Фролова
Объект:
Дом «Радость»
Адрес:
Чехия, None, Прага.
Мастерская:
Qarta Architektura

Бюро Qarta Architektura разработало проект превращения памятника чешского функционализма – бывшего здания Пенсионного управления в Праге – в жилой комплекс.

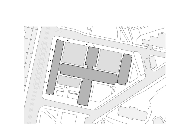
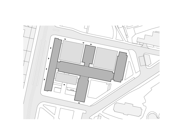
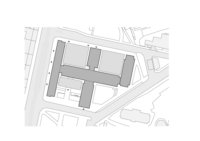
Здание Всеобщего пенсионного управления было построено в 1932–1934 архитекторами Карелом Гонзиком и Йозефом Гавличеком как первый «небоскреб» Праги – высотой 52 метра. Но это была не башня, а крестообразное в плане сооружение с ленточными окнами и облицовкой из керамических панелей, рядом с Главным вокзалом. Как образец авангарда с 1964 здание имеет статус памятника и сохранило значительную часть интерьеров в неприкосновенности, но в XXI веке пришло в некоторый упадок: профсоюзы, которые управляли пенсионным фондом с послевоенных лет и так и остались обитать там, занимали лишь малую часть площадей, остальное было отдано в аренду.
 

Дом «Радость». Проект Qarta Architektura
Дом «Радость». Проект Qarta Architektura
© Monolot
Дом «Радость». Проект Qarta Architektura
Дом «Радость». Проект Qarta Architektura
© Monolot

В 2018 здание приобрели девелоперы и переименовали его в дом «Радость», по названию близлежащего сквера. Так как Прага в наши дни страдает от дефицита жилья, и квартиры средней и долгосрочной аренды пользуются особенным спросом, они заказали Qarta Architektura проект превращения постройки в жилой комплекс именно такого типа – с обязательным включением его в жизнь города.
 
Дом «Радость». Проект Qarta Architektura
Дом «Радость». Проект Qarta Architektura
© Monolot
Дом «Радость». Проект Qarta Architektura
Дом «Радость». Проект Qarta Architektura
© Monolot

Главной мерой поэтому станет трансформация первого этажа в общественный, а закрытых прежде дворов – в такие же общественные пространства, которых не пока хватает Праге.
 
Дом «Радость». Проект Qarta Architektura © Monolot
Дом «Радость». Проект Qarta Architektura
© Monolot
Дом «Радость». Проект Qarta Architektura © Monolot
Дом «Радость». Проект Qarta Architektura
© Monolot
Дом «Радость»
Дом «Радость»
© QARTA architektura

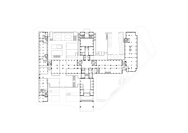
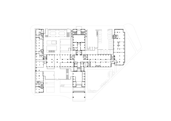
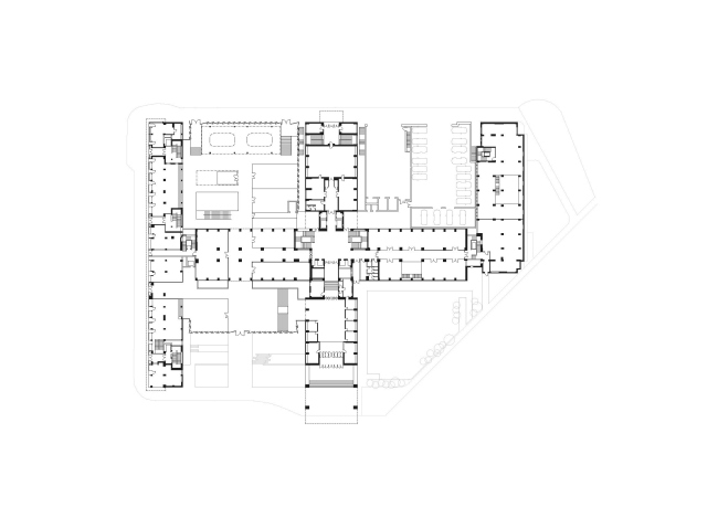
Для основной программы образцом стал коливинг, поэтому в комплексе будут общие кухни, столовые, пространства совместного пользования, игровая комната, постирочные, коворкинги. Из 658 «единиц» 589 будут квартирами, а 69 – мастерскими, офисами, бюро. Все это будут модульные помещения, которые можно будет соединять и «настраивать» в зависимости от нужд конкретных жильцов.
 
Дом «Радость»
Дом «Радость»
© QARTA architektura
Дом «Радость»
Дом «Радость»
© QARTA architektura

Первый этаж, забранный стеклом с рельефной органической поверхностью (отсылка к богатым традициям богемского стекла) вместит открытые жильцам и всем горожанам привычные магазины и небольшие лавочки, кафе, рестораны, приемные врачей, кинотеатр, многофункциональный театральный зал, фитнес- и спа-центр. Предусмотрен автоматический паркинг на 208 машиномест.
Дом «Радость»
Дом «Радость»
© QARTA architektura
Дом «Радость»
Дом «Радость»
© QARTA architektura
Дом «Радость» Фото © BoysPlayNice
Дом «Радость»
Фото © BoysPlayNice
Дом «Радость» Фото © BoysPlayNice
Дом «Радость»
Фото © BoysPlayNice
Дом «Радость» Фото © BoysPlayNice
Дом «Радость»
Фото © BoysPlayNice
Дом «Радость» Фото © BoysPlayNice
Дом «Радость»
Фото © BoysPlayNice
Дом «Радость» Фото © BoysPlayNice
Дом «Радость»
Фото © BoysPlayNice
Дом «Радость» Фото © BoysPlayNice
Дом «Радость»
Фото © BoysPlayNice
Дом «Радость» Фото © BoysPlayNice
Дом «Радость»
Фото © BoysPlayNice
Дом «Радость». Историческое фото
Дом «Радость». Историческое фото
Предоставлено QARTA architektura
Дом «Радость». Историческое фото
Дом «Радость». Историческое фото
Предоставлено QARTA architektura