Размещено на портале Архи.ру (www.archi.ru)

04.08.2022

Ультра-эстетика

Нина Фролова
Объект:
Центр продаж POLY·Hankou Mark
Адрес:
Китай, None, Ухань.
Мастерская:
M-design

Центр продаж POLY·Hankou Mark в Ухани по проекту M-Design.

Центр продаж предназначен для высотного многофункционального комплекса на территории бывшего города Ханькоу, теперь включенного в состав Ухани.
 

Центр продаж POLY·Hankou Mark
Центр продаж POLY·Hankou Mark
Фото © Feng Jian

Ханькоу достиг большого процветания в конце XIX века, когда стал важным торговым портом с иностранными концессиями. Поэтому для дизайнеров было важным включить традиционную роскошь в свой проект – однако без дословного копирования. Вторым источником вдохновения стала современная «ультра-эстетика» глобальных брендов.
 
Центр продаж POLY·Hankou Mark
Центр продаж POLY·Hankou Mark
Фото © Feng Jian

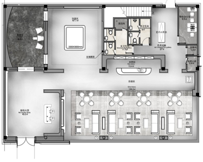
Колорит из «драгоценных» оттенков сочетается с классической палитрой. Большую роль играют темные зеркальные поверхности пола и потолка, а также водоема снаружи. Тема воды и отражений важна для Ханькоу – его богатство было основано на расположении на берегах реки Ханьшуй. Поэтому в интерьере появился арт-объект в виде лодки на фоне городского пейзажа.
 
Центр продаж POLY·Hankou Mark
Центр продаж POLY·Hankou Mark
Фото © Feng Jian

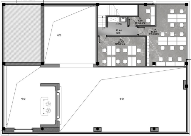
После окончания строительства МФК центр продаж станет художественной галереей.
Центр продаж POLY·Hankou Mark
Центр продаж POLY·Hankou Mark
Фото © Feng Jian
Центр продаж POLY·Hankou Mark
Центр продаж POLY·Hankou Mark
Фото © Feng Jian
Центр продаж POLY·Hankou Mark
Центр продаж POLY·Hankou Mark
Фото © Feng Jian
Центр продаж POLY·Hankou Mark
Центр продаж POLY·Hankou Mark
Фото © Feng Jian
Центр продаж POLY·Hankou Mark
Центр продаж POLY·Hankou Mark
Фото © Feng Jian
Центр продаж POLY·Hankou Mark
Центр продаж POLY·Hankou Mark
Фото © Feng Jian
Центр продаж POLY·Hankou Mark
Центр продаж POLY·Hankou Mark
Фото © Feng Jian
Центр продаж POLY·Hankou Mark
Центр продаж POLY·Hankou Mark
Фото © Feng Jian
Центр продаж POLY·Hankou Mark
Центр продаж POLY·Hankou Mark
Фото © Feng Jian
Центр продаж POLY·Hankou Mark
Центр продаж POLY·Hankou Mark
Фото © Feng Jian
Центр продаж POLY·Hankou Mark
Центр продаж POLY·Hankou Mark
Фото © Feng Jian
Центр продаж POLY·Hankou Mark
Центр продаж POLY·Hankou Mark
Фото © Feng Jian
Центр продаж POLY·Hankou Mark
Центр продаж POLY·Hankou Mark
Фото © Feng Jian
Центр продаж POLY·Hankou Mark
Центр продаж POLY·Hankou Mark
Фото © Feng Jian
Центр продаж POLY·Hankou Mark
Центр продаж POLY·Hankou Mark
Фото © Feng Jian
Центр продаж POLY·Hankou Mark
Центр продаж POLY·Hankou Mark
© M-Design
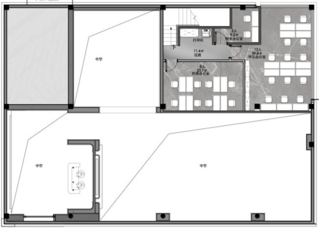
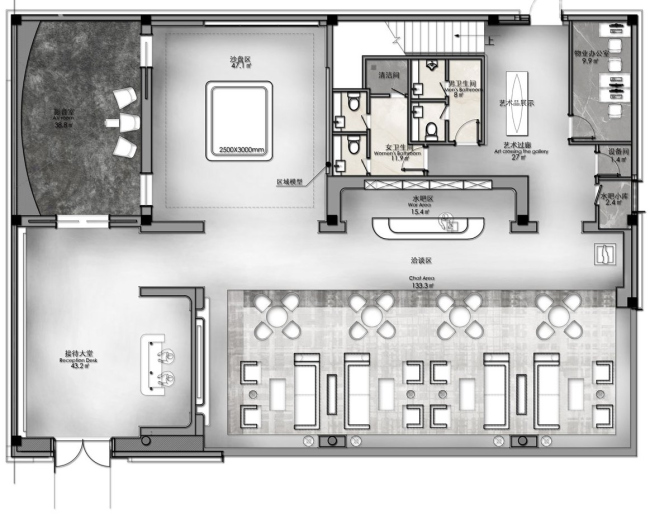
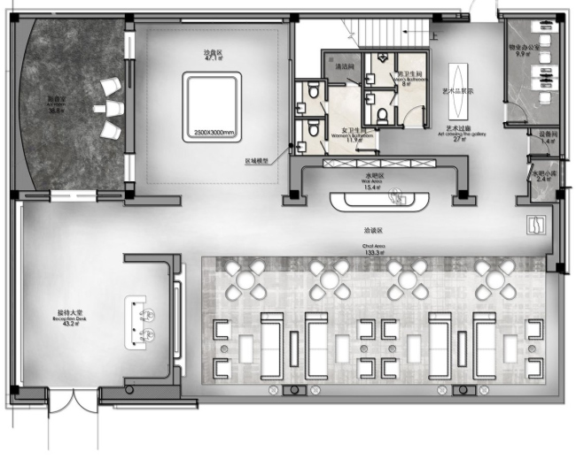
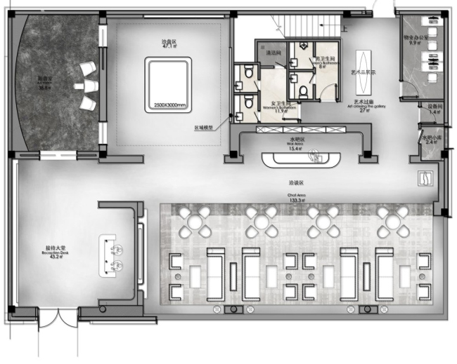
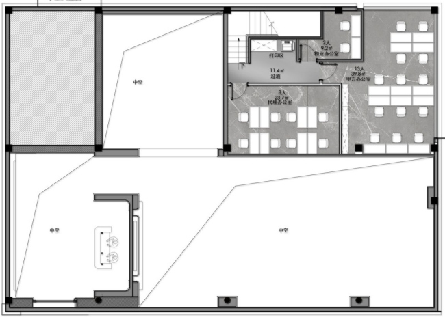
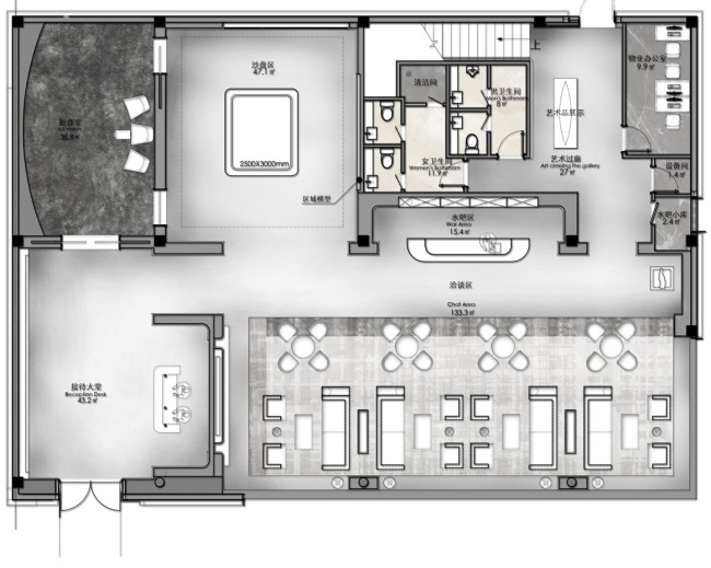
Центр продаж POLY·Hankou Mark
Центр продаж POLY·Hankou Mark
© M-Design