Размещено на портале Архи.ру (www.archi.ru)

21.07.2022

По следам Ле Корбюзье

Нина Фролова
Объект:
Выставочный центр OCT
Адрес:
Китай, None, Нанкин.
Мастерская:
Lacime Architects

Выставочный павильон по проекту Lacime Architects напоминает об одном из истоков современной архитектуры – живописи кубизма.

Павильон расположен в округе Лишуй, входящем в агломерацию Нанкина. Сейчас округ переживает бурную урбанизацию, и заказанное девелопером OCT здание должно задать тон для нового района. Вокруг планируется расположить серию учреждений культуры.
 

Выставочный центр OCT
Выставочный центр OCT
Фото © Liangshan
Выставочный центр OCT
Выставочный центр OCT
Фото © Liangshan
Выставочный центр OCT
Выставочный центр OCT
Фото © Liangshan

Контекстом для проекта выступило привлекательное природное окружение – берег Игань, притока реки Циньхуай. Архитекторы также ориентировались на местные традиции жизни у воды, больших семейных домов с внутренним двором, праздников в храме Юншоу с его характерной пагодой.
 
Выставочный центр OCT
Выставочный центр OCT
Фото © Liangshan
Выставочный центр OCT
Выставочный центр OCT
© Lacime Architects / Zhao Xiaoxue, Wang Qian
Выставочный центр OCT Фото © Liangshan
Выставочный центр OCT
Фото © Liangshan
Выставочный центр OCT Фото © Liangshan
Выставочный центр OCT
Фото © Liangshan
Выставочный центр OCT Фото © Liangshan
Выставочный центр OCT
Фото © Liangshan

Но эти образы не стали напрямую использовать при проектировании. Вместо этого природные и рукотворные формы упростили для простейших геометрических фигур и составили из них кубистический натюрморт. Получившийся рисунок стал основой для архитектурной композиции, напоминающей работы Ле Корбюзье. Так авторы как будто прошли по пути зарождения современной архитектуры, во многом опиравшейся на достижения авангарда начала XX века в живописи и скульптуре.
 
Выставочный центр OCT
Выставочный центр OCT
Фото © Liangshan
Выставочный центр OCT
Выставочный центр OCT
Фото © Liangshan
Выставочный центр OCT Фото © Liangshan
Выставочный центр OCT
Фото © Liangshan
Выставочный центр OCT Фото © Liangshan
Выставочный центр OCT
Фото © Liangshan
Выставочный центр OCT Фото © Liangshan
Выставочный центр OCT
Фото © Liangshan
Выставочный центр OCT Фото © Liangshan
Выставочный центр OCT
Фото © Liangshan
Выставочный центр OCT Фото © Liangshan
Выставочный центр OCT
Фото © Liangshan

Чтобы подчеркнуть формы здания, использован светлый бетон – как монолитный, так в виде цементно-стружечных плит, а для угловых и криволинейных частей применен стеклофибробетон. Фасады дополнительно покрыты бесцветной цементной краской.
Выставочный центр OCT
Выставочный центр OCT
Фото © Liangshan
Выставочный центр OCT
Выставочный центр OCT
Фото © Yiqiandu images
Выставочный центр OCT
Выставочный центр OCT
Фото © Yiqiandu images
Выставочный центр OCT
Выставочный центр OCT
Фото © Yiqiandu images
Выставочный центр OCT
Выставочный центр OCT
Фото © Yiqiandu images
Выставочный центр OCT
Выставочный центр OCT
Фото © Liangshan
Выставочный центр OCT
Выставочный центр OCT
Фото © Liangshan
Выставочный центр OCT
Выставочный центр OCT
Фото © Liangshan
Выставочный центр OCT
Выставочный центр OCT
Фото © Liangshan
Выставочный центр OCT
Выставочный центр OCT
© Lacime Architects / Zhao Xiaoxue, Wang Qian
Выставочный центр OCT
Выставочный центр OCT
© Lacime Architects
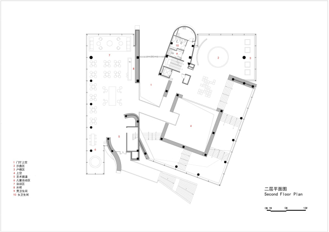
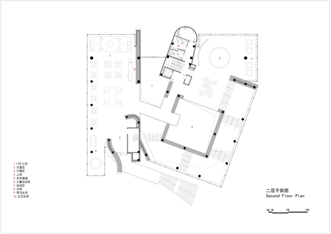
Выставочный центр OCT
Выставочный центр OCT
© Lacime Architects
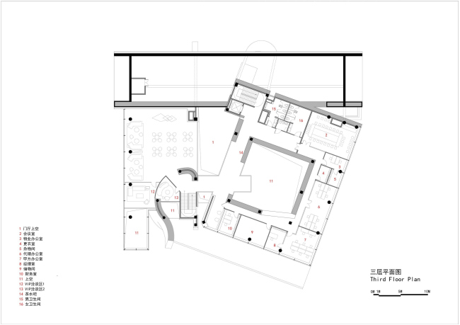
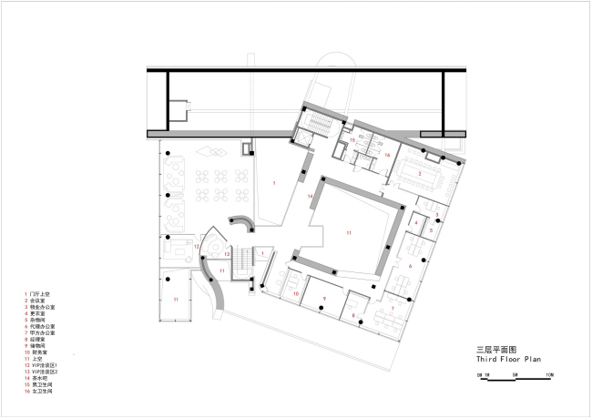
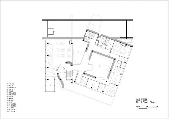
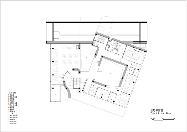
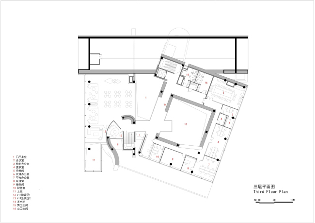
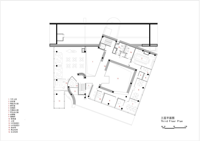
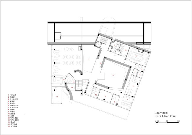
Выставочный центр OCT
Выставочный центр OCT
© Lacime Architects
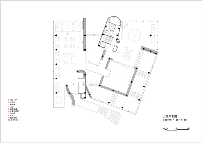
Выставочный центр OCT
Выставочный центр OCT
© Lacime Architects
Выставочный центр OCT
Выставочный центр OCT
© Lacime Architects
Выставочный центр OCT
Выставочный центр OCT
© Lacime Architects
Выставочный центр OCT
Выставочный центр OCT
© Lacime Architects / Zhao Xiaoxue, Wang Qian
Выставочный центр OCT
Выставочный центр OCT
© Lacime Architects / Zhao Xiaoxue, Wang Qian
Выставочный центр OCT
Выставочный центр OCT
© Lacime Architects / Zhao Xiaoxue, Wang Qian