Размещено на портале Архи.ру (www.archi.ru)

13.07.2022

Возвращение в детство

Нина Фролова
Объект:
Вилла Anna Garden
Адрес:
Китай, None, Пекин.
Мастерская:
KiKi ARCHi

Архитекторы KiKi ARCHi превратили дом под Пекином в убежище от суеты в природном окружении.

Округ Чанпин находится в 30 км к северу от ядра китайской столицы, и это совершенно сельская местность, хотя официально он входит в границы Пекина. Архитекторам была поручена перестройка дома «в европейском стиле» с большим двором. Заказчик хотел возродить в реконструированной вилле свои счастливые детские воспоминания о деревенской жизни, и KiKi ARCHi решили сосредоточиться не на конкретных объектах этих воспоминаний, а на их атмосфере.
 

Вилла Anna Garden
Вилла Anna Garden
Фото © PRphoto

Поэтому они постарались создать комфортное убежище от городской суеты на лоне природы, без пафоса и претензий. С этой целью они удалили с фасадов дома всю лепнину и другие декоративные элементы, оставив лишь простой кирпичный объем с двускатной крышей. Его достроили на уровне первого этажа стенами из ажурной и сплошной кладки: за ними скрывается в том числе полуоткрытое помещение спа.
 
Вилла Anna Garden
Вилла Anna Garden
Фото © PRphoto

Интерьер сделан лаконичным, светлым и просторным. Раздвижное остекление позволяет соединять его с садом без всяких ограничений – но даже при закрытых окнах граница с природой получается размытой.
 
Вилла Anna Garden
Вилла Anna Garden
Фото © Eiichi Kano

Главную роль в проекте играет ландшафт: архитекторы обыграли перепад рельефа в 8 м, превратив его в серию террас, напоминающих рисовые поля в миниатюре. Туда же встроены две беседки, одна из которых – бельведер.
 
Вилла Anna Garden
Вилла Anna Garden
Фото © Eiichi Kano

Особое внимание уделили флоре. Пергола с повторяющим силуэт дома треугольным профилем кадрирует старое дерево – хурму. Новыми посадками занималось бюро Wild – Scape, которое хотело создать впечатление цветущего луга. Так, использованы известные красотой злаки – веерник и перистощетинник, а также цветы: хоста, астильба, гаура, гортензия.
Вилла Anna Garden
Вилла Anna Garden
Фото © Eiichi Kano
Вилла Anna Garden Фото © PRphoto
Вилла Anna Garden
Фото © PRphoto
Вилла Anna Garden Фото © PRphoto
Вилла Anna Garden
Фото © PRphoto
Вилла Anna Garden Фото © PRphoto
Вилла Anna Garden
Фото © PRphoto
Вилла Anna Garden Фото © PRphoto
Вилла Anna Garden
Фото © PRphoto
Вилла Anna Garden
Вилла Anna Garden
Фото © Eiichi Kano
Вилла Anna Garden
Вилла Anna Garden
Фото © Eiichi Kano
Вилла Anna Garden
Вилла Anna Garden
Фото © Eiichi Kano
Вилла Anna Garden Фото © Eiichi Kano
Вилла Anna Garden
Фото © Eiichi Kano
Вилла Anna Garden Фото © Eiichi Kano
Вилла Anna Garden
Фото © Eiichi Kano
Вилла Anna Garden Фото © Eiichi Kano
Вилла Anna Garden
Фото © Eiichi Kano
Вилла Anna Garden
Вилла Anna Garden
Фото © PRphoto
Вилла Anna Garden
Вилла Anna Garden
Фото © Eiichi Kano
Вилла Anna Garden
Вилла Anna Garden
Фото © PRphoto
Вилла Anna Garden
Вилла Anna Garden
Фото © Eiichi Kano
Вилла Anna Garden
Вилла Anna Garden
Фото © Eiichi Kano
Вилла Anna Garden
Вилла Anna Garden
Фото © Eiichi Kano
Вилла Anna Garden
Вилла Anna Garden
Фото © Eiichi Kano
Вилла Anna Garden
Вилла Anna Garden
Фото © Eiichi Kano
Вилла Anna Garden
Вилла Anna Garden
Фото © Eiichi Kano
Вилла Anna Garden
Вилла Anna Garden
Фото © Eiichi Kano
Вилла Anna Garden
Вилла Anna Garden
Фото © Eiichi Kano
Вилла Anna Garden
Вилла Anna Garden
Фото © Eiichi Kano
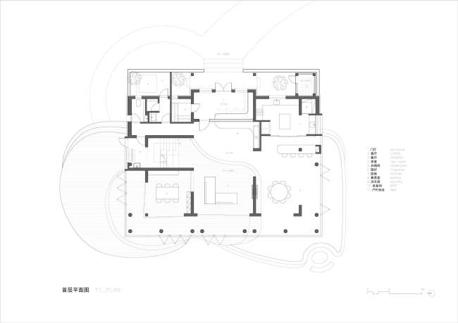
Вилла Anna Garden
Вилла Anna Garden
Фото © PRphoto
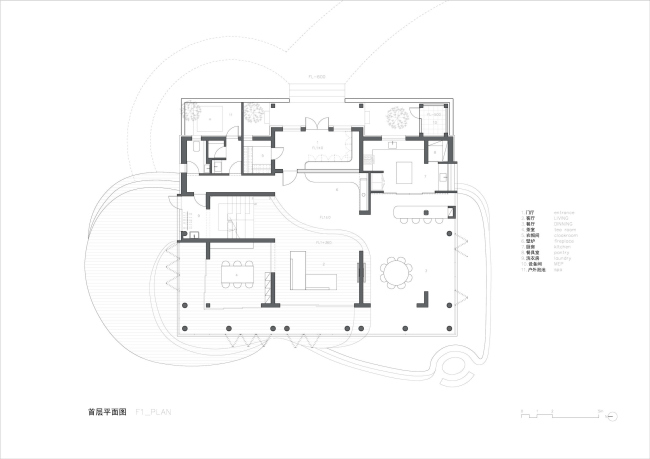
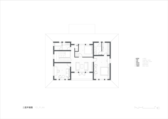
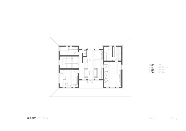
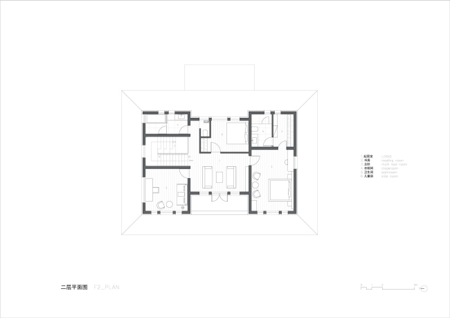
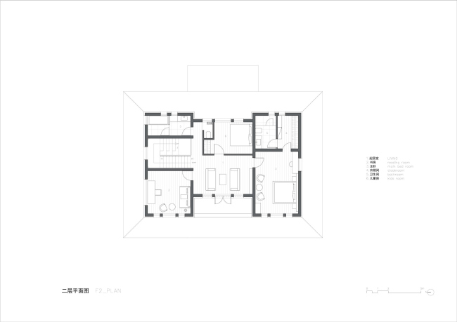
Вилла Anna Garden
Вилла Anna Garden
© KiKi ARCHi
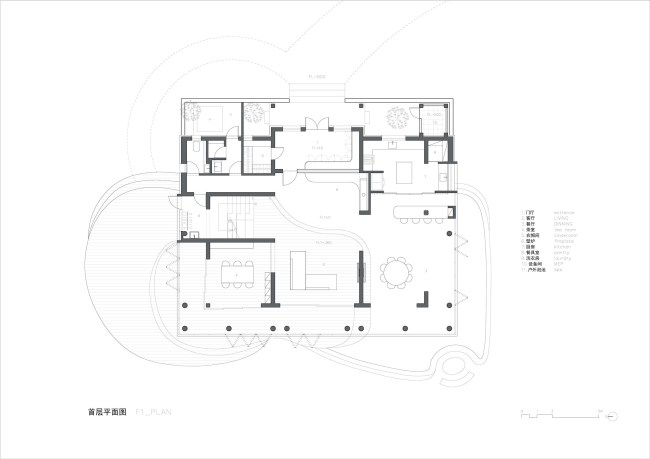
Вилла Anna Garden
Вилла Anna Garden
© KiKi ARCHi
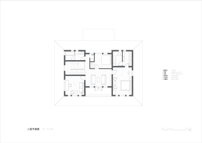
Вилла Anna Garden
Вилла Anna Garden
© KiKi ARCHi
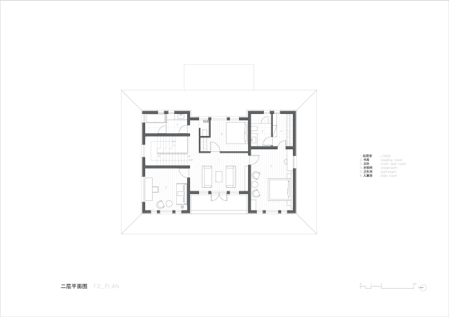
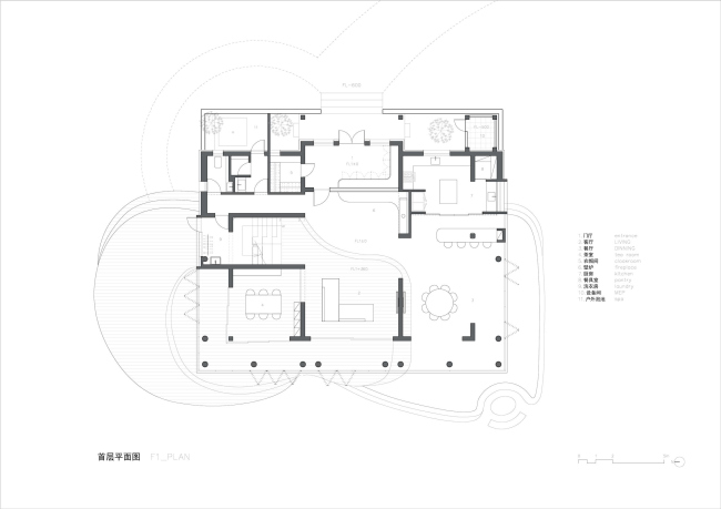
Вилла Anna Garden
Вилла Anna Garden
© KiKi ARCHi
Вилла Anna Garden
Вилла Anna Garden
© KiKi ARCHi
Вилла Anna Garden
Вилла Anna Garden
© KiKi ARCHi
Вилла Anna Garden
Вилла Anna Garden
© KiKi ARCHi