Размещено на портале Архи.ру (www.archi.ru)

08.07.2022

Дом для школы

Анна Старостина
Объект:
Школа «Цветущие склоны»
Адрес:
Франция, None,
Мастерская:
HEMAA
Hesters-Oyon Architectes

При проектировании школы во французской деревушке бюро HEMAA и Hesters-Oyon использовали в качестве прототипа традиционный для Бретани и Нормандии тип длинного сельского дома.

Новая школа расположена в нормандской деревушке Эдбувиль, в холмистой, почти идиллической местности в долине реки Сены, там, где она уже стремится к морю. Отсюда и название – Les Coteaux Fleuris или «Цветущие склоны». Архитекторы парижских бюро HEMAA и Hesters-Oyon, совместно исследующих типологию современных школ, попытались в своем проекте пересоздать типичный для северо-западной Франции тип узкого, вытянутого дома с двускатной кровлей. В таких longère (буквально «длинный дом») обычно жили фермеры и ремесленники, но они могли использоваться и под хозяйственные нужды.

Школа «Цветущие склоны»
Школа «Цветущие склоны»
Фотография © Sergio Grazia /предоставлена FE Consulting
Школа «Цветущие склоны»
Школа «Цветущие склоны»
Фотография © Sergio Grazia /предоставлена FE Consulting
Школа «Цветущие склоны»
Школа «Цветущие склоны»
Фотография © Sergio Grazia /предоставлена FE Consulting

Переосмыслив морфологию исторических построек, архитекторы попробовали создать экономичный и экологичный современный вариант, сохранив при этом конкретные узнаваемые мотивы. Например, фахверковые конструкции угадываются в застекленных деревянных каркасах, а в облицовке фасадов и крыши используется такой же сланец, как на ратуше и колокольне.
Школа «Цветущие склоны»
Школа «Цветущие склоны»
Фотография © Sergio Grazia /предоставлена FE Consulting
Школа «Цветущие склоны» Фотография © Sergio Grazia /предоставлена FE Consulting
Школа «Цветущие склоны»
Фотография © Sergio Grazia /предоставлена FE Consulting
Школа «Цветущие склоны» Фотография © Sergio Grazia /предоставлена FE Consulting
Школа «Цветущие склоны»
Фотография © Sergio Grazia /предоставлена FE Consulting
Школа «Цветущие склоны» Фотография © Sergio Grazia /предоставлена FE Consulting
Школа «Цветущие склоны»
Фотография © Sergio Grazia /предоставлена FE Consulting

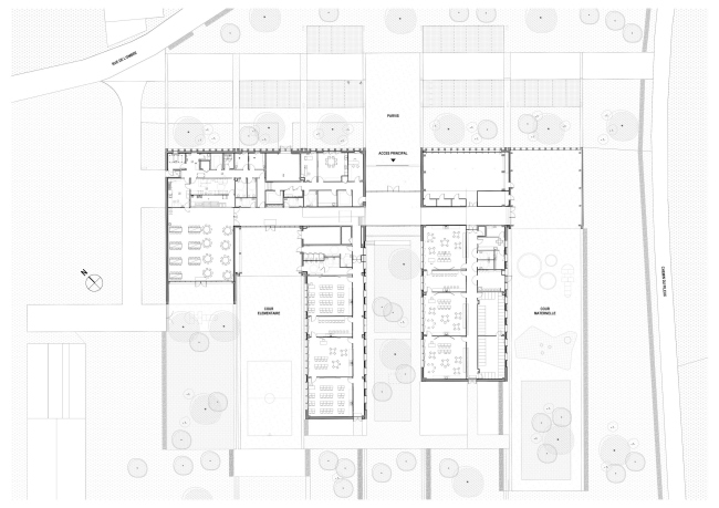
Сами пять одноэтажных вытянутых объемов разной длины расположены вдоль склона, подчиняясь естественному движению. Ему следует и дождевая вода, текущая в специальный водоем в нижней части участка. Вся эта общая ленточная планировка восходит к так называемому земледелию открытых полей, распространенному в средневековой Европе (отдаленный аналог российской чересполосицы).
Школа «Цветущие склоны»
Школа «Цветущие склоны»
Фотография © Sergio Grazia /предоставлена FE Consulting
Школа «Цветущие склоны»
Школа «Цветущие склоны»
Фотография © Sergio Grazia /предоставлена FE Consulting

Фасады и кровли корпусов выполнены из изготовленных и собранных индустриальным методом деревянных модулей размером 5х2 м, которые были разработаны специалистами при помощи программ 3D-моделирования. Они уже содержат в себе теплоизоляцию, уплотнитель и необходимые конструктивные элементы. Такая технология позволила существенно ускорить реализацию объекта и сократить затраты на строительство (общий бюджет составил всего около $4,5 млн).
Школа «Цветущие склоны»
Школа «Цветущие склоны»
Фотография © Sergio Grazia /предоставлена FE Consulting
Школа «Цветущие склоны»
Школа «Цветущие склоны»
Фотография © Sergio Grazia /предоставлена FE Consulting
Школа «Цветущие склоны»
Школа «Цветущие склоны»
Фотография © Sergio Grazia /предоставлена FE Consulting

Внутри благодаря этим модулям возникли свободные, лишенные опор пространства, которые могут использоваться очень гибко. Среди достоинств проекта также необходимо назвать нацеленность на дальнейшее перспективное развитие: школа может расти вместе с деревней, что заложено не только в самой планировке, но и в устройстве инженерных сетей. Не разрушая уже работающую инфраструктуру и сохранив общий контекстуальный подход, можно легко добавить классы, расширить столовую, организовать дополнительные дворы и игровые площадки.
Школа «Цветущие склоны»
Школа «Цветущие склоны»
Фотография © Sergio Grazia /предоставлена FE Consulting
Школа «Цветущие склоны»
Школа «Цветущие склоны»
Фотография © Sergio Grazia /предоставлена FE Consulting
Школа «Цветущие склоны» Фотография © Sergio Grazia /предоставлена FE Consulting
Школа «Цветущие склоны»
Фотография © Sergio Grazia /предоставлена FE Consulting
Школа «Цветущие склоны» Фотография © Sergio Grazia /предоставлена FE Consulting
Школа «Цветущие склоны»
Фотография © Sergio Grazia /предоставлена FE Consulting
Школа «Цветущие склоны» Фотография © Sergio Grazia /предоставлена FE Consulting
Школа «Цветущие склоны»
Фотография © Sergio Grazia /предоставлена FE Consulting
Школа «Цветущие склоны» Фотография © Sergio Grazia /предоставлена FE Consulting
Школа «Цветущие склоны»
Фотография © Sergio Grazia /предоставлена FE Consulting

Школа строилась исключительно из местных безопасных материалов и силами только местных компаний, что сократило выброс CO2: в том числе за счет сокращения транспортных расходов. Кроме того, на кровле в некоторых местах установлены солнечные панели, а для обогрева не используются никакие виды ископаемого топлива. Все это позволило проекту получить высокий, почти максимальный рейтинг по программе экологической сертификации BEPOS.
Школа «Цветущие склоны»
Школа «Цветущие склоны»
© HEMAA
Школа «Цветущие склоны»
Школа «Цветущие склоны»
© HEMAA
Школа «Цветущие склоны»
Школа «Цветущие склоны»
© HEMAA
Школа «Цветущие склоны» © HEMAA
Школа «Цветущие склоны»
© HEMAA
Школа «Цветущие склоны» © HEMAA
Школа «Цветущие склоны»
© HEMAA
Школа «Цветущие склоны» © HEMAA
Школа «Цветущие склоны»
© HEMAA
Школа «Цветущие склоны» © HEMAA
Школа «Цветущие склоны»
© HEMAA
Школа «Цветущие склоны»
Школа «Цветущие склоны»
© HEMAA
Школа «Цветущие склоны» © HEMAA
Школа «Цветущие склоны»
© HEMAA
Школа «Цветущие склоны» © HEMAA
Школа «Цветущие склоны»
© HEMAA
Школа «Цветущие склоны» © HEMAA
Школа «Цветущие склоны»
© HEMAA