Размещено на портале Архи.ру (www.archi.ru)

07.07.2022

Коллективное жилье среди стрит-арта

Нина Фролова
Объект:
Комплекс коллективного жилья Bijgaardehof
Адрес:
Бельгия, None, Гент.
Мастерская:
Bogdan & Van Broeck

Бюро Bogdan & Van Broeck реконструировало промзону в Генте, создав там три ресурсоэффективных и социально устойчивых кохаузинга.

Промзона Бейгардехоф напоминает своим названием о пасеке, существовавшей в Средние века в границах городских стен. Но в XX веке это уже был треугольный участок промзоны рядом с железнодорожными путями, сначала занятый текстильными фабриками, а с 1960-х – металлообрабатывающим предприятием. Оно закрылось в 1997, в 2009 был проведен конкурс на реконструкцию этой территории, в котором победили Bogdan & Van Broeck, но строительство начали лишь в 2019, поэтому пустовавший 22 года Бейгардехоф успел послужить сквотом и «холстом» для уличных художников.
 

Комплекс коллективного жилья Bijgaardehof
Комплекс коллективного жилья Bijgaardehof
Фото © Laurian Ghinitoiu

Однако архитекторы стремились не только создать на его месте «устойчивую» со всех точек зрения среду и сообщество, но также сохранить его культурное значение. Среди граффитистов, как позже выяснилось, здесь работал ставший с тех пор знаменитым Roa, и часть его работ удалось сохранить (часть – так как годы запустения не пощадили и их). По этой причине Bogdan & Van Broeck стремились сохранить хотя бы отчасти цеха и кирпичные ограждающие стены фабрики – из-за нанесенных на них росписей или как составляющую духа места.
 
Комплекс коллективного жилья Bijgaardehof
Комплекс коллективного жилья Bijgaardehof
Фото © Laurian Ghinitoiu

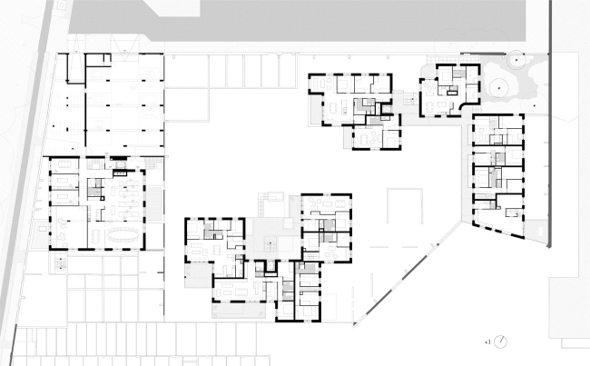
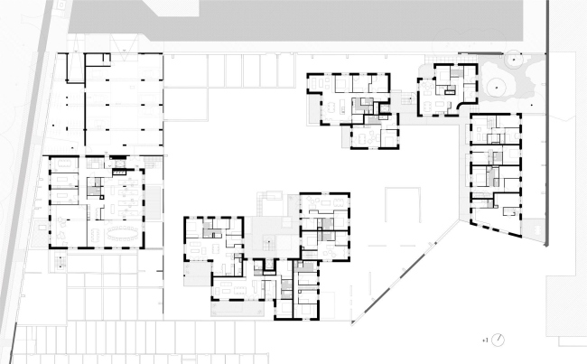
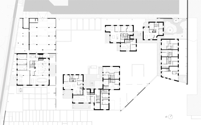
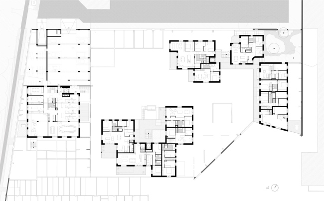
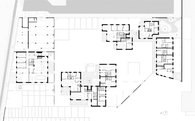
С юга участок граничит с парком, с запада – с озелененной в рамках проекта «обочиной» железнодорожных путей, с севера – с торговым центром, откуда неравнодушные городские власти обеспечили жителям свободный проход в Бейгардехоф. С севера уже на территории «треугольника» находится новый центр здоровья.
 
Комплекс коллективного жилья Bijgaardehof
Комплекс коллективного жилья Bijgaardehof
Фото © Laurian Ghinitoiu

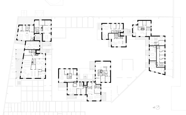
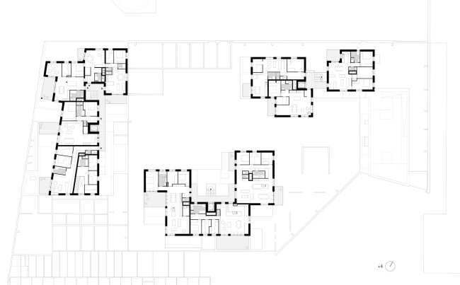
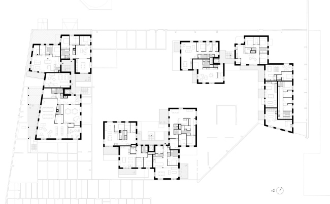
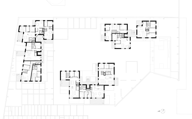
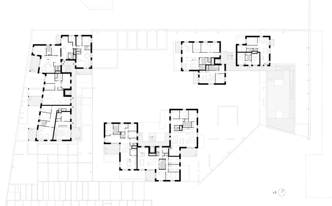
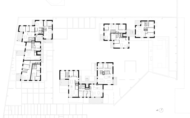
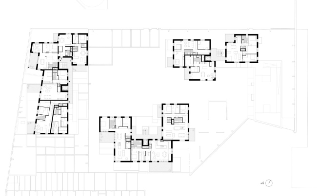
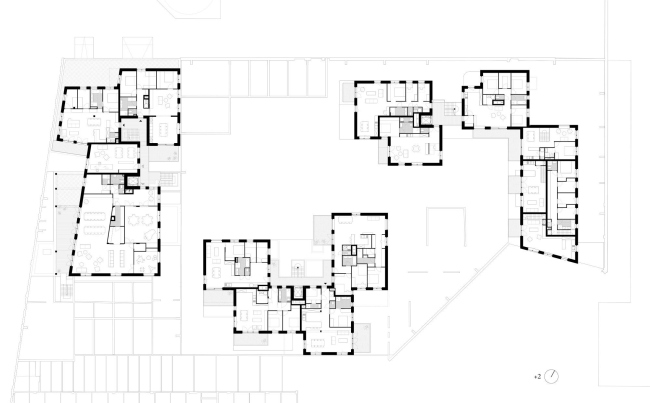
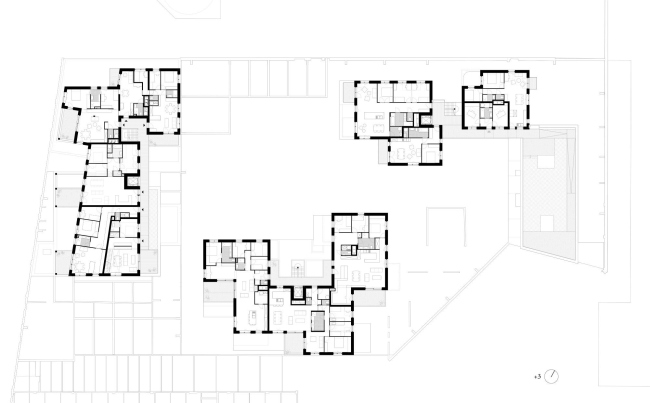
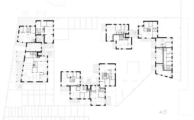
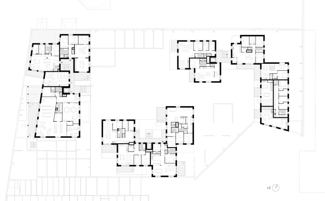
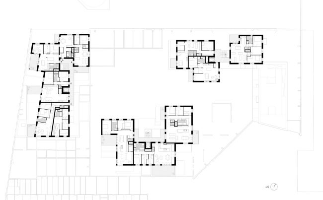
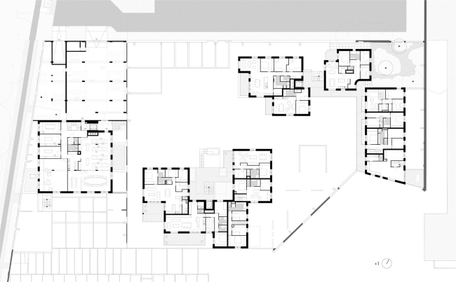
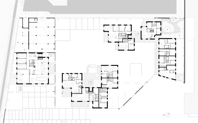
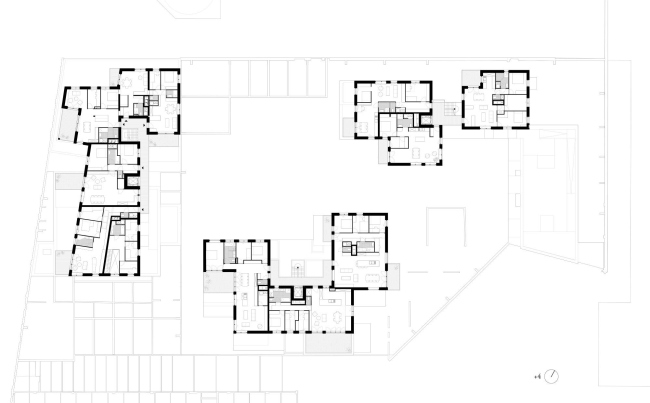
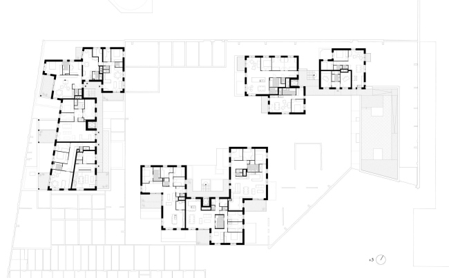
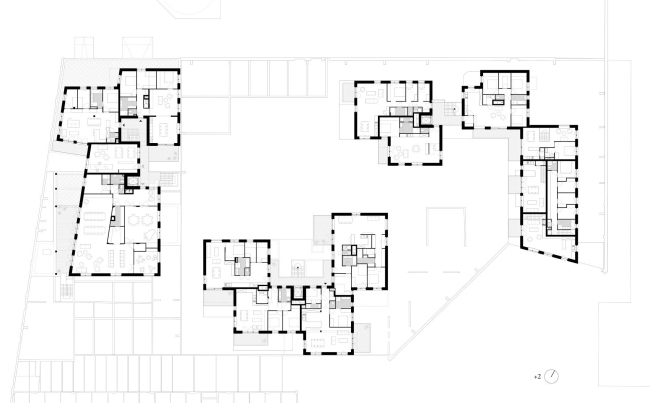
Идея проекта заключается в том, что совместное владение пространствам и объектами инфраструктуры повышает качество жизни каждого жителя. В проект входят три кохаузинга в общей сложности на 59 квартир: такое решение показалось более эффективным, в том числе по соотношению зеленых и застроенных площадей, чем один большой дом. Всех, кто планировал там поселиться, архитекторы заранее расспросили о их нуждах и желаниях, все ключевые темы подробно обсуждались с представителями будущих жильцов.
 
Комплекс коллективного жилья Bijgaardehof
Комплекс коллективного жилья Bijgaardehof
Фото © Laurian Ghinitoiu

Упор сделан на общение и сосуществование. Кирпичные корпуса кохаузингов Wijgaard, De Spore и Biotope окружены внешними галереями, где соседи встречаются и болтают, там можно развести цветы или отпустить поиграть ребенка. Ведущие от улицы к входу в здание дорожки спроектированы как игровые зоны для детей. Кроме того, имеется общий центральный двор площадью около 900 м2, приподнятый над землей сад в Biotope, «сад руин» в De Spore и даже «тайный сад». Большинство пространств доступны всем жителям и оформлены единообразно.
 
Комплекс коллективного жилья Bijgaardehof
Комплекс коллективного жилья Bijgaardehof
Фото © Laurian Ghinitoiu

В каждом кохаузинге есть общественная часть с кухней, столовой, гостиной, детской игровой зоной и постирочной. Там также устроены зимний сад, коммунальная мастерская и огород на крыше.
 
Комплекс коллективного жилья Bijgaardehof
Комплекс коллективного жилья Bijgaardehof
Фото © Laurian Ghinitoiu

При реконструкции загрязненный грунт был очищен и дополнен плодородным – для садов и огородов. Для отопления здесь не используется газ: его заменила геотермальная система, которая нагревает теплые полы в квартирах. На крышах установлены солнечные батареи, дождевая вода идет на полив зеленых насаждений. Даже кирпичи из сносимых частей фабрики жители очищали и использовали повторно, как и плитку: ей покрыты полы в одной из общественных кухонь и в детской игровой зоне.
 
Комплекс коллективного жилья Bijgaardehof
Комплекс коллективного жилья Bijgaardehof
Фото © Laurian Ghinitoiu

Из-за удобного расположения – рядом развитая транспортная инфраструктура и центр города – жители решили, что им достаточно 25 машиномест, что меньше, чем положено по гентским СНиПам. Зато особенное внимание уделено хранению велосипедов: у каждого из домов есть для этой цели закрытый павильон.
Работа Roa в Bijgaardehof
Работа Roa в Bijgaardehof
Фото © Laurian Ghinitoiu
Комплекс коллективного жилья Bijgaardehof
Комплекс коллективного жилья Bijgaardehof
© Bogdan & Van Broeck
Комплекс коллективного жилья Bijgaardehof
Комплекс коллективного жилья Bijgaardehof
© Bogdan & Van Broeck
Комплекс коллективного жилья Bijgaardehof
Комплекс коллективного жилья Bijgaardehof
© Bogdan & Van Broeck
Будущие жильцы Bijgaardehof во время встречи с архитекторами
Будущие жильцы Bijgaardehof во время встречи с архитекторами
© Bogdan & Van Broeck
Комплекс коллективного жилья Bijgaardehof
Комплекс коллективного жилья Bijgaardehof
© Bogdan & Van Broeck
Комплекс коллективного жилья Bijgaardehof
Комплекс коллективного жилья Bijgaardehof
© Bogdan & Van Broeck
Комплекс коллективного жилья Bijgaardehof
Комплекс коллективного жилья Bijgaardehof
© Bogdan & Van Broeck
Комплекс коллективного жилья Bijgaardehof
Комплекс коллективного жилья Bijgaardehof
© Bogdan & Van Broeck
Комплекс коллективного жилья Bijgaardehof
Комплекс коллективного жилья Bijgaardehof
© Bogdan & Van Broeck
Комплекс коллективного жилья Bijgaardehof
Комплекс коллективного жилья Bijgaardehof
© Bogdan & Van Broeck
Комплекс коллективного жилья Bijgaardehof
Комплекс коллективного жилья Bijgaardehof
© Bogdan & Van Broeck
Комплекс коллективного жилья Bijgaardehof
Комплекс коллективного жилья Bijgaardehof
© Bogdan & Van Broeck