Размещено на портале Архи.ру (www.archi.ru)

06.07.2022

Чувство ритма

Нина Фролова
Объект:
Институт Леонардо да Винчи
Адрес:
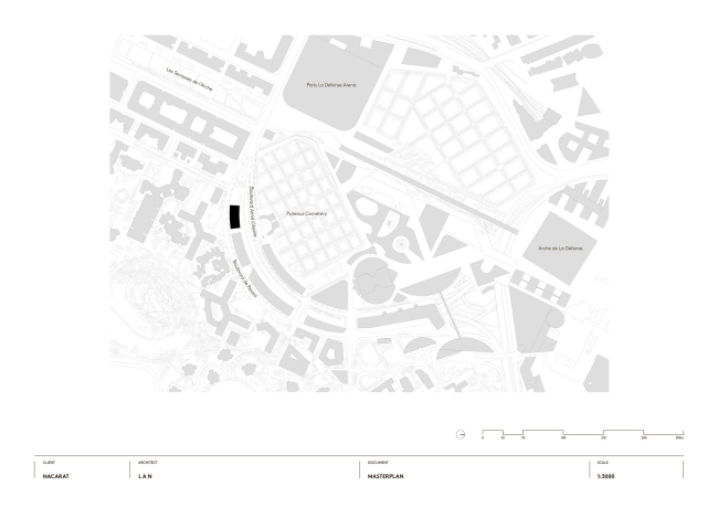
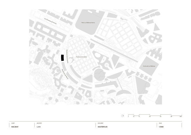
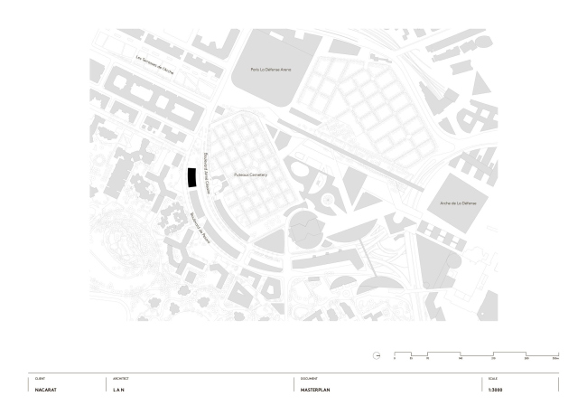
Франция, None, Нантер.
Мастерская:
LAN

Новое здание Института Леонардо да Винчи в парижском деловом квартале Дефанс по проекту бюро LAN.

Институт Леонардо да Винчи предлагает программы MBA для предпринимателей, медиков и IT-специалистов, а также курсы непрерывного образования – для медиков и выборных сотрудников в органах местного самоуправления. Он входит в более крупную образовательную ассоциацию, тоже названную в честь Леонардо: она исторически располагается в Дефансе, поэтому и институт базируется именно здесь.
 

Институт Леонардо да Винчи
Институт Леонардо да Винчи
Фото © Charly Broyez

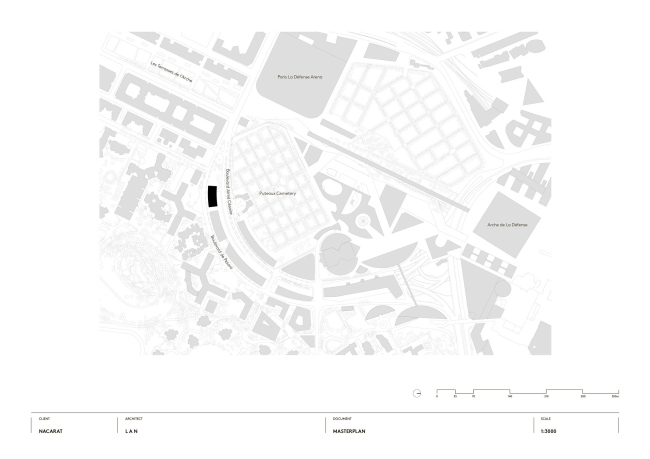
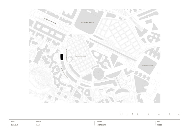
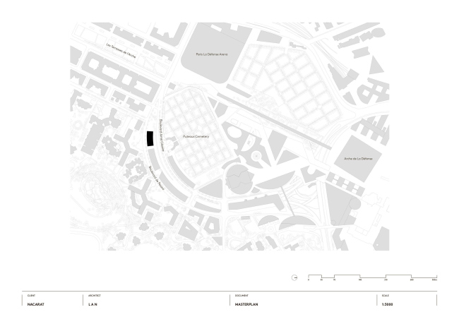
Новое здание института стало частью плана реконструкции одного из краев делового района, что поместило его в сложный контекст: рядом знаковое общежитие для студентов-музыкантов конца 1970-х годов и разноцветные башни Эмиля Айо, чуть дальше – небоскребы и Большая арка, а также стадион Кристиана де Портзампарка. Мимо проходит оживленная магистраль, но пешеходов тоже немало.
 
Институт Леонардо да Винчи
Институт Леонардо да Винчи
Фото © Charly Broyez

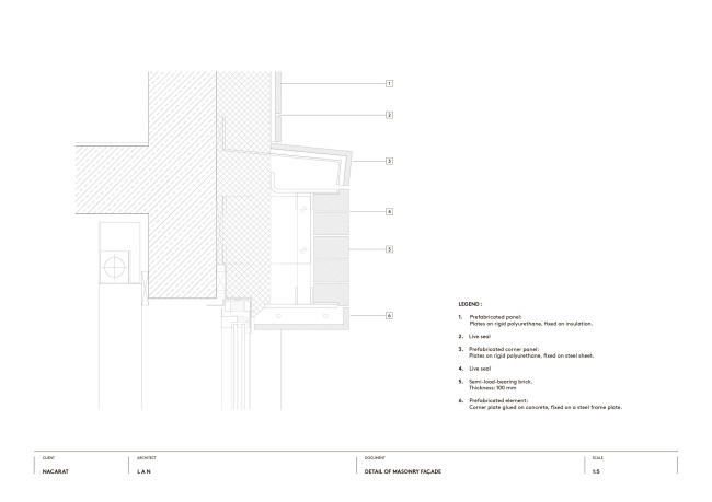
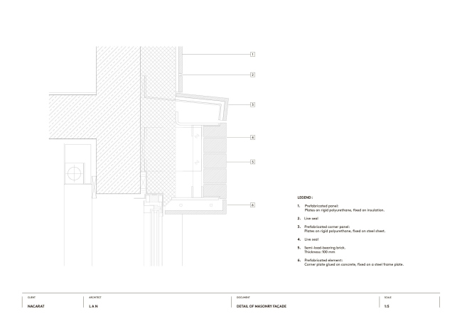
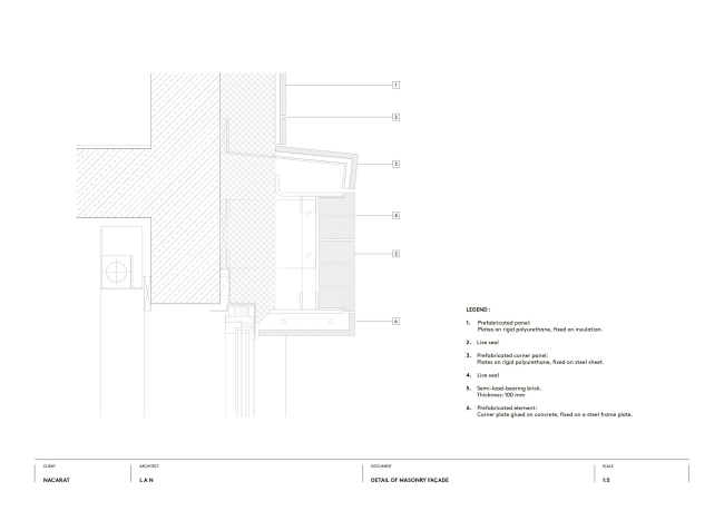
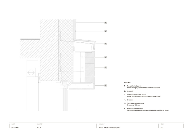
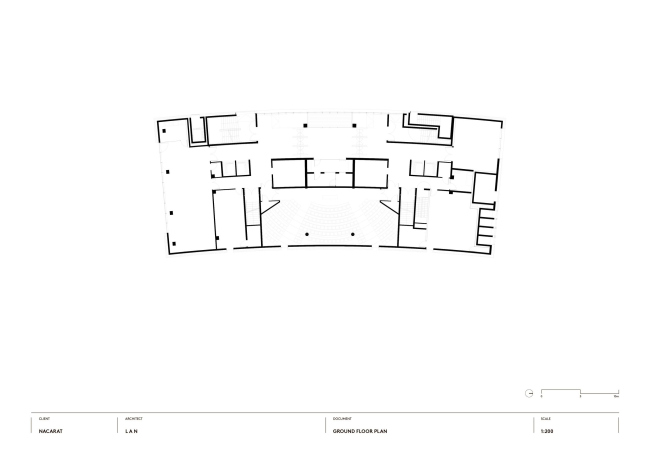
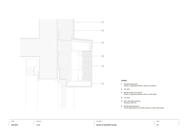
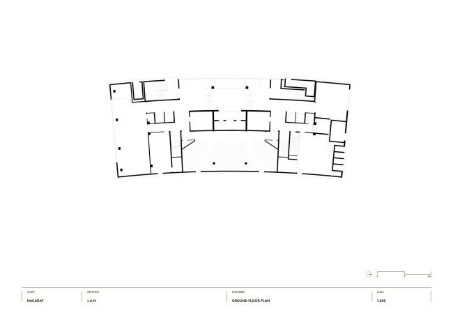
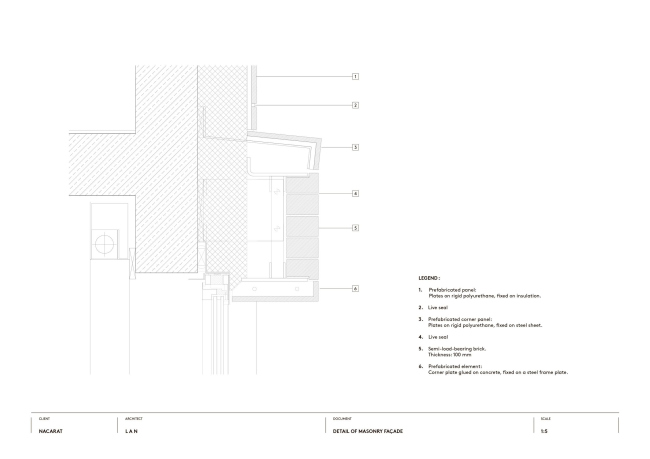
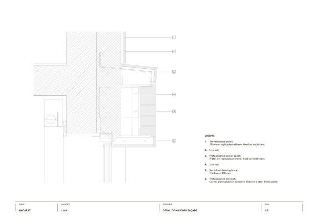
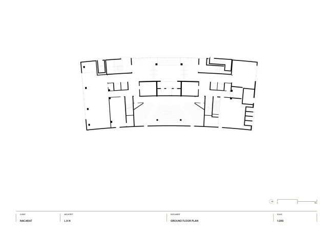
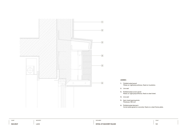
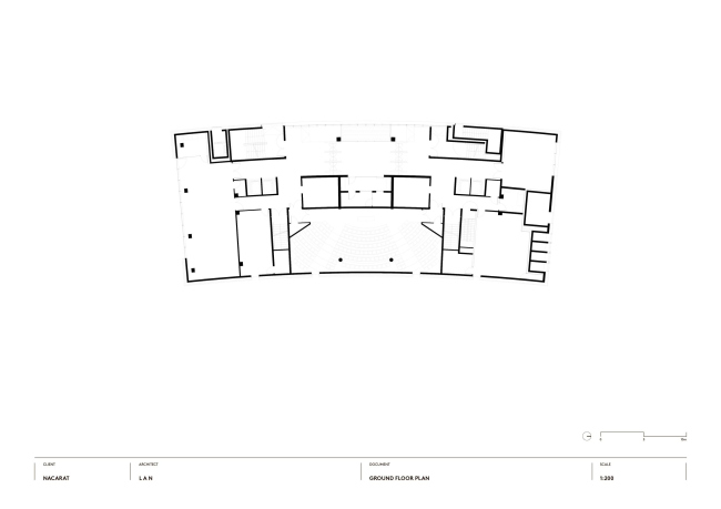
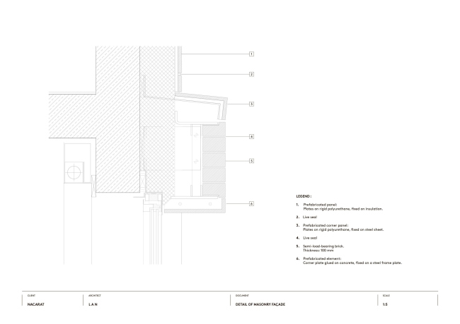
Ответом архитекторов стал сдержанный, хорошо «артикулированный» проект, с чувством ритма и масштаба. Объем постройки слегка искривлен, повторяя траекторию двух параллельных улиц, между которыми он «зажат». На фасадах равномерно сменяют друг друга кирпичные и стеклянные полосы, причем в зависимости от угла зрения здание кажется «каменным» или прозрачным. При движении в автомобиле кирпич выступает на первый план, для пешеходов заметнее стекло – его обширные поверхности позволяют заглянуть внутрь и раскрывают жизнь вуза городу.
 
Институт Леонардо да Винчи
Институт Леонардо да Винчи
Фото © Charly Broyez

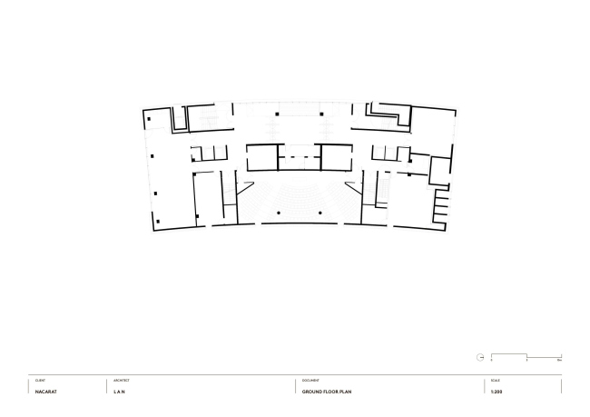
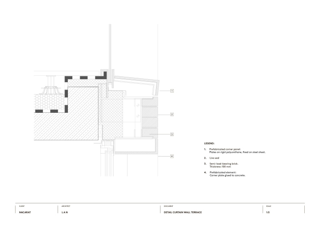
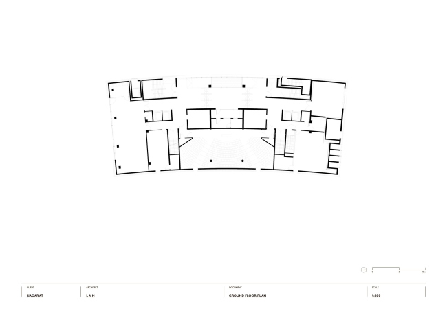
В интерьерах создан максимум возможностей для случайных встреч и неформального общения – наиболее продуктивной среды для эффективной учебы и появления новых идей. Этому служат двухсветные «агоры», отмеченные на фасадах остекленными нишами с открытыми террасами. Там студенты могут заниматься самостоятельно за компьютерами. Тщательно продуманы и остальные общественные зоны – даже коридоры и террасы.
Институт Леонардо да Винчи Фото © Charly Broyez
Институт Леонардо да Винчи
Фото © Charly Broyez
Институт Леонардо да Винчи Фото © Charly Broyez
Институт Леонардо да Винчи
Фото © Charly Broyez
Институт Леонардо да Винчи Фото © Charly Broyez
Институт Леонардо да Винчи
Фото © Charly Broyez
Институт Леонардо да Винчи Фото © Charly Broyez
Институт Леонардо да Винчи
Фото © Charly Broyez
Институт Леонардо да Винчи Фото © Charly Broyez
Институт Леонардо да Винчи
Фото © Charly Broyez
Институт Леонардо да Винчи
Институт Леонардо да Винчи
Фото © Charly Broyez
Институт Леонардо да Винчи
Институт Леонардо да Винчи
Фото © Charly Broyez
Институт Леонардо да Винчи
Институт Леонардо да Винчи
Фото © Charly Broyez
Институт Леонардо да Винчи
Институт Леонардо да Винчи
Фото © Charly Broyez
Институт Леонардо да Винчи
Институт Леонардо да Винчи
Фото © Charly Broyez
Институт Леонардо да Винчи
Институт Леонардо да Винчи
Фото © Charly Broyez
Институт Леонардо да Винчи
Институт Леонардо да Винчи
Фото © Charly Broyez
Институт Леонардо да Винчи
Институт Леонардо да Винчи
Фото © Charly Broyez
Институт Леонардо да Винчи
Институт Леонардо да Винчи
Фото © Charly Broyez
Институт Леонардо да Винчи
Институт Леонардо да Винчи
© LAN
Институт Леонардо да Винчи
Институт Леонардо да Винчи
© LAN
Институт Леонардо да Винчи
Институт Леонардо да Винчи
© LAN
Институт Леонардо да Винчи
Институт Леонардо да Винчи
© LAN
Институт Леонардо да Винчи
Институт Леонардо да Винчи
© LAN
Институт Леонардо да Винчи
Институт Леонардо да Винчи
© LAN
Институт Леонардо да Винчи
Институт Леонардо да Винчи
© LAN
Институт Леонардо да Винчи
Институт Леонардо да Винчи
© LAN
Институт Леонардо да Винчи
Институт Леонардо да Винчи
© LAN
Институт Леонардо да Винчи
Институт Леонардо да Винчи
© LAN
Институт Леонардо да Винчи
Институт Леонардо да Винчи
© LAN
Институт Леонардо да Винчи
Институт Леонардо да Винчи
© LAN
Институт Леонардо да Винчи
Институт Леонардо да Винчи
© LAN