Размещено на портале Архи.ру (www.archi.ru)

29.06.2022

Белый пароход

Нина Фролова
Объект:
Лицей Ла-Провиданс
Адрес:
Франция, None, Сен-Мало.
Мастерская:
ALTA architectes urbanistes

Лицей Ла-Провиданс в бретонском Сен-Мало по проекту бюро ALTA соединил местные традиции и ресурсоэффективность.

Ла-Провиданс был основан как католическая школа для девочек в XIX веке. В наши дни лицей слит с Институтом Сен-Мало, созданным гораздо раньше, в XII веке, в единую старшую школу со смешанным обучением – но еще недавно они оба располагались в разных зданиях в районе Интрамурос – историческом центре города.
 

Лицей Ла-Провиданс
Лицей Ла-Провиданс
Фото © Charly Broyez

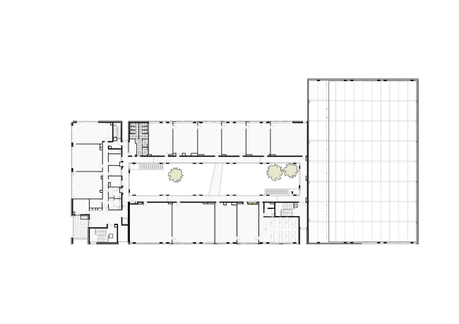
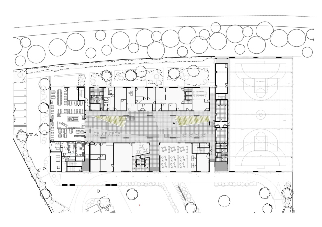
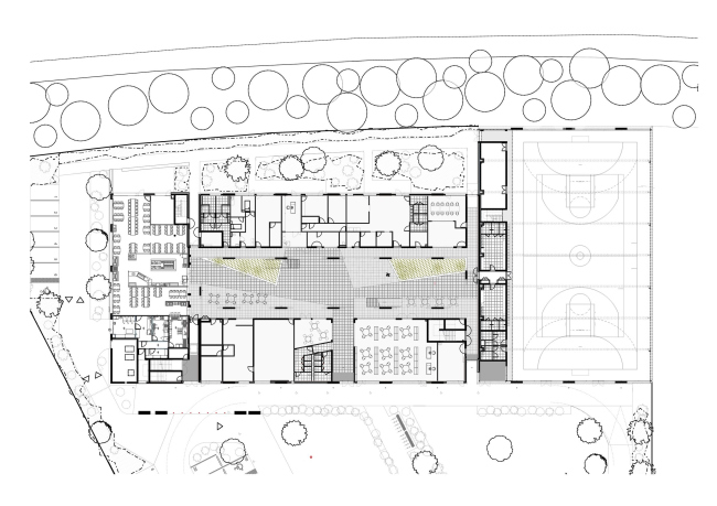
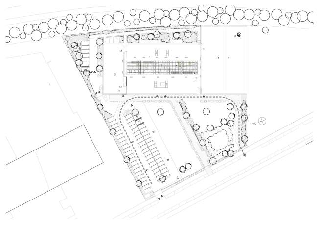
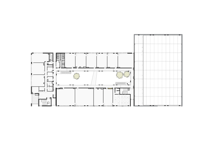
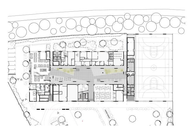
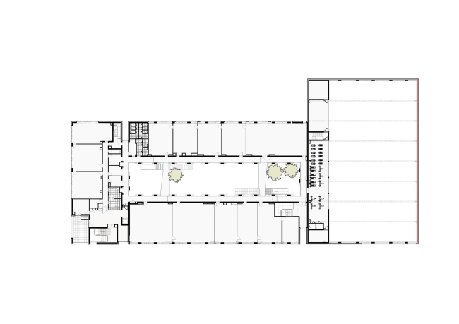
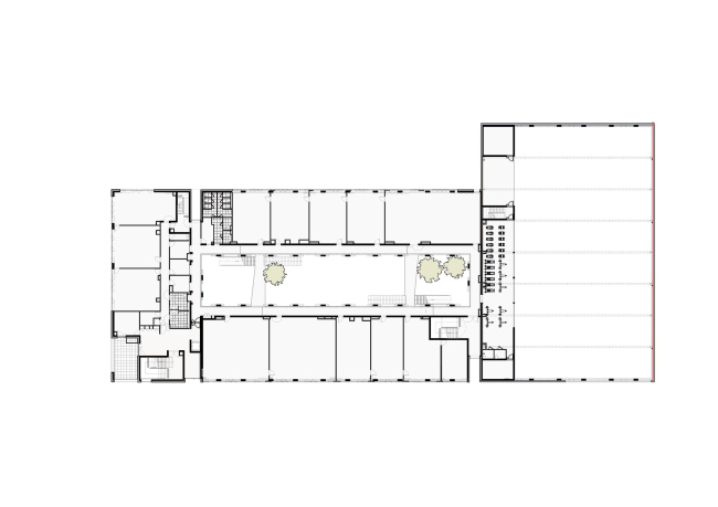
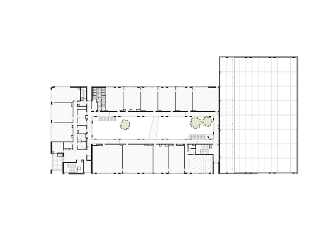
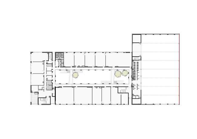
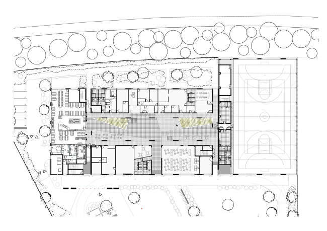
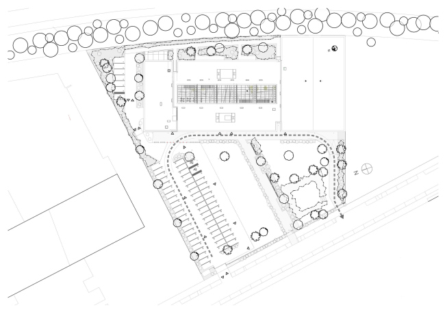
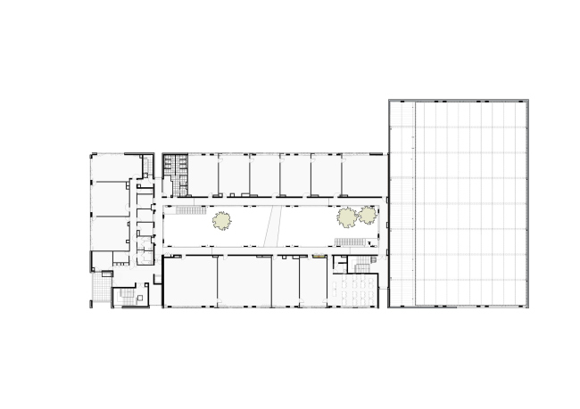
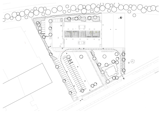
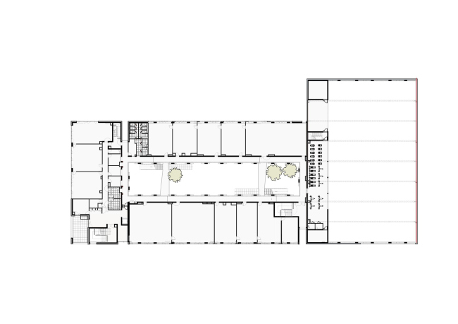
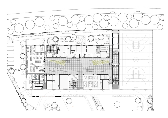
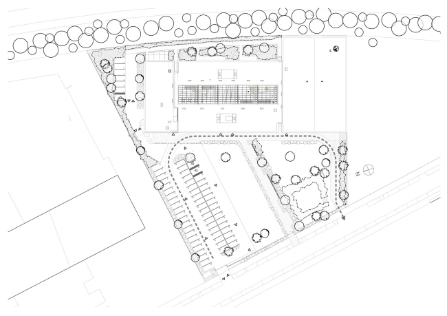
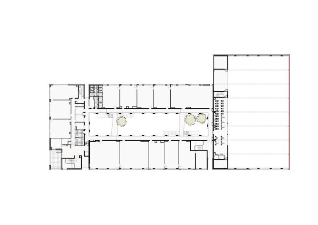
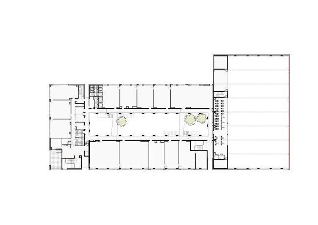
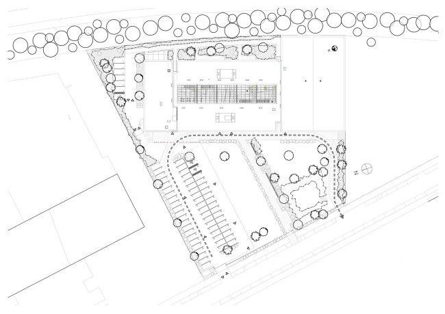
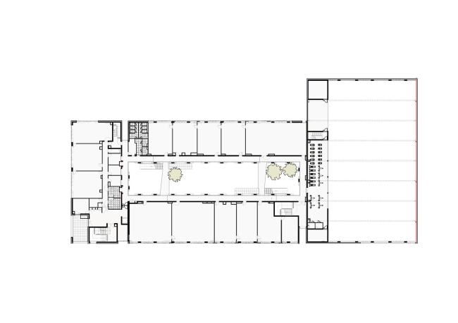
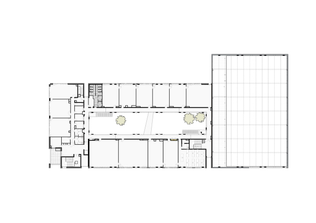
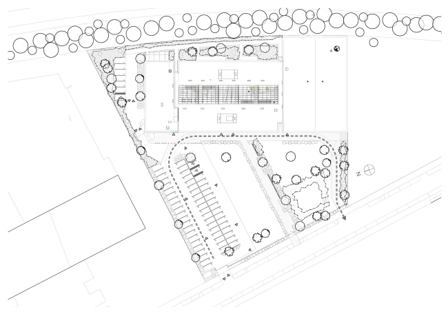
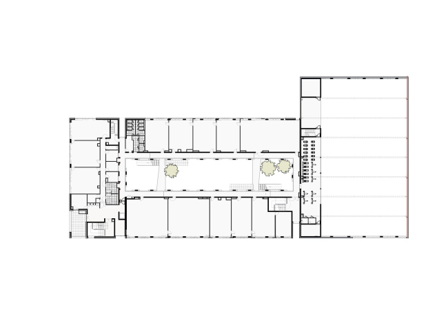
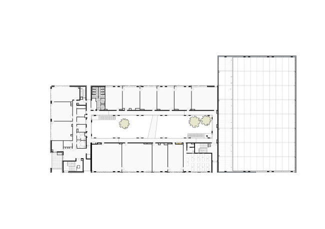
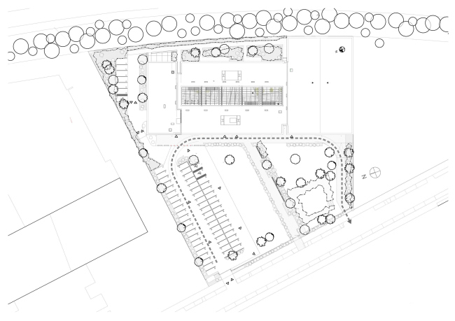
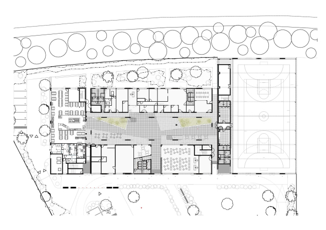
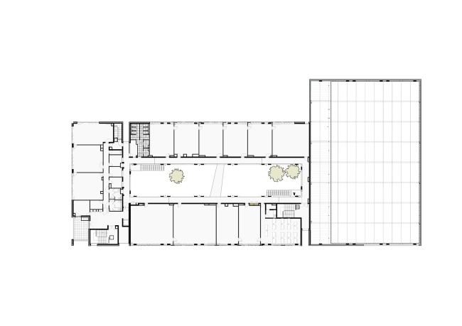
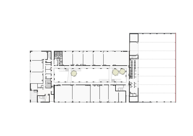
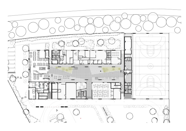
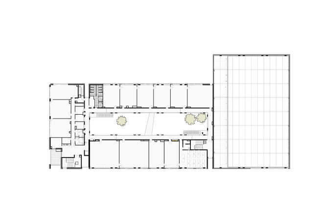
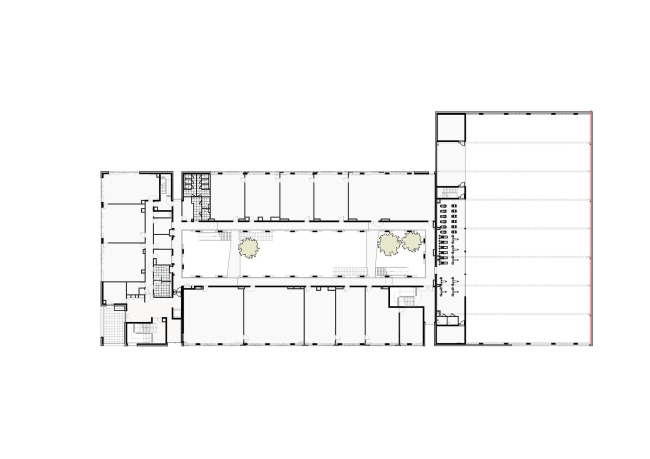
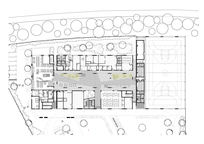
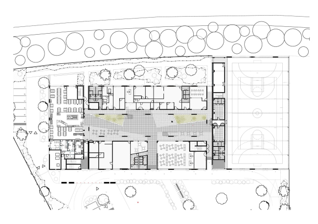
Теперь Ла-Провиданс получил новое здание в среде без особых опознавательных знаков: на окраине Сен-Мало, рядом с современным университетским кампусом, мультиплексом и торговым центром. Поэтому архитекторы, избегая копирования, постарались привнести в проект «дух места». Так, в центре помещен остекленный атриум, напоминающий такое же пространство в здании Института, где происходят все важные для школы события. Шедовая кровля сама по себе типична для приморского Сен-Мало и потому тоже «привязывает» новое здание к местности. Выведенный в интерьер фермообразный каркас должен напоминать о портовых кранах.
 
Лицей Ла-Провиданс
Лицей Ла-Провиданс
Фото © Charly Broyez

Атриум не только напоминает о школьных традициях, но и служит экологическим «буфером»: накапливает солнечное тепло зимой и охлаждает, обеспечивая естественную вентиляцию, летом. Вокруг него на трех этажах организованы все помещения школы, по сути – целых три учреждения. Это собственно лицей, завершающий этап среднего образования во Франции, на 10 классов / 350 учеников; профессиональное училище на 6 классов / 150 студентов, уже получивших аттестат зрелости; спортивный центр, доступный как учащимся, так и горожанам (туда входят зал для командных игр типа волейбола, помещение с тренажерами и скалодром).
 
Лицей Ла-Провиданс
Лицей Ла-Провиданс
Фото © Charly Broyez

За белый цвет и общий «современный» облик горожане прозвали Ла-Провиданс еще до открытия «лайнером» – типичное сравнение со времен Ле Корбюзье. Этот нейтральный цвет архитекторы выбрали потому, что хотели визуально отдать приоритет солнечному свету, зелени и, конечно, студентам.
Лицей Ла-Провиданс
Лицей Ла-Провиданс
Фото © Charly Broyez
Лицей Ла-Провиданс
Лицей Ла-Провиданс
Фото © Charly Broyez
Лицей Ла-Провиданс
Лицей Ла-Провиданс
Фото © Charly Broyez
Лицей Ла-Провиданс
Лицей Ла-Провиданс
© ALTA
Лицей Ла-Провиданс
Лицей Ла-Провиданс
© ALTA
Лицей Ла-Провиданс
Лицей Ла-Провиданс
© ALTA
Лицей Ла-Провиданс
Лицей Ла-Провиданс
© ALTA
Лицей Ла-Провиданс
Лицей Ла-Провиданс
© ALTA
Лицей Ла-Провиданс
Лицей Ла-Провиданс
© ALTA
Лицей Ла-Провиданс
Лицей Ла-Провиданс
© ALTA
Лицей Ла-Провиданс
Лицей Ла-Провиданс
© ALTA
Лицей Ла-Провиданс
Лицей Ла-Провиданс
© ALTA