Размещено на портале Архи.ру (www.archi.ru)

29.06.2022

Множество террас

Нина Фролова
Объект:
Музей искусств Циньтай
Адрес:
Китай, None, Ухань.
Мастерская:
Atelier Deshaus

Музей Циньтай по проекту бюро Atelier Deshaus вписался в прибрежный ландшафт, имитируя плавную неровность рельефа.

Музей искусств Циньтай расположен в одноименном районе города Ухань, на берегу Юэху – Лунного озера. Чтобы не нарушить живописный пейзаж, архитекторы поместили большинство пространств музея под землю, а наземную часть превратили в почти естественную возвышенность.
 

Музей искусств Циньтай
Музей искусств Циньтай
Фото © Tian Fangfang

У музея по сути нет стен и кровли, вместо них – серия плавно подымающихся террас, напоминающих изолинии на географической карте. Они засыпаны белым щебнем или засажены зеленью, а подпорные стенки сделаны из металла. Из него же созданы мостики, позволяющие гулять над внешней поверхностью здания.
 
Музей искусств Циньтай
Музей искусств Циньтай
Фото © Tian Fangfang

Сделать музей частью рекреационного пространства города было важной задачей архитекторов, поэтому они соединили пространство над музеем и вокруг него с инфраструктурой – музейным кафе, магазином, образовательным центром. Эта программа, как и главный вход, помещены с запада, где на соседнем участке появятся в будущем городская библиотека и театральный центр.
 
Музей искусств Циньтай
Музей искусств Циньтай
Фото © Tian Fangfang

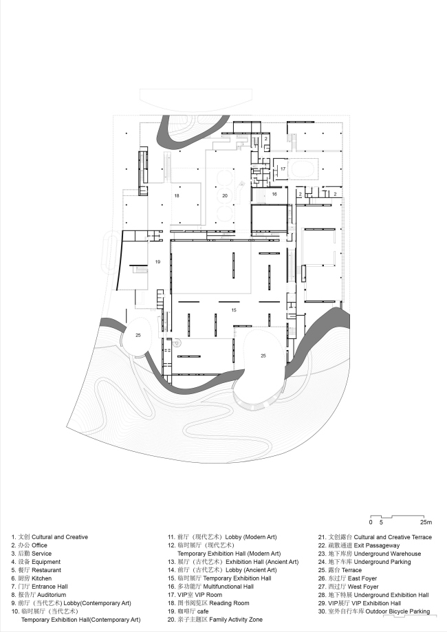
Внутри выставочные залы перетекают друг в друга, никаких фиксированных маршрутов осмотра нет. Они могут быть использованы для единой экспозиции или для ряда самостоятельных выставок на любую тему.
Музей искусств Циньтай
Музей искусств Циньтай
Фото © Tian Fangfang
Музей искусств Циньтай
Музей искусств Циньтай
Фото © Tian Fangfang
Музей искусств Циньтай
Музей искусств Циньтай
Фото © Tian Fangfang
Музей искусств Циньтай
Музей искусств Циньтай
Фото © Tian Fangfang
Музей искусств Циньтай
Музей искусств Циньтай
Фото © Tian Fangfang
Музей искусств Циньтай
Музей искусств Циньтай
Фото © Tian Fangfang
Музей искусств Циньтай
Музей искусств Циньтай
Фото © Tian Fangfang
Музей искусств Циньтай
Музей искусств Циньтай
Фото © Tian Fangfang
Музей искусств Циньтай
Музей искусств Циньтай
Фото © Tian Fangfang
Музей искусств Циньтай Фото © Tian Fangfang
Музей искусств Циньтай
Фото © Tian Fangfang
Музей искусств Циньтай Фото © Tian Fangfang
Музей искусств Циньтай
Фото © Tian Fangfang
Музей искусств Циньтай Фото © Su Shengliang
Музей искусств Циньтай
Фото © Su Shengliang
Музей искусств Циньтай Фото © Su Shengliang
Музей искусств Циньтай
Фото © Su Shengliang
Музей искусств Циньтай
Музей искусств Циньтай
Фото © Tian Fangfang
Музей искусств Циньтай
Музей искусств Циньтай
Фото © Tian Fangfang
Музей искусств Циньтай
Музей искусств Циньтай
Фото © Tian Fangfang
Музей искусств Циньтай
Музей искусств Циньтай
© Atelier Deshaus
Музей искусств Циньтай
Музей искусств Циньтай
© Atelier Deshaus
Музей искусств Циньтай
Музей искусств Циньтай
© Atelier Deshaus
Музей искусств Циньтай
Музей искусств Циньтай
© Atelier Deshaus
Музей искусств Циньтай
Музей искусств Циньтай
© Atelier Deshaus
Музей искусств Циньтай
Музей искусств Циньтай
© Atelier Deshaus
Музей искусств Циньтай
Музей искусств Циньтай
© Atelier Deshaus
Музей искусств Циньтай
Музей искусств Циньтай
© Atelier Deshaus
Музей искусств Циньтай
Музей искусств Циньтай
© Atelier Deshaus
Музей искусств Циньтай
Музей искусств Циньтай
© Atelier Deshaus
Музей искусств Циньтай
Музей искусств Циньтай
© Atelier Deshaus
Музей искусств Циньтай
Музей искусств Циньтай
© Atelier Deshaus
Музей искусств Циньтай
Музей искусств Циньтай
© Atelier Deshaus
Музей искусств Циньтай
Музей искусств Циньтай
© Atelier Deshaus
Музей искусств Циньтай
Музей искусств Циньтай
© Atelier Deshaus
Музей искусств Циньтай
Музей искусств Циньтай
© Atelier Deshaus