Размещено на портале Архи.ру (www.archi.ru)

20.06.2022

Неоновая трансформация

Нина Фролова
Объект:
Торговый центр GRiD
Адрес:
Сингапур, None,
Мастерская:
SPARK

Устаревший сингапурский молл 1990-х превращен бюро SPARK в яркий молодежный аттракцион. Кроме перепланировки, архитекторы занимались «содержательной» стороной и большую роль отвели инфографике и указателям, в том числе неоновым.

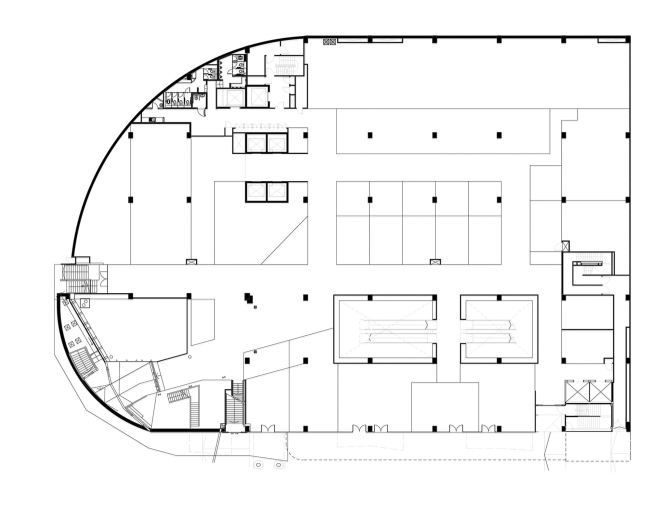
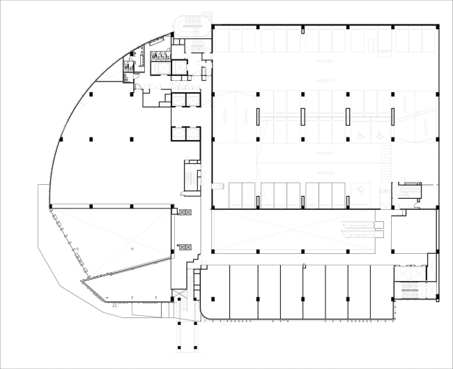
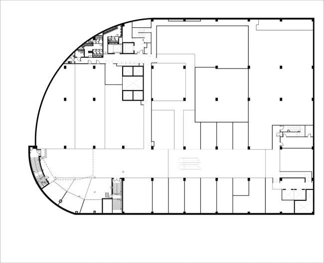
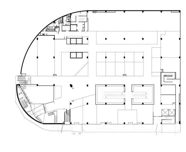
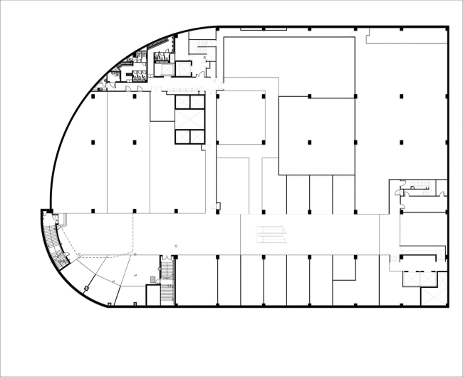
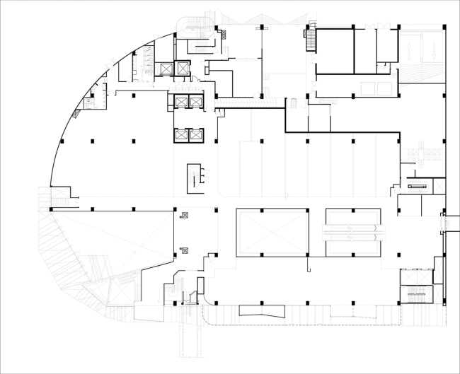
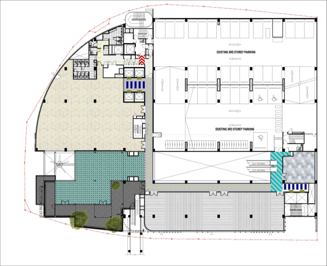
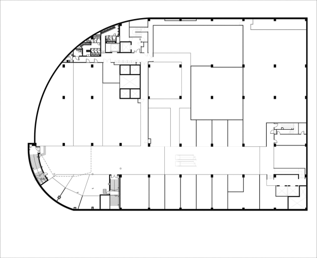
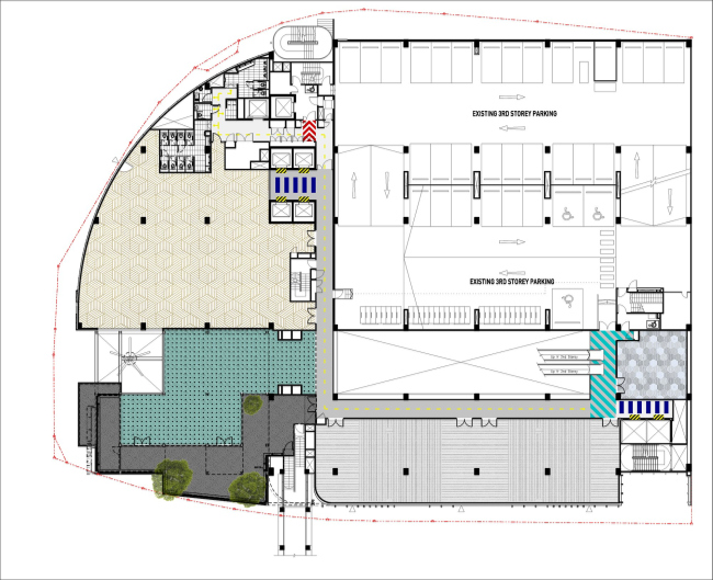
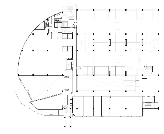
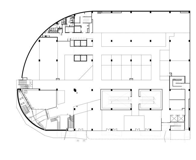
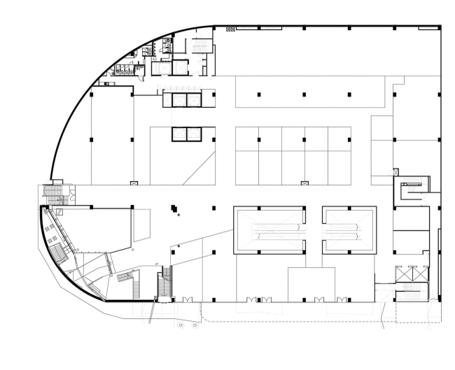
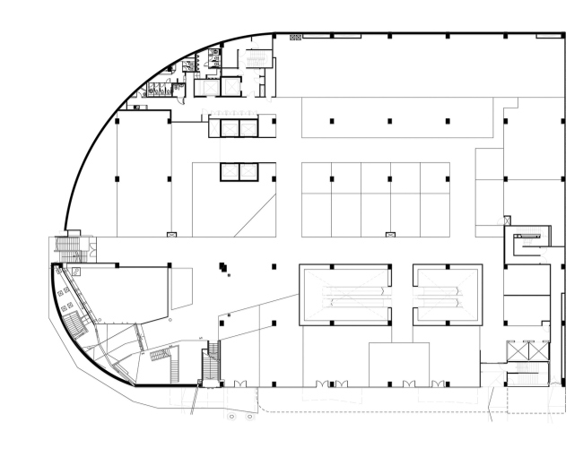
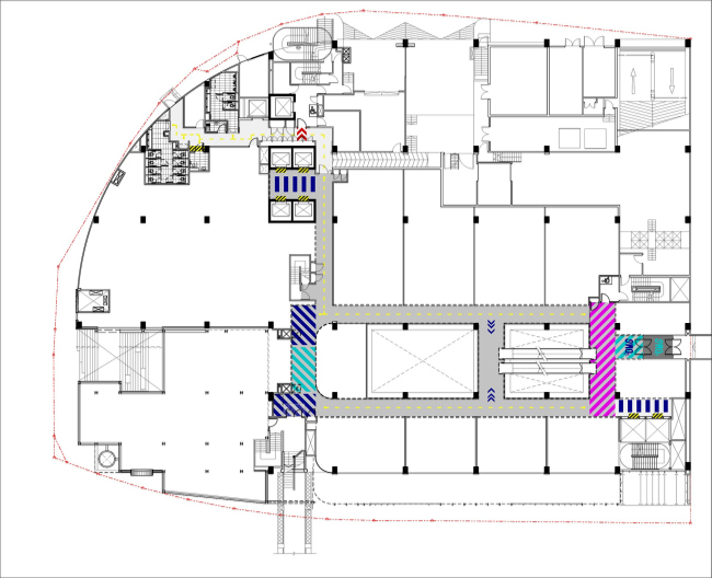
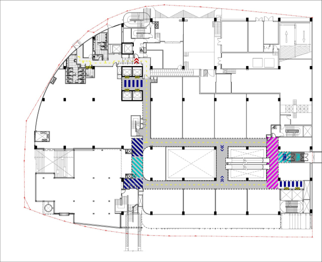
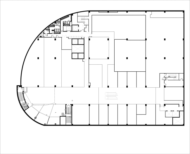
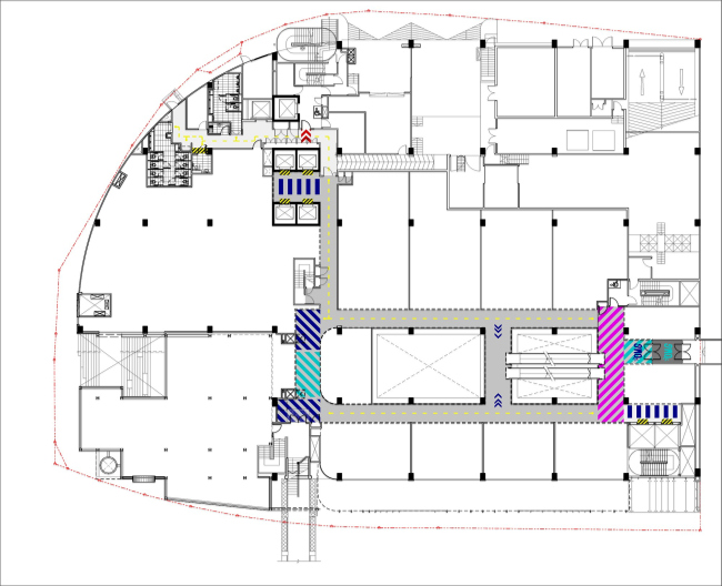
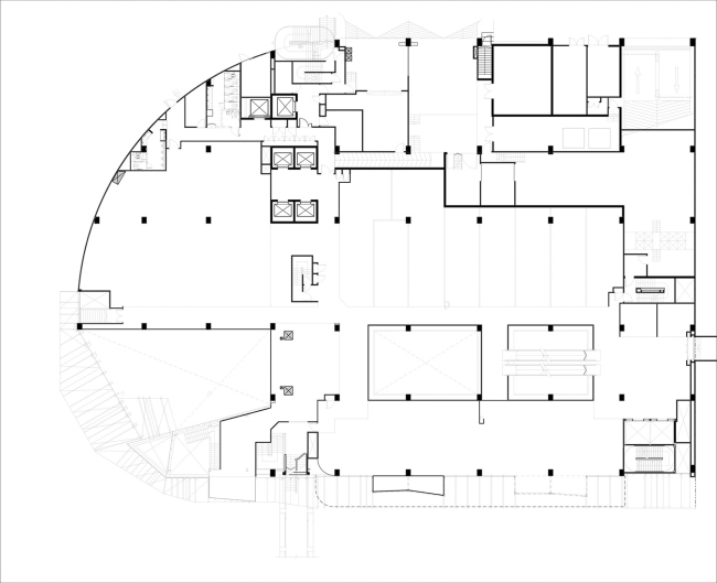
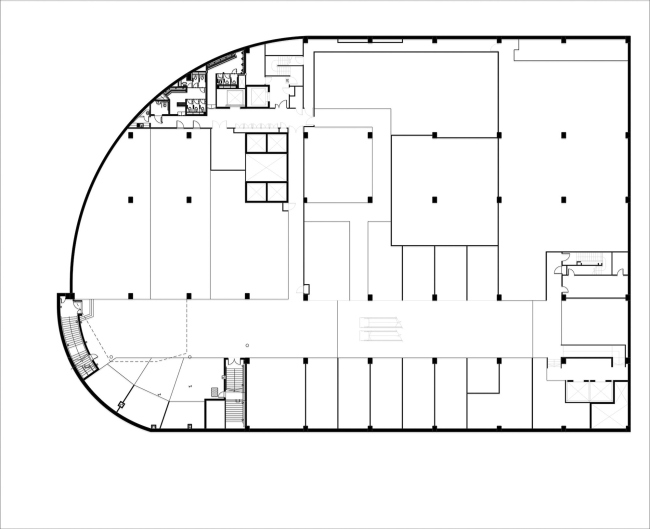
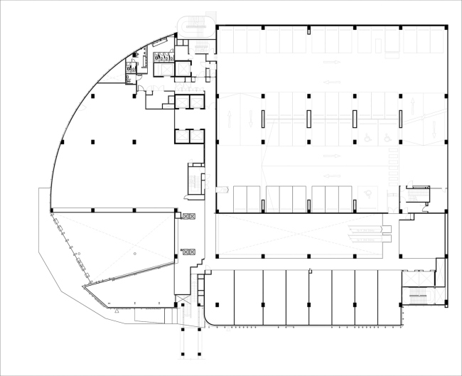
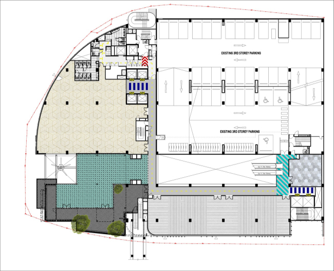
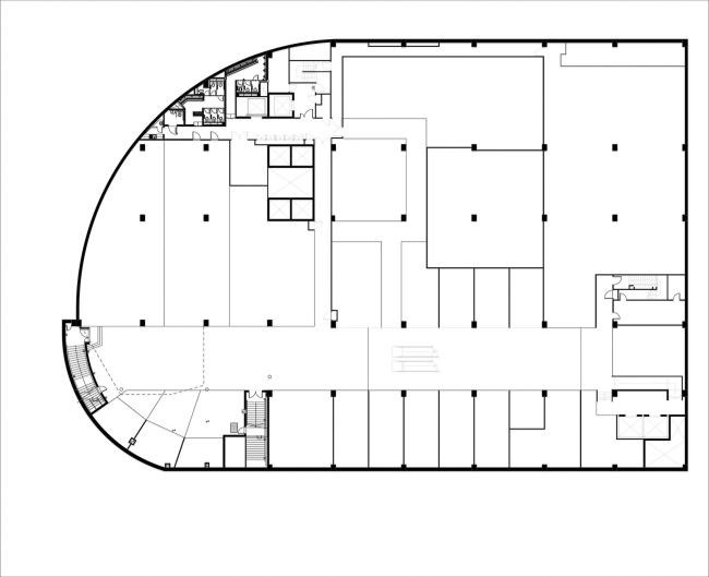
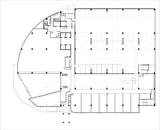
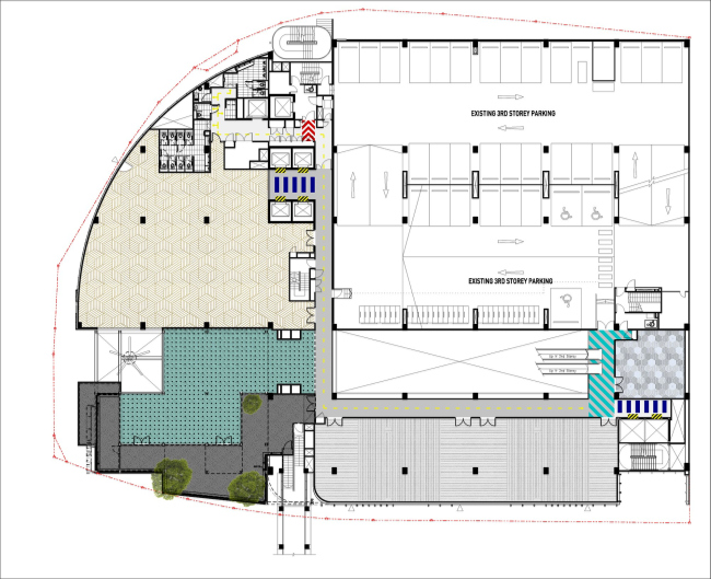
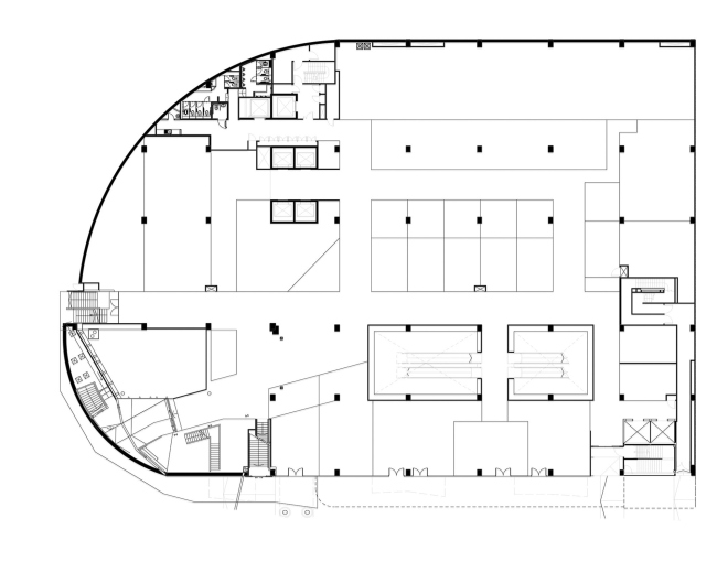
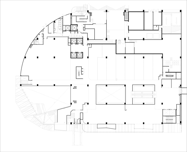
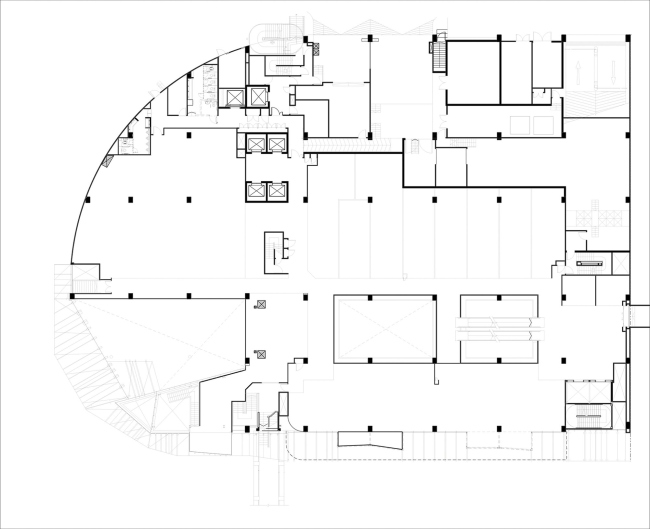
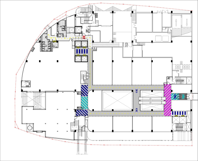
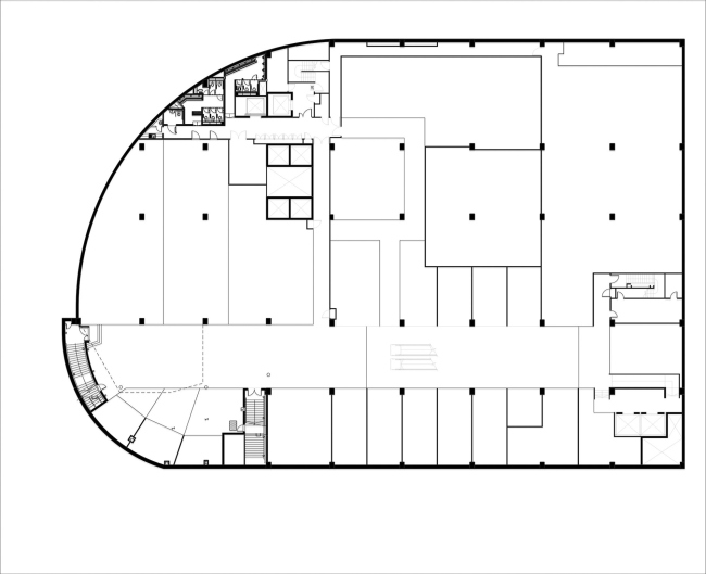
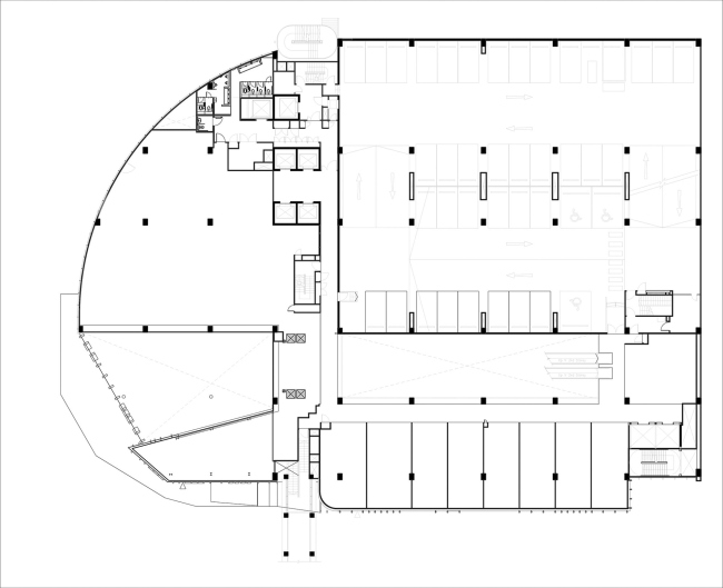
Объект реконструкции – торговый центр Po-Mo, модный в 1990-е, но с тех пор потерявший актуальность и привлекательность, – располагался между более крупными ТЦ и зданием Сингапурской школы искусств по проекту WOHA. Вокруг расположены и другие вузы, поэтому преображенный торговый центр GriD рассчитан прежде всего на молодую, динамичную аудиторию, которой важно общение, в том числе в соцсетях, а также образовательно-развлекательные занятия.
 

Торговый центр GRiD
Торговый центр GRiD
Предоставлено SPARK
Торговый центр GRiD
Торговый центр GRiD
Предоставлено SPARK
Торговый центр GRiD
Торговый центр GRiD
Предоставлено SPARK

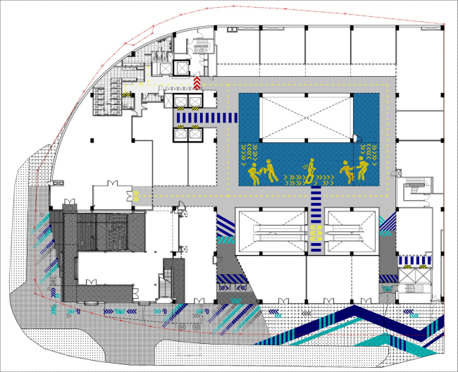
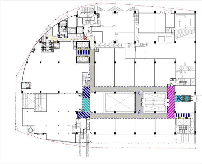
GriD, то есть «решетка», отсылает к новому облику молла: вместо серебристого стекла он получил «экзоскелет» из оранжевых модулей. Они также служат основой его яркой подсветки в сумерках, напоминающей о традиционных сингапурских лавках с обилием неона; кстати, такие есть и поблизости. Внутри неон тоже использован: из него сделаны различные указатели, порой имитирующие дорожные знаки. Большую роль в интерьере играют инфографика, указатели и знаки, продуманные в молодежной теме архитекторами SPARK.
 
Торговый центр GRiD
Торговый центр GRiD
Предоставлено SPARK
Торговый центр GRiD
Торговый центр GRiD
Предоставлено SPARK
Торговый центр GRiD
Торговый центр GRiD
Предоставлено SPARK

Среди арендаторов преобладают разного рода кафе, включая бар на крыше-террасе. Место магазинов в глубине отдано проему для наблюдения за занимающимися в спортзале в подземном уровне людьми (там могут проходить и командные игры). Есть пространства для удаленной работы и учебы, общественные зоны, включая лестницу-трибуну и динамично оформленный «социальный» туалет, где интересно делать селфи. Есть места для выставок, воркшопов, музыкальных выступлений и т. д.
Торговый центр GRiD
Торговый центр GRiD
Предоставлено SPARK
Торговый центр GRiD
Торговый центр GRiD
Предоставлено SPARK
Торговый центр GRiD
Торговый центр GRiD
Предоставлено SPARK
Торговый центр GRiD
Торговый центр GRiD
Предоставлено SPARK
Торговый центр GRiD
Торговый центр GRiD
Предоставлено SPARK
Торговый центр GRiD
Торговый центр GRiD
Предоставлено SPARK
Торговый центр GRiD
Торговый центр GRiD
Предоставлено SPARK
Торговый центр GRiD
Торговый центр GRiD
Предоставлено SPARK
Торговый центр GRiD Предоставлено SPARK
Торговый центр GRiD
Предоставлено SPARK
Торговый центр GRiD Предоставлено SPARK
Торговый центр GRiD
Предоставлено SPARK
Торговый центр GRiD Предоставлено SPARK
Торговый центр GRiD
Предоставлено SPARK
Торговый центр GRiD Предоставлено SPARK
Торговый центр GRiD
Предоставлено SPARK
Торговый центр GRiD Предоставлено SPARK
Торговый центр GRiD
Предоставлено SPARK
Торговый центр GRiD
Торговый центр GRiD
Предоставлено SPARK
Торговый центр GRiD
Торговый центр GRiD
Предоставлено SPARK
Торговый центр GRiD Предоставлено SPARK
Торговый центр GRiD
Предоставлено SPARK
Торговый центр GRiD Предоставлено SPARK
Торговый центр GRiD
Предоставлено SPARK
Торговый центр GRiD Предоставлено SPARK
Торговый центр GRiD
Предоставлено SPARK
Торговый центр GRiD Предоставлено SPARK
Торговый центр GRiD
Предоставлено SPARK
Торговый центр GRiD Предоставлено SPARK
Торговый центр GRiD
Предоставлено SPARK
Торговый центр GRiD Предоставлено SPARK
Торговый центр GRiD
Предоставлено SPARK
Торговый центр GRiD. Вид до реконструкции
Торговый центр GRiD. Вид до реконструкции
Предоставлено SPARK
Торговый центр GRiD
Торговый центр GRiD
Предоставлено SPARK
Торговый центр GRiD
Торговый центр GRiD
Предоставлено SPARK
Торговый центр GRiD
Торговый центр GRiD
Предоставлено SPARK
Торговый центр GRiD
Торговый центр GRiD
Предоставлено SPARK
Торговый центр GRiD Предоставлено SPARK
Торговый центр GRiD
Предоставлено SPARK
Торговый центр GRiD Предоставлено SPARK
Торговый центр GRiD
Предоставлено SPARK
Торговый центр GRiD Предоставлено SPARK
Торговый центр GRiD
Предоставлено SPARK
Торговый центр GRiD Предоставлено SPARK
Торговый центр GRiD
Предоставлено SPARK
Торговый центр GRiD Предоставлено SPARK
Торговый центр GRiD
Предоставлено SPARK
Торговый центр GRiD Предоставлено SPARK
Торговый центр GRiD
Предоставлено SPARK
Торговый центр GRiD Предоставлено SPARK
Торговый центр GRiD
Предоставлено SPARK
Торговый центр GRiD Предоставлено SPARK
Торговый центр GRiD
Предоставлено SPARK
Торговый центр GRiD Предоставлено SPARK
Торговый центр GRiD
Предоставлено SPARK
Торговый центр GRiD Предоставлено SPARK
Торговый центр GRiD
Предоставлено SPARK
Торговый центр GRiD Предоставлено SPARK
Торговый центр GRiD
Предоставлено SPARK
Торговый центр GRiD Предоставлено SPARK
Торговый центр GRiD
Предоставлено SPARK
Торговый центр GRiD Предоставлено SPARK
Торговый центр GRiD
Предоставлено SPARK
Торговый центр GRiD Предоставлено SPARK
Торговый центр GRiD
Предоставлено SPARK
Торговый центр GRiD Предоставлено SPARK
Торговый центр GRiD
Предоставлено SPARK
Торговый центр GRiD
Торговый центр GRiD
Предоставлено SPARK
Торговый центр GRiD
Торговый центр GRiD
Предоставлено SPARK
Торговый центр GRiD
Торговый центр GRiD
Предоставлено SPARK
Торговый центр GRiD
Торговый центр GRiD
Предоставлено SPARK
Торговый центр GRiD
Торговый центр GRiD
Предоставлено SPARK
Торговый центр GRiD
Торговый центр GRiD
Предоставлено SPARK
Торговый центр GRiD
Торговый центр GRiD
Предоставлено SPARK
Торговый центр GRiD
Торговый центр GRiD
Предоставлено SPARK