Размещено на портале Архи.ру (www.archi.ru)

17.06.2022

Путь в будущее через древние традиции

Нина Фролова
Объект:
Жилой комплекс из каменных блоков
Адрес:
Швейцария, None, Женева. Коммуна План-лез-Уат
Мастерская:
Archiplein
Perraudin Architecture
Авторский коллектив:
Perraudin Architecture и Archiplein

Комплекс доступного жилья под Женевой по проекту бюро Archiplein и Perraudin Architecture не использует бетонную несущую конструкцию: главным материалом стали блоки натурального известняка.

В коммуне План-лез-Уат к югу от центра Женевы, на границе окружающего ее аграрного пояса, построен комплекс доступного жилья. Там есть 68 квартир для приобретающих жилище впервые, разные виды арендного социального жилья, а также коммерческие площади на первом этаже.
 

Жилой комплекс из каменных блоков
Жилой комплекс из каменных блоков
Фото © Leo Fabrizio

Но особенность новостройки заключается не в ее программе. На этом примере архитекторы исследовали эффективность натурального камня как основного строительного материала для бюджетного жилья в Швейцарии. Был выбран известняк из трех французских месторождений: он использован в том числе для несущих конструкций, которые оставлены тактильными, с естественной фактурой, следами пилы каменотеса, окаменелостями и т. д.
 
Жилой комплекс из каменных блоков
Жилой комплекс из каменных блоков
Фото © Leo Fabrizio

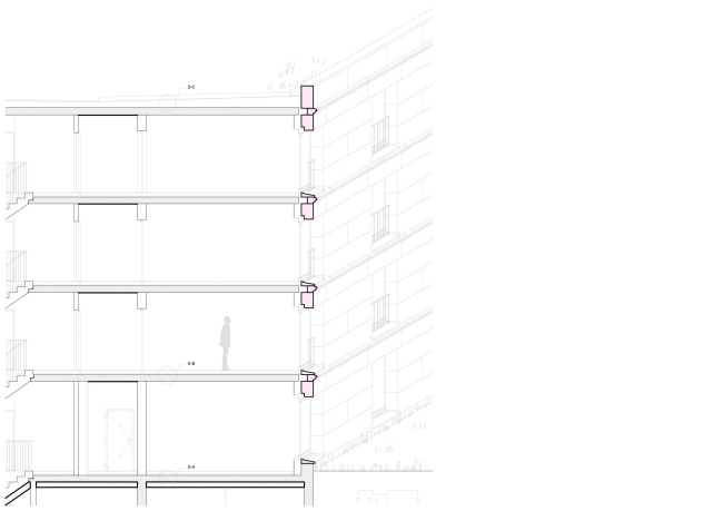
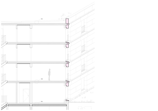
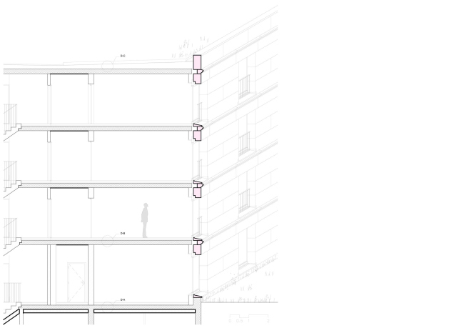
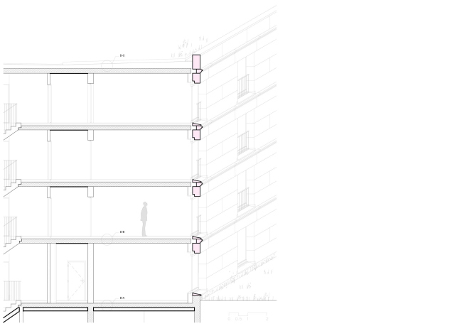
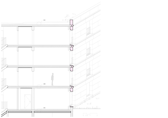
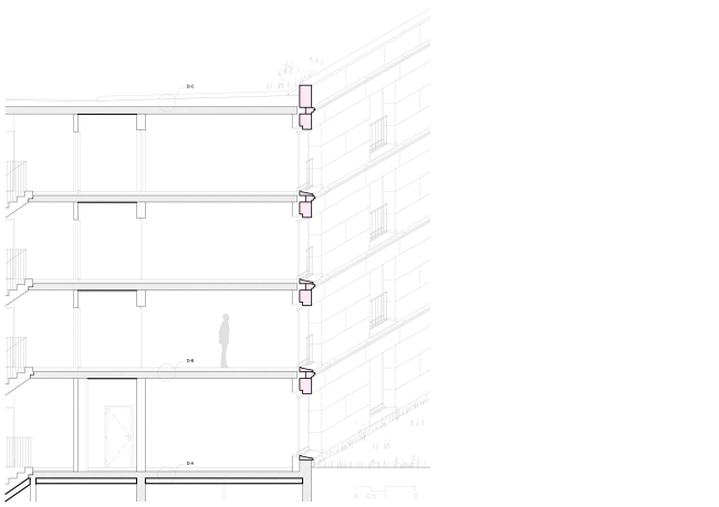
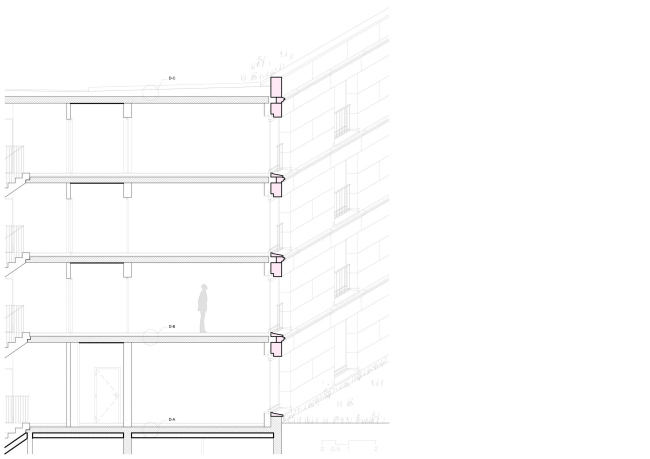
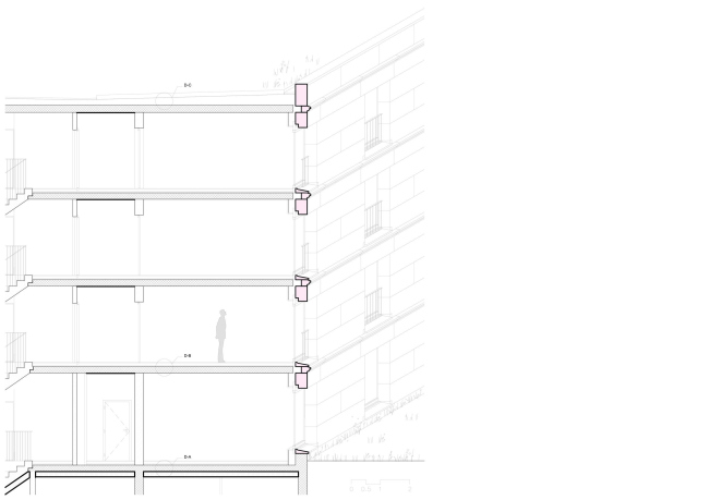
Модуль кладки состоит из четырех блоков размером 190x80 см каждый. Выступающий карниз, также из известняка, бережет фасад от дождевой воды. Всего при строительстве использовано 2000 м3 натурального камня (9000 блоков).
 
Жилой комплекс из каменных блоков
Жилой комплекс из каменных блоков
Фото © Leo Fabrizio

Архитекторы рассказывают, что будущие жильцы, осматривая квартиры, постоянно прикасались к фактурным и потому очень «тактильным» каменным стенам; при этом их поражала прохлада этого материала при жаре за окном. Термическая инерция известняка помогла комплексу получить швейцарский сертификат ресурсоэффективности Minergie.
 
Жилой комплекс из каменных блоков
Жилой комплекс из каменных блоков
Фото © Leo Fabrizio




Надо отметить, что лионский архитектор Жиль Перроден и его бюро Perraudin Architecture давно экспериментируют с камнем как основным материалом для строительства, в том числе и доступного жилья. На эту тему Перроден в 2013 выпустил практическое руководство.
Жилой комплекс из каменных блоков
Жилой комплекс из каменных блоков
Фото © Leo Fabrizio
Жилой комплекс из каменных блоков
Жилой комплекс из каменных блоков
Фото © Leo Fabrizio
Жилой комплекс из каменных блоков
Жилой комплекс из каменных блоков
Фото © Leo Fabrizio
Жилой комплекс из каменных блоков
Жилой комплекс из каменных блоков
Фото © Leo Fabrizio
Жилой комплекс из каменных блоков
Жилой комплекс из каменных блоков
© Perraudin Architecture + Archiplein
Жилой комплекс из каменных блоков
Жилой комплекс из каменных блоков
© Perraudin Architecture + Archiplein
Жилой комплекс из каменных блоков
Жилой комплекс из каменных блоков
© Perraudin Architecture + Archiplein
Жилой комплекс из каменных блоков
Жилой комплекс из каменных блоков
© Perraudin Architecture + Archiplein
Жилой комплекс из каменных блоков
Жилой комплекс из каменных блоков
© Perraudin Architecture + Archiplein
Жилой комплекс из каменных блоков
Жилой комплекс из каменных блоков
© Perraudin Architecture + Archiplein
Жилой комплекс из каменных блоков
Жилой комплекс из каменных блоков
© Perraudin Architecture + Archiplein