Размещено на портале Архи.ру (www.archi.ru)

03.06.2022

Кирпичный модернизм

Нина Фролова
Объект:
Конференц-центр Брюгге
Адрес:
Бельгия, None, Брюгге.
Мастерская:
META architectuurbureau

Конференц-центр в Брюгге по проекту Эдуарду Соту де Моры и META architectuurbureau.

Новый конференц-центр в Брюгге призван диверсифицировать как экономику города, так и его имидж: муниципальные власти хотят представить альтернативу образу музея под открытым небом. Он должен привлекать организаторов конференций и отраслевых выставок, а также прославиться как центр современного искусства: поэтому рядом с новым зданием установили скульптуру «Источник» авторства Филипа Агирре-и-Отеги.
 

Конференц-центр Брюгге
Конференц-центр Брюгге
Фото © Filip Dujardin
Конференц-центр Брюгге
Конференц-центр Брюгге
Фото © Filip Dujardin
Конференц-центр Брюгге
Конференц-центр Брюгге
Фото © Filip Dujardin

Но само здание все же кажется историческим – или идеальным образцом неомодернизма. Если мысленно заменить «состаренный» кирпич на бетон, то отличить конференц-центр от сооружений 1960-х будет довольно сложно. Вместе с тем, присущая тому времени сдержанность пригодилась проекту, учитывая никуда не исчезнувший исторический контекст и статус объекта Всемирного наследия, которым обладает Брюгге.
 
Конференц-центр Брюгге
Конференц-центр Брюгге
Фото © Filip Dujardin
Конференц-центр Брюгге
Конференц-центр Брюгге
Фото © Filip Dujardin
Конференц-центр Брюгге
Конференц-центр Брюгге
Фото © Filip Dujardin

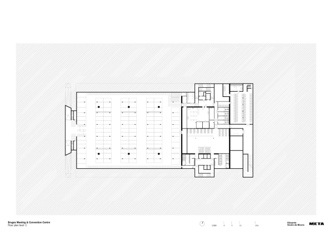
Главное новшество – остекленный выставочный зал на первом этаже, который можно использовать и для концертов, но главное – даже как продолжение городской среды. Его стены можно раздвинуть и открыть пространство горожанам. В любое время жителям города открыта зона под консольным выносом главного фасада: учитывая влажный и прохладный климат Бельгии, это ценный ресурс.
 
Конференц-центр Брюгге
Конференц-центр Брюгге
Фото © Filip Dujardin
Конференц-центр Брюгге
Конференц-центр Брюгге
Фото © Filip Dujardin
Конференц-центр Брюгге
Конференц-центр Брюгге
Фото © Filip Dujardin

Площадь Бёрсплейн, где выстроен центр, еще недавно была всего лишь парковкой. Теперь ее благоустроили, вымостив мытым бетоном с вкраплениями более характерного для Брюгге булыжника. Росшие здесь старые буки – почти сорок деревьев – удалось сохранить, вокруг каждого создали обширные «лужайки», где высадят цветы. Также на площади появилась магнолия, которая зацветет здесь раньше всех.
 
Конференц-центр Брюгге
Конференц-центр Брюгге
Фото © Filip Dujardin
Конференц-центр Брюгге Фото © Filip Dujardin
Конференц-центр Брюгге
Фото © Filip Dujardin
Конференц-центр Брюгге Фото © Filip Dujardin
Конференц-центр Брюгге
Фото © Filip Dujardin
Конференц-центр Брюгге Фото © Filip Dujardin
Конференц-центр Брюгге
Фото © Filip Dujardin
Конференц-центр Брюгге Фото © Filip Dujardin
Конференц-центр Брюгге
Фото © Filip Dujardin
Конференц-центр Брюгге Фото © Filip Dujardin
Конференц-центр Брюгге
Фото © Filip Dujardin
Конференц-центр Брюгге
Конференц-центр Брюгге
Фото © Filip Dujardin

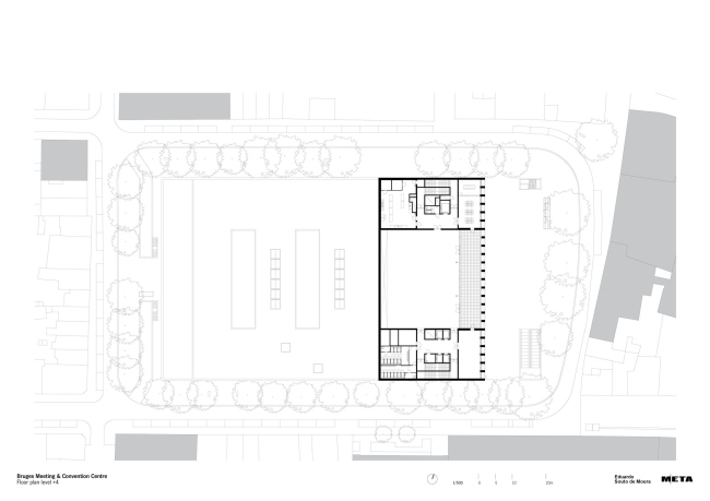
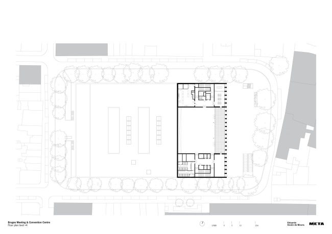
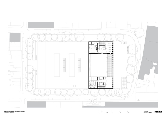
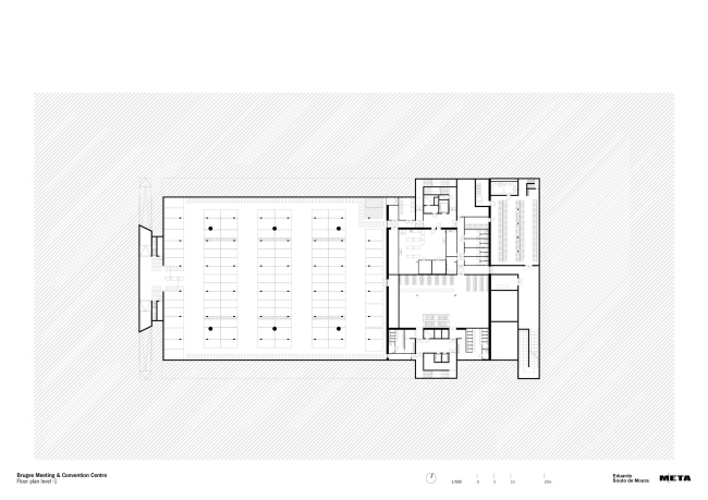
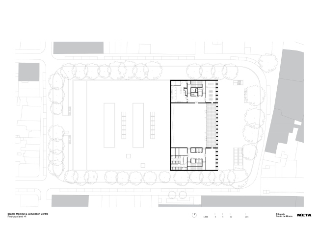
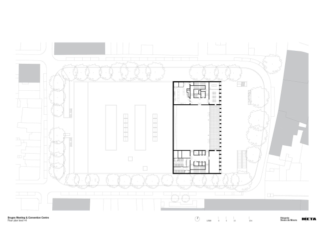
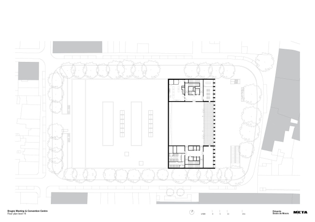
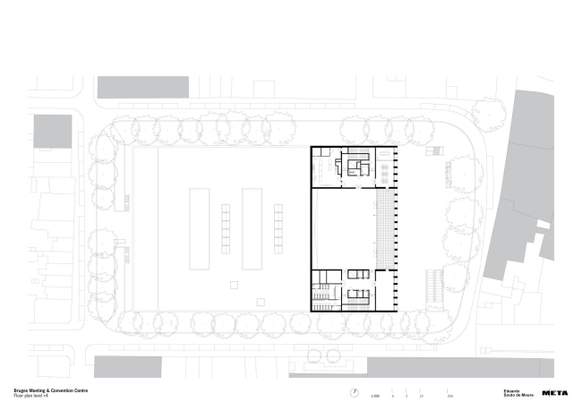
Общая площадь постройки – более 15 тыс. м2. Кроме выставочного зала (4480 м2) здесь есть расположенные над ним конференц-залы: большой (500 человек) и 12 малых. Все их можно разделять и соединять в зависимости от текущих нужд. Отдельного упоминания заслуживает терраса на крыше, откуда открываются виды Старого города.
Конференц-центр Брюгге Фото © Filip Dujardin
Конференц-центр Брюгге
Фото © Filip Dujardin
Конференц-центр Брюгге Фото © Filip Dujardin
Конференц-центр Брюгге
Фото © Filip Dujardin
Конференц-центр Брюгге Фото © Filip Dujardin
Конференц-центр Брюгге
Фото © Filip Dujardin
Конференц-центр Брюгге Фото © Filip Dujardin
Конференц-центр Брюгге
Фото © Filip Dujardin
Конференц-центр Брюгге Фото © Filip Dujardin
Конференц-центр Брюгге
Фото © Filip Dujardin
Конференц-центр Брюгге
Конференц-центр Брюгге
Фото © Filip Dujardin
Конференц-центр Брюгге
Конференц-центр Брюгге
Фото © Filip Dujardin
Конференц-центр Брюгге
Конференц-центр Брюгге
Фото © Filip Dujardin
Конференц-центр Брюгге
Конференц-центр Брюгге
© CFE + Eduardo Souto de Moura + META architectuurbureau
Конференц-центр Брюгге
Конференц-центр Брюгге
© CFE + Eduardo Souto de Moura + META architectuurbureau
Конференц-центр Брюгге
Конференц-центр Брюгге
© CFE + Eduardo Souto de Moura + META architectuurbureau
Конференц-центр Брюгге
Конференц-центр Брюгге
© CFE + Eduardo Souto de Moura + META architectuurbureau
Конференц-центр Брюгге
Конференц-центр Брюгге
© CFE + Eduardo Souto de Moura + META architectuurbureau
Конференц-центр Брюгге
Конференц-центр Брюгге
© CFE + Eduardo Souto de Moura + META architectuurbureau
Конференц-центр Брюгге
Конференц-центр Брюгге
© CFE + Eduardo Souto de Moura + META architectuurbureau
Конференц-центр Брюгге
Конференц-центр Брюгге
© CFE + Eduardo Souto de Moura + META architectuurbureau
Конференц-центр Брюгге
Конференц-центр Брюгге
© CFE + Eduardo Souto de Moura + META architectuurbureau