Размещено на портале Архи.ру (www.archi.ru)

31.05.2022

Уединение на водах

Анна Старостина
Объект:
Рёкан «Кусацу Кимурая»
Адрес:
Япония, None, Кусацу.

Кэнго Кума представил современную версию традиционной японской гостиницы на водах в Кусацу, одном из известных термальных курортов-онсэне.

Небольшой поселок Кусацу в префектуре Гумма знаменит своими горячими источниками. Один из трех самых популярных онсэнов – то есть традиционных японских термальных курортов – расположен примерно в 170 км от Токио на высоте 1200 м над уровнем моря по соседству с действующими вулканами. В его центре находится самый мощный источник Юбатакэ, что можно перевести как «поле горячей воды». Проходя через серию деревянных шлюзов, желтоватого цвета вода немного остывает и оставляет красивые минеральные отложения. Затем поток направляется в специальный деревянный желоб, образуя эффектный, в вечернее время особым образом подсвеченный водопад.

Рёкан «Кусацу Кимурая»
Рёкан «Кусацу Кимурая»
Фотография ©︎ Kawasumi-Kobayashi Kenji Photograph Office / предоставлена KKAA
Рёкан «Кусацу Кимурая»
Рёкан «Кусацу Кимурая»
Фотография ©︎ Kawasumi-Kobayashi Kenji Photograph Office / предоставлена KKAA
Рёкан «Кусацу Кимурая» Фотография ©︎ Kawasumi-Kobayashi Kenji Photograph Office / предоставлена KKAA
Рёкан «Кусацу Кимурая»
Фотография ©︎ Kawasumi-Kobayashi Kenji Photograph Office / предоставлена KKAA
Рёкан «Кусацу Кимурая» Фотография ©︎ Kawasumi-Kobayashi Kenji Photograph Office / предоставлена KKAA
Рёкан «Кусацу Кимурая»
Фотография ©︎ Kawasumi-Kobayashi Kenji Photograph Office / предоставлена KKAA

Вместе с привычными отелями, на подобного рода курортах широко распространены и исторические японские гостиницы, так называемые рёканы. Несмотря на педантичное сохранение традиций, этот тип гостевого расселения активно реагирует на вызовы сегодняшнего времени, пытаясь приспосабливаться, не в ущерб древней культуре, конечно, и не теряя достоинства, к высокому темпу жизни и запросам современных туристов.
Рёкан «Кусацу Кимурая» Фотография ©︎ Kawasumi-Kobayashi Kenji Photograph Office / предоставлена KKAA
Рёкан «Кусацу Кимурая»
Фотография ©︎ Kawasumi-Kobayashi Kenji Photograph Office / предоставлена KKAA
Рёкан «Кусацу Кимурая» Фотография ©︎ Kawasumi-Kobayashi Kenji Photograph Office / предоставлена KKAA
Рёкан «Кусацу Кимурая»
Фотография ©︎ Kawasumi-Kobayashi Kenji Photograph Office / предоставлена KKAA
Рёкан «Кусацу Кимурая»
Рёкан «Кусацу Кимурая»
Фотография ©︎ Kawasumi-Kobayashi Kenji Photograph Office / предоставлена KKAA
Рёкан «Кусацу Кимурая»
Рёкан «Кусацу Кимурая»
Фотография ©︎ Kawasumi-Kobayashi Kenji Photograph Office / предоставлена KKAA

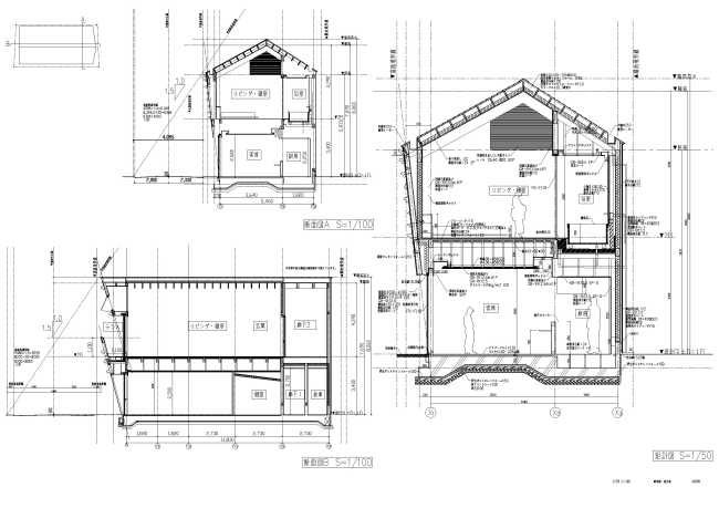
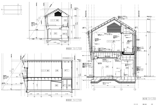
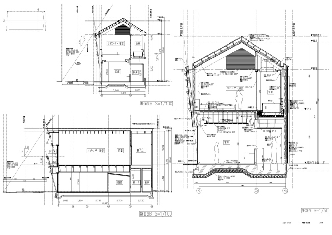
Скромный двухэтажный рёкан «Кусацу Кимурая», спроектированный Кэнго Кумой, обращен как раз на то самое «поле горячей воды». Вокруг в основном такие же небольшие домики с сувенирными магазинчиками, кафе, спа-центрами или гостиницами. Сложной формы объем, действительно напоминающий валун и будто бы ставший частью ландшафта, получил шершавые черные фасады, на которых местными вулканическими камнями выложен волнообразный объемный рисунок, отсылающий к восходящим от горячей воды клубам пара.
Рёкан «Кусацу Кимурая»
Рёкан «Кусацу Кимурая»
Фотография ©︎ Kawasumi-Kobayashi Kenji Photograph Office / предоставлена KKAA
Рёкан «Кусацу Кимурая»
Рёкан «Кусацу Кимурая»
Фотография ©︎ Kawasumi-Kobayashi Kenji Photograph Office / предоставлена KKAA
Рёкан «Кусацу Кимурая»
Рёкан «Кусацу Кимурая»
Фотография ©︎ Kawasumi-Kobayashi Kenji Photograph Office / предоставлена KKAA
Рёкан «Кусацу Кимурая»
Рёкан «Кусацу Кимурая»
Фотография ©︎ Kawasumi-Kobayashi Kenji Photograph Office / предоставлена KKAA

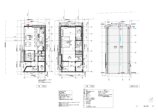
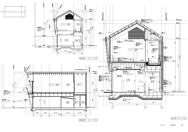
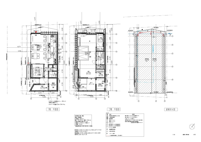
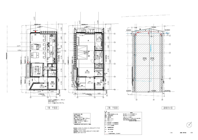
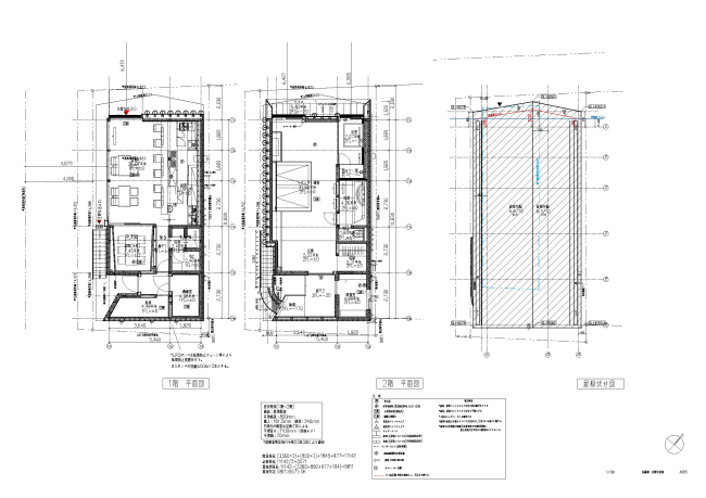
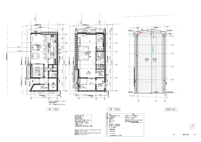
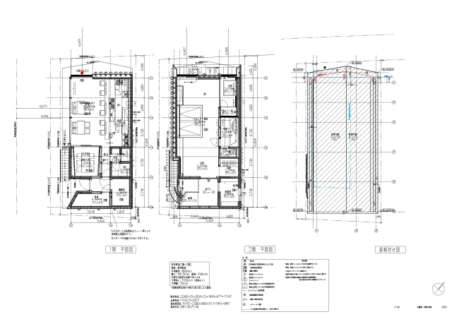
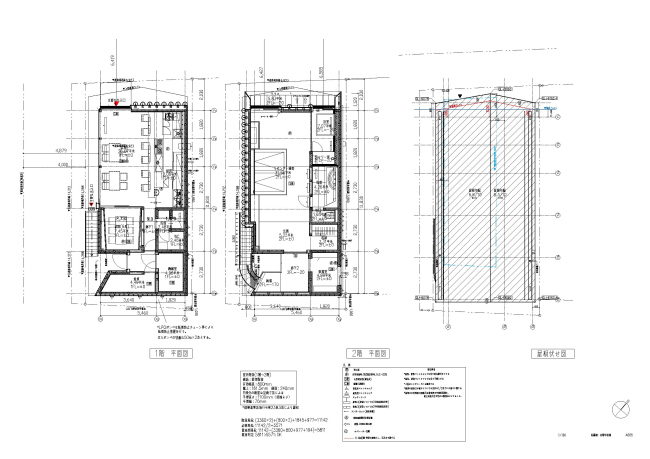
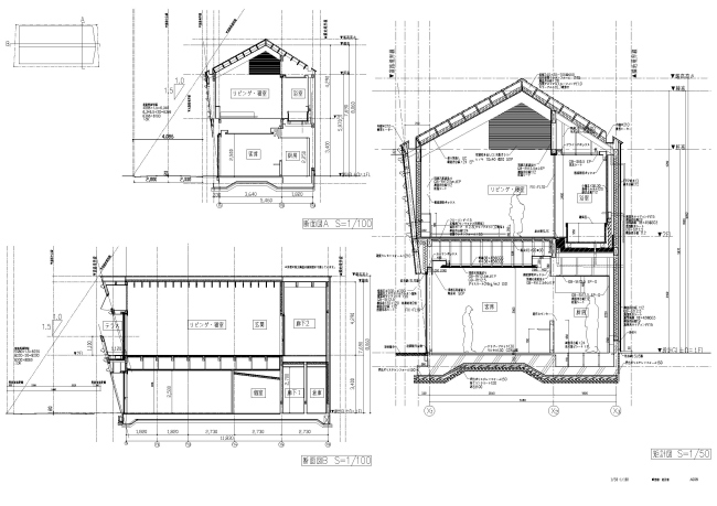
Первый этаж занимает маленький ресторан. Благодаря угловому арочному остеклению он открыт и в сторону купален, и в небольшой соседний проулок. В темное время суток окно светится теплым, манящим желтым светом. На втором этаже, куда ведет наружная винтовая лестница, расположен всего один номер и купальня с горячим источником. Во внутренней отделке архитекторы использовали покрытие терраццо с вкраплениями фрагментов все тех же вулканических камней, деревянные панели, плитку, почти такую же, как в общественных купальнях, и традиционную бумагу васи. На стенах здесь опять возникает объемный волнообразный рисунок. В результате новый объект становится не просто неотъемлемой частью, а своеобразной квинтэссенцией исторического окружения.
Рёкан «Кусацу Кимурая»
Рёкан «Кусацу Кимурая»
Фотография ©︎ Kawasumi-Kobayashi Kenji Photograph Office / предоставлена KKAA
Рёкан «Кусацу Кимурая»
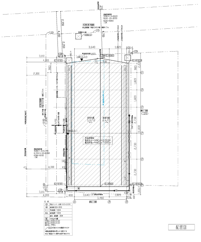
Рёкан «Кусацу Кимурая»
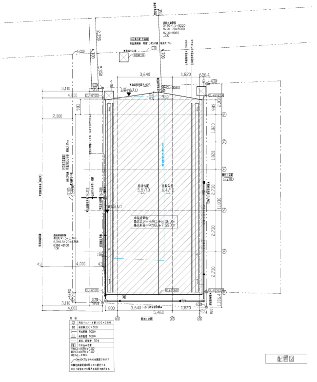
©︎ Kengo Kuma and Associates
Рёкан «Кусацу Кимурая»
Рёкан «Кусацу Кимурая»
©︎ Kengo Kuma and Associates
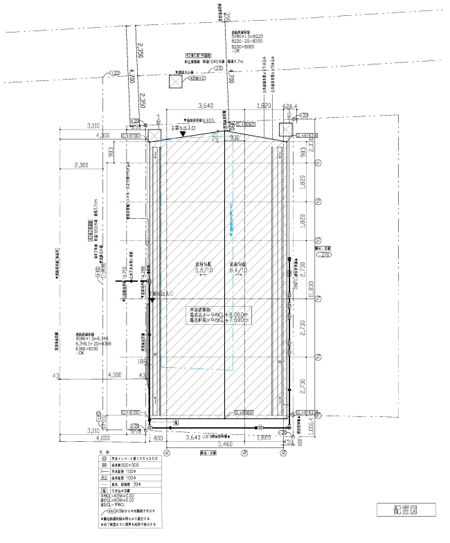
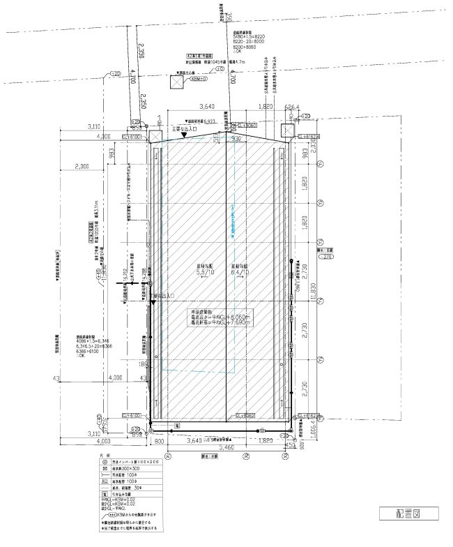
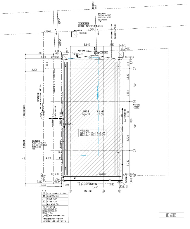
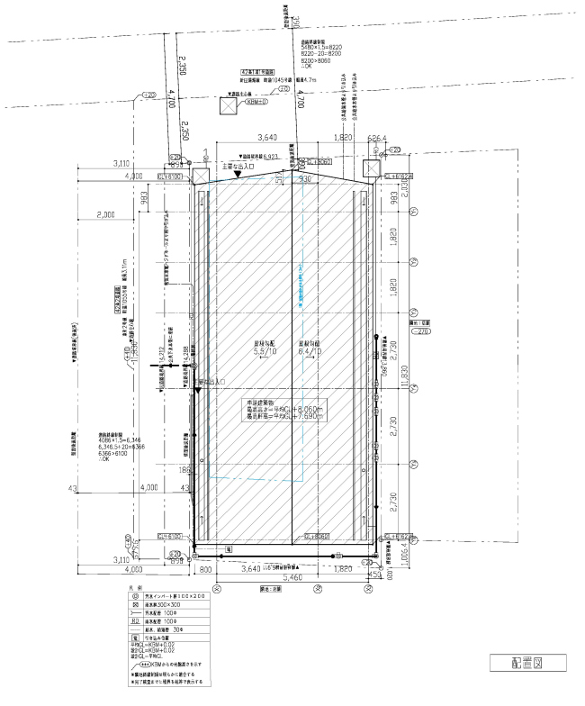
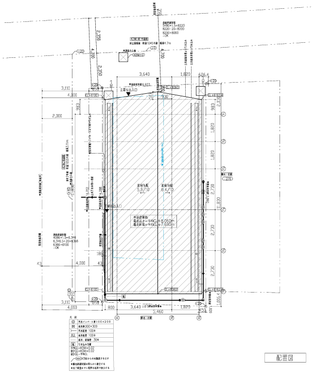
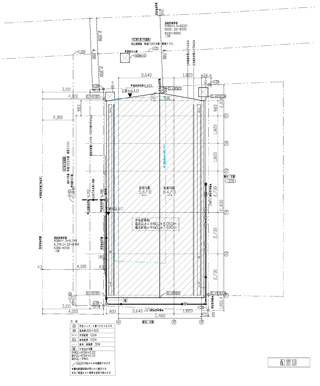
Рёкан «Кусацу Кимурая»
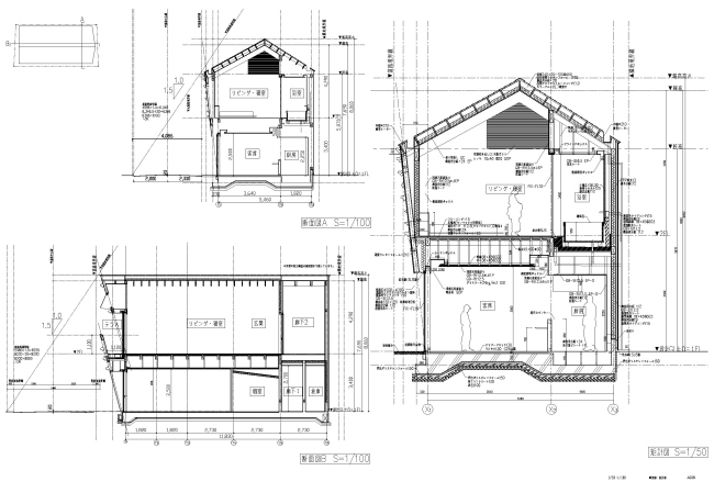
Рёкан «Кусацу Кимурая»
©︎ Kengo Kuma and Associates