Размещено на портале Архи.ру (www.archi.ru)

30.05.2022

Под Мадридом из контейнеров построен центр дрессировки собак, где ради биоразнообразия также живут птицы и летучие мыши

Алина Измайлова

Школа под названием Educan (с испанского можно перевести как «воспитывают» – именно так, в третьем лице), спроектированная архитекторами Энрике Эспиносой, основателем мадридского бюро Eeestudio, и независимым практиком и исследователем Лис Вильяльба, предназначена для домашних собак и их владельцев. Здесь четвероногие и их хозяева занимаются аджилити – «парным» видом спорта, – тренируются по системе шуцхунд и учатся правильно понимать  друг друга. Впрочем, собаки и люди – не единственные обитатели центра Educan.

Кинологический центр Educan
Кинологический центр Educan
Фото © José Hevia

Основу кинологического комплекса составляют шесть списанных 40-футовых контейнеров, его общая площадь – 300 м2. Центр расположен в 30 км от Мадрида – в местности, «испорченной» сельскохозяйственной деятельностью с применением пестицидов. Для восстановления природной среды архитекторы решили «поселить» рядом с собаками летучих мышей и птиц – для них в проекте предусмотрены специальные укрытия.
Кинологический центр Educan Фото © José Hevia
Кинологический центр Educan
Фото © José Hevia
Кинологический центр Educan Фото © José Hevia
Кинологический центр Educan
Фото © José Hevia
Кинологический центр Educan Фото © José Hevia
Кинологический центр Educan
Фото © José Hevia
Кинологический центр Educan Фото © José Hevia
Кинологический центр Educan
Фото © José Hevia
Кинологический центр Educan Фото © José Hevia
Кинологический центр Educan
Фото © José Hevia

Сегодня под одной крышей с двумя бельгийскими овчарками малинуа – ключевыми обитателями Educan – живут сова, семьи стрижей и пустельг и воробьи. Летучие мыши и мелкие птицы опыляют растения и поедают насекомых-переносчиков болезней, а хищные – держат под контролем популяцию грызунов. Гнезда для крупных птиц размещены в полости верхнего технического этажа; в объемных буквах, вывешенных со стороны южного фасада, живут летучие мыши. Вывеску как присаду также используют птицы. Участие воробьев в «экосистеме Educan» проектом не предусматривалось – они поселились самовольно, устроив себе домики в круглых отверстиях по краям контейнеров.
Кинологический центр Educan Фото © José Hevia
Кинологический центр Educan
Фото © José Hevia
Кинологический центр Educan Фото © José Hevia
Кинологический центр Educan
Фото © José Hevia
Кинологический центр Educan Фото © José Hevia
Кинологический центр Educan
Фото © José Hevia
Кинологический центр Educan Фото © José Hevia
Кинологический центр Educan
Фото © José Hevia
Кинологический центр Educan Фото © José Hevia
Кинологический центр Educan
Фото © José Hevia

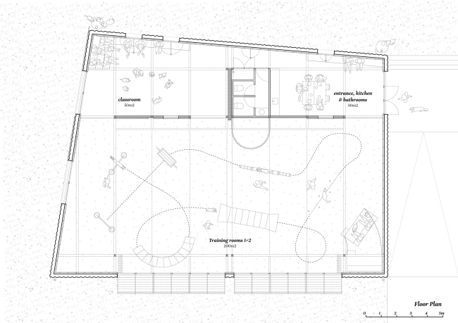
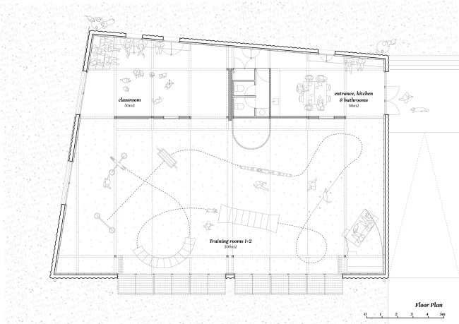
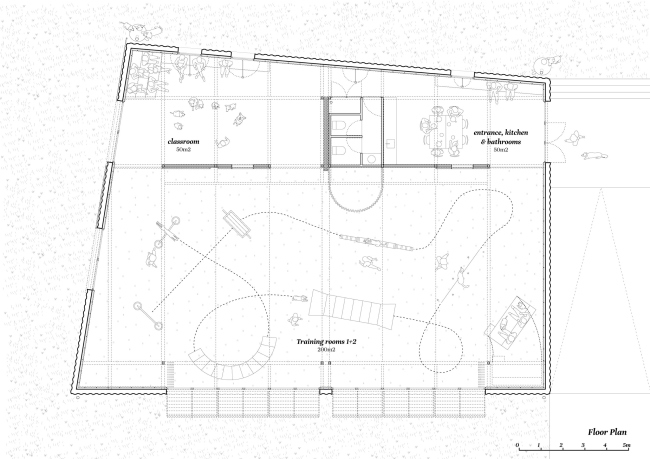
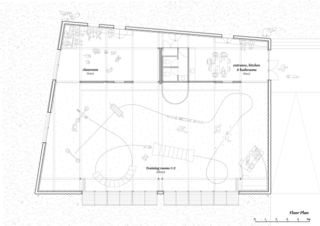
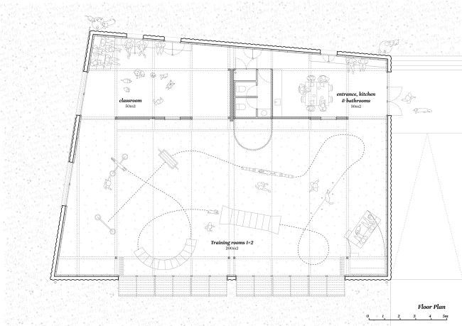
Внутри комплекс поделен на три зоны: вестибюль с кухней и санузлом, учебный класс, предназначенный для теоретических занятий, и зал для тренировок – это самое большое помещение в здании, с помощью перегородок его можно разбить на более мелкие.
Кинологический центр Educan Фото © José Hevia
Кинологический центр Educan
Фото © José Hevia
Кинологический центр Educan Фото © Javier de Paz García
Кинологический центр Educan
Фото © Javier de Paz García
Кинологический центр Educan Фото © José Hevia
Кинологический центр Educan
Фото © José Hevia
Кинологический центр Educan Фото © Javier de Paz García
Кинологический центр Educan
Фото © Javier de Paz García
Кинологический центр Educan Фото © José Hevia
Кинологический центр Educan
Фото © José Hevia
Кинологический центр Educan Фото © José Hevia
Кинологический центр Educan
Фото © José Hevia
Кинологический центр Educan Фото © José Hevia
Кинологический центр Educan
Фото © José Hevia
Кинологический центр Educan Фото © José Hevia
Кинологический центр Educan
Фото © José Hevia

Интерьер учитывает физиологические и поведенческие особенности собак. Так, линия зрения занижена и находится на высоте 0,5 м (а не привычных человеку 1,6 м), проемы наоборот увеличены, чтобы животные не отвлекались.
Кинологический центр Educan Фото © José Hevia
Кинологический центр Educan
Фото © José Hevia
Кинологический центр Educan Фото © José Hevia
Кинологический центр Educan
Фото © José Hevia
Кинологический центр Educan Фото © José Hevia
Кинологический центр Educan
Фото © José Hevia
Кинологический центр Educan Фото © José Hevia
Кинологический центр Educan
Фото © José Hevia
Кинологический центр Educan Фото © José Hevia
Кинологический центр Educan
Фото © José Hevia
Кинологический центр Educan Фото © José Hevia
Кинологический центр Educan
Фото © José Hevia
Кинологический центр Educan Фото © José Hevia
Кинологический центр Educan
Фото © José Hevia

Пол в учебном классе покрыт бетоном с заполнителем из речной гальки, в зале для тренировок можно раскатать рулоны с искусственным газоном из полиэтилентерефлатата (PTE) – считается, что эти материалы меньше всего вредят суставам и подушечкам лап четвероногих. Внутренняя поверхность стен обита пенополистиролом, минимизирующим эхо – собаки, как известно, громко лают. Жалюзи с южной стороны затеняют внутреннее пространство, оставляя при этом зазор, достаточный для свободного перемещения животных. 
Кинологический центр Educan Фото © José Hevia
Кинологический центр Educan
Фото © José Hevia
Кинологический центр Educan Фото © José Hevia
Кинологический центр Educan
Фото © José Hevia
Кинологический центр Educan Фото © José Hevia
Кинологический центр Educan
Фото © José Hevia

Предусмотрена система сбора дождевой воды: она хранится в открытой емкости, служащей поилкой.
Кинологический центр Educan Фото © José Hevia
Кинологический центр Educan
Фото © José Hevia
Кинологический центр Educan Фото © Javier de Paz García
Кинологический центр Educan
Фото © Javier de Paz García
Кинологический центр Educan Фото © Javier de Paz García
Кинологический центр Educan
Фото © Javier de Paz García
Кинологический центр Educan Фото © Javier de Paz García
Кинологический центр Educan
Фото © Javier de Paz García
Кинологический центр Educan Фото © Javier de Paz García
Кинологический центр Educan
Фото © Javier de Paz García
Кинологический центр Educan Фото © Javier de Paz García
Кинологический центр Educan
Фото © Javier de Paz García

Цветовая гамма «одомашнивает» конструкцию, состоящую преимущественно из компонентов с индустриальным прошлым, и визуально объединяет элементы, сделанные из материалов с различной фактурой.
Кинологический центр Educan
Кинологический центр Educan
Изображение © Enrique Espinosa (Eeestudio), Lys Villalba
Кинологический центр Educan
Кинологический центр Educan
Изображение © Enrique Espinosa (Eeestudio), Lys Villalba
Кинологический центр Educan
Кинологический центр Educan
Изображение © Enrique Espinosa (Eeestudio), Lys Villalba
Кинологический центр Educan
Кинологический центр Educan
Изображение © Enrique Espinosa (Eeestudio), Lys Villalba
Кинологический центр Educan
Кинологический центр Educan
Изображение © Enrique Espinosa (Eeestudio), Lys Villalba
Кинологический центр Educan
Кинологический центр Educan
Изображение © Enrique Espinosa (Eeestudio), Lys Villalba
Кинологический центр Educan
Кинологический центр Educan
Изображение © Enrique Espinosa (Eeestudio), Lys Villalba