Размещено на портале Архи.ру (www.archi.ru)

02.06.2022

Рейс в Мемфис

Объект:
Офис ГК «Самолет»
Адрес:
Россия, Москва. Ярцевская улица, 19
Мастерская:
IND

Для нового офиса группы компаний «Самолет» IND Architects выбрали стиль мемфис с характерными яркими цветами и геометричной мебелью. Пространство получилось гибким и насыщенным.

Описание предоставлено архитекторами

Группа компаний «Самолет» – одна из крупнейших корпораций в сфере девелопмента и property technologies. Новый офис площадью 2200 м2, удобный для гибридного графика, на который сотрудники перешли за последние два года, расположился в БЦ «Кунцево Плаза». Пространство рассчитано на работу 250 человек и подходит для разных форматов работы.
Офис ГК «Самолет»
Офис ГК «Самолет»
Фотография © Дмитрий Чебаненко / предоставлено IND Architects
Офис ГК «Самолет»
Офис ГК «Самолет»
Фотография © Дмитрий Чебаненко / предоставлено IND Architects
Офис ГК «Самолет»
Офис ГК «Самолет»
Фотография © Дмитрий Чебаненко / предоставлено IND Architects

Архитекторы запланировали большое количество зон, подходящих под разные рабочие задачи и настроение сотрудников – переговорные комнаты, Skype-комнаты, коворкинги и обособленные места – работать можно из любой удобной точки. Благодаря своей гибкости офис подстраивается под конкретные задачи проектных команд и позволяет сотрудникам самим выбирать комфортное место для работы. Центральная зона пространства имеет сложную форму, которая с каждого угла раскрывается по-разному, что существенно улучшает видовые характеристики пространства.
Офис ГК «Самолет» Фотография © Дмитрий Чебаненко / предоставлено IND Architects
Офис ГК «Самолет»
Фотография © Дмитрий Чебаненко / предоставлено IND Architects
Офис ГК «Самолет» Фотография © Дмитрий Чебаненко / предоставлено IND Architects
Офис ГК «Самолет»
Фотография © Дмитрий Чебаненко / предоставлено IND Architects
Офис ГК «Самолет» Фотография © Дмитрий Чебаненко / предоставлено IND Architects
Офис ГК «Самолет»
Фотография © Дмитрий Чебаненко / предоставлено IND Architects
Офис ГК «Самолет» Фотография © Дмитрий Чебаненко / предоставлено IND Architects
Офис ГК «Самолет»
Фотография © Дмитрий Чебаненко / предоставлено IND Architects
Офис ГК «Самолет» Фотография © Дмитрий Чебаненко / предоставлено IND Architects
Офис ГК «Самолет»
Фотография © Дмитрий Чебаненко / предоставлено IND Architects
Офис ГК «Самолет» Фотография © Дмитрий Чебаненко / предоставлено IND Architects
Офис ГК «Самолет»
Фотография © Дмитрий Чебаненко / предоставлено IND Architects
Офис ГК «Самолет» Фотография © Дмитрий Чебаненко / предоставлено IND Architects
Офис ГК «Самолет»
Фотография © Дмитрий Чебаненко / предоставлено IND Architects

Дизайн вдохновлен стилем «мемфис», который отличают яркие цвета и мебель со строгой геометрией. На фоне стен нейтрального серого цвета взгляд притягивает мягкая мебель медового, бирюзового и апельсинового оттенков, а также выполненные по авторским эскизам светильники. К айдентике бренда отсылают фирменные оттенки голубого и вытянутые овалы, которые легко угадываются в подвесных металлических светильниках, форме стойки ресепшн и маркерных покрытиях на стенах. 
Офис ГК «Самолет» Фотография © Дмитрий Чебаненко / предоставлено IND Architects
Офис ГК «Самолет»
Фотография © Дмитрий Чебаненко / предоставлено IND Architects
Офис ГК «Самолет» Фотография © Дмитрий Чебаненко / предоставлено IND Architects
Офис ГК «Самолет»
Фотография © Дмитрий Чебаненко / предоставлено IND Architects
Офис ГК «Самолет» Фотография © Дмитрий Чебаненко / предоставлено IND Architects
Офис ГК «Самолет»
Фотография © Дмитрий Чебаненко / предоставлено IND Architects
Офис ГК «Самолет» Фотография © Дмитрий Чебаненко / предоставлено IND Architects
Офис ГК «Самолет»
Фотография © Дмитрий Чебаненко / предоставлено IND Architects
Офис ГК «Самолет» Фотография © Дмитрий Чебаненко / предоставлено IND Architects
Офис ГК «Самолет»
Фотография © Дмитрий Чебаненко / предоставлено IND Architects
Офис ГК «Самолет» Фотография © Дмитрий Чебаненко / предоставлено IND Architects
Офис ГК «Самолет»
Фотография © Дмитрий Чебаненко / предоставлено IND Architects

Различные детали делают пространство многофункциональным. Например, перегородки служат не только элементами зонирования пространства, но и поверхностями, где можно писать маркером. Зона отдыха трансформируется в пространство для мозговых штурмов. Места с шумоизоляцией подходят не только для телефонных переговоров, но и для сосредоточенной индивидуальной работы.
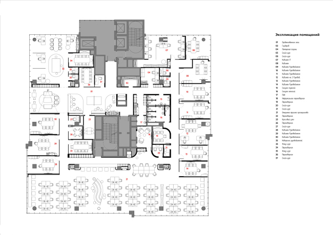
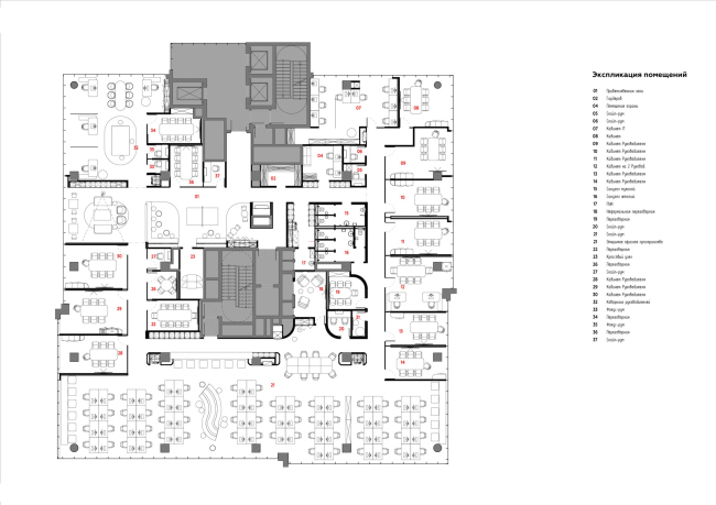
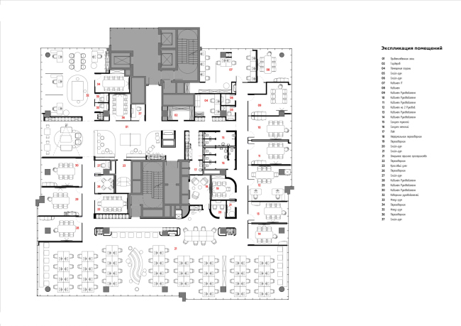
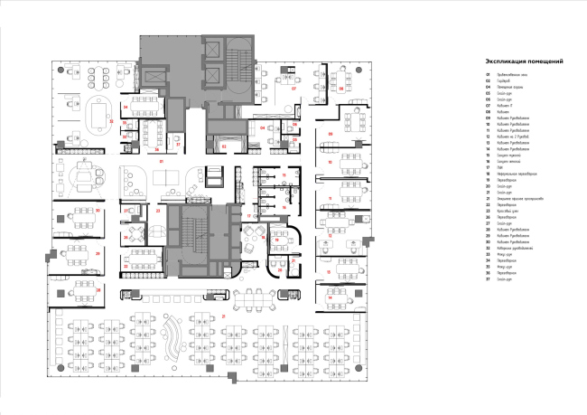
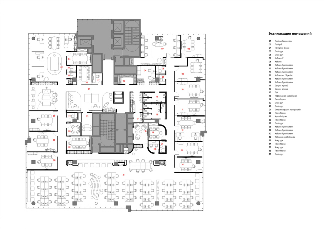
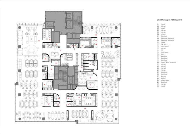
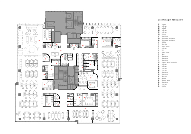
Офис ГК «Самолет». План 6 этажа
Офис ГК «Самолет». План 6 этажа
© IND Architects
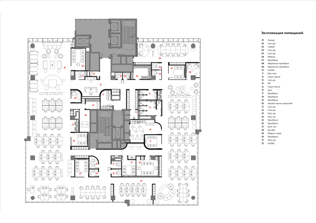
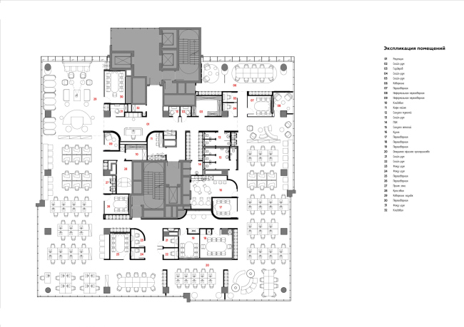
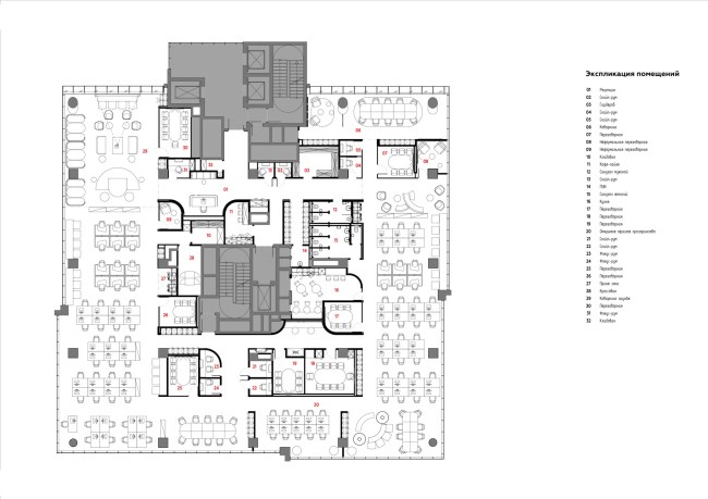
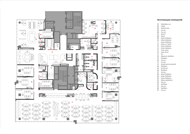
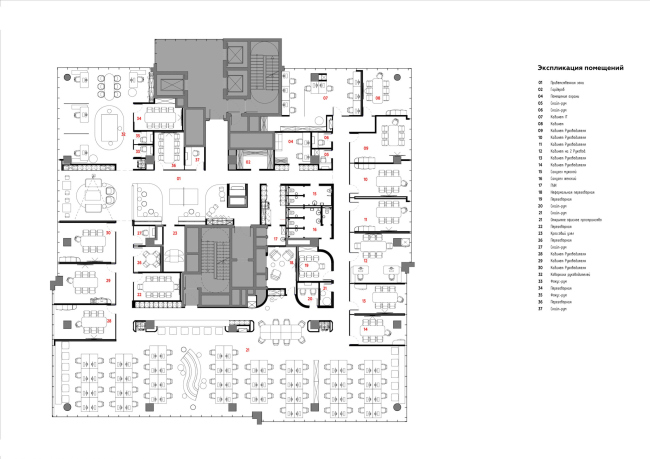
Офис ГК «Самолет». План 7 этажа
Офис ГК «Самолет». План 7 этажа
© IND Architects