Размещено на портале Архи.ру (www.archi.ru)

04.05.2022

По образцу 1950-х

Нина Фролова
Объект:
Жилой комплекс в Тулузе
Адрес:
Франция, None, Тулуза.
Мастерская:
CoBe Architecture et Paysage

Комплекс коммерческого и социального жилья в Тулузе по проекту парижского бюро CoBe.

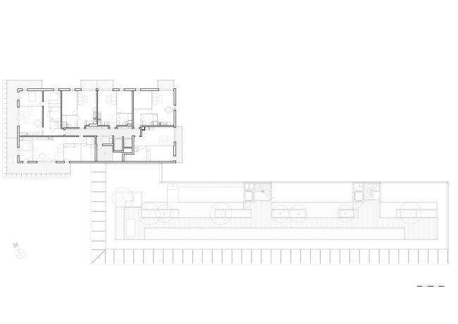
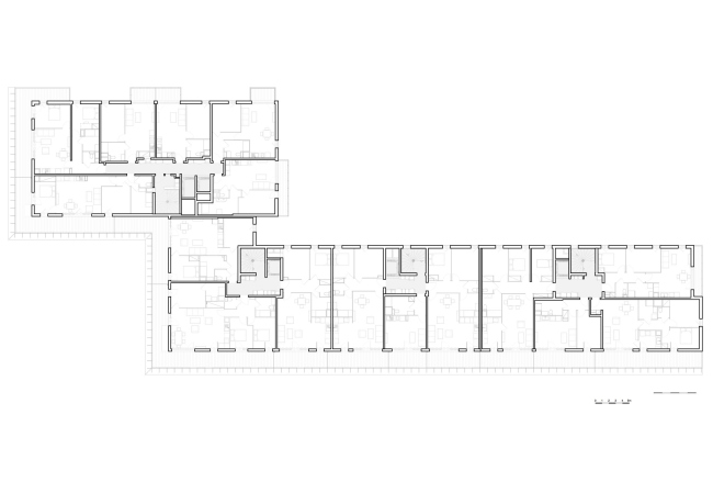
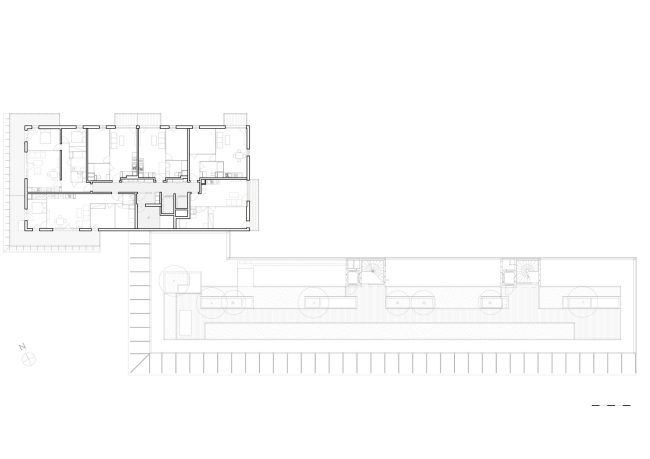
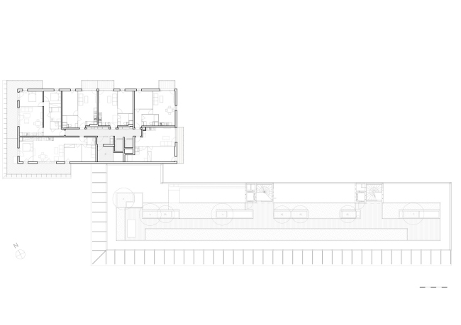
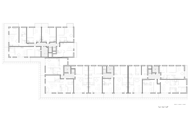
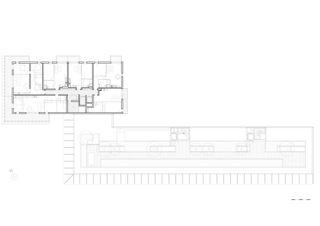
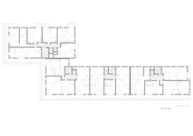
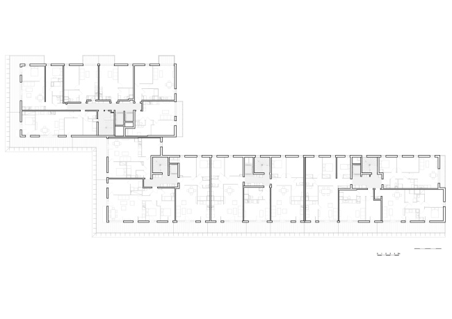
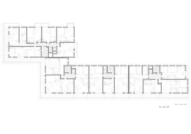
Район Эмпало на берегу Гаронны, недалеко от центра Тулузы, застраивался в 1950-е жилыми домами с обширными общественными зонами между ними. Теперь там начата реконструкция, и в ее рамках появился новый жилой комплекс на 110 квартир по проекту CoBe. Его общая площадь – 7624 м2, бюджет – 10,2 млн евро.
 

Жилой комплекс в Тулузе
Жилой комплекс в Тулузе
Фото © Cédric Colin
Жилой комплекс в Тулузе
Жилой комплекс в Тулузе
Фото © Cédric Colin
Жилой комплекс в Тулузе
Жилой комплекс в Тулузе
Фото © Cédric Colin

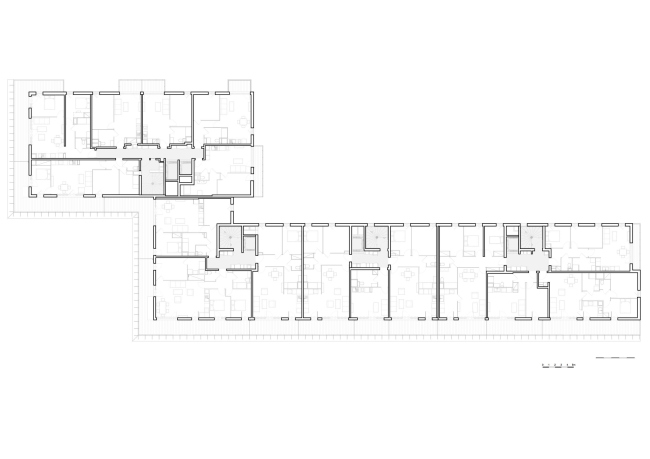
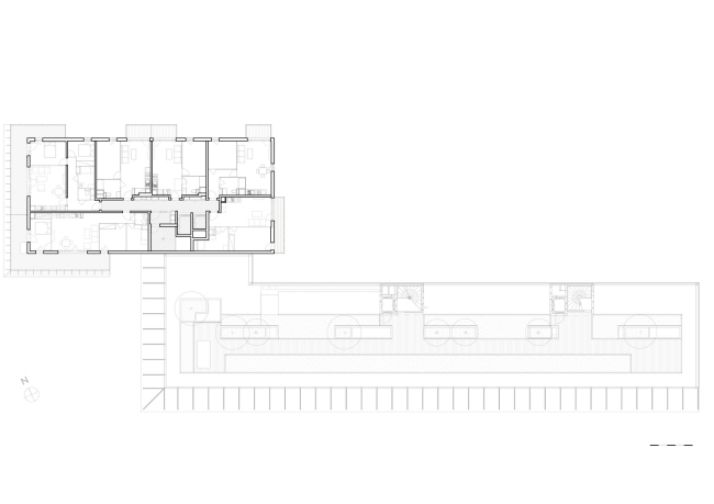
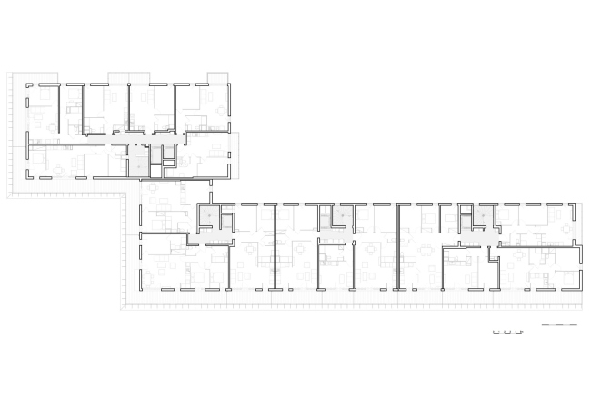
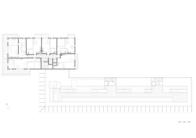
Архитекторы взяли за основу объемные характеристики существующей застройки, а также ее типичный белый цвет. В комплексе 90 коммерческих квартир и 20 социальных, размером от одной до пяти спален. В 12-этажной башне планировки значительно варьируются, в 5-этажном корпусе они одинаковы на всех этажах, причем квартиры выходят на обе стороны.
 
Жилой комплекс в Тулузе
Жилой комплекс в Тулузе
Фото © Cédric Colin
Жилой комплекс в Тулузе
Жилой комплекс в Тулузе
Фото © Cédric Colin
Жилой комплекс в Тулузе
Жилой комплекс в Тулузе
Фото © Cédric Colin

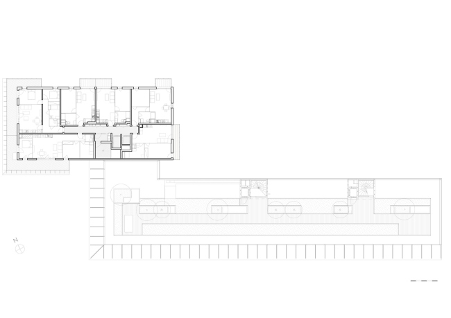
Первый ярус занимают «клуб» с раздевалкой для расположенного рядом футбольного поля и комнатой для собраний, и два помещения для Résilience Occitanie, региональной организации помощи детям с ограниченными возможностями. Также имеется 2-уровневый подземный гараж и зеленая терраса на крыше пятиэтажки с детским бассейном, деревянным помостом и солярием.
 
Жилой комплекс в Тулузе
Жилой комплекс в Тулузе
Фото © Cédric Colin
Жилой комплекс в Тулузе
Жилой комплекс в Тулузе
Фото © Cédric Colin
Жилой комплекс в Тулузе
Жилой комплекс в Тулузе
Фото © Cédric Colin

Особое внимание было уделено проблеме защиты от солнца. С юга и запада (футбольного поля и реки) на фасады выходят балконы-галереи шириной 2 метра: они не только обеспечивают тень, но и создают для жильцов полноценные «комнаты» на свежем воздухе. Верхние этажи закрыты навесом с сетчатым краем, что имитирует в солнечный день эффект пробивающихся сквозь листву лучей. С севера у башни балконы – обычные; туда выходят самые маленькие квартиры.
Жилой комплекс в Тулузе Фото © Cédric Colin
Жилой комплекс в Тулузе
Фото © Cédric Colin
Жилой комплекс в Тулузе Фото © Cédric Colin
Жилой комплекс в Тулузе
Фото © Cédric Colin
Жилой комплекс в Тулузе Фото © Cédric Colin
Жилой комплекс в Тулузе
Фото © Cédric Colin
Жилой комплекс в Тулузе Фото © Cédric Colin
Жилой комплекс в Тулузе
Фото © Cédric Colin
Жилой комплекс в Тулузе
Жилой комплекс в Тулузе
Фото © Cédric Colin
Жилой комплекс в Тулузе
Жилой комплекс в Тулузе
Фото © Cédric Colin
Жилой комплекс в Тулузе
Жилой комплекс в Тулузе
Фото © Cédric Colin
Жилой комплекс в Тулузе
Жилой комплекс в Тулузе
Фото © Cédric Colin
Жилой комплекс в Тулузе
Жилой комплекс в Тулузе
Фото © Cédric Colin
Жилой комплекс в Тулузе
Жилой комплекс в Тулузе
Фото © Cédric Colin
Жилой комплекс в Тулузе
Жилой комплекс в Тулузе
Фото © Cédric Colin
Жилой комплекс в Тулузе
Жилой комплекс в Тулузе
Фото © Cédric Colin
Жилой комплекс в Тулузе
Жилой комплекс в Тулузе
Фото © Cédric Colin
Жилой комплекс в Тулузе
Жилой комплекс в Тулузе
Фото © Cédric Colin
Жилой комплекс в Тулузе Фото © Cédric Colin
Жилой комплекс в Тулузе
Фото © Cédric Colin
Жилой комплекс в Тулузе Фото © Cédric Colin
Жилой комплекс в Тулузе
Фото © Cédric Colin
Жилой комплекс в Тулузе Фото © Cédric Colin
Жилой комплекс в Тулузе
Фото © Cédric Colin
Жилой комплекс в Тулузе Фото © Cédric Colin
Жилой комплекс в Тулузе
Фото © Cédric Colin
Жилой комплекс в Тулузе
Жилой комплекс в Тулузе
© CoBe Architecture et Paysage
Жилой комплекс в Тулузе
Жилой комплекс в Тулузе
© CoBe Architecture et Paysage
Жилой комплекс в Тулузе
Жилой комплекс в Тулузе
© CoBe Architecture et Paysage
Жилой комплекс в Тулузе
Жилой комплекс в Тулузе
© CoBe Architecture et Paysage