Размещено на портале Архи.ру (www.archi.ru)

27.04.2022

Заземленная структура

Нина Фролова
Объект:
Центр наук о Земле и окружающей среды
Адрес:
Германия, None, Тюбинген.
Мастерская:
KAAN Architecten

Центр наук о Земле и окружающей среды в Тюбингенском университете по проекту нидерландского бюро KAAN Architecten.

Постройки KAAN Architecten всегда стремится к ясности и точности форм, а еще к выверенному использованию материалов. Не стало исключением новое здание для университета города Тюбинген – одного из старейших и наиболее авторитетных в Германии. Оно появилось на территории кампуса Моргенштелле, на северной окраине города, рядом с покрытыми лесом возвышенностями. Кампус сам расположен на холме, откуда открываются виды Тюбингена. Он был основан в 1960-е годы, а его южную часть создали в наши дни, и четыре новых корпуса вокруг небольшой площади развивают модернистскую основу полувековой давности.
 

Центр наук о Земле и окружающей среды
Центр наук о Земле и окружающей среды
Фото © Brigida Gonzalez

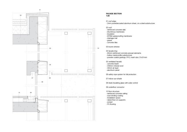
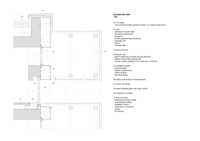
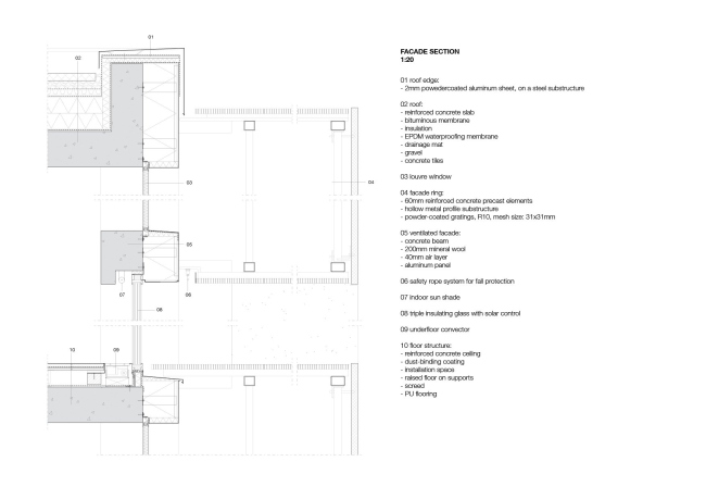
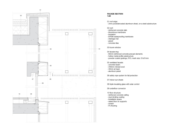
KAAN Architecten занимались сооружением, замыкающим кампус с юга, со стороны города – дальше начинаются склоны холма. Это Центр наук о Земле и окружающей среды, где размещены факультет наук о Земле и Институт грунтовой воды. По идее авторов проекта, их здание напоминает каменный блок, где высечены глубокие борозды, в которых видна стеклянная сердцевина. На самом деле, здание совсем не монолитно: якобы каменные выступы на самом деле облицованы бетонными и решетчатыми панелями, продолжая линию соседних зданий – старых и новых. В высоту и глубину они достигают двух метров, внутри находится вентиляционное оборудование и т. д. Эти выступы затеняют фасады, что позволило обойтись без внешних солнцезащитных экранов.
 
Центр наук о Земле и окружающей среды
Центр наук о Земле и окружающей среды
Фото © Brigida Gonzalez

Здание хорошо просматривается снаружи – особенно в сумерках, когда внутри горит свет. Этот эффект подчеркнут непрерывными лентами стекла, так как «каменные» выступы поддерживают стены жесткости, поставленные  снаружи и потому не нарушающие поверхность остекления.
 
Центр наук о Земле и окружающей среды
Центр наук о Земле и окружающей среды
Фото © Brigida Gonzalez

В здании два внутренних двора – более публичный северный, ближе к главному входу, и обращенный к зеленым склонам южный. Они облицованы камнем, любимым материалом KAAN Architecten, и демонстрируют аккуратную сетку окон. Это напоминание об историческом центре Тюбингена, где еще недавно располагались кабинеты исследователей и преподавателей, теперь выходящие в эти дворы. Северный расположен чуть выше южного, отвечая перепаду высот на участке.
 
Центр наук о Земле и окружающей среды
Центр наук о Земле и окружающей среды
Фото © Brigida Gonzalez

Также в здании есть поточная и семинарские аудитории, а еще – сгруппированные в два блока лаборатории, охватывающие с восточной стороны все шесть этажей. Снизу вверх темы исследований меняются от грубых к тонким материям, от помещений для изучения минералов до «чистых комнат».
 
Центр наук о Земле и окружающей среды
Центр наук о Земле и окружающей среды
Фото © Brigida Gonzalez

С севера расположен главный вход с прозрачным вестибюлем, где 7,5-метровые опоры разделены надвое по вертикали: это произведение искусства kunst am bau тюбингенского художника Мартина Бруно Шмида, который приглашает подумать над темой конструкции, несущей большую нагрузку. Здесь же помещена бетонная лестница скульптурных форм и места для занятий студентов.
 
Центр наук о Земле и окружающей среды
Центр наук о Земле и окружающей среды
Фото © Brigida Gonzalez

В интерьерах широко использована темная древесина каштана и архитектурный бетон.
Центр наук о Земле и окружающей среды
Центр наук о Земле и окружающей среды
Фото © Brigida Gonzalez
Центр наук о Земле и окружающей среды
Центр наук о Земле и окружающей среды
Фото © Brigida Gonzalez
Центр наук о Земле и окружающей среды
Центр наук о Земле и окружающей среды
Фото © Brigida Gonzalez
Центр наук о Земле и окружающей среды
Центр наук о Земле и окружающей среды
Фото © Brigida Gonzalez
Центр наук о Земле и окружающей среды
Центр наук о Земле и окружающей среды
Фото © Brigida Gonzalez
Центр наук о Земле и окружающей среды
Центр наук о Земле и окружающей среды
Фото © Brigida Gonzalez
Центр наук о Земле и окружающей среды
Центр наук о Земле и окружающей среды
Фото © Brigida Gonzalez
Центр наук о Земле и окружающей среды
Центр наук о Земле и окружающей среды
Фото © Brigida Gonzalez
Центр наук о Земле и окружающей среды
Центр наук о Земле и окружающей среды
Фото © Brigida Gonzalez
Центр наук о Земле и окружающей среды
Центр наук о Земле и окружающей среды
Фото © Brigida Gonzalez
Центр наук о Земле и окружающей среды
Центр наук о Земле и окружающей среды
Фото © Brigida Gonzalez
Центр наук о Земле и окружающей среды
Центр наук о Земле и окружающей среды
Фото © Brigida Gonzalez
Центр наук о Земле и окружающей среды
Центр наук о Земле и окружающей среды
Фото © Brigida Gonzalez
Центр наук о Земле и окружающей среды
Центр наук о Земле и окружающей среды
Фото © Brigida Gonzalez
Центр наук о Земле и окружающей среды
Центр наук о Земле и окружающей среды
Фото © Brigida Gonzalez
Центр наук о Земле и окружающей среды
Центр наук о Земле и окружающей среды
Фото © Brigida Gonzalez
Центр наук о Земле и окружающей среды
Центр наук о Земле и окружающей среды
Фото © Brigida Gonzalez
Центр наук о Земле и окружающей среды
Центр наук о Земле и окружающей среды
Фото © Brigida Gonzalez
Центр наук о Земле и окружающей среды
Центр наук о Земле и окружающей среды
Фото © Brigida Gonzalez
Центр наук о Земле и окружающей среды
Центр наук о Земле и окружающей среды
Фото © Brigida Gonzalez
Центр наук о Земле и окружающей среды
Центр наук о Земле и окружающей среды
Фото © Brigida Gonzalez
Центр наук о Земле и окружающей среды
Центр наук о Земле и окружающей среды
© KAAN Architecten
Центр наук о Земле и окружающей среды
Центр наук о Земле и окружающей среды
© KAAN Architecten
Центр наук о Земле и окружающей среды
Центр наук о Земле и окружающей среды
© KAAN Architecten
Центр наук о Земле и окружающей среды
Центр наук о Земле и окружающей среды
© KAAN Architecten
Центр наук о Земле и окружающей среды
Центр наук о Земле и окружающей среды
© KAAN Architecten
Центр наук о Земле и окружающей среды
Центр наук о Земле и окружающей среды
© KAAN Architecten
Центр наук о Земле и окружающей среды
Центр наук о Земле и окружающей среды
© KAAN Architecten
Центр наук о Земле и окружающей среды
Центр наук о Земле и окружающей среды
© KAAN Architecten
Центр наук о Земле и окружающей среды
Центр наук о Земле и окружающей среды
© KAAN Architecten
Центр наук о Земле и окружающей среды
Центр наук о Земле и окружающей среды
© KAAN Architecten
Центр наук о Земле и окружающей среды
Центр наук о Земле и окружающей среды
© KAAN Architecten
Центр наук о Земле и окружающей среды
Центр наук о Земле и окружающей среды
© KAAN Architecten
Центр наук о Земле и окружающей среды
Центр наук о Земле и окружающей среды
© KAAN Architecten
Центр наук о Земле и окружающей среды
Центр наук о Земле и окружающей среды
© KAAN Architecten