Размещено на портале Архи.ру (www.archi.ru)

20.04.2022

Фуксия под вуалью

Нина Фролова
Объект:
Башня Heungkuk
Адрес:
Южная Корея, None, Пусан.
Мастерская:
Mecanoo

Здание страховой компании Heungkuk в Пусане по проекту Mecanoo.

Орнаментальный фасад офисной башни недалеко от порта Пусана – не только отличительный признак этого сооружения в плотной застройке второго по величине города Южной Кореи, но также способ защиты от солнца. Ажурная оболочка, похожая на кружевную вуаль, фильтрует яркий солнечный свет, не давая ему перегреть интерьеры.
 

Башня Heungkuk
Башня Heungkuk
Фото © Kyungsub Shin

За этой «вуалью» черные и ярко-розовые – в цвет логотипа Heungkuk – участки фасада кажутся таинственной игрой света, а не просто тонированным стеклом.
 
Башня Heungkuk
Башня Heungkuk
Фото © Kyungsub Shin

В темное время суток, когда в здании включается свет, узор на фасаде выглядит иначе – контрастно.
 
Башня Heungkuk
Башня Heungkuk
Фото © Kyungsub Shin

В башне 20 000 м2 офисных площадей, которые занимает Heungkuk и компании-арендаторы, а также терраса на крыше, где сотрудники могут отдохнуть от трудов.
Башня Heungkuk
Башня Heungkuk
Фото © Kyungsub Shin
Башня Heungkuk Фото ©  Kyungsub Shin
Башня Heungkuk
Фото © Kyungsub Shin
Башня Heungkuk Фото ©  Kyungsub Shin
Башня Heungkuk
Фото © Kyungsub Shin
Башня Heungkuk Фото ©  Kyungsub Shin
Башня Heungkuk
Фото © Kyungsub Shin
Башня Heungkuk
Башня Heungkuk
Фото © Kyungsub Shin
Башня Heungkuk Фото ©  Kyungsub Shin
Башня Heungkuk
Фото © Kyungsub Shin
Башня Heungkuk Фото ©  Kyungsub Shin
Башня Heungkuk
Фото © Kyungsub Shin
Башня Heungkuk Фото ©  Kyungsub Shin
Башня Heungkuk
Фото © Kyungsub Shin
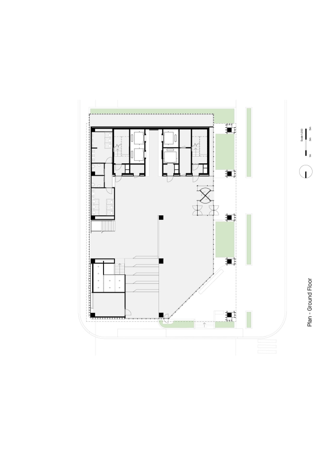
Башня Heungkuk
Башня Heungkuk
© Mecanoo
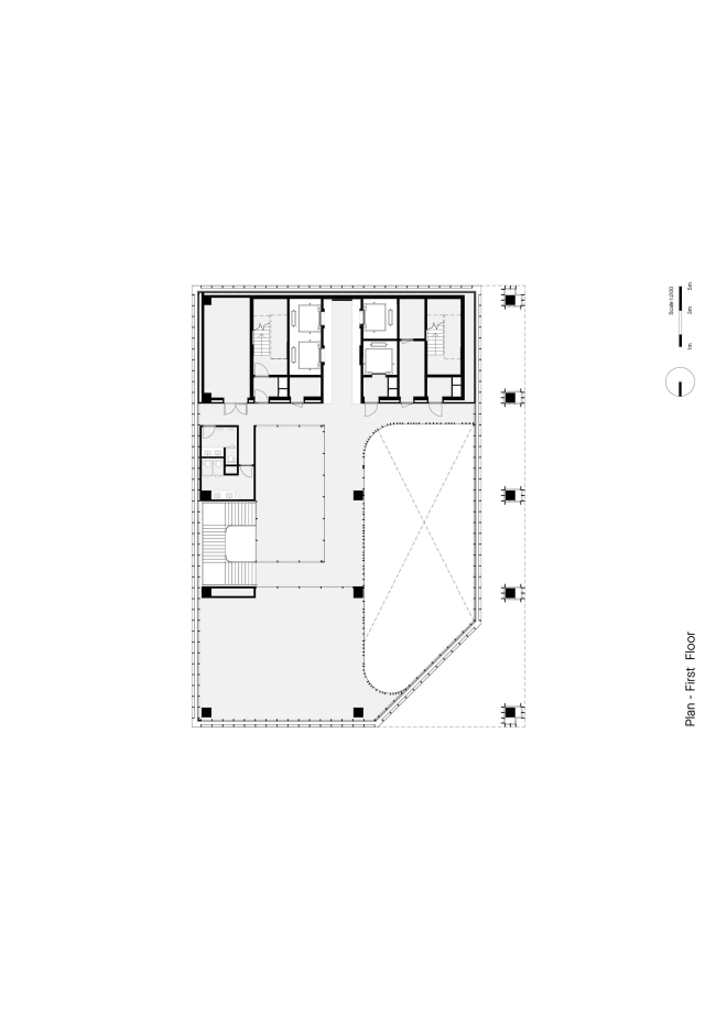
Башня Heungkuk
Башня Heungkuk
© Mecanoo
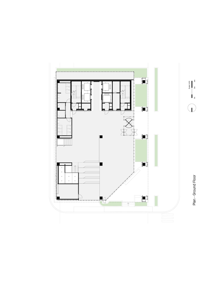
Башня Heungkuk
Башня Heungkuk
© Mecanoo
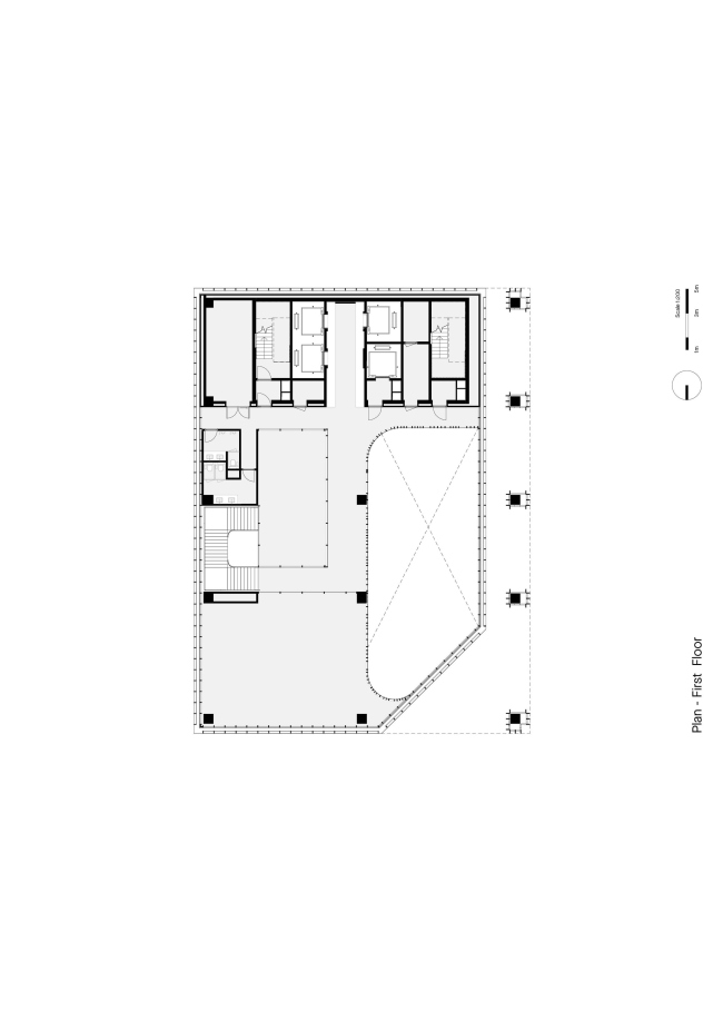
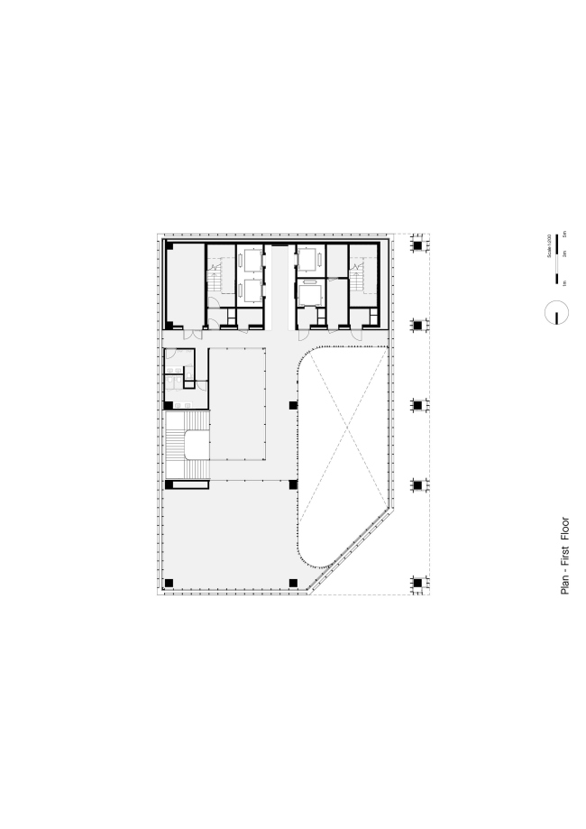
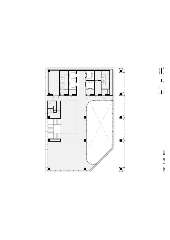
Башня Heungkuk
Башня Heungkuk
© Mecanoo
Башня Heungkuk
Башня Heungkuk
© Mecanoo