Размещено на портале Архи.ру (www.archi.ru)

28.03.2022

Компактный кампус

Нина Фролова
Объект:
Кампус Университетского колледжа VIA в Хорсенсе
Адрес:
Дания, None, Хорсенс.
Мастерская:
C. F. Møller

Новый комплекс Университетского колледжа VIA в датском Хорсенсе по проекту бюро C.F. Møller Architects.

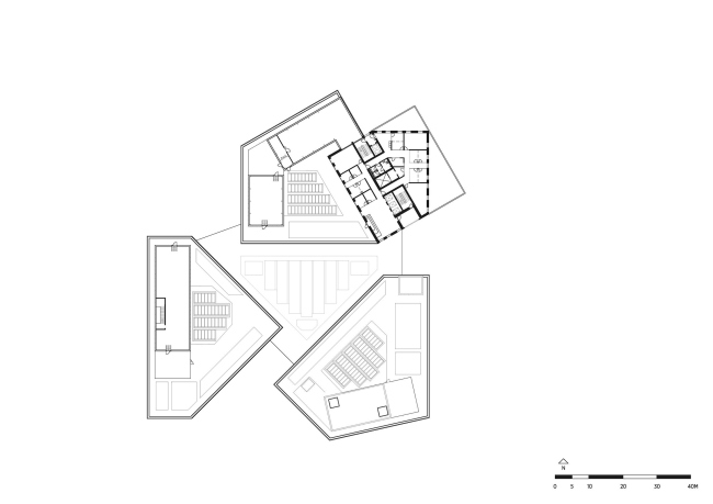
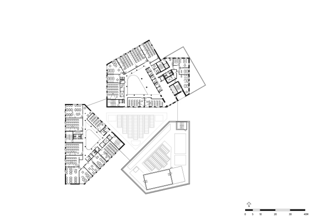
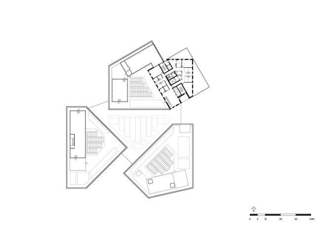
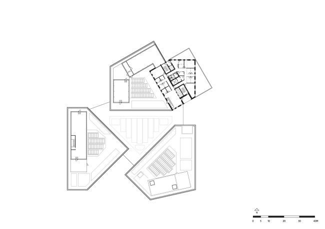
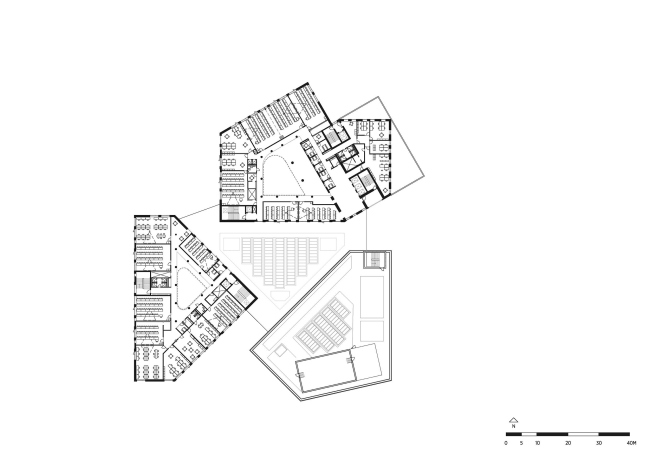
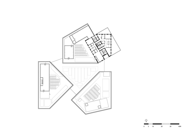
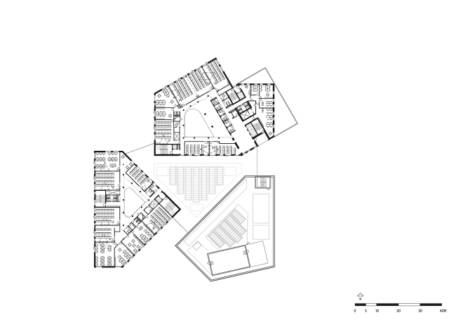
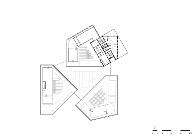
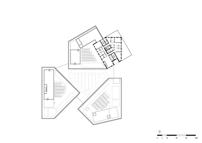
Новый кампус главного вуза Хорсенса занял квартал бывшей промзоны недалеко от исторического центра. Его самая заметная часть – 16-этажная башня Innovation House (68 м), ставшая самым высоким зданием в городе. Восемь ее верхних этажей занято Датским строительным центром с офисами солидных компаний и стартапов. Такое соседство со «взрослыми» позволило внести разнообразие в жизнь вуза, открыть его городу. Кстати, студенческие кафе и столовая доступны и местным жителям.
 

C.F. Møller Architects
C.F. Møller Architects
Фото © Adam Mørk

Образовательная нижняя часть башни и два остальных здания VIA представляют собой невысокие атриумные корпуса, а соединяет их еще один, общий атриум. Разделение на три части соответствует разным факультетам и курсам, но одновременно обилие зон для общения и совместных занятий делает образовательную среду особенно «плодородной».
 
C.F. Møller Architects
C.F. Møller Architects
Фото © Adam Mørk

Важно также зонирование по высоте: более «шумные» общественные пространства расположены на нижних ярусах, а выше можно индивидуально заниматься в тишине.
 
C.F. Møller Architects
C.F. Møller Architects
Фото © Adam Mørk

Атмосферу определяют обилие светлых поверхностей, яркий стеклянный потолок атриума по проекту мэтра французского современного искусства Даниеля Бёрена, кирпич рыжих и золотистых тонов, древесина дуба.
 
C.F. Møller Architects
C.F. Møller Architects
Фото © Adam Mørk

Кампус сделан проницаемым – в отличие от своего предшественника, замкнутого индустриального квартала, но не менее компактным. Такое решение позволило сократить любые маршруты студентов, преподавателей и обслуживающего персонала, а также поверхности фасада, тем самым сэкономив не только строительные материалы, но и затраты на отопление и охлаждение помещений.
C.F. Møller Architects
C.F. Møller Architects
Фото © Adam Mørk
C.F. Møller Architects
C.F. Møller Architects
Фото © Adam Mørk
C.F. Møller Architects
C.F. Møller Architects
Фото © Adam Mørk
C.F. Møller Architects
C.F. Møller Architects
Фото © Adam Mørk
C.F. Møller Architects
C.F. Møller Architects
Фото © Adam Mørk
C.F. Møller Architects
C.F. Møller Architects
Фото © Adam Mørk
C.F. Møller Architects
C.F. Møller Architects
Фото © Adam Mørk
C.F. Møller Architects
C.F. Møller Architects
Фото © Adam Mørk
C.F. Møller Architects
C.F. Møller Architects
Фото © Adam Mørk
C.F. Møller Architects Фото © Adam Mørk
C.F. Møller Architects
Фото © Adam Mørk
C.F. Møller Architects Фото © Adam Mørk
C.F. Møller Architects
Фото © Adam Mørk
C.F. Møller Architects Фото © Adam Mørk
C.F. Møller Architects
Фото © Adam Mørk
C.F. Møller Architects Фото © Adam Mørk
C.F. Møller Architects
Фото © Adam Mørk
C.F. Møller Architects Фото © Adam Mørk
C.F. Møller Architects
Фото © Adam Mørk
C.F. Møller Architects Фото © Adam Mørk
C.F. Møller Architects
Фото © Adam Mørk
C.F. Møller Architects Фото © Adam Mørk
C.F. Møller Architects
Фото © Adam Mørk
C.F. Møller Architects Фото © Adam Mørk
C.F. Møller Architects
Фото © Adam Mørk
C.F. Møller Architects Фото © Adam Mørk
C.F. Møller Architects
Фото © Adam Mørk
C.F. Møller Architects
C.F. Møller Architects
Фото © Adam Mørk
C.F. Møller Architects
C.F. Møller Architects
Фото © Adam Mørk
C.F. Møller Architects
C.F. Møller Architects
Фото © Adam Mørk
C.F. Møller Architects
C.F. Møller Architects
Фото © Adam Mørk
C.F. Møller Architects
C.F. Møller Architects
Фото © Adam Mørk
C.F. Møller Architects
C.F. Møller Architects
Фото © Adam Mørk
C.F. Møller Architects
C.F. Møller Architects
Фото © Adam Mørk
C.F. Møller Architects
C.F. Møller Architects
Фото © Adam Mørk
C.F. Møller Architects
C.F. Møller Architects
Фото © Adam Mørk
C.F. Møller Architects © C.F. Møller Architects
C.F. Møller Architects
© C.F. Møller Architects
C.F. Møller Architects © C.F. Møller Architects
C.F. Møller Architects
© C.F. Møller Architects
C.F. Møller Architects © C.F. Møller Architects
C.F. Møller Architects
© C.F. Møller Architects
C.F. Møller Architects © C.F. Møller Architects
C.F. Møller Architects
© C.F. Møller Architects
C.F. Møller Architects © C.F. Møller Architects
C.F. Møller Architects
© C.F. Møller Architects
C.F. Møller Architects © C.F. Møller Architects
C.F. Møller Architects
© C.F. Møller Architects
C.F. Møller Architects © C.F. Møller Architects
C.F. Møller Architects
© C.F. Møller Architects
C.F. Møller Architects © C.F. Møller Architects
C.F. Møller Architects
© C.F. Møller Architects
C.F. Møller Architects © C.F. Møller Architects
C.F. Møller Architects
© C.F. Møller Architects
C.F. Møller Architects © C.F. Møller Architects
C.F. Møller Architects
© C.F. Møller Architects
C.F. Møller Architects © C.F. Møller Architects
C.F. Møller Architects
© C.F. Møller Architects
C.F. Møller Architects
C.F. Møller Architects
© C.F. Møller Architects
C.F. Møller Architects
C.F. Møller Architects
© C.F. Møller Architects
C.F. Møller Architects
C.F. Møller Architects
© C.F. Møller Architects
C.F. Møller Architects
C.F. Møller Architects
© C.F. Møller Architects
C.F. Møller Architects
C.F. Møller Architects
© C.F. Møller Architects
C.F. Møller Architects
C.F. Møller Architects
© C.F. Møller Architects
C.F. Møller Architects
C.F. Møller Architects
© C.F. Møller Architects
C.F. Møller Architects
C.F. Møller Architects
© C.F. Møller Architects
C.F. Møller Architects
C.F. Møller Architects
© C.F. Møller Architects
C.F. Møller Architects
C.F. Møller Architects
© C.F. Møller Architects
C.F. Møller Architects
C.F. Møller Architects
© C.F. Møller Architects
C.F. Møller Architects
C.F. Møller Architects
© C.F. Møller Architects
C.F. Møller Architects
C.F. Møller Architects
© C.F. Møller Architects