Размещено на портале Архи.ру (www.archi.ru)

18.03.2022

Где создают поп-идолов?

Анна Старостина
Объект:
Штаб-квартира продюсерской компании YG Entertainment
Адрес:
Южная Корея, None, Сеул.
Мастерская:
UNS – United Network Studio
Авторский коллектив:
Ben van Berkel, Astrid Piber, Marc Salemink, Tiia Vahula, Hyoseon Park, Paul Challis

В Сеуле открылась штаб-квартира крупной продюсерской компании YG Entertainment. Архитекторы UNStudio называют спроектированный ими объект «городским оратором», транслирующим внутренние процессы в окружающее пространство.

Страсть к поп-музыке породила в Южной Корее отдельную динамичную и красочную субкультуру, завоевавшую уже миллионы фанатов во всем мире – K-pop. В 2017 работающая в этой активно развивающейся области продюсерская компания YG Entertainment обратилась к архитекторам нидерландского бюро UNStudio с просьбой разработать проект своей новой штаб-квартиры в Сеуле. Конечно же, новое здание, расположенное в центральной части города, на берегу реки Ханган стало символом и своеобразной квинтэссенцией всех ценностей K-pop.

Штаб-квартира продюсерской компании YG Entertainment
Штаб-квартира продюсерской компании YG Entertainment
Фотография © Rohspace / предоставлена UNStudio
Штаб-квартира продюсерской компании YG Entertainment
Штаб-квартира продюсерской компании YG Entertainment
Фотография © Rohspace / предоставлена UNStudio
Штаб-квартира продюсерской компании YG Entertainment
Штаб-квартира продюсерской компании YG Entertainment
Фотография © Rohspace / предоставлена UNStudio

Новый объем возник рядом со старым зданием штаб-квартиры компании в непростом фрагменте городской среды. С одной стороны с участком соседствует жилой район, с другой его ограничивает большая и сложно организованная дорожная развязка. При этом соседними парковыми зонами и собственно с поверхностью воды здание также активно взаимодействует. На формальном уровне за диалог отвечают уже первый застекленный этаж и выступающие фрагменты озеленения.
Штаб-квартира продюсерской компании YG Entertainment
Штаб-квартира продюсерской компании YG Entertainment
Фотография © Rohspace / предоставлена UNStudio
Штаб-квартира продюсерской компании YG Entertainment
Штаб-квартира продюсерской компании YG Entertainment
Фотография © Rohspace / предоставлена UNStudio
Штаб-квартира продюсерской компании YG Entertainment
Штаб-квартира продюсерской компании YG Entertainment
Фотография © Rohspace / предоставлена UNStudio
Штаб-квартира продюсерской компании YG Entertainment
Штаб-квартира продюсерской компании YG Entertainment
Фотография © Rohspace / предоставлена UNStudio

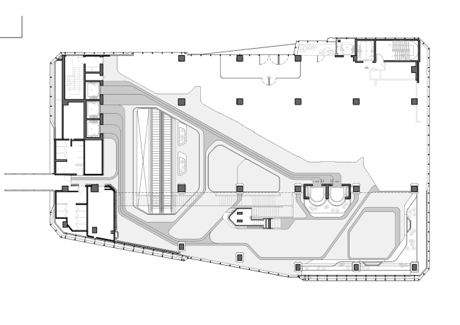
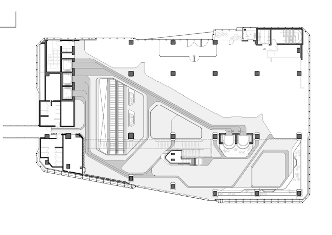
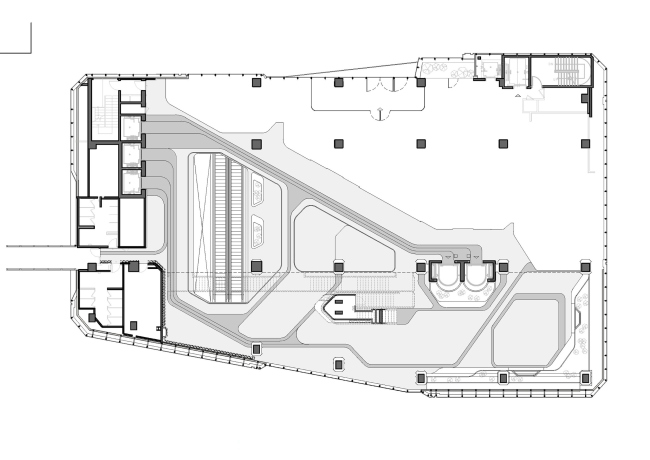
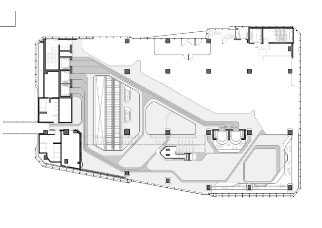
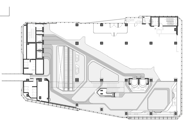
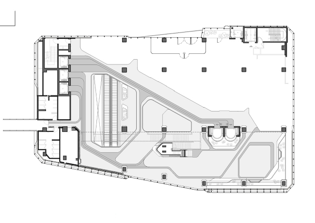
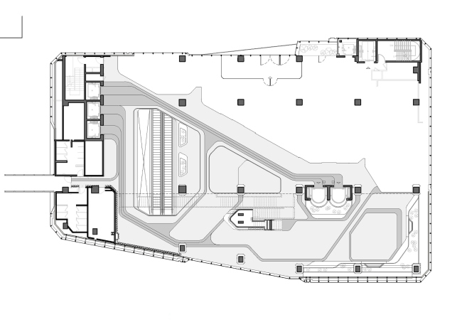
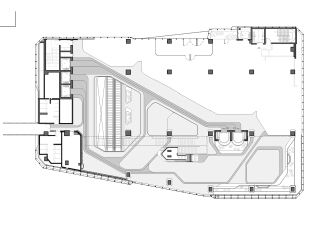
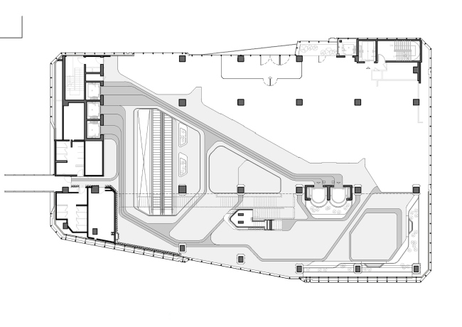
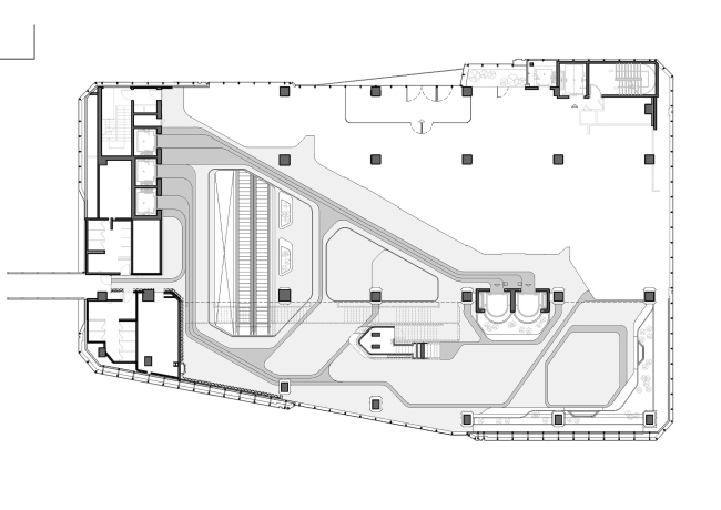
Старое здание, представляющее собой бруталистский объем с элементами из открытого бетона, продолжает функционировать, именно оно продиктовало расположение и высоту нового городского объекта. Главным коммуникационным пространством стал застекленный световой атриум, расположенный в центре и объединяющий все функциональные части. В нижней его части расположена гостеприимная зеленая зона. На первых четырех этажах в атриум выступают «капсулы» застекленных переговорных. Линейная подсветка и цифровая маркировка облегчают ориентацию в этом сложно организованном, геометризованном пространстве. Собственно рабочие места расположены со стороны парка, так что сотрудники получают удовольствие от отличных видов и не страдают от недостатка солнечного света.
Штаб-квартира продюсерской компании YG Entertainment
Штаб-квартира продюсерской компании YG Entertainment
Фотография © Rohspace / предоставлена UNStudio
Штаб-квартира продюсерской компании YG Entertainment Фотография © Rohspace / предоставлена UNStudio
Штаб-квартира продюсерской компании YG Entertainment
Фотография © Rohspace / предоставлена UNStudio
Штаб-квартира продюсерской компании YG Entertainment Фотография © Rohspace / предоставлена UNStudio
Штаб-квартира продюсерской компании YG Entertainment
Фотография © Rohspace / предоставлена UNStudio
Штаб-квартира продюсерской компании YG Entertainment Фотография © Rohspace / предоставлена UNStudio
Штаб-квартира продюсерской компании YG Entertainment
Фотография © Rohspace / предоставлена UNStudio
Штаб-квартира продюсерской компании YG Entertainment Фотография © Rohspace / предоставлена UNStudio
Штаб-квартира продюсерской компании YG Entertainment
Фотография © Rohspace / предоставлена UNStudio

Внешний вид здания довольно четко отражает его прихотливое внутреннее устройство. Центральное пространство атриума полностью застеклено, и при этом оборудовано дополнительными балкончиками, служащими одновременно защитой от солнца. В южный фасад и крышу интегрированы также фотогальванические элементы.
Штаб-квартира продюсерской компании YG Entertainment
Штаб-квартира продюсерской компании YG Entertainment
Фотография © Rohspace / предоставлена UNStudio
Штаб-квартира продюсерской компании YG Entertainment
Штаб-квартира продюсерской компании YG Entertainment
Фотография © Rohspace / предоставлена UNStudio

В боковых частях здания сочетаются стекло со сплошными и перфорированными алюминиевыми панелями. Фрагменты разной внешней отделки очерчены резкими линиями и соответствуют функциональными зонам офисного пространства. Особенно эффектно здание выглядит в темное время суток, когда сложно-сочиненная композиция объемов подсвечивается, превращаясь в привлекательный, хорошо заметный городской маяк.
Штаб-квартира продюсерской компании YG Entertainment
Штаб-квартира продюсерской компании YG Entertainment
© UNStudio
Штаб-квартира продюсерской компании YG Entertainment
Штаб-квартира продюсерской компании YG Entertainment
© UNStudio
Штаб-квартира продюсерской компании YG Entertainment
Штаб-квартира продюсерской компании YG Entertainment
© UNStudio
Штаб-квартира продюсерской компании YG Entertainment © UNStudio
Штаб-квартира продюсерской компании YG Entertainment
© UNStudio
Штаб-квартира продюсерской компании YG Entertainment © UNStudio
Штаб-квартира продюсерской компании YG Entertainment
© UNStudio
Штаб-квартира продюсерской компании YG Entertainment © UNStudio
Штаб-квартира продюсерской компании YG Entertainment
© UNStudio
Штаб-квартира продюсерской компании YG Entertainment © UNStudio
Штаб-квартира продюсерской компании YG Entertainment
© UNStudio
Штаб-квартира продюсерской компании YG Entertainment © UNStudio
Штаб-квартира продюсерской компании YG Entertainment
© UNStudio
Штаб-квартира продюсерской компании YG Entertainment © UNStudio
Штаб-квартира продюсерской компании YG Entertainment
© UNStudio