Размещено на портале Архи.ру (www.archi.ru)

11.02.2022

Пушки замолчали

Нина Фролова
Объект:
Здание Института политических наук Sciences Po
Адрес:
Франция, None, Париж.
Мастерская:
Moreau Kusunoki Architectes
Авторский коллектив:
Wilmotte & Associés (coordination) Moreau Kusunoki Pierre Bortolussi (heritage)

В бывшем монастыре, позже занятом пушечно-литейными мастерскими, теперь расположился Институт политических наук Sciences Po. Авторы реконструкции в центре Парижа – бюро Moreau Kusunoki.

Так называемый Отель де л’Артиллери стоит на левом берегу Сены в окружении исторических религиозных, научных и учебных заведений, от древнего аббатства Сен-Жермен-де-Пре до Института Франции. Изначально он был доминиканским монастырем, который после Французской революции отдали под оружейное производство. Долгие годы здесь не только отливали пушки, но и вели сопутствующие химические исследования, а также собирали коллекцию исторических орудий, позже переданную в Дом Инвалидов. Военные занимали комплекс вплоть до 2010, но в Новейшее время это уже были административные подразделения Министерства обороны, а не мастерские.
 

Здание Института политических наук Sciences Po
Здание Института политических наук Sciences Po
Фото © Maris Mezulis – Moreau Kusunoki
Здание Института политических наук Sciences Po
Здание Института политических наук Sciences Po
Фото © Maris Mezulis – Moreau Kusunoki

Основанный в XIX веке Институт политических наук, ныне называющийся Sciences Po, еще недавно находился неподалеку, на улице Сен-Гийом. В 2016 он приобрел пустовавший Отель де л’Артиллери, в 2017 провел конкурс на его реконструкцию, а в этом году туда въехали студенты и преподаватели. Moreau Kusunoki, известные как победители конкурса на проект музея Гуггенхайма в Хельсинки, занялись новыми частями комплекса, а Жан-Мишель Вильмотт – общей координацией проекта, включавшего также приспособление его исторических частей под новое использование. Общий бюджет проекта – 42 млн евро.
 
Здание Института политических наук Sciences Po
Здание Института политических наук Sciences Po
Фото © Maris Mezulis – Moreau Kusunoki
Здание Института политических наук Sciences Po Фото © Maris Mezulis – Moreau Kusunoki
Здание Института политических наук Sciences Po
Фото © Maris Mezulis – Moreau Kusunoki
Здание Института политических наук Sciences Po Фото © Maris Mezulis – Moreau Kusunoki
Здание Института политических наук Sciences Po
Фото © Maris Mezulis – Moreau Kusunoki
Здание Института политических наук Sciences Po Фото © Maris Mezulis – Moreau Kusunoki
Здание Института политических наук Sciences Po
Фото © Maris Mezulis – Moreau Kusunoki
Здание Института политических наук Sciences Po Фото © Maris Mezulis – Moreau Kusunoki
Здание Института политических наук Sciences Po
Фото © Maris Mezulis – Moreau Kusunoki

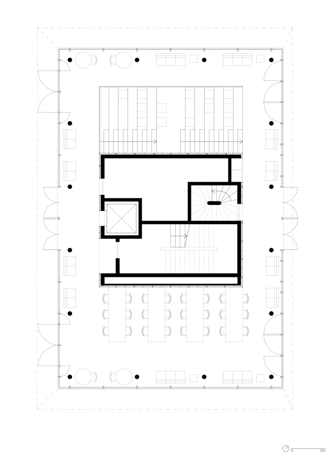
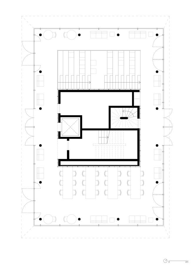
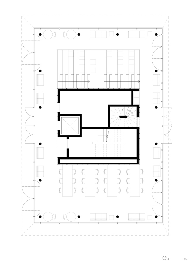
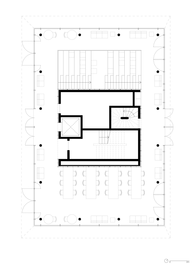
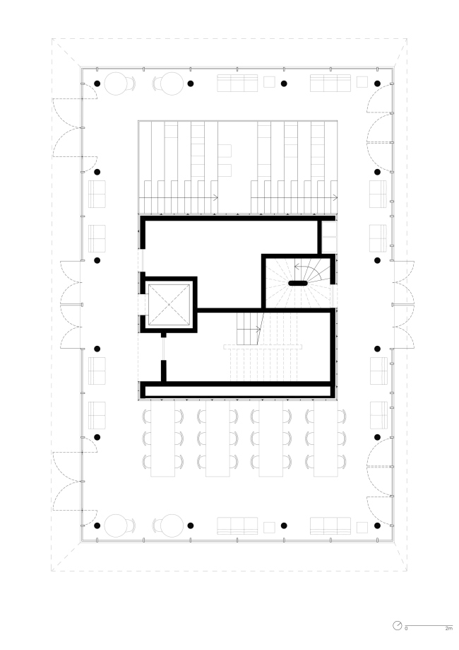
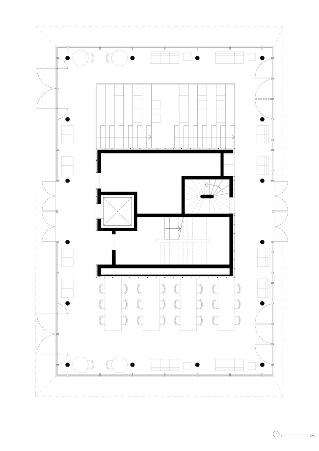
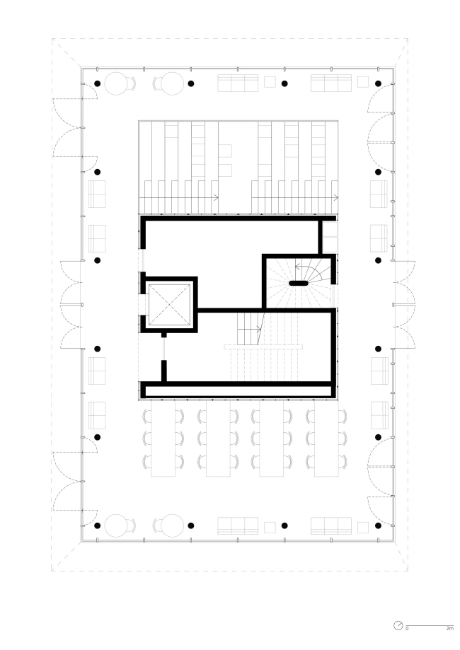
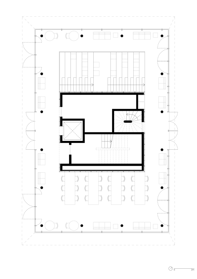
Главная современная часть кампуса Sciences Po – остекленный «павильон», хотя работы охватили все три двора исторического комплекса. Первый этаж нового здания, как и цокольный, вмещает студенческую столовую. Причем оба выходят на свежий воздух и могут быть связаны с окружением с помощью окон с поворотным механизмом. Первый ярус открыт на террасу, а нижний – во двор, где плавно поднимающиеся озелененные и мощеные ступени скрывают под собой библиотеку. Ее верхние этажи обращены во двор с противоположной павильону стороны, а боковые стороны заняты помещениями для исследовательской работы и выставочным залом, соответственно.
 
Здание Института политических наук Sciences Po
Здание Института политических наук Sciences Po
Фото © Maris Mezulis – Moreau Kusunoki
Здание Института политических наук Sciences Po
Здание Института политических наук Sciences Po
Фото © Maris Mezulis – Moreau Kusunoki

Двор с его ступенями-уровнями может служить не только для отдыха учащихся и сотрудников, но и как пространство для собраний или концертов, павильон в таком случае играет роль сцены.
Здание Института политических наук Sciences Po
Здание Института политических наук Sciences Po
Фото © Maris Mezulis – Moreau Kusunoki
Здание Института политических наук Sciences Po
Здание Института политических наук Sciences Po
Фото © Maris Mezulis – Moreau Kusunoki
Здание Института политических наук Sciences Po
Здание Института политических наук Sciences Po
Фото © Maris Mezulis – Moreau Kusunoki
Здание Института политических наук Sciences Po
Здание Института политических наук Sciences Po
Фото © Maris Mezulis – Moreau Kusunoki
Здание Института политических наук Sciences Po
Здание Института политических наук Sciences Po
Фото © Maris Mezulis – Moreau Kusunoki
Здание Института политических наук Sciences Po
Здание Института политических наук Sciences Po
Фото © Maris Mezulis – Moreau Kusunoki
Здание Института политических наук Sciences Po
Здание Института политических наук Sciences Po
Фото © Maris Mezulis – Moreau Kusunoki
Здание Института политических наук Sciences Po
Здание Института политических наук Sciences Po
© Moreau Kusunoki
Здание Института политических наук Sciences Po
Здание Института политических наук Sciences Po
© Moreau Kusunoki
Здание Института политических наук Sciences Po
Здание Института политических наук Sciences Po
© Moreau Kusunoki
Здание Института политических наук Sciences Po
Здание Института политических наук Sciences Po
© Moreau Kusunoki
Здание Института политических наук Sciences Po
Здание Института политических наук Sciences Po
© Moreau Kusunoki
Здание Института политических наук Sciences Po
Здание Института политических наук Sciences Po
© Moreau Kusunoki
Здание Института политических наук Sciences Po
Здание Института политических наук Sciences Po
© Moreau Kusunoki