Размещено на портале Архи.ру (www.archi.ru)

24.01.2022

Проницаемые структуры

Нина Фролова
Объект:
Жилая башня Zuiderzicht
Адрес:
Бельгия, None, Антверпен.
Мастерская:
KCAP
evr-architecten

В башне Zuiderzicht в Антверпене по проекту архитекторов KCAP и evr-architecten жильцы сами решают, что будет в выбранной квартире: балкон, остекленная или открытая терраса.

80-метровая Zuiderzicht стоит на берегу реки Шельды, в новом районе Ньив-Зёйд, «Новый Юг», логично расположенном в южной части Антверпена. По плану архитекторов Secchi Viganò, там должно появиться восемь башен, и работа KCAP при участии бельгийской мастерской evr-architecten стала одной из них. Конкурс на ее проект они выиграли в 2014.

Жилая башня Zuiderzicht
Жилая башня Zuiderzicht
Фото © Stijn Bollaert
 
Из 25 этажей (21 тыс. м2) пять ушло на подиум, где расположен отель на 108 номеров. Также в основании башни проходит «пассаж», позволяющий горожанам сокращать путь сквозь здание. Также он подходит для проведения различных мероприятий или просто встреч и общения жителей нового района.
 
Жилая башня Zuiderzicht
Жилая башня Zuiderzicht
Фото © Stijn Bollaert

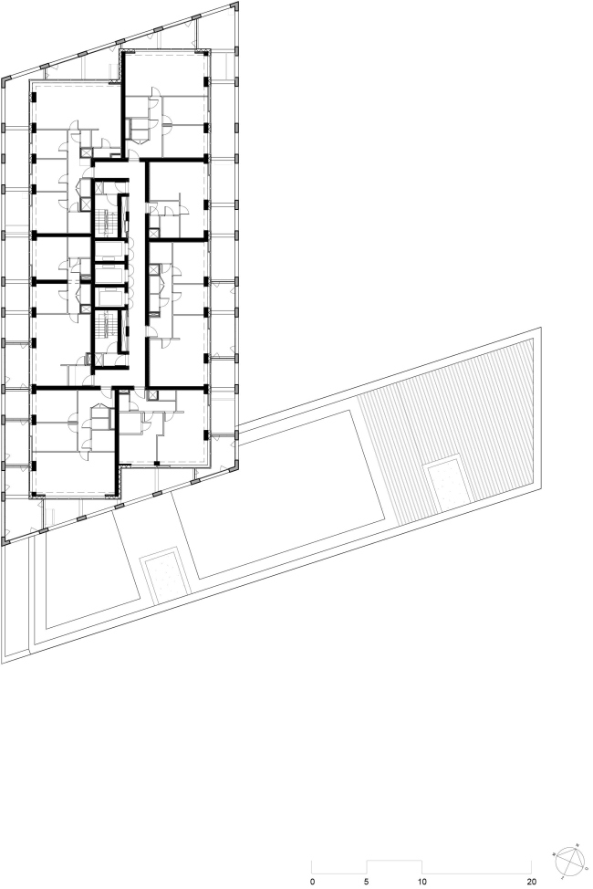
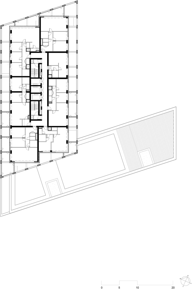
134 квартиры рассчитаны на самых разных жильцов: на молодые семьи, работающих супругов, пожилых людей, а также тех, кто живет вместе по принципу кохаузинга. Планировки сделаны максимально гибкими, поэтому квартиры можно объединять или же менять их устройство, если вдруг сменился состав обитателей – скажем, родился ребенок или же, напротив, повзрослел и покинул отчий дом. Есть здесь и квартиры-дуплексы с собственными садиками, редкость для многоэтажных зданий: они выходят на озелененную кровлю подиума.
 
Жилая башня Zuiderzicht
Жилая башня Zuiderzicht
Фото © Stijn Bollaert

Но наибольшая свобода дана снаружи: каждый владелец квартиры может выбрать, какой тип пространства там будет – балкон, открытая или остекленная терраса. Такое стало возможным благодаря решетчатой бетонной структуре белого цвета. Она развивает традицию открытых пространств в бельгийских домах, а также характерную для Антверпена линию высоких светлых сооружений – начиная с готического собора Богоматери.
 
Жилая башня Zuiderzicht
Жилая башня Zuiderzicht
Фото © Stijn Bollaert

Проект также включает в себя двухъярусный подземный гараж (5036 м2) для велосипедов и 125 машин.
 
Жилая башня Zuiderzicht
Жилая башня Zuiderzicht
Фото © Stijn Bollaert

Среди «зеленых» компонентов проекта, кроме «устойчивости» к запросам будущего, – соответствие стандарту PassivHaus с помощью двойной оболочки. Также имеются зеленые крыши, солнечные батареи, система сбора и очистки дождевой воды, широко использовано естественное освещение.
Жилая башня Zuiderzicht
Жилая башня Zuiderzicht
Фото © Stijn Bollaert
Жилая башня Zuiderzicht
Жилая башня Zuiderzicht
Фото © Stijn Bollaert
Жилая башня Zuiderzicht
Жилая башня Zuiderzicht
Фото © Stijn Bollaert
Жилая башня Zuiderzicht
Жилая башня Zuiderzicht
Фото © Stijn Bollaert
Жилая башня Zuiderzicht
Жилая башня Zuiderzicht
Фото © Stijn Bollaert
Жилая башня Zuiderzicht
Жилая башня Zuiderzicht
Фото © Stijn Bollaert
Жилая башня Zuiderzicht
Жилая башня Zuiderzicht
Фото © Stijn Bollaert
Жилая башня Zuiderzicht
Жилая башня Zuiderzicht
© KCAP
Жилая башня Zuiderzicht
Жилая башня Zuiderzicht
© KCAP
Жилая башня Zuiderzicht
Жилая башня Zuiderzicht
© KCAP
Жилая башня Zuiderzicht
Жилая башня Zuiderzicht
© KCAP
Жилая башня Zuiderzicht
Жилая башня Zuiderzicht
© KCAP
Жилая башня Zuiderzicht
Жилая башня Zuiderzicht
© KCAP
Жилая башня Zuiderzicht
Жилая башня Zuiderzicht
© KCAP
Жилая башня Zuiderzicht
Жилая башня Zuiderzicht
© KCAP
Жилая башня Zuiderzicht
Жилая башня Zuiderzicht
© KCAP
Жилая башня Zuiderzicht
Жилая башня Zuiderzicht
© KCAP
Жилая башня Zuiderzicht
Жилая башня Zuiderzicht
© KCAP
Жилая башня Zuiderzicht
Жилая башня Zuiderzicht
© KCAP
Жилая башня Zuiderzicht
Жилая башня Zuiderzicht
© KCAP
Жилая башня Zuiderzicht
Жилая башня Zuiderzicht
© KCAP